

联发·红山新澍
No.1
项目基本信息
【占地面积】10898.05㎡
【建筑面积】27200㎡
【容积率】2.50
【绿化率】30%
【停车位描述】360
【楼栋总数】3栋
【总户数】332
【物业费描述】住宅:5.8元/m?/月
【楼层状况】1栋1/2单元25层,1栋3单元16层
【物业类别】普通住宅
【项目特色】地铁沿线,刚需必看
【建筑类型】塔楼
【产权年限】普通住宅产权为70年
【开发商】深圳联粤房地产开发有限公司
【楼盘地址】龙华区佳民路与民塘路交叉口北侧

联发·红山新澍容积率仅为2.5,在龙华新盘普遍高容积率的现状下显得尤为珍贵。项目总占地面积约 1.09 万平方米,由3栋16-25层住宅组成,共规划332套房源,定位为龙华首个"新国标好房子"。项目规划建设3栋住宅,其中1栋1/2单元为25层,1栋3单元为16层,形成高低错落的建筑布局。总户数332户,采用2梯4户和2梯6户的梯户比设计,车位360个,车位比1:1.08,充分满足业主停车需求。项目产权年限70年,从2025年6月起算,预计2028年中下旬精装交付。
【地理位置】
联发·红山新澍位于深圳市龙华区民治街道民塘路与佳民路交汇处北侧,紧邻金地上塘道二期,地处红山-上塘板块核心居住区,同时处于深圳北站国际商务区与红山商圈的黄金交汇点,是龙华区“数字龙华、都市核心”战略的重要承载区域。该区位西接深圳北站交通枢纽,南连福田、南山核心城区,北通龙华中心区,周边聚集金地上塘道、星河传奇、深业颐樾府等成熟大型社区,居住氛围浓厚,既享受红山商圈的高端配套,又具备上塘板块的高性价比优势,是龙华核心居住区内兼具通勤效率与生活品质的优质地块。

项目周边形成“双地铁+主干道+快速路”的多维交通网络,出行高效便捷。地铁方面,距离6号线上芬站约650-700米,步行10分钟可达,距离4号线上塘站约800-1000米,步行12-15分钟可达,通过4号线可快速换乘5号线直达福田、罗湖等核心区域,4号线工作日早高峰行车间隔已压缩至3分27秒,大幅提升通勤效率。自驾出行可经民塘路、新区大道快速接入福龙路、南坪快速等高速路网,深华快速路-福龙路立交工程(一期)已通车,经此前往福田、南山可节省约20分钟车程。公交配套同样完善,上芬地铁站公交站有M420、M352等多条线路,可直达龙华超级商圈、前海等区域,满足多样化短途出行需求。
【教育配套】
项目纳入民治街道大学区范围,全龄段优质教育资源环绕,学位选择多元且质量可靠。小学阶段主要对口华东师范大学附属龙华未来小学(简称龙华未来小学),该校位于项目1公里范围内,2025年第六类录取积分为62.1分,入学门槛相对友好,教学质量位居龙华区第二梯队。初中阶段核心对口龙华实验学校至美校区,这所九年一贯制公办学校2024年中考普高率达78%,位居龙华区前三,2025年A1类录取积分为60.2分,同时项目学生还可参与华东师范大学附属深圳龙华学校的电脑随机派位,增加优质学位获取机会。此外,周边3公里范围内分布68所幼儿园,以及民顺小学、牛栏前小学等15所小学、17所中学,从学前教育到初中教育均有充足优质选择。

项目周边商业配套成熟密集,1公里范围内拥有华南首家Costco会员旗舰店,提供仓储式购物体验,满足日常大宗采购与高品质消费需求,辐射周边8公里范围。同时,1公里生活圈还涵盖星河COCO Garden、ATMALL上塘荟等社区型商业,可便捷获取生鲜超市、餐饮美食、亲子娱乐等基础生活服务。2公里范围内则有红山6979、红山天虹、星河COCO City等大型商业综合体,其中红山6979作为红山商圈核心地标,汇集高端零售、影院、主题餐饮、文创街区等多元业态,能满足购物、休闲、社交等全场景消费需求,实现“步行可达日常消费,短途即享高端商业”的生活体验。
【休闲配套】
项目周边生态休闲与文体配套丰富,能充分满足居民日常健身、亲子互动、文化体验等需求。生态方面,步行可达红山公园,周边还有上塘社区公园、民治公园等多个市政公园,园内绿植茂密、设施完善,是日常散步、慢跑、亲子游玩的理想场所。文体配套上,紧邻简上体育综合体,该场馆涵盖游泳、篮球、羽毛球、健身等多种运动场地,能满足全年龄段体育锻炼需求,同时周边还有龙华图书馆、龙华美术馆等文化场馆,定期举办展览、讲座、阅读推广等活动,丰富居民精神文化生活。此外,红山6979商业综合体还配套有露天广场、亲子游乐区等,成为日常休闲与社交的重要空间,整体休闲配套兼具生态性、功能性与文化性,提升居住幸福感。
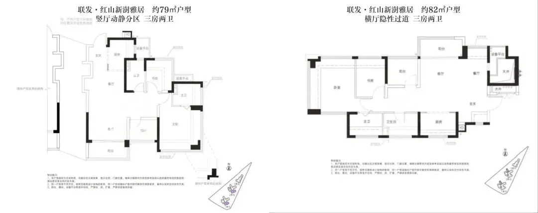
【项目平面图】

No.2
效果图欣赏







No.3
部分参考户型图



(免责声明:本文仅作参考,不构成投资意见。文章内容如涉及作品内容、版权图片或其它问题,请与我们联系,如反映情况属实我们将第一时间删除责任文章。)


扫码关注我们
长按获取更多房产资讯!!

往期楼盘推荐 点击名字即可阅读
南山区
深湾胤府 / 金众云山海 / 中信东角头 / 深铁前海时代尊府(二期)/ 深铁熙府 / 京基御景峯 / 绿景白石洲璟庭 / 一湾臻邸 / 总章翡翠公馆 / 天健悦湾府 / 御成府 / 丹华公馆 / 颐城栖湾里 / 金众麒麟府 / 晗山悦海城 / 正东名苑 / 新世界·临海揽山御园 / 卓越九珑 / 汉园茗院 / 鼎胜金域阳光家园 / 荔源雅苑 / 深圳湾壹号 / 恒裕滨城二期 / 开云府 / 汇城茗院 / 四海臻邸二期 / 南山1978·半岛擎峯 / 天源华府 / 观山海家园 / 桑泰山海丹华 / 自贸·湾啟紫荆 / 鸿荣源尚璟公馆 / 前海宸湾 / 太子湾泓玺 / 同乐公馆 / IIC超总壹号 / 中海云启源境 /卓越珑秀公馆 / GCC联泰超总湾 / 中泰·印邸
宝安区
都市茗荟二期 / 万科未来之光 / 鸿荣源·珈誉府 / 拾悦城楠园 / 怀德城·德懿府 / 云上润府 / 天健·和郡府 / 卓越前海未来城 / 鸿桥世纪名园 / 盛合天宸家园 / 越秀瑞樾府 / 海峦坊 / 卓越闽泰·云奕府 / 深铁璟城 / 中粮悦章·凤凰里 / 京地海樾府 / 云海臻府 / 会展湾雍境 / 盛合天瑞家园 / 鸿荣源·珈誉玖玺 / 安居福汇阁 / 中粮大悦城·铂悦 / 珺悦名都 / 璟荟名庭 / 保利瑧誉 / 华联峦山府 / 越秀潮樾府 / 宏发·悦云花园 / 榕江壹号院 / 万丰海岸城檀府 / 玖玖颂阁 / 锦和玉鸣 / 深铁铭著 / 新世界·松风明月 / 勤诚达云邸 / 和荣西湾家园 / 泰禾深圳院子 / 恒兴御景园 / 君成世界湾
福田区
龙华区
深业上城学府 / 鹏瑞·颐璟府 / 鸿荣源博誉府 / 宏发悦见锦府 / 中海珑悦理 / 星河·星悦云邸 / 盛璟润府 / 中洲迎玺花园 / 龙岸·君粼 / 深物业澜湖时代 / 龙华金茂府 / 超核紫云府 / 卓越·柏奕府 / 溪山禾玺首府 / 珑门壹品花园 / 中建壹品·鹏宸云筑 / 保利招商龙誉 / 金地宸峯府 / 深业颐樾府 / 华侨城四海华亭·龙胜云坊 / 富基·云珑府 / 恒壹红山华府 / 天湖岛 / 春和府 / 卓越珺奕府 / 万福花园 / 鸿荣源CITY X 观城 / 安居华越龙苑 / 檀悦府 / 塘城NEXT TOWN / 阳基御龙湾 / 金光华溪山禾玺 / 幸福城臻园 / 锦顺名居 / 联发·臻著雅居 / 深铁珑境花园 / 景勋天著 / 壹湾府 / 鹏瑞鹭璟府 / 信城缙熙园
光明区
中海时光境花园 / 润珑苑 / 金地峰境誉府 / 满京华·金硕华府 / 天泽玉河府 / 绿城汇银·桂语兰庭 / 特发学府朗园 / 润曦府 / 金洪名筑 / 振业天境云庭 / 润晖府 / 中建·观玥 / 深物业御棠上府 / 伟城贤德瑞府 / 龙湖·御湖境 / 润宏城·润臻园 / 星辉兰玉庭 / 悦见公园里 / 天健和瑞府 / 松茂御城 / 越秀·星科源启 / 安联尚璟府 / 深业云筑(一期)/ 深铁睿著广场 / 华侨城九樾 / 光年四季·悦城
龙岗区
美域蓝湾 / 阳光香格里 / 名居·山河里 / 星河盛境御府 / 保利招商雍山郡 / 中海阳光新都荟花园 / 万科金域学府 / 深铁阅云境 / 远洋天萃世纪 / 远洋城 / 紫和嘉园 / 颐峰名庭 / 宇宏·景云上辰 / 东方盛世花园二期 / 万科·龙园大观新著 / 华润城润玺二期 / 南山悦时光花园 / 和昌·拾里花都 / 岗宏翰林汇 / 仁恒公园世纪 / 创城·云璞 / 新保辉香悦轩 / 康利乾城 / 京基御景荟都 / 大靓华府 / 合正方洲 / 信义金御山居 / 泰瑞府 / 中海寰宇珑宸花园 / 颐安·都会中央五期 / 岗宏融湖盛景花园 / 今日香沙御景园 / 龙栖华府 / 龙湖星玺·青云阙 / 中海大运玖章 / 安居颢龙苑 / 云帆·闰悦府 / 珑逸府 / 百合世纪广场 / 乐宸 / 信城·缙悦城 / 合正方洲·二期瀚府 / 远洋天祺 / 信义君御山汇珑花园
罗湖区
御龙天地 /京基·天韵府 / 京基·华樾 / 京基御景天峦府 / 京基璟誉府 / 凌云华府 / 独树阳光里 / 翠园华府 / 亚太·半山樾府 / 德弘天下华府 / 金岸里 / 京基水贝城市广场
坪山区
传承启元 / 招商华润·玺悦台 / 坪山城投·鸿鹄里 / 财富城二期 / 保利明玥澜岸花园 / 瑞云府 / 安居梓和苑 / 蔚蓝左岸花园 / 卓越·晟悦 / 臻文府 / 兰江璟园