









新洲是深圳福田中心区南侧重要的居住生活区,多年的商住与城中村并置,丰富的城市肌理形成多样的社区与街道生活。本人早年落脚深圳,也曾在新洲居住7年,它或许不够“美观”,不够“高效”,却提供了标准化城市开发中日益稀缺的东西:生活的偶然性、社会的多样性、空间的包容性与成长的有机性。
感谢 悉地国际东西影工作室 对gooood的分享
村城中的校园
新洲是深圳福田中心区南侧重要的居住生活区,多年的商住与城中村并置,丰富的城市肌理形成多样的社区与街道生活。本人早年落脚深圳,也曾在新洲居住7年,它或许不够“美观”,不够“高效”,却提供了标准化城市开发中日益稀缺的东西:生活的偶然性、社会的多样性、空间的包容性与成长的有机性,这里是一面诚实的镜子,映照出一座超级城市在宏伟叙事之下,细腻而坚韧的日常生活原力。
▲视频© 在场造象

▲鸟瞰© 樊钊明

▲半鸟瞰© 樊钊明
场地西南侧福强路是城市主干道,噪音较大。西北新洲五街,东北侧新洲七街为城市支路是建筑组织出入的主要界面。项目整体容积率2.26,是深圳高密度校园的典型。规避噪音,“上天下地”寻找空间,很快通过多方案比较得到了一个较为理性的总体布局,随后便展开建筑的设计。


▲场地分析© 悉地国际东西影工作室

▲人视© 樊钊明

▲多空系统与周边对话© 樊钊明
开放共享式教育
开放式学校出现在上世纪50年代美国,它打破年级界限,把各式电子教学设施集中起来形成全校的教学情报资料中心。这个空间通常布置在校园平面的中心部位, 形成一个多功能综合性的“学习中心”。

▲概念草图© 悉地国际东西影工作室

▲半鸟瞰© 樊钊明

▲半鸟瞰©樊钊明
绿洲小学的设计以“U”型半围合的院子为类型作为空间原型,普通教室单元布置在周边,把所有共享功能,绿化围绕中庭展开,形成一个开放共享教育的发生场地。

▲首层架空层© 樊钊明

▲首层活动层© 樊钊明

▲走廊通道© 樊钊明

▲首层活动空间© 朱雄毅
中央庭院不仅是视觉焦点,更是学校各类活动的核心舞台。图书馆、报告厅、体育馆、游泳馆、艺术教室、科学实验室等共享功能空间面向庭院开放,使学习从封闭的教室延伸到整个校园。这种布局鼓励跨年级交流、激发偶然相遇与知识碰撞,将“开放教育”理念具象化为可感知、可体验的空间现实。

▲图书馆室内照片© 樊钊明

▲图书馆采光天窗© 樊钊明

▲负一层内庭院© 方芳

▲食堂室内照片© 袁小宜

▲体育馆室内照片© 方芳

▲游泳馆室内照片© 樊钊明
多零层活动平台
通过水平楼板组织活动空间,强调建筑的水平性,楼板截面整合空调、设备管线,形成一块纯粹的“板”,层与层交错,富有变化。

▲半鸟瞰© 樊钊明

▲半鸟瞰© 方芳
课间十分钟通常被认为是“无法有效利用的碎片时间”,但在绿洲小学,这段短暂的时间被赋予了新的价值。学生只需几步就能从教室来到平台,享受阳光、新鲜空气和短暂的游戏。这种设计深刻理解儿童行为特征——他们需要频繁的休息和活动来维持注意力,而非长时间困在固定座位上。

▲轴测图© 悉地国际东西影工作室

▲鸟瞰©方芳

▲活动平台© 方芳
垂直维度的平等化:传统教学楼中,高层班级的学生往往难以在课间到达地面活动场地。多平台设计消除了这种垂直不平等,确保每个学生,无论所在楼层高低,都能平等享受活动空间。这些平台不仅是过渡区域,更是小型社交中心、临时展览空间和非正式学习场所,极大地丰富了校园生活的层次。

▲操场人视© 樊钊明

▲庭院© 樊钊明

▲通高空间© 樊钊明
同时,我们在这些平板之中“随意”放置了若干的“异物”,与学生相遇,成为日常的“玩具”。

▲旋转楼梯© 袁小宜


▲旋转楼梯©方芳
多孔、开放的校园
在深圳湿热的气候条件下,多孔设计促进了自然通风和散热。错落有致的开口形成风道,引导气流穿越建筑群;遮阳设施与绿植结合,创造了舒适的微气候。这种设计既降低了能耗,也让学生亲身体验可持续设计的价值。

▲内庭院© 袁小宜

▲屋顶构件© 袁小宜


▲屋顶构件© 王照明

▲楼梯通道© 方芳

▲楼梯通道© 朱雄毅
高密度之后
在深圳持续演进的新校园建设中,应对高密度挑战的设计策略已日趋完善,形成一套成熟而富有弹性的“工具包”。高密度不再必然指向压抑与单调,反而能被转化为塑造场所特色、激发空间潜力的独特机遇。


▲人视© 朱雄毅

▲报告厅室内照片© 廖洪锋

▲施工过程© 王照明




▲施工过程© 朱雄毅
项目图纸与模型

▲工作模型照片-方案对比© 悉地国际东西影工作室

▲模型照片© 悉地国际东西影工作室

▲总平面图© 悉地国际东西影工作室

▲负二层平面图©悉地国际东西影工作室

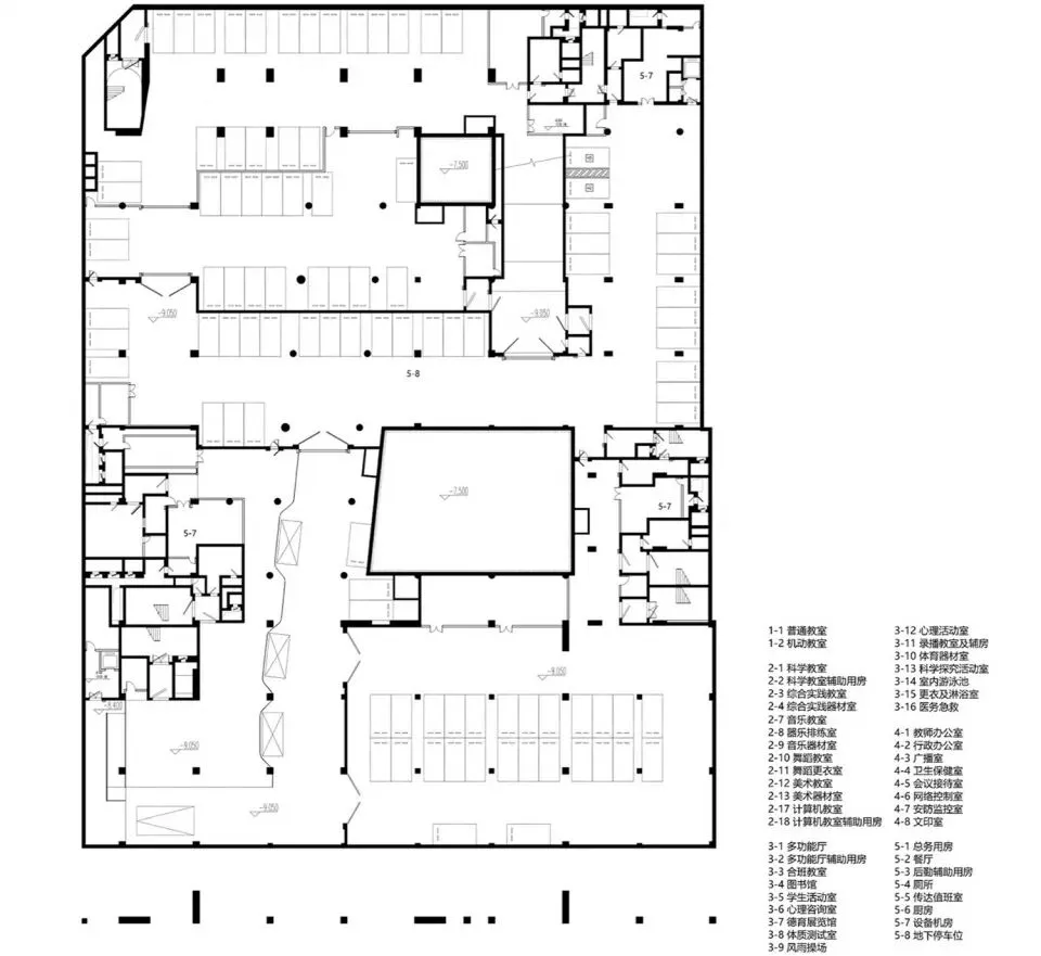
▲负一层平面图© 悉地国际东西影工作室

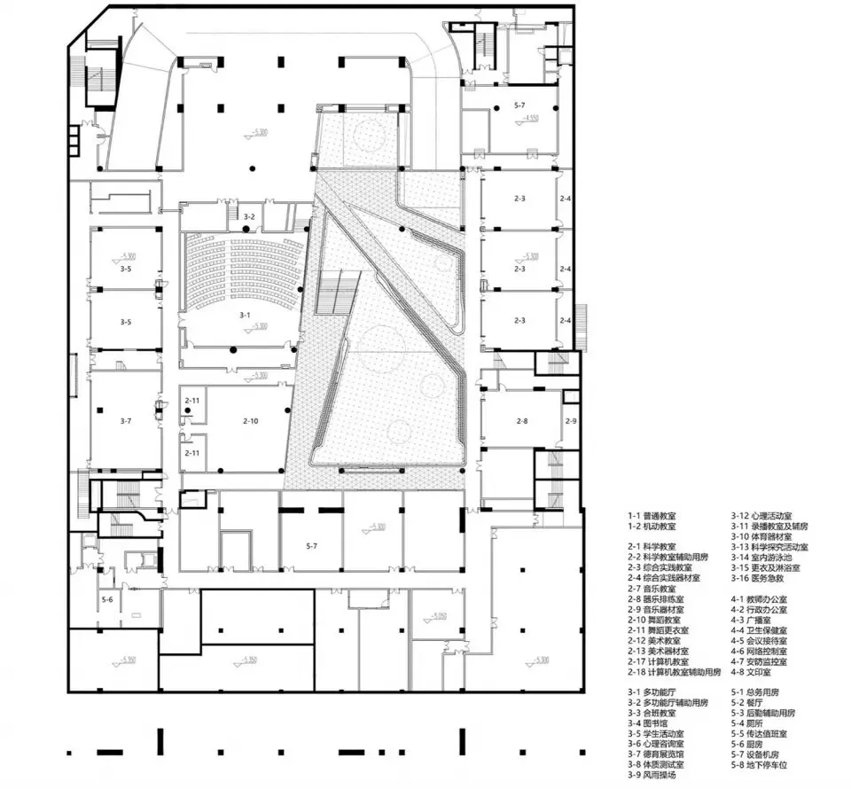
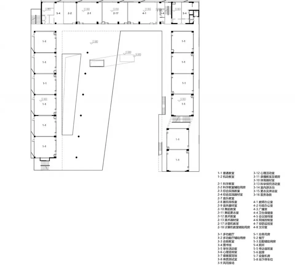
▲一层平面图© 悉地国际东西影工作室

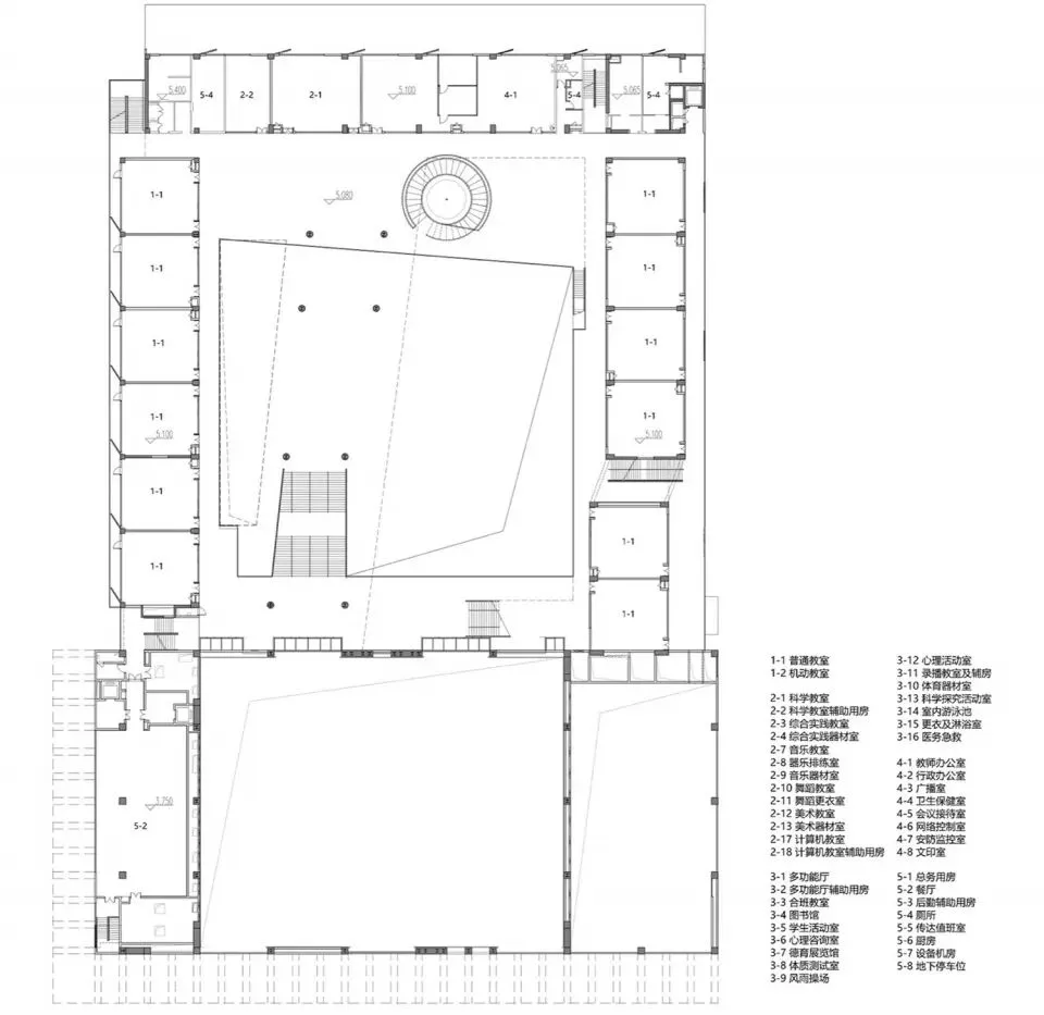
▲二层平面图© 悉地国际东西影工作室

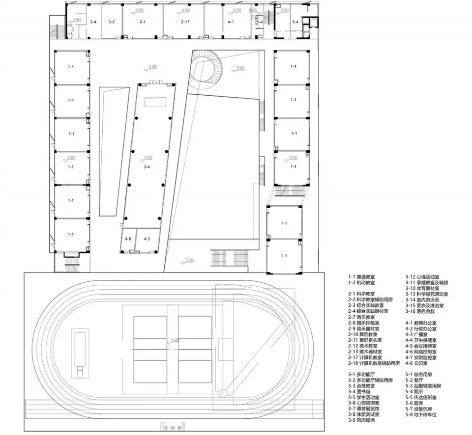
▲三层平面图© 悉地国际东西影工作室

▲四层平面图© 悉地国际东西影工作室

▲五层平面图© 悉地国际东西影工作室

▲六层平面图© 悉地国际东西影工作室

▲屋顶平面图© 悉地国际东西影工作室

▲南北剖视图© 悉地国际东西影工作室

▲东西剖视图© 悉地国际东西影工作室

▲弧形天窗&空调节点© 悉地国际东西影工作室
项目名称:深圳绿洲小学




