

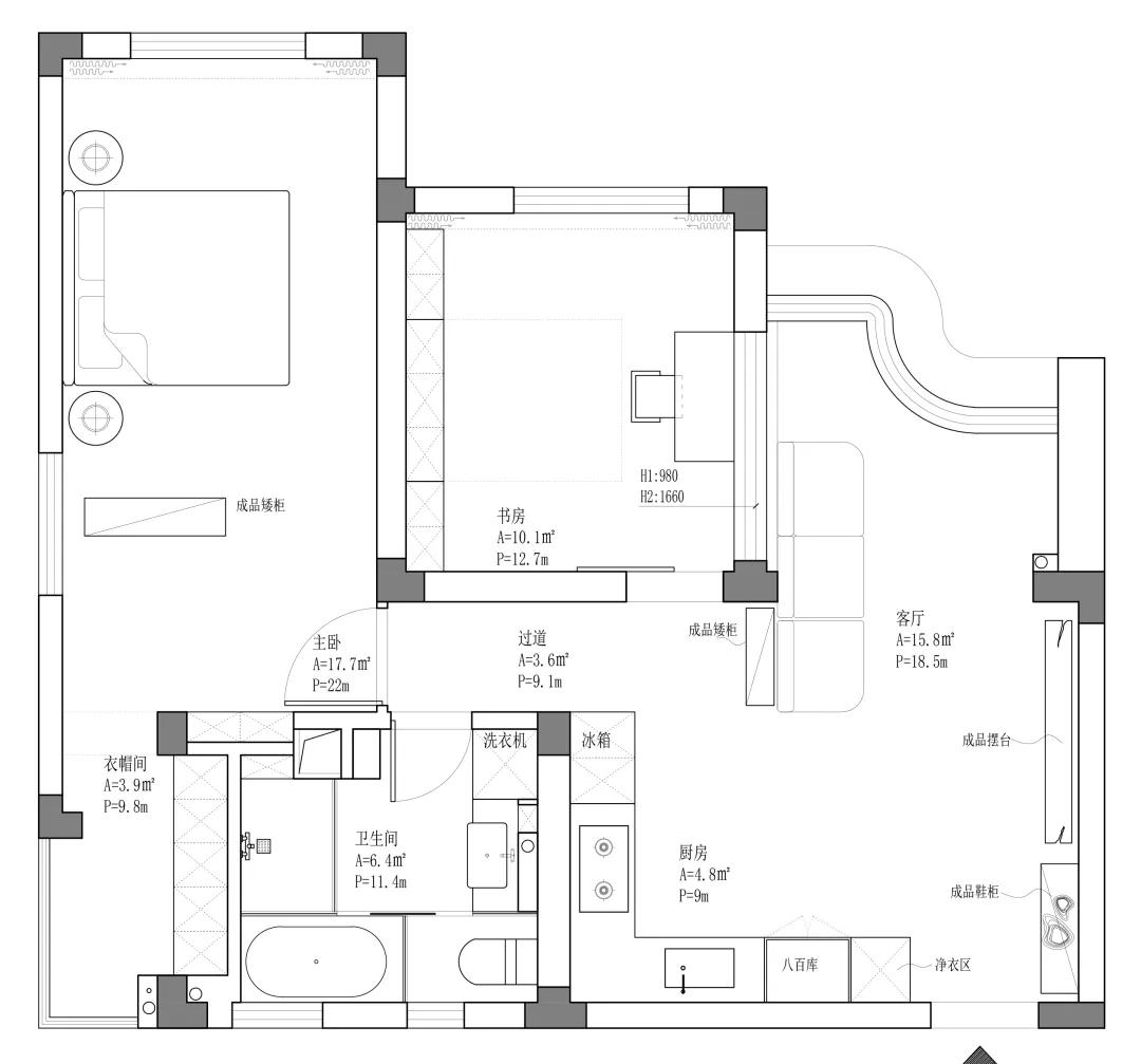
作为深圳老牌成熟小区,莲花一村的 75㎡户型承载了很多家庭的刚需,但老房的格局封闭、采光差、收纳乱,一直是大家的痛点。
肖工、黄工的设计改造,用 LDK 一体化 + 自然原木风,把 75㎡的小家,改出了 100㎡的通透感,回家就像住进森林里,太治愈了!
\/



我们以“破局”思维打通非承重墙,实现LDK一体化与洄游动线,让厨房、餐厅、客厅、书房互通无阻,配合半高柜、中岛吧台软分隔,瞬间拥有大平层的通透感。

全屋以自然原木风融合奶油暖调,通铺仿实木木纹砖、搭配无主灯与3000K氛围光,辅以绿植、亚麻软装,营造回家即放松的森系松弛感。

收纳系统更是精细化布局:玄关嵌入式柜体、厨房“八百库”、书房整面书架……每一寸空间零浪费,颜值与实用兼备,完美适配深圳快节奏生活。
细节小角图↓





主卧整墙藤编衣柜、弧形过渡柜与床头精细化收纳打造零浪费收纳系统,并优化动线、引入双面采光,让17.7㎡主卧拥有大平层的通透与开阔感。


玻璃隔断与实体墙实现淋浴+浴缸湿区、独立马桶区、洗手台+家政干区三分离,配合暖调石材、原木与氛围灯光,并嵌入洗烘一体机与精细化收纳,让6.4㎡公卫拥有大平层级的动线效率、自然松弛感与零浪费空间利用。

◍往期精选(私宅)作品 | Real works...




点击“阅读原文”在线预约本案设计师~