
△深圳市云端学校 ©直角建筑摄影


△深圳市云端学校©孔锦权
设计单位 普罗建筑设计事务所office PROJECT
项目地点 广东深圳
建成时间2025年9月
建筑面积 58242.30平方米

“超级学校”具有超高的空间密度、人口密度,以及组织密度的特征。可以说,“超级学校”既是一种站在全球角度,由我国特殊社会、人口、教育模式、城市建设模式所产生的特殊建筑空间类型,同时也是国内大量生产的普遍“教育社会模型”。所以,“超级学校”是一种资源集中的制度优势,同时,也是一个当前亟待研究的社会建筑问题。大量集中式的应试教育培训模式,伴随着人口与社会发展的变化,正在慢慢形成一种过去式。“超级学校”过去在组织形式与空间模式上,过于强调对于集中式机构管理的服从性与依赖性,对集体中公共场域的塑造,个体分歧的涌现,以及不断变化的社会与城市环境,没有相应的敏感与反馈。近十年来,带着对传统“超级学校”问题的反思,设计团队通过一系列研究与实践,试图对于中国地域化的社会性教育建筑设计,形成一些新的探索。

△ 竞赛方案阶段模型 ©常可

△ 高密度城市中的立体学校鸟瞰 ©孔锦权
近几年,深圳的“高密度学校实践”集体运动,“上天入地”利用有限的空间资源,为学生争取最大的教育自由,成为对当代空间社会问题的一次有效的实践反思。设计认为,高密度学校是“超级学校”的一种特殊表现。一方面,要解决高密度所带来的功能问题,要“透气”,避免进一步的空间压缩。另一方面,在高密度学校设计中,更要对“超级学校”这一普遍类型做出理性反思。设计思索的核心问题是,当“高密度”将“超级学校”对于资源的争夺、机构的管理,以及集体的塑造这些矛盾更加推到问题的前台时,是否反而会催生一种新的态度,模式与话语,从而形成一种带有新文脉背景的教育场域?通过4年时间,从竞赛方案研究,到实施落地运行1年有余,深圳云端学校给我们带来一次全流程的解答。
△ 项目视频 视频拍摄:直角建筑摄影

△ 将当下城市景观融入学校内部的多层教育场景 ©孔锦权
我们认为,未来的学校应该不再仅仅是传授知识或组织管理的机构,而是专属于孩子们在社会中共同生活的“栖息地”。在这样的“教育栖息地”中,一方面是开放与自由的公共场域,以及不断变化的成长灵活性,从而建立普适性的个人与社会之间积极的位置关系。另一方面,作为地域文化的空间反映,“教育栖息地”独特与唯一的在地性,使地域的人文成为人思想最坚实的自由栖息之根。将高密度的“超级学校”思考为“教育栖息地”,是一种思维的转化。建筑学的密度问题可以转化为社会学的场域问题,从而走出学校功能的桎梏,走向学校类型的一种新未来。

△ 打开城市视野、光线,与空气的通廊 ©孔锦权
深圳云端学校是一个设置54个班、预计超过2000名学生的九年制公立学校,其接近2.0的容积率与周边多阶段复杂的城市演化环境,使它不只是一所典型的“超级学校”,而且是一所自身高密度、社区极复杂、功能强复合、教学超创新的深圳高密度“超级学校”。我们认为,以云端学校为例,“超级学校”的这些束缚,恰恰可能利用“高密度”这一现实作为一种揭开问题的钥匙。将其密度、环境、功能、文化这些需求分步化解,最后像鲁班锁一样咬合成一个新的整体,形成属于云端学校自身的社会形式架构。就是以“地域化”的策略解法,形成了一个新的普遍性的“超级学校”问题的答案。这个回答的过程与结果,使建筑学工作不仅作为品味文化的形式,更是作为一种回应当下社会文化的具体实践动作。

△ 悬浮于城市中的 “云端学校”©孔锦权

深圳市云端学校作为深圳市重点的教育创新示范学校,选址位于龙岗区坂田街道侨联西住宅区旁一块东西向场地。场地西侧为城中村,北侧为新建高层住宅区,南侧为工业厂房,东侧临城市主要干道,眺望龙华山坂田社区的城市发展一直处于快速而混杂的更新状态中。学校现状位置周边对于城中村的逐渐拆迁形成了周边“小”“中”“大”不同的城市建筑尺度的混杂状态。学校本身作为一个高容积率、大尺度的城市公共建筑,如果再增加对社区街道的压迫感,将进一步加剧城市社区尺度之间的割裂。如何既塑造学校文化形式上的识别性,又能通过“碎化”体量空间从而弥合“小”与“大”的周边城市尺度,使学校并不再次成为一种地块内的“城市填空”,而是一种网络化与线性化的“社区尺度纽带”,成为设计最核心的出发点。

△ 云端学校区位图 ©普罗建筑设计事务所

△ 学校平面布局与周围城市尺度的对话 ©普罗建筑设计事务所

△ 学校利用操场的缓冲与城中村进行对话 ©孔锦权
城中村老社区人群,新开发住宅的外来定居人群,周边工业区工作人员,都会因为新学校的建立产生更深的交流与联系。学校的新建筑形象一方面带来社区文化性的一种激活,但是另一方面,学校也需要消解自身的封闭性、中心性,以及独立性。这使得新的社区结构不是对拆迁后的场地进行一个新的“填补”,反而应该变成连接周边城市空间的“纽带”。
第一步,通过首尾连接的三条“线性教学廊”,将整个学校变成一个互相关联的整体,而不是三堵封闭的大墙体。第二步,将线性廊通过更小尺度的平面错动,变成更小单元的“像素化锯齿”,从而创造出9个不同尺度的内院,进一步形成更人性尺度的体验。第三步,通过立体层叠错动,形成连续阶梯形层台,将六层教学楼连续跌落消解,与周边城市高度融合。

△ 学校布局生成分析动画 ©普罗建筑设计事务所
通过这三个层面的尺度操作,学校与周边城市发生了底层逻辑的关系建构,将巨大的新学校形成一种城市肌理本身的构造,变成一种社区的文化景观。同时,针对在地的具体逻辑构建,并不存在先天的类型或符号的直接借用,却最终形成了新的属于这块社区自己的当代城市形式语言,其形式化的新凝聚力将促进周边社区共同价值的再次凝聚。

△ 学校链接城市肌理,形成新的城市公共文化景观 ©孔锦权

△ 城市连续性的公共景观 ©孔锦权

通过打开东西向的视野,西部的城中村景观与东部的山体绿色廊被引入到学校内部。这使学校不再是一个封闭的内部,而成为城市共生的有机部分。学生从每个教室出来都能感受到身处于真实的城市社会中,一种集体与个人关系的不断触碰与思考,一种个体自由意志的解放,而不再是仅仅被单一教育组织所设计的“理想校园生活”。

△ 在学校内部共享城市视野 ©孔锦权

△ 学校内部空间模仿并融入周边自然生长的城市肌理 ©孔锦权

△ 开放的视野时刻引导着孩子们望向更广阔的外部真实世界 ©直角建筑摄影

△ 城市中的“天空操场” ©孔锦权

△ 学校未完工时拍摄的落日城市 ©张之杨

密度如何带来集约,而不是仅仅集中?效率与场所哪个才是底层逻辑?这些问题往往是学校面临的核心矛盾。我们认为,享有平等的时间权利才是最大的善待。如何解决学生“课间十分钟”的活动问题,往往是高密度的学校是否能成为一个“栖息地”式的场所最重要的底层问题。设计在学校教学区中设立了一套层叠空间系统。每条教学走廊尽端都能抵达屋顶花园平台。一方面使每个孩子在半分钟内可达开阔的活动场地,才能利用宝贵的下课时间建立更多轻松的社交体验。另一方面,每一层平层可达的活动平台避免了设置集中式的活动平台所导致的资源争抢、霸凌,以及楼梯上的奔跑与危险。多个散落的活动空间创造了“栖息地”中小团体的组织与建立,有效消解了学校集中式权力的压迫感。

△ “层叠部落”屋顶景观活动体系 ©孔锦权

△ 每一层拥有独立的活动平台,缓解密度压力 ©普罗建筑设计事务所
将这些层叠平台进行错动,形成两层通高的单廊教室系统。一方面打开了公共空间的城市视野,另一方面形成了多层之间的无差别交流场域。通过水平和立体的错动,整个学校空间像真实城市生长一样,形成了各种不规则的自然街道穿插体验,进一步碎化了学校的超尺度,使“栖息地”社区好似多个聚落的汇集与碰撞,与周边城市空间肌理融合。

△ “层叠部落”双向错动研究模型 ©普罗建筑设计事务所

△ 双向错动的教学层台 ©直角建筑摄影

△ 通过错动降低视觉上的层数,减少密度压迫 ©直角建筑摄影

△ 错动走廊打开的视野空间 ©刘珺睿

△ 通高走廊形成开敞的自然视野 ©直角建筑摄影

△ 一座融入城市的学校 ©孔锦权

△四通八达没有尽端的学校 ©直角建筑摄影

△ 连续跌落的建筑在操场形成地面上两三层楼的低密度校园感受 ©孔锦权

△ 生活区的城市峡谷 ©孔锦权

△ 峡谷中不断错落的空间犹如真实的南方街巷 ©孔锦权

△ 通过水平垂直错动平台使不同层之间形成交流 ©孔锦权

根据云端学校自身功能要求以及龙岗区学校的通用配套规范,对于学生文体活动,生活休闲设施的要求很高。如何将这些公共功能从配套,变成整个高密度学校社区构建的核心“介质”,使教学溶解于这些公共交流场域中,是在学校组织高效的基础上实现“生活性”的重要措施。西侧的立体艺体中心与东侧的立体生活中心在学校两端形成同时与外部城市和学校内部互动的公共场域介质。这些介质与主教学单元深度链接与融合,成为“栖息地”的公共基础设施。

△ 不同的公共基础设施融入在立体的穿梭交互系统中,形成同时与学校内外的交互 ©普罗建筑设计事务所
a. “穿梭”体育港
在空中操场下,室内篮球馆、羽球馆、活动中心、报告厅、图书馆、艺体中心等功能围被“吊在空中的”环形的廊道所串联,形成了一个超多元的立体“运动街区”。通过与外部城市社区和内部绿谷院落的层层渗透,将城市与校园内部形成有深度的沟通。空中游廊在校园与城市的边界上不断“扰动”,将学生不断从校园内部的氛围中带入外部真实的城市街道,从而模糊学校物理上封闭的边界。其串联围合起的弧形小剧场、阶梯羽毛球场、“风扇”气候调节墙等丰富的局部空间让多层面的场景联动起来。

△ 立体叠加的城市街道与学校生活场景 ©直角建筑摄影

△ 多层廊道形成室内外空间的交互 ©孔锦权

△ 中央绿谷与风雨操场的自然贯通 ©孔锦权

△ 将学校内外的场景,自然同时吸纳并汇聚 ©孔锦权

△ 文体中心的自然“碰撞”与交汇 ©孔锦权

△ 巨大的半室内风雨操场通过高效的结构与运动设施构建自由透明民主的活动空间 ©孔锦权

△ 环形的空中“交互廊道”不断穿越不同活动空间之间可开启的“气候调节墙” ©直角建筑摄影

△ 在廊道上同时观察城市街道与体育场景 ©直角建筑摄影

△ 不同层级的空间激发着不同的情绪与成长场景 ©直角建筑摄影

△ 将街道的绿色、光线、空气引入体育馆内部 ©直角建筑摄影

△ 条形的羽毛球场所形成单项的强烈场景叠加 ©直角建筑摄影

△ 穿梭体育港剖面图,天窗与气候调节墙对架空空间气候的调节示意 ©普罗建筑设计事务所

△ 既分隔,又连结的活动空间 ©孔锦权

△ “气候调节墙”、环廊、体育场,城市多场景的叠加 ©孔锦权

△ 穿梭到主入口街道上的弧形环廊形成家长与学生的交流区 ©孔锦权

△ 打破学校内外的界限,形成弧形小剧场 ©直角建筑摄影

△ 城市交互港环廊串联所有栖息场景 ©普罗建筑设计事务所
b. “书山”—走廊式的图书馆
整个校园呼应周边城市社区的体量,从西到东层层升高,其外部的活动空间伴随着充足的视野阶梯状展开。同时,在建筑的内部及城市的界面上,设计将传统的图书馆拉长,变成了一个水平向和垂直向均贯通的“交互长廊”。这就将过去利用率不高的独立图书馆功能变成一个链接空中体育场和地面的公共交流空间,从而弱化其刻意的功能性,而变成不断变化的非正式休闲交通空间。让交流、阅读、休憩成为一种自然发生的生活方式,而不是固定的功能化流程。

△ 外部和内部都不断连续跌落,与城市对话 ©直角建筑摄影

△ 不断跌落的学校入口,形成尺度的亲近,避免高密度对街道的压迫 ©孔锦权

△ 内部不断跌落的“走廊式”图书馆模型 ©常可

△ “书山”图书馆的各种“非正式”交流空间 ©普罗建筑设计事务所

△ 不同高度叠加的空间场景 ©孔锦权

△ 自然跌落的“地景” ©孔锦权

△ 走廊式的非正式交流区 ©孔锦权
c. “超叠盒子”—包裹身体的视听剧场
在“书山”延伸的尽端,空中操场下方是学校的演艺厅,设计称之为“超叠盒子”。通过整体木纹肌理材料的包裹,使盒子内部具有极强的沉浸感。两层看台分别连接教学区不同层高,使学生可以从教学走廊,体育馆内等不同空间自然步入。层叠状的天花是学校本身的设计概念的艺术雕塑,同时将注意力完全引导向舞台空间。

△ 由“书山”继续向下延伸到双层剧场 ©常可




△ 层叠剧场 ©直角建筑摄影
d. “阶梯食堂”—教师与学生共享的立体生活社区
在学校东部端头是学校的生活区,包括教师宿舍、教师休闲区、教师食堂、学生食堂等功能。通过在紧凑的用地中将这些功能融入在“社区花园”中,使老师与学生在此可以平等地共享与交流,而不再是教学模式下的身份对立,是空间的出发点。通过整合阶梯生活花园与食堂,形成一个三层的立体结构。最下层为学生食堂,中层为教师食堂,顶层为共享生活花园。在用餐中,学生与教师各自独立,又共享一个空间。

△ 阶梯食堂模型 ©常可

△ 阶梯生活花园 ©刘珺睿

△阶梯花园下,与教师食堂上下层联通的高年级学生食堂 ©直角建筑摄影

△ 食堂下沉庭院 ©孔锦权

△ 低年级食堂采光天井 ©直角建筑摄影

△ 多处引入光线的食堂 ©孔锦权

通过学校自身布局与城市肌理的紧密关系,云端学校在极其紧凑狭长的用地条件下,集约了建筑用地,在学校中心争取了一条东西向贯通的“自然绿谷”,从而一方面打开了学校内部向城市的封闭的视野,另一方面也将周边自然、光线、风、植物,引入了校园内部。这不仅从文化上延续了城市空间肌理,从生态角度,也同时解决了学校内部针对深圳南方湿热气候的系统性问题。

△ 贯通学校的自然之谷图解 ©普罗建筑设计事务所

△ 自然之谷 ©孔锦权

△ 与绿色山景的自然联结 ©直角建筑摄影

△ 多层次的绿色景观设计 ©直角建筑摄影
绿谷方向顺应龙岗区主导风向,其漏斗的形状在学校内部创造了一条“风压廊道”。通过这条主风道,带动了建筑外廊多条次级风道的运作,使学校任何一个角落在任何时段都有徐徐凉风吹过。层叠平台通高的高度变化进一步增强了这种通风的效果。经过学校建成后的现场实测,可感知身体始终保持在凉爽及干燥的状态下,这大大降低了学校夏季对于空调能源的依赖,使“栖息地”的生活始终保持在舒适的状态。

△ 未完工的云端学校远眺银湖山郊野公园 ©张超

△ 由中央绿谷形成的主导风廊通风降温设计 ©普罗建筑设计事务所

△ 通畅的中央绿谷风廊 ©孔锦权

△ 夜幕下的城市绿谷 ©孔锦权

△ 绿谷旁的一层架空活动场所 ©直角建筑摄影

“社会化建造”一直是事务所工程上坚持的建造策略。从结构、材料、节点、机电设备逻辑等角度,事务所始终钟情于项目现实社会背景的限制与机会。云端学校作为政府全资的公立学校之一,其预算等级均维持于公共建筑中等偏下的水平。如何在时间周期、施工水平、造价制约的环境中,实现学校空间的最高均衡品质,是项目设计当中重要的管控策略。
首先是吊顶与外墙的权衡。通过对多个公立学校的走访,团队发现吊顶对学校空间品质影响极大。学生头顶裸露的管线成为建筑系统的不稳定因素。所以设计采取了“弱外墙”“强吊顶”的策略。降低外墙的材料等级,仅使用仿砖白色质感涂料保证外墙的形体完整性,从而保证了学校走廊通体吊顶的预算实现,最终呈现了高品质的空间效果。
考虑到学校运营中对高频检修(如灯具、管线维护)的硬性需求,以及材料重量对学生安全的隐患,设计最终使用集成化的椭圆形穿孔铝板这一轻质、耐用且易于拆卸安装的材料,形成了全包裹式吊顶效果,以避免传统格栅式吊顶的商业化风格。

△ 仿砖纹的质感涂料 ©直角建筑摄影

△ 条形穿孔板集成吊顶系统设计 ©直角建筑摄影

△ 层叠错动空间的典型剖面构造分析 ©直角建筑摄影
教室的分体式空调外机也是学校建筑立面必须处理的硬性问题。通过建筑错层廊道的设计,使每层空调外机布置于同层走廊异侧、下层走廊上层。这样的好处是在实现外走廊的基础上不会出现空调吹人的烦恼。同时,隔层出现的空调外机不会成为影响立面的主要元素,这种系统化的布局设计使外立面感觉不到空调外机的影响。教室门窗系统采取一体式设计,预留大面积内凹黄色金属漆墙面,作为每个教室的公告区。教师与孩子们可以将各种告示、作品磁吸在墙面,作为班级交流的界面。

△ 教室一体化落地门窗系统与空调立面系统 ©直角建筑摄影

△ 科学教室内部云端线上教育系统 ©直角建筑摄影

△ 简洁大气富有层次与细节的立面系统 ©孔锦权

△ 多种金属反射,穿孔板材质营造的文化科技感氛围 ©孔锦权

一所“学校”到底是如何诞生的?从云端学校这个案例来看,如何将高密度校园通过与周边城市发展的现状进行深度关联来将城市性变成校园的一部分,是一个挑战。同时,多种校园活动的公共性与“教学单元”的制度性之间的关系是否能被解读为“社区性生活内容”,而非教育指标的硬性匹配,也是复杂的超级学校自身携带的问题。
团队选择将这样两个问题合二为一综合考虑。通过对校园活动功能建立城市性的方式,来达到“社区性”的合理发展,从而使校园既是普遍教育规则的延伸,同时又是地方社会文化的个性产物。在现存的公立教育责任体系的共识下,团队力图通过空间的组织架构创新与多方社会资源形成更多显性或隐形的关联,在封闭的场地中利用不同元素的关系去创造一种“松动”和“陌生”,从而传达一种更加松弛的“新教育生活内容”的共识。

△ 既理想化,又市井化的教育栖息地 ©孔锦权
打开视野、空间平权、增强交流、链接城市,这些设计的核心观念从初始竞赛方案到最终完整落地,是一个多方共同协作的结果。通过关联教育建筑中内存的不同“体制”“系统”“空间”“场所”等框架,将“学校”这一当代被识别为散落化的功能聚合物的场所,重新形成新的整体共识,是设计的出发点。但同时,学校是教育政策制定者,教育方、学生、家长、周边社区居民所形成的价值共同体,让学校成为一个具有共识的“公民成长”平台,成为社会多角度观念的协调器,是整个公共建筑项目营造的核心价值。

△ 项目建设过程 ©普罗建筑设计事务所
在整个“共营”的过程中,对于城市性的尊重,对于未来学校内容与形式之间关系的讨论,对于地域化建造背景适应性的优化,这些课题成为校方、工务署、设计方、施工方必须共同面对的过程。令人欣喜的是,工务署、校方、施工方对设计价值充分坚持,在整个营造过程中不断形成共识,最终完成了这座公共建筑的精神内核。
云端学校项目对团队自身的启示是:学校设计并不应该成为一种高度成熟化的产品。学校作为一个生活方式场所的模式潜力往往还没有被深入挖掘,就被组织模式所固化。“超叠栖地”在意的是人自身的发展与社会机构机器发展之间的复杂关系的共识,也同时形成不同认知的边界。这也是为什么团队如此强调在中国的社会空间中创造关联,而不仅仅是呈现各种现象的拥挤并置。这种共识既是一种关联与协调,同时也是一种警惕和反思。

△ 众多垂直摩天楼中的“水平摩天楼” ©直角建筑摄影
设计图纸 ▽

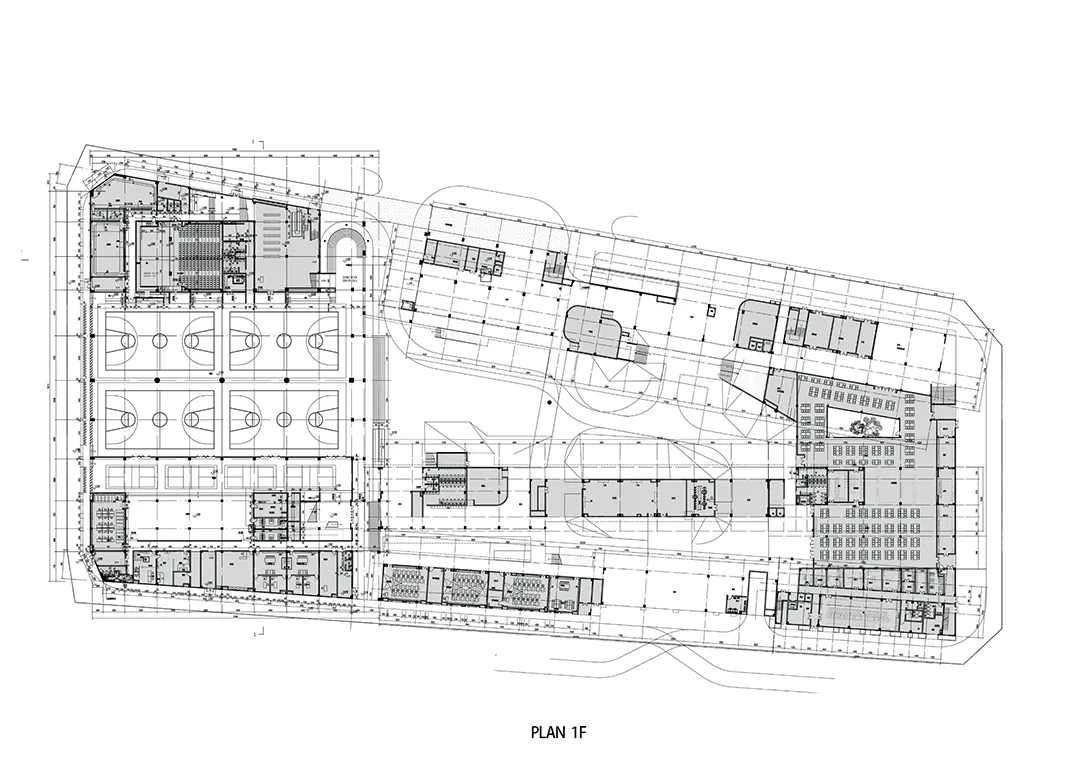
△ 一层平面图 ©普罗建筑设计事务所

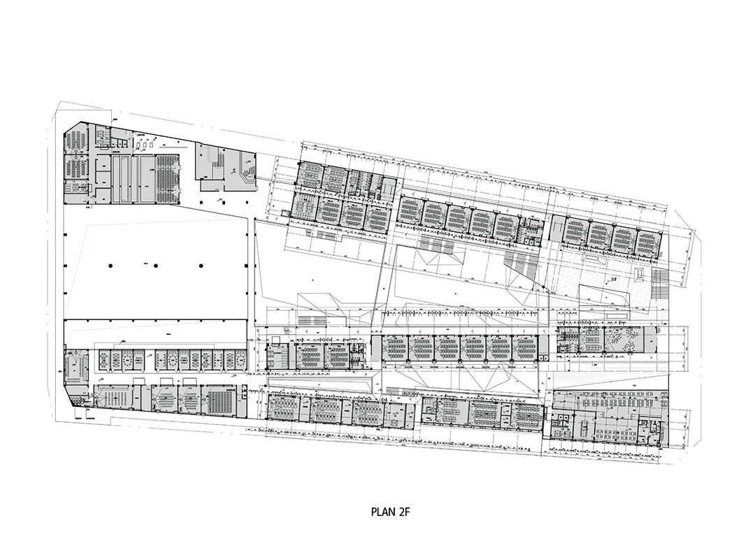
△ 二层平面图 ©普罗建筑设计事务所

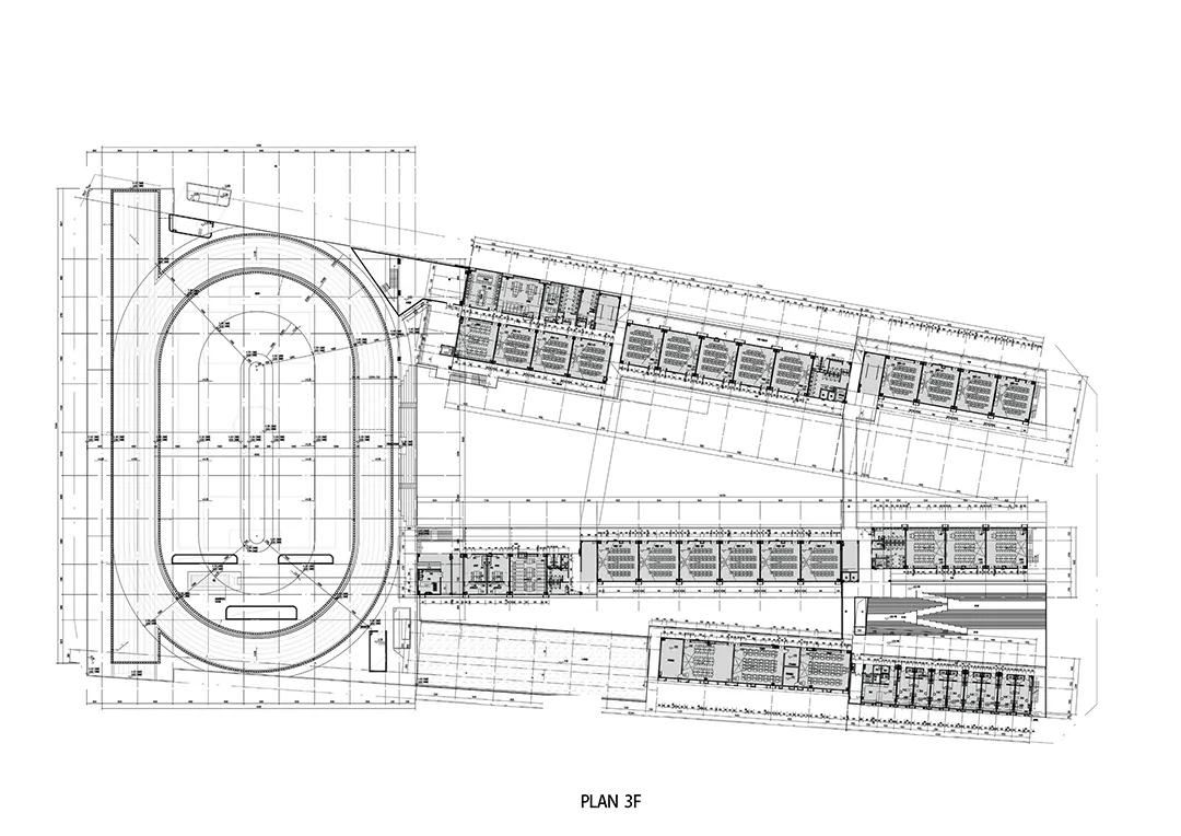
△ 三层平面图 ©普罗建筑设计事务所

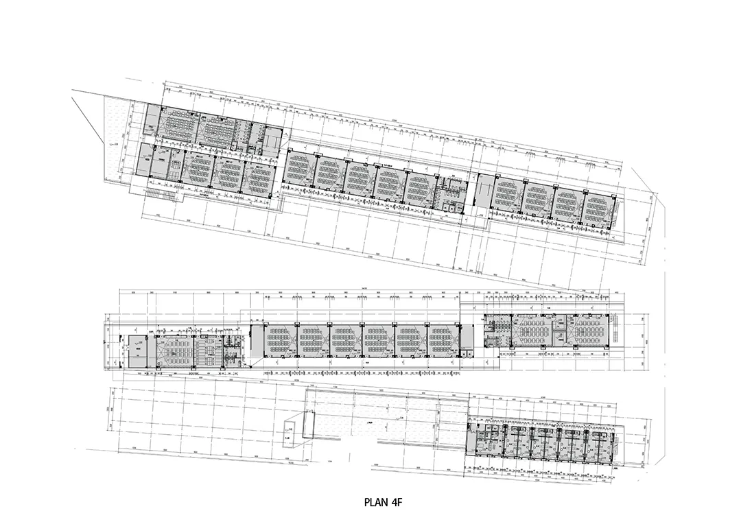
△ 四层平面图 ©普罗建筑设计事务所

△ 五层平面图 ©普罗建筑设计事务所


△ 剖面图 ©普罗建筑设计事务所
完整项目信息
设计单位:普罗建筑设计事务所 office PROJECT
主持建筑师:常可、李汶翰
设计团队:姜宏辉、赵建伟、蔡天、邹汶蓉、邹洁茹、陈纪元、冯超越、周舒宁、刘珺睿、刘宝霖
驻场建筑师:刘珺睿
业主单位:深圳市云端学校、深圳市龙岗区教育局
建设单位:深圳市龙岗区建筑工务署
室内方案设计:普罗建筑设计事务所
景观方案设计:普罗建筑设计事务所 + 郭逸原、杨隆、禹治凡、赖姬婷
标识方案设计:深圳技术大学创意设计学院参数化设计实验室
施工图设计团队:源筑工程设计有限公司
施工图建筑专业:孙红林、马跃、杨毅、钟适雅、周景昌、陈建丰、何梓鹏、夏卓彬
施工图结构专业:何竞锋、陈双、刘建明、李炜、黄伟彬
施工图给排水专业:顾宏、漆昕
施工图电气专业:张钢钢、徐国良、黎嘉文
施工图弱电智能化专业:李超华、黄清弘
施工图暖通专业:周燕萍、朱小鹏、付莹莹
施工图室内专业:陈伟勇、赵丹、冯激文、徐晓霞
施工图景观专业:刘平、凌汶文、周丽彩
施工图幕墙专业:李永福、李家焕
施工图标识专业:龙志强
绿建及海绵专业:江阳
全过程咨询公司:华东建筑设计研究院、深圳市合创建设工程顾问有限公司
基地面积:25664.86平方米
总建筑面积:58242.30平方米
项目设计/建设时间:2022年4月—2025年9月
建筑结构:混凝土框架结构
摄影:孔锦权、直角建筑摄影、张超
视频拍摄:直角建筑摄影

视觉 / 陈汝婷校对 / 原源
本文由普罗建筑设计事务所officePROJECT授权发布。欢迎转发,禁止以有方编辑版本转载












