


在树木静止的伫立中,时间沉淀下来。有些树比房子和人更年长,它们标记着停留与归属,也见证人与土地的联结。在LOFT 53,树木不仅是自然的留存,更是场所精神的载体。


▲场地鸟瞰© 樊钊明

▲项目概览© 潘绍清

▲项目概览© 潘绍清
项目前身是南山华侨城创意文化园的旧厂房,作为深圳的艺文高地,这里从不缺少奇思妙想与艺术能量。然而,在宏大叙事与网红打卡之外,面对园区二十年的积淀与变迁,我们思考:是否有一种空间,能更细腻地融入社区的肌理,更日常地滋养在地的创意生活?我们以人与土地的关系为起点,不颠覆重建,只让场地基因在当代语境中自然生长。这场改造,既是保留,更是连接。如今,这片底色之上应运而生的LOFT53街区——一个约4000㎡的小型商业综合体,正悄然织就一张连接社区、激发日常灵感的生活网络。

▲识别场地核心基因 © NUC studio




▲改造前后对比© 潘绍清、张超建筑摄影工作室、NUC studio

▲施工现场© NUC studio
改造后的LOFT53街区,由F3栋Smoo Market、E5栋mindpark创意公园、三条街道及一个口袋公园串联而成。整个街区将实现室内到室外的无缝贯通,融自然与日常于多元业态,打造一个集零售、轻食、集市、书店、办公于一体的文化消费目的地。其延续创意园基因,以崭新姿态与片区共生共长。不张扬,却足够扎实;体量精巧,却承载着丰富的可能性。——这里,是献给创意人群的日常客厅。

▲项目落位图© NUC studio

▲喧嚣之外,质感之内 © 潘绍清
01.
树下:生长的场所坐标
在LOFT 53南侧,菠萝蜜树与榕树是这片土地的原住民。漫长的夏季里,奔赴一片树荫,几乎成为身体的一种本能。而我们要做的,只是顺应这种本能,将商业的引流,转化为一种与自然节律合拍的生存经验。人们为一片荫凉而行至树下,无需思考,便与这棵树、这片阴凉建立了最直观的身体联系。

▲E5 mindpark创意公园树下客厅 © NUC studio

▲树作为锚点,引人自然而然地停留、相聚©张超建筑摄影工作室

▲F3 Smoo Market树下客厅 © NUC studio

▲树冠如天然穹顶,独立的个体在共享荫蔽中,悄然融合为社区© 潘绍清
以原生树木为坐标,退让空间,打开边界。树下作为户外客厅,设可坐护栏与城市家具,将个体的纳凉行为引向社区的公共生活——这里既是创意工作者的露天办公室,也是邻里偶遇交谈的据点。人们不再只是匆匆路过,而是自然而然地停留、相遇、交谈。


▲集成式树下坐凳与锁车立架© 潘绍清


▲树荫下的座椅与台阶融为一体© 潘绍清
02.
檐下:庇护的空间容器
檐下,是一种经典的“之间”状态,它拥有屋顶所带来的庇护感,却无墙体造成的封闭性。置身于此,能直观地感受到存在于一个地方的内部,同时与外部世界保持着身心的全然连接。

▲F3 Smoo market的屋檐之下 © 潘绍清
设计拂去尘埃,让场地的筋骨自然显现:拆除陈旧装饰,保留工业质感的钢构屋顶,还原建筑轮廓与框架;打通东西山墙,形成贯穿的自然风道与视觉长廊。大屋顶、原生树与山墙的韵律在“减法”中渐次清晰,铺就纯粹的空间叙事基底。随后,轻盈的商业模块被悄然嵌入其中。朴素的混凝土框架与通透的玻璃盒子相融共生,既遮蔽风雨,又引入天光,塑造出“檐下·树下”的灰空间体验。

▲去陈饰,留框架,通山墙,铺基底 © NUC studio






▲钢构大屋顶与“会呼吸”的山墙共同围合出一方天地,供商业模块轻盈地落位于其间 © 潘绍清、张超建筑摄影工作室、LOFT53

▲F3 Smoo Market室内细部:通风孔 © 张超建筑摄影工作室






▲屋檐出挑与混凝土柱列共同限定出半室外的“灰空间”,既是室内向外的延伸,也是自然向建筑的渗透 © LOFT53、潘绍清



▲F3 Smoo Market室外细部:檐口与雨水管 © 潘绍清
檐下空间,融合个人安全与社区公共性。它像一个容器,收集记忆,强化人与场所的情感。风与光是这里的主人——午后斜阳穿墙,投下变幻光斑;远方树影、落日沉静,皆可入怀。交谈、等待、节庆、市集……故事总在发生,它不规定内容,却暗示无限可能。当日常与记忆层层沉淀,地方经验便从无形走向有形,凝为文化。


▲屋檐底下的故事© 潘绍清
03.
边界:消隐与渗透之间
好的建筑是谦逊的,它甘愿做一处温润的背景,既是界定内外的秩序,也是一个通透的容器。当边界被温柔消解,建筑便退至幕后,将空间的主导权悄然交还给其中的使用者。


▲LOFT53的边界柔化:秩序的消解与重构 © 潘绍清
为此,我们拆除四围砖墙,将园区标志性红砖从室外地面延伸入内,视觉与动线自此贯通。建筑不再是封闭的容器,而成为城市公共领域的自然延续——行人无需刻意“进入”,便在不知不觉间,从城市的公共领域自然地“流动”至建筑中。


▲红砖的叙事延伸:模糊建筑与街道的界限© 潘绍清

▲E5栋Mindpark入口楼梯 © NUC studio


▲大台阶动线的温情引导:通过错步平台设计鼓励驻足与社交© 张超建筑摄影工作室、潘绍清


▲E5 Mindpark室内:咖啡吧台与多功能厅 © LOFT53




▲E5 Mindpark室内:书店 © 潘绍清、LOFT53
这种流动的目的,不仅是进入,更是探索。 F3栋Smoo Market转角处的镜面水景倒映天空,三角折墙则顺延了行人的视野,让街区的探索自然发生。死角空间被转化为充满张力的微型舞台,激活街区角落的活力。


▲建筑切角与水景© 潘绍清
探索的脚步不止于转角,更延伸至建筑之间的缝隙:F3栋Smoo Market与E5栋Mindpark之间的口袋公园为停驻交谈提供温度。这里不再是建筑间的空白地带,而成为柔软过渡的界面——既界定不同体量的建筑,又以开放姿态让两侧空间相互渗透,人们穿行其间,既是经过,也是停留。建筑之间的界限渐渐消融,空间的对话在步履穿行间被重新建立。

▲在最小干预原则下,口袋公园以轻柔的姿态激活了原本消极的建筑间隙© 潘绍清


▲在最小干预原则下,口袋公园以轻柔的姿态激活了原本消极的建筑间隙© 潘绍清
空间的活力由此被激发,而设计的克制则让这份活力得以从容生长。建筑的统一性并非来自强加的风格,而是通过一套克制的材质语言——朴素的混凝土、裸露的钢架、通透的玻璃为多样的商业内容设定了中性背景;细节之处的考量,如雨水管、门把手、室内外地面的粗糙度对比,皆是建造逻辑的真实呈现。在此框架下,店铺内部的白墙与混凝土形成微妙对比,活动式家具则允许空间形态被自由定义。




▲尊重并转化旧有肌理,使轻工业的原始感与现代感自然融合© 潘绍清
04.
留白:未完成的邀请
真正的丰富度,我们让渡给「内容」本身。这里不是目的地,而是「日日常新」的社区聚点。
设计不做功能的定义者,只做可能性的预设者:E5栋Mindpark二层加宽的阳台檐口(2.4米进深),自然成为咖啡花艺的露天教室、独立音乐人的迷你舞台,或冥想与迎接晨光的瑜伽台;口袋公园的可坐阶梯,既是午休放空的休憩点,也是周末市集与露天电影的发生器。墙面预埋的装配轨道、地面预留的电源接口被视作“生长接口”,静候未来的艺术装置、快闪店与社区共创事件在此发生。
弹性空间的核心,不在于形式的完整,而在于“清醒的不完整性”:我们设计的不是终点,而是一封持续书写的邀请函。商户的旗帜、孩童的粉笔画、居民的摄影展……这些由使用者共创的“轨迹”,才是空间真正的余韵。



▲加宽二层阳台檐口,提升景观视野,增加使用场景,同时拓展了1F商业经营空间 © LOFT53、潘绍清

▲E5栋Mindpark临时店铺盒子 © NUC studio


▲口袋公园串联F3栋Smoo Market及E5栋Mindpark两片区域,结合街道尺度拓展高频次市集经营空间 © LOFT53



▲人的活动在53街区肆意生长,悄然成为空间不可分割的部分 © 潘绍清、LOFT53
LOFT 53拒绝以夸张的形式制造转瞬即逝的“网红效应”,而是选择通过树下的自然锚定、檐下的诗意庇护、以及边界的消隐渗透,编织出一张坚实的“地方之网”。正如社区主理人所言,这是一种回归本质的城市更新之路:不止于建筑表皮的改造,更是社区活力的激发与城市人文精神的当代书写。最终,整个社区不再是一个抽象的概念,而成为可感知、可体验、可归属的“地方”。人们行走其间,无需理性反思,便能直观地感受到:我在这里,我属于这里。
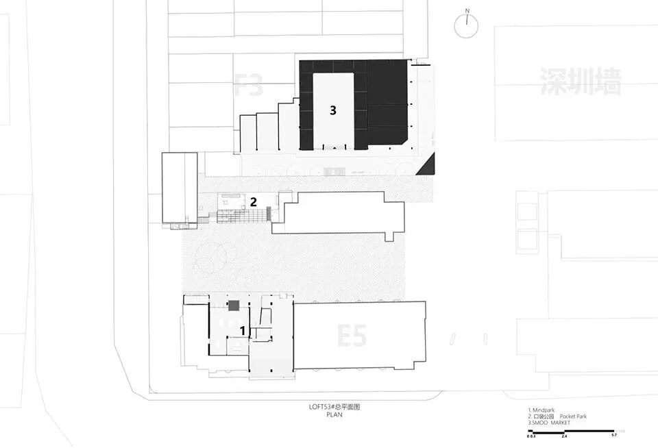
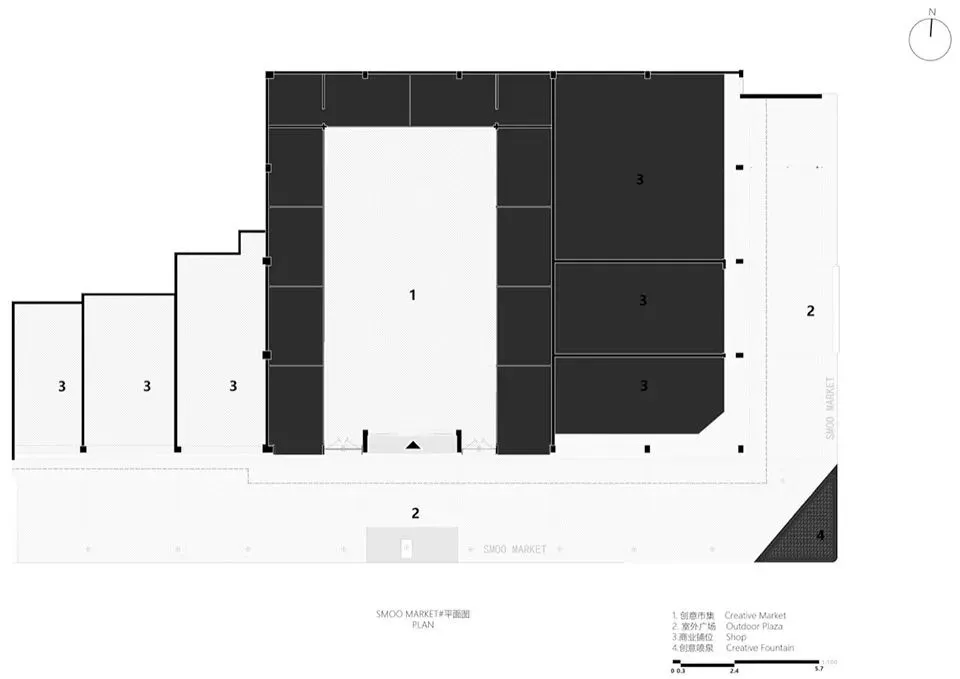
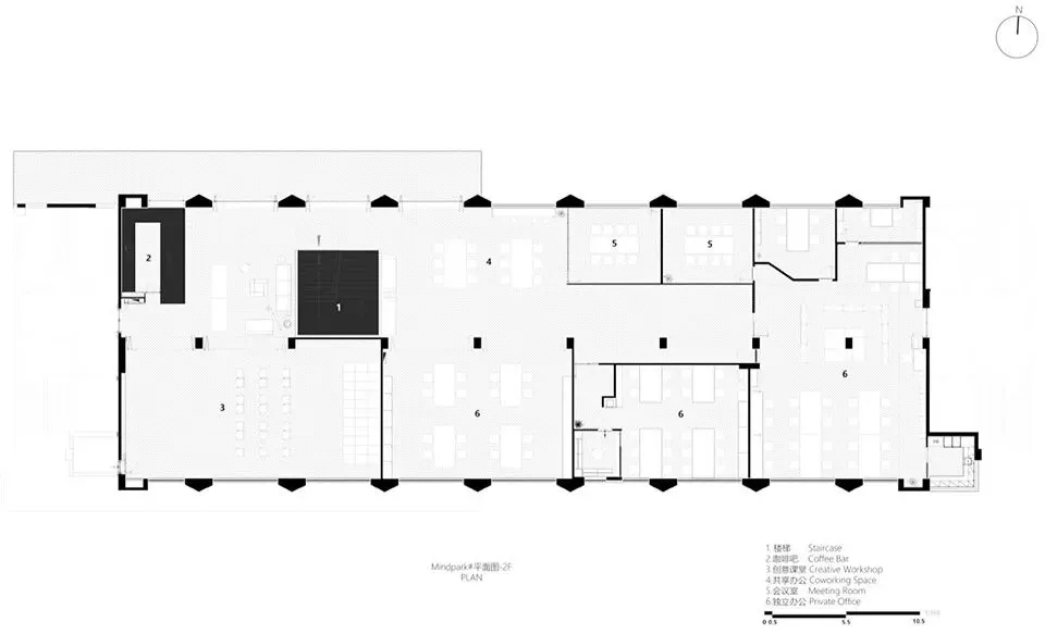
项目图纸

▲总平面图© NUC studio

▲F3栋Smoo Market底层平面图 © NUC studio

▲E5栋Mindpark底层平面图 © NUC studio

▲E5栋Mindpark二层平面图 © NUC studio

▲F3 Smoo Market南立面图© NUC studio

▲F3 Smoo Market东立面图© NUC studio

▲E5 Mindpark北立面图 © NUC studio

▲E5 Mindpark室内立面图 © NUC studio
项目名称:深圳华侨城创意园LOFT 53街区
END 联系我们:sheji2415 投稿邮箱:youtharch@163.com