具体位置在北环大道深云村正对面,周边自然资源丰富,可谓入则宁静出则繁华。不过由于周边的道路规划,以及山体和车辆段的阻隔,这个位置显得比较尴尬。
【开发商】深圳地铁置业集团有限公司【项目地址】南山安托山深安路
【交通】7号线(深云站);
(京港澳高速)、(北环大道)、(南坪快速)
【占地面积】21万㎡
【总建筑面积】75万㎡
【建筑类型(1期)】住宅、人才房、幼儿园
【物业公司】万科物业
【物业费】5.9元每平
【楼栋数】7栋
【总户数】744套(商品房)
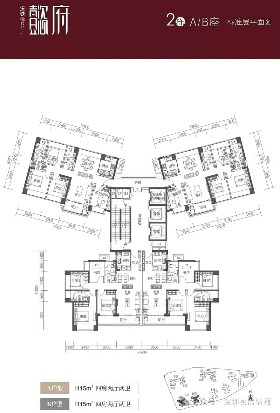
【产品面积段】建面约112-118㎡
【梯户比】2梯4户
【容积率】3.6
【层高】3.15米
【交楼时间】2023年1月
【产权年限】70年
一期只有一个面积段、两种户型,约115㎡,南北通透的4房和坐北朝南的4房。
深铁懿府一期小区距离西丽线(7号线)深云站正常步行约10-15分钟,若能从深云村小区里面走就会快点。
自驾方面,距离京港澳高速、南坪快速、北环大道,还有规划建设的侨城东路北延线贯穿西丽和滨海大道(预计2028年通车)。即使周边被快速路穿插,深铁懿府二期、深云村也能完美为深铁懿府一期阻隔了噪音和灰尘影响。自驾到海边、香蜜湖与高新园等繁华地带需十来分钟,交通非常便利,就是路线都有点绕,必须转个弯才到。
项目自带社区商业,位于深铁懿府二期楼下,叫睿印里。深云村大门口的超市,体量虽然不大,不过基本能满足生活需求。
或者坐一站地铁到安托山站点万科里或桃源村站到岁宝百货,再远点就华侨城天鹅湖三期楼下或香蜜湖点山姆会员店
对应学校为九年制的育才实验学校可见文中我拍的视频公园资源方面,小区南边拥有安托山文博园,规划有登山口,可以连通福田区的安托山片区。买房不论是自住还是投资,都需要有对未来的憧憬和预期。「深铁懿府」虽然板块相对割裂,不过能带来容积率低、环境幽静的舒适自住环境。伴随着周边规划一一兑现,相信居住体验会有不少提升空间。小区有总高29层、41层、43层;29层的是两梯四户,41、43层为三梯四户
06 楼盘环境
看房长按二维码