深圳【中信信悦湾】
售楼中心电话:19535989810 【售楼处潘经理】
预约看房,置业顾问一对一对接,享受额外优惠!
在售户型图丨项目介绍丨房源丨_周边配套丨详细解答
丨楼盘资料
开发商售楼处直销_欢迎来电预约享受内部折扣_恭迎品鉴〢
温馨提示:看房需提前预约,感谢您的配合!
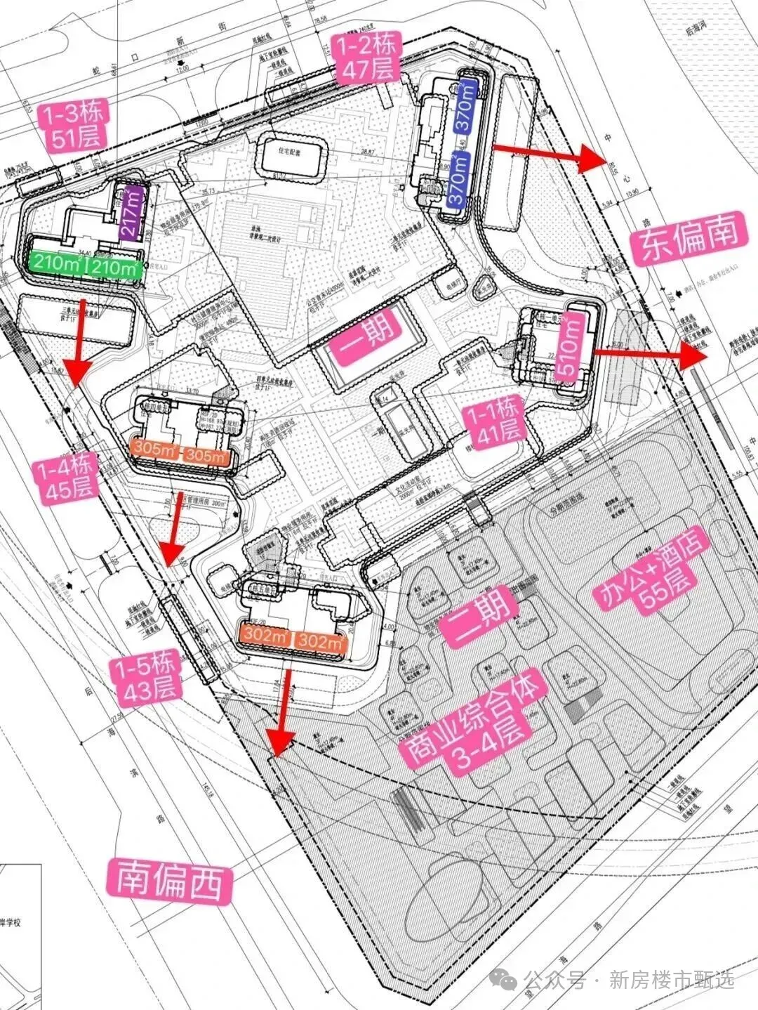
- 户型面积涵盖约211-218㎡、302-305㎡、370-375㎡、510-519㎡,另有4套518-655-938㎡顶复户型。
- 所有户型均为大平层设计,无“高低配”,注重空间通透性和景观视野,部分户型设有保姆套间、多阳台设计。
折后实际成交均价约20万元/㎡
- 510㎡户型为3梯1户;
- 370㎡户型为5梯2户;
- 302-305㎡户型为3梯2户;
- 211-218㎡户型为4梯3户。
中信信悦湾,东角头项作为深圳湾的绝版地段,拥有深圳湾公园的一线海景。北临翡翠海岸、澳城花园等成熟小区,西侧是蛇口山公园,南侧一墙之隔就是“深圳歌剧院”,在这些顶级配套的加持下可以说打遍市场无敌手了。
中信信悦湾,位于南山区蛇口望海路与后海滨路交汇处,三面环海,南侧与在建的深圳歌剧院仅一路之隔,东侧远眺深圳湾及香港天际线,西侧紧邻蛇口山公园。中信深圳湾规划总建筑面积约39.6万㎡、占地面积约约11万㎡、总户数约2000户,容积率为3.56,将建成涵盖约26.9万㎡的住宅、4.4万㎡的商业、4万㎡酒店以及2.6万㎡的办公等多种业态的大型综合体,并配建18班幼儿园,总货值超700亿。
中信元湾府(推广名:中信信悦湾)
位于深圳市南山区蛇口望海路与后海滨路交汇处,以下是其基础信息
- 开发商:中信城开
- 占地面积:约4.4万平方米
- 总建筑面积:约31.8万平方米
- 产权年限:70年(2023-2093年)
- 总户数:约422户
- 户型面积:210-510平方米(主力户型为210㎡、305㎡、370㎡、510㎡)
- 梯户比:3梯1户、3梯2户、4梯3户、5梯2户
- 容积率:约4.6-5.5(因分期与统计口径差异)
- 绿化率:约30%
- 交付标准:精装修
- 物业费:预计不低于9.8元/㎡/月
- 车位配比:约1:2(共938个车位)
- 楼层高度:43-51层
- 层高:3.3-3.6米
- 交楼时间:预计2028年交付
- 位于蛇口国际海洋城、后海总部基地、深圳湾超级总部三大核心规划交汇处,周边聚集招商银行、大疆、中兴通讯、京东、腾讯等20余家世界500强及行业领军企业总部,形成强大的产业集聚效应。
- 项目自带约6000㎡商业空间,满足基本购物需求。
- 3.5公里范围内有深圳湾万象城、宝能太古城、海上世界、来福士广场等大型商业中心。
- 1公里范围内有海岸学校(在建中,办学规模54班,小学36班、初中18班,传闻可能纳入南二外集团)、海岸小学、深圳湾学校南校区、南山外国语学校集团滨海小学。
- 项目配建18班幼儿园,满足业主子女教育需求。
- 地铁:临近地铁2号线东角头站(约700米),在建的地铁13号线歌剧院站(预计2025年通车)距离项目约355米,1站到深圳湾公园,4站到后海。
- 自驾:望海路、后海滨路可快速连接前海、宝中,深圳湾口岸2站直达香港。

1A栋 | 云端独尊,终极藏品 (约510㎡)
一层一户,纯粹顶豪:整层仅您一户,独享约510㎡的恢弘空间,私密性登峰造极。
地标高度 (165.77米/43F):傲立云端,俯瞰深圳湾壮阔全景与繁华城景。
3梯1户:专属电梯厅与极致高效的3部电梯服务,归家即是尊崇礼遇。这是为城市领袖、世家大族打造的空中行宫,是身份与品味的终极象征。

1B栋 | 层峰之选,宽境人生 (约375㎡)
一层两户,奢适大平层:约375㎡的阔绰尺度,保障居住舒适度与私密感。
至臻高度 (180.17米/47F):视野更为开阔,景观资源得天独厚。
5梯2户:近乎私梯的配置(平均2.5梯服务1户),出行便捷无忧。适合追求极致空间体验与顶级服务的家族或精英领袖。

1D & 1E栋 | 经典大宅,均衡臻品 (约310㎡)
一层两户,经典大平层:约285㎡主力户型,空间布局方正大气,功能完备。
卓越高度 (1D:182.77米/49F; 1E:161.77米/43F):依然拥有俯瞰城市的资本。
3梯2户:梯户比优越(平均1.5梯服务1户),日常高效便捷。是城市精英家庭享受高品质生活的理想居所,尺度与实用性完美平衡。

1C栋 | 精致舒居,轻奢之享 (约210㎡)
一层三户,舒适户型:约195㎡精致空间,设计精巧,满足高端改善需求。
天际高度 (192.42米/54F):项目最高点,视野无与伦比。
4梯3户:高效配置,保障出行便利。为追求品质生活、青睐核心地段与绝佳视野的新贵阶层,提供了更具性价比的入场券。
售楼中心电话:19535989810 【售楼处潘经理】
预约看房,置业顾问一对一对接,享受额外优惠!
在售户型图丨项目介绍丨房源丨_周边配套丨详细解答
丨楼盘资料
开发商售楼处直销_欢迎来电预约享受内部折扣_恭迎品鉴〢
温馨提示:看房需提前预约,感谢您的配合!
免责声明:本文部分内容来自网络,如无意中侵犯了某方的知识产权,告之即删。