

2025年11月4日,深圳前海首个国际人才社区——珑湾国际人才公寓正式启用,总建筑面积15万平方米,规划1028套高端人才住房,面向在前海注册或实际经营的法人机构中的外籍人才、港澳台人才、高级管理人才及高端专业人才开放申请。
项目位于前海桂湾核心区,自带1.2万平方米商业配套,引入香港逸兰酒店及管理团队,提供酒店式服务。社区每层均设空中共享空间,配齐国际品牌家私家电,提供布草、清洁、健身、网络等一站式服务。服务团队提供中、英、粤三语支持,租赁与管理系统同步搭载中英文界面,实现与国际人才零障碍沟通,全面升级居住体验。



启用当日同步启动常态化配租,首批开放T2栋544套服务式公寓,户型涵盖75㎡一房、88㎡1+1房及150㎡三房,月租统一155.9元/㎡。



该建筑由福斯特建筑事务所(Foster + Partners)设计,两座相连的塔楼呈扇形布局,以优化视野和采光,在外围半径处最大程度保障私密性,并在规划的中心区域打造集中的公共活动空间。



两座公寓塔楼高达 180 米,通过一座大型半公共花园相连,该花园与周边绿地相接,在地面层拓展了项目的体验空间。二层的露台与桂湾的高架步行系统无缝衔接,为周边地块提供了过渡空间,并为公众打造了一处城市绿洲。


塔楼的空中花园是全体居民共享的空间。这里可俯瞰整个城市的壮丽景色,还可举办各类活动,如健身课程和精心策划的特色活动。


公寓单元设计极为灵活,未来可进行合并。模块化施工实现了预制装配,节省了时间并确保了质量控制。该项目通过在施工中尽量减少混凝土的使用,降低了隐含碳排放。整个地上超高层结构均采用轻型钢材,并在附近地区制造。建筑幕墙也最大化的采用了由工厂生产组装的预制单元模块系统。



总平面图

一层零售区域平面图
地下一层(B1)零售通道平面图

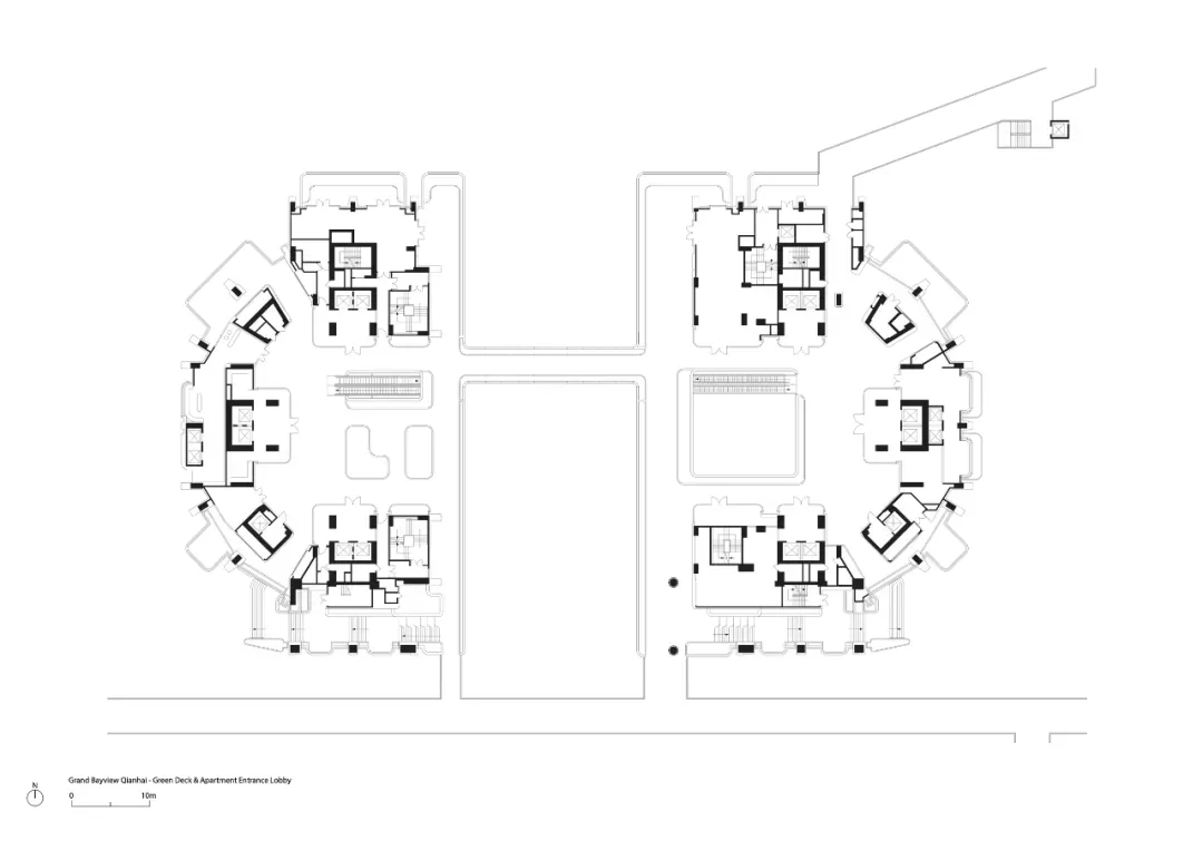
绿化平台及公寓入口大堂平面图

标准层住宅平面图

屋顶层平面图

剖面图

立面图
建筑机构|Foster + Partners
项目地址|深圳 前海
项目年份|2025 年
项目面积|96000㎡
设计团队|Luke Fox, 叶沛珩
建筑摄影|Nigel Young


