当前位置:首页>深圳>深圳300套保租房即将配租,精装交付+地铁口+单房 900 拎包住

深圳300套保租房即将配租,精装交付+地铁口+单房 900 拎包住

  • 2026-05-14 10:48:33
深圳300套保租房即将配租,精装交付+地铁口+单房 900 拎包住

点击上方蓝字关注我们

保租房/深圳入户 

最新消息

🏠

最近后台收到好多小伙伴的私信,

都在问深圳保租房的事儿。

说实话,在深圳找房确实压力不小,

尤其是刚来深圳打拼的朋友,

房租都快赶上工资的一半了😭

不过今天给大家带来一个好消息!

宝安海岚居项目要推出333套保障性租赁房了

而且预计今年内就会启动配租!

作为一个过来人,

我觉得有必要好好给大家介绍一下这个项目,

毕竟这可是实打实的福利房啊~

🏠

保租房丨宝安区

 社保、户籍、住房各项条件 

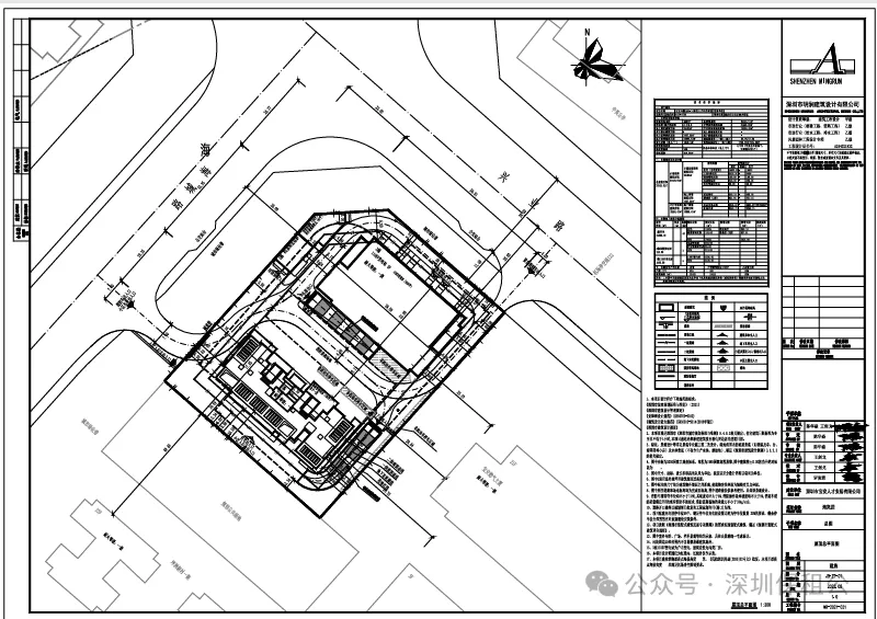
📍 项目在哪?位置好不好?

海岚居就在宝安区西乡街道,兴业路和海城路交汇处东南角。这位置真的不错,周边都是成熟的居民区:

  • 东北边就是中英公学

  • 西北和西南是坪洲新村

  • 东南是宝安燃气大厦

虽然地块不大(约4687㎡),但建了40层高,容积率5.2,充分利用了土地资源。周边还有垃圾转运站、变电站这些市政配套,生活很方便。

房子怎么样?有啥户型?

这次一共333套房源,全部精装修交付,拎包就能入住!户型有三种:

🟢 单房(约39㎡):独立厨卫,还有飘窗设计,特别适合单身青年或者刚入职场的年轻人。这批房源最多,占了60%,大概200套左右。

🟠 两房(约69㎡):两室一厅一卫,客厅带阳台,卧室带飘窗,适合情侣或者小家庭。占了28.8%,约96套。

🔴 三房(约89㎡):三室一厅一卫,全明格局,采光特别好,适合三口之家或者有老人帮忙带娃的家庭。占了11.2%,约37套。

房子的设计也很用心,动线合理,没有浪费空间,而且隔音隔热效果比老旧小区好太多了!

租金多少?能便宜多少?

租金只要周边市场价的六折左右!具体来看:

  • 单房:约900元/月

  • 两房:约1600元/月

  • 三房:约2050元/月

  • 物业费:3.5-3.9元/㎡

给大家算笔账,周边同样的两房商品房,租金大概在3500-4500元,住海岚居的话每月能省下2000多块!一年下来就是两万多,够买个大件了🤑

谁可以申请?条件高不高?

这个问题大家最关心!海岚居面向的是新市民、青年人才和在深圳长期工作的人不限户籍哦!

具体来说,这几类人可以重点关注:

✅ 刚来深圳的年轻职场新人✅ 外地来深的人才✅ 自由职业者、个体户✅ 首次置业压力大的家庭

租期稳定,1-3年可以续租,不用担心房东突然卖房或者涨租金,特别适合长期居住。

房子品质咋样?有啥亮点?

这可不是普通的房子,是深圳市2023年度智能建造试点项目采用装配式+现浇结合工艺,绿色低碳环保。

建筑地上40层,地下3层,高度约120米抗震防火都符合国家超高层住宅标准。功能分区很合理:

  • 地下3层:停车库、设备房

  • 地上1-2层:社区公共配套

  • 3-40层:住宅区,动静分区不吵闹

地下有170个停车位,还有非机动车停放区,绿化率约20%,包含屋顶绿化、林下空间和公共绿地。

周边配套咋样?生活方便吗?

配套真的超级完善! 我给大家分类列一下:

🏪 生活便利

  • 社区服务站、快递驿站、便民超市、自助洗衣房

  • 24小时智能快递柜

  • 保洁、维修、安保、绿化等物业服务都有

🏃 休闲健身

  • 儿童游乐区、成人健身区

  • 林下休闲步道、公共会客厅

🔒 安全智能

  • 24小时视频监控、人脸识别门禁

  • 智能电梯、消防自动报警系统

  • 精装修交付,全屋预装空调

📚 教育资源

  • 幼儿园:新蕾幼儿园、富通城幼儿园、宝安第十幼儿园

  • 小学:坪洲小学、宝安小学

  • 中学:宝安第一外国语学校初中部、新安中学

  • 国际教育:中英公学(幼儿园到高中一体化)

🏥 医疗资源

  • 宝安妇幼保健院、宝安中心医院

  • 社区健康服务中心,步行就能到

🛍️ 商业配套

  • 大型商场:时代城、前海壹方城、欢乐港湾

  • 社区商业:便利店、生鲜超市、餐饮门店齐全

  • 临近企业:腾讯未来科技城、宝安中心区、前海合作区

🌳 生态休闲

  • 社区内有儿童游乐区、健身区、休闲步道

  • 周边有西乡公园、坪洲公园、碧海湾公园

  • 临近西湾红树林,散步、骑行、观海都很方便

交通方便吗?上班通勤咋样?

交通超级便利! 地铁、公交、自驾都很方便:

🚇 地铁

  • 15号线海城站,步行3分钟就能到!

  • 1号线坪洲站,步行或骑行1.2公里

  • 11号线宝体站、碧海湾站,车程约2.2公里

  • 远期还有28号线接驳,出行会更方便

🛣️ 自驾

  • 紧邻广深沿江高速、宝安大道、兴业路、海城路

  • 自驾10分钟上高速,20分钟到前海,30分钟到福田

🚌 公交

  • B826、M153、M375、M483、M484、M558等多路公交

  • 步行3分钟就能到公交站

  • 支持共享单车、电动车接驳

赶紧准备资料打“仗”

如果怕自己错过房源的

或者搞不懂申请流程的

直接扫码添加专业老师,我们来帮您

🏠

入深户丨补贴好处

 保租房、户籍、住房各项条件 

🔍01|保租房快速上车 

想在深圳租到又好又便宜的保障房?那你得先弄懂这个 “排队规则” ,不然傻等半天,可能连号都摇不上!

🏆 第一队列:优先组

  • 条件: 拥有光明区户籍 + 3年深圳社保

  • 优势: 不仅能优先挑选,中签率也高出很多!

📝 第二、三队列:普通组

  • 情况: 非深户的朋友在这里排队。

  • 注意: 要等第一队列全部选完,才到第二、三队列。

💡如果你打算长期在深圳发展,别光等着摇号了!尽早落户深圳,才是真正靠谱的捷径——不仅能锁定保障房优先资格,将来孩子上学、家人看病等福利也跟着一步到位。早落户,早受益,少走弯路!

🔍02|深圳公租房快速“插队”上车! 

福田、南山这些热门区早就挤破头了!申请的人多到离谱,排队周期动辄就是七八年,等得起的真没几个!

但别慌,教你一招曲线救国 ——

把申请区域换成光明、坪山、盐田、大鹏这些竞争小的区域,效果直接拉满!

这样下来:

1.市级排名压根不受影响

2.区内排名能显著往前冲

3.进入可分配房源的速度肉眼可见变快

4.关键还完全不耽误平时工作和日常生活,妥妥的省时又省心!

🔍03|深圳公租房退库补贴 

📊各区参考(月度)2025年已结束,2026年预计6月开始申请

📌 南山补贴高但竞争激烈,罗湖、宝安更容易申请

🔍04|深圳积分入学 

🏠 积分差距,一目了然

  • 区买房:深户105分,非深户只有75分
  • 区租房:深户95分,非深户仅60分

⏱ 时间也是分数,越久越加分

✅ 入户时间越长,积分越多✅ 社保缴得越久,分数越高

🎓 中考差别深户录取线普遍低于非深户,更易考入优质学校。

想在深圳长期发展

想要快速申请上保租房

公租房这一类的划算实惠房

小孩上公立学校

可以选择入户深圳!

如果不知道具体怎么操作

可以扫描下方二维码咨询专业老师

保租公全程委托代办服务

    无法实时关注最新状况,或觉得流程过于繁琐,可委托保租公全程代办,省心省力。保租房量大、门槛低,但核心区房源依然靠抢!建议早准备、多关注官方渠道,结合自己通勤和预算选房。

↓↓↓↓↓↓↓↓↓↓↓↓↓↓↓↓↓↓↓↓↓↓↓↓↓↓↓↓↓↓↓↓↓↓↓↓↓

长按添加好友

一键申请保租房

保租公 官方客服

保租公:助力深圳新市民圆梦 “第一套房”,独家推出1V1个性化需求的一站式服务模式。为什么要选保租房?保租房的摇号机制,大大缩短了获取住房机会的等待周期,让那原本看似遥远的家的梦想,能够以更快的速度降临到我们身边。“保租公”倾尽全力为新市民搭建起一座通往理想家园的坚实桥梁,让我们能够紧紧抓住这些来之不易的机会,顺利选到心仪的住所。

最新文章

随机文章

基本 文件 流程 错误 SQL 调试
  1. 请求信息 : 2026-05-31 08:07:53 HTTP/2.0 GET : https://c.460.net.cn/a/544604.html
  2. 运行时间 : 0.113964s [ 吞吐率:8.77req/s ] 内存消耗:4,498.13kb 文件加载:140
  3. 缓存信息 : 0 reads,0 writes
  4. 会话信息 : SESSION_ID=90f6fd5ec1ac71b578b441abeca1b38e
  1. /yingpanguazai/ssd/ssd1/www/c.460.net.cn/public/index.php ( 0.79 KB )
  2. /yingpanguazai/ssd/ssd1/www/c.460.net.cn/vendor/autoload.php ( 0.17 KB )
  3. /yingpanguazai/ssd/ssd1/www/c.460.net.cn/vendor/composer/autoload_real.php ( 2.49 KB )
  4. /yingpanguazai/ssd/ssd1/www/c.460.net.cn/vendor/composer/platform_check.php ( 0.90 KB )
  5. /yingpanguazai/ssd/ssd1/www/c.460.net.cn/vendor/composer/ClassLoader.php ( 14.03 KB )
  6. /yingpanguazai/ssd/ssd1/www/c.460.net.cn/vendor/composer/autoload_static.php ( 4.90 KB )
  7. /yingpanguazai/ssd/ssd1/www/c.460.net.cn/vendor/topthink/think-helper/src/helper.php ( 8.34 KB )
  8. /yingpanguazai/ssd/ssd1/www/c.460.net.cn/vendor/topthink/think-validate/src/helper.php ( 2.19 KB )
  9. /yingpanguazai/ssd/ssd1/www/c.460.net.cn/vendor/topthink/think-orm/src/helper.php ( 1.47 KB )
  10. /yingpanguazai/ssd/ssd1/www/c.460.net.cn/vendor/topthink/think-orm/stubs/load_stubs.php ( 0.16 KB )
  11. /yingpanguazai/ssd/ssd1/www/c.460.net.cn/vendor/topthink/framework/src/think/Exception.php ( 1.69 KB )
  12. /yingpanguazai/ssd/ssd1/www/c.460.net.cn/vendor/topthink/think-container/src/Facade.php ( 2.71 KB )
  13. /yingpanguazai/ssd/ssd1/www/c.460.net.cn/vendor/symfony/deprecation-contracts/function.php ( 0.99 KB )
  14. /yingpanguazai/ssd/ssd1/www/c.460.net.cn/vendor/symfony/polyfill-mbstring/bootstrap.php ( 8.26 KB )
  15. /yingpanguazai/ssd/ssd1/www/c.460.net.cn/vendor/symfony/polyfill-mbstring/bootstrap80.php ( 9.78 KB )
  16. /yingpanguazai/ssd/ssd1/www/c.460.net.cn/vendor/symfony/var-dumper/Resources/functions/dump.php ( 1.49 KB )
  17. /yingpanguazai/ssd/ssd1/www/c.460.net.cn/vendor/topthink/think-dumper/src/helper.php ( 0.18 KB )
  18. /yingpanguazai/ssd/ssd1/www/c.460.net.cn/vendor/symfony/var-dumper/VarDumper.php ( 4.30 KB )
  19. /yingpanguazai/ssd/ssd1/www/c.460.net.cn/vendor/topthink/framework/src/think/App.php ( 15.30 KB )
  20. /yingpanguazai/ssd/ssd1/www/c.460.net.cn/vendor/topthink/think-container/src/Container.php ( 15.76 KB )
  21. /yingpanguazai/ssd/ssd1/www/c.460.net.cn/vendor/psr/container/src/ContainerInterface.php ( 1.02 KB )
  22. /yingpanguazai/ssd/ssd1/www/c.460.net.cn/app/provider.php ( 0.19 KB )
  23. /yingpanguazai/ssd/ssd1/www/c.460.net.cn/vendor/topthink/framework/src/think/Http.php ( 6.04 KB )
  24. /yingpanguazai/ssd/ssd1/www/c.460.net.cn/vendor/topthink/think-helper/src/helper/Str.php ( 7.29 KB )
  25. /yingpanguazai/ssd/ssd1/www/c.460.net.cn/vendor/topthink/framework/src/think/Env.php ( 4.68 KB )
  26. /yingpanguazai/ssd/ssd1/www/c.460.net.cn/app/common.php ( 0.03 KB )
  27. /yingpanguazai/ssd/ssd1/www/c.460.net.cn/vendor/topthink/framework/src/helper.php ( 18.78 KB )
  28. /yingpanguazai/ssd/ssd1/www/c.460.net.cn/vendor/topthink/framework/src/think/Config.php ( 5.54 KB )
  29. /yingpanguazai/ssd/ssd1/www/c.460.net.cn/config/app.php ( 0.95 KB )
  30. /yingpanguazai/ssd/ssd1/www/c.460.net.cn/config/cache.php ( 0.78 KB )
  31. /yingpanguazai/ssd/ssd1/www/c.460.net.cn/config/console.php ( 0.23 KB )
  32. /yingpanguazai/ssd/ssd1/www/c.460.net.cn/config/cookie.php ( 0.56 KB )
  33. /yingpanguazai/ssd/ssd1/www/c.460.net.cn/config/database.php ( 2.47 KB )
  34. /yingpanguazai/ssd/ssd1/www/c.460.net.cn/vendor/topthink/framework/src/think/facade/Env.php ( 1.67 KB )
  35. /yingpanguazai/ssd/ssd1/www/c.460.net.cn/config/filesystem.php ( 0.61 KB )
  36. /yingpanguazai/ssd/ssd1/www/c.460.net.cn/config/lang.php ( 0.91 KB )
  37. /yingpanguazai/ssd/ssd1/www/c.460.net.cn/config/log.php ( 1.35 KB )
  38. /yingpanguazai/ssd/ssd1/www/c.460.net.cn/config/middleware.php ( 0.19 KB )
  39. /yingpanguazai/ssd/ssd1/www/c.460.net.cn/config/route.php ( 1.89 KB )
  40. /yingpanguazai/ssd/ssd1/www/c.460.net.cn/config/session.php ( 0.57 KB )
  41. /yingpanguazai/ssd/ssd1/www/c.460.net.cn/config/trace.php ( 0.34 KB )
  42. /yingpanguazai/ssd/ssd1/www/c.460.net.cn/config/view.php ( 0.82 KB )
  43. /yingpanguazai/ssd/ssd1/www/c.460.net.cn/app/event.php ( 0.25 KB )
  44. /yingpanguazai/ssd/ssd1/www/c.460.net.cn/vendor/topthink/framework/src/think/Event.php ( 7.67 KB )
  45. /yingpanguazai/ssd/ssd1/www/c.460.net.cn/app/service.php ( 0.13 KB )
  46. /yingpanguazai/ssd/ssd1/www/c.460.net.cn/app/AppService.php ( 0.26 KB )
  47. /yingpanguazai/ssd/ssd1/www/c.460.net.cn/vendor/topthink/framework/src/think/Service.php ( 1.64 KB )
  48. /yingpanguazai/ssd/ssd1/www/c.460.net.cn/vendor/topthink/framework/src/think/Lang.php ( 7.35 KB )
  49. /yingpanguazai/ssd/ssd1/www/c.460.net.cn/vendor/topthink/framework/src/lang/zh-cn.php ( 13.70 KB )
  50. /yingpanguazai/ssd/ssd1/www/c.460.net.cn/vendor/topthink/framework/src/think/initializer/Error.php ( 3.31 KB )
  51. /yingpanguazai/ssd/ssd1/www/c.460.net.cn/vendor/topthink/framework/src/think/initializer/RegisterService.php ( 1.33 KB )
  52. /yingpanguazai/ssd/ssd1/www/c.460.net.cn/vendor/services.php ( 0.14 KB )
  53. /yingpanguazai/ssd/ssd1/www/c.460.net.cn/vendor/topthink/framework/src/think/service/PaginatorService.php ( 1.52 KB )
  54. /yingpanguazai/ssd/ssd1/www/c.460.net.cn/vendor/topthink/framework/src/think/service/ValidateService.php ( 0.99 KB )
  55. /yingpanguazai/ssd/ssd1/www/c.460.net.cn/vendor/topthink/framework/src/think/service/ModelService.php ( 2.04 KB )
  56. /yingpanguazai/ssd/ssd1/www/c.460.net.cn/vendor/topthink/think-trace/src/Service.php ( 0.77 KB )
  57. /yingpanguazai/ssd/ssd1/www/c.460.net.cn/vendor/topthink/framework/src/think/Middleware.php ( 6.72 KB )
  58. /yingpanguazai/ssd/ssd1/www/c.460.net.cn/vendor/topthink/framework/src/think/initializer/BootService.php ( 0.77 KB )
  59. /yingpanguazai/ssd/ssd1/www/c.460.net.cn/vendor/topthink/think-orm/src/Paginator.php ( 11.86 KB )
  60. /yingpanguazai/ssd/ssd1/www/c.460.net.cn/vendor/topthink/think-validate/src/Validate.php ( 63.20 KB )
  61. /yingpanguazai/ssd/ssd1/www/c.460.net.cn/vendor/topthink/think-orm/src/Model.php ( 23.55 KB )
  62. /yingpanguazai/ssd/ssd1/www/c.460.net.cn/vendor/topthink/think-orm/src/model/concern/Attribute.php ( 21.05 KB )
  63. /yingpanguazai/ssd/ssd1/www/c.460.net.cn/vendor/topthink/think-orm/src/model/concern/AutoWriteData.php ( 4.21 KB )
  64. /yingpanguazai/ssd/ssd1/www/c.460.net.cn/vendor/topthink/think-orm/src/model/concern/Conversion.php ( 6.44 KB )
  65. /yingpanguazai/ssd/ssd1/www/c.460.net.cn/vendor/topthink/think-orm/src/model/concern/DbConnect.php ( 5.16 KB )
  66. /yingpanguazai/ssd/ssd1/www/c.460.net.cn/vendor/topthink/think-orm/src/model/concern/ModelEvent.php ( 2.33 KB )
  67. /yingpanguazai/ssd/ssd1/www/c.460.net.cn/vendor/topthink/think-orm/src/model/concern/RelationShip.php ( 28.29 KB )
  68. /yingpanguazai/ssd/ssd1/www/c.460.net.cn/vendor/topthink/think-helper/src/contract/Arrayable.php ( 0.09 KB )
  69. /yingpanguazai/ssd/ssd1/www/c.460.net.cn/vendor/topthink/think-helper/src/contract/Jsonable.php ( 0.13 KB )
  70. /yingpanguazai/ssd/ssd1/www/c.460.net.cn/vendor/topthink/think-orm/src/model/contract/Modelable.php ( 0.09 KB )
  71. /yingpanguazai/ssd/ssd1/www/c.460.net.cn/vendor/topthink/framework/src/think/Db.php ( 2.88 KB )
  72. /yingpanguazai/ssd/ssd1/www/c.460.net.cn/vendor/topthink/think-orm/src/DbManager.php ( 8.52 KB )
  73. /yingpanguazai/ssd/ssd1/www/c.460.net.cn/vendor/topthink/framework/src/think/Log.php ( 6.28 KB )
  74. /yingpanguazai/ssd/ssd1/www/c.460.net.cn/vendor/topthink/framework/src/think/Manager.php ( 3.92 KB )
  75. /yingpanguazai/ssd/ssd1/www/c.460.net.cn/vendor/psr/log/src/LoggerTrait.php ( 2.69 KB )
  76. /yingpanguazai/ssd/ssd1/www/c.460.net.cn/vendor/psr/log/src/LoggerInterface.php ( 2.71 KB )
  77. /yingpanguazai/ssd/ssd1/www/c.460.net.cn/vendor/topthink/framework/src/think/Cache.php ( 4.92 KB )
  78. /yingpanguazai/ssd/ssd1/www/c.460.net.cn/vendor/psr/simple-cache/src/CacheInterface.php ( 4.71 KB )
  79. /yingpanguazai/ssd/ssd1/www/c.460.net.cn/vendor/topthink/think-helper/src/helper/Arr.php ( 16.63 KB )
  80. /yingpanguazai/ssd/ssd1/www/c.460.net.cn/vendor/topthink/framework/src/think/cache/driver/File.php ( 7.84 KB )
  81. /yingpanguazai/ssd/ssd1/www/c.460.net.cn/vendor/topthink/framework/src/think/cache/Driver.php ( 9.03 KB )
  82. /yingpanguazai/ssd/ssd1/www/c.460.net.cn/vendor/topthink/framework/src/think/contract/CacheHandlerInterface.php ( 1.99 KB )
  83. /yingpanguazai/ssd/ssd1/www/c.460.net.cn/app/Request.php ( 0.09 KB )
  84. /yingpanguazai/ssd/ssd1/www/c.460.net.cn/vendor/topthink/framework/src/think/Request.php ( 55.78 KB )
  85. /yingpanguazai/ssd/ssd1/www/c.460.net.cn/app/middleware.php ( 0.25 KB )
  86. /yingpanguazai/ssd/ssd1/www/c.460.net.cn/vendor/topthink/framework/src/think/Pipeline.php ( 2.61 KB )
  87. /yingpanguazai/ssd/ssd1/www/c.460.net.cn/vendor/topthink/think-trace/src/TraceDebug.php ( 3.40 KB )
  88. /yingpanguazai/ssd/ssd1/www/c.460.net.cn/vendor/topthink/framework/src/think/middleware/SessionInit.php ( 1.94 KB )
  89. /yingpanguazai/ssd/ssd1/www/c.460.net.cn/vendor/topthink/framework/src/think/Session.php ( 1.80 KB )
  90. /yingpanguazai/ssd/ssd1/www/c.460.net.cn/vendor/topthink/framework/src/think/session/driver/File.php ( 6.27 KB )
  91. /yingpanguazai/ssd/ssd1/www/c.460.net.cn/vendor/topthink/framework/src/think/contract/SessionHandlerInterface.php ( 0.87 KB )
  92. /yingpanguazai/ssd/ssd1/www/c.460.net.cn/vendor/topthink/framework/src/think/session/Store.php ( 7.12 KB )
  93. /yingpanguazai/ssd/ssd1/www/c.460.net.cn/vendor/topthink/framework/src/think/Route.php ( 23.73 KB )
  94. /yingpanguazai/ssd/ssd1/www/c.460.net.cn/vendor/topthink/framework/src/think/route/RuleName.php ( 5.75 KB )
  95. /yingpanguazai/ssd/ssd1/www/c.460.net.cn/vendor/topthink/framework/src/think/route/Domain.php ( 2.53 KB )
  96. /yingpanguazai/ssd/ssd1/www/c.460.net.cn/vendor/topthink/framework/src/think/route/RuleGroup.php ( 22.43 KB )
  97. /yingpanguazai/ssd/ssd1/www/c.460.net.cn/vendor/topthink/framework/src/think/route/Rule.php ( 26.95 KB )
  98. /yingpanguazai/ssd/ssd1/www/c.460.net.cn/vendor/topthink/framework/src/think/route/RuleItem.php ( 9.78 KB )
  99. /yingpanguazai/ssd/ssd1/www/c.460.net.cn/route/app.php ( 1.72 KB )
  100. /yingpanguazai/ssd/ssd1/www/c.460.net.cn/vendor/topthink/framework/src/think/facade/Route.php ( 4.70 KB )
  101. /yingpanguazai/ssd/ssd1/www/c.460.net.cn/vendor/topthink/framework/src/think/route/dispatch/Controller.php ( 4.74 KB )
  102. /yingpanguazai/ssd/ssd1/www/c.460.net.cn/vendor/topthink/framework/src/think/route/Dispatch.php ( 10.44 KB )
  103. /yingpanguazai/ssd/ssd1/www/c.460.net.cn/app/controller/Index.php ( 4.81 KB )
  104. /yingpanguazai/ssd/ssd1/www/c.460.net.cn/app/BaseController.php ( 2.05 KB )
  105. /yingpanguazai/ssd/ssd1/www/c.460.net.cn/vendor/topthink/think-orm/src/facade/Db.php ( 0.93 KB )
  106. /yingpanguazai/ssd/ssd1/www/c.460.net.cn/vendor/topthink/think-orm/src/db/connector/Mysql.php ( 5.44 KB )
  107. /yingpanguazai/ssd/ssd1/www/c.460.net.cn/vendor/topthink/think-orm/src/db/PDOConnection.php ( 52.47 KB )
  108. /yingpanguazai/ssd/ssd1/www/c.460.net.cn/vendor/topthink/think-orm/src/db/Connection.php ( 8.39 KB )
  109. /yingpanguazai/ssd/ssd1/www/c.460.net.cn/vendor/topthink/think-orm/src/db/ConnectionInterface.php ( 4.57 KB )
  110. /yingpanguazai/ssd/ssd1/www/c.460.net.cn/vendor/topthink/think-orm/src/db/builder/Mysql.php ( 16.58 KB )
  111. /yingpanguazai/ssd/ssd1/www/c.460.net.cn/vendor/topthink/think-orm/src/db/Builder.php ( 24.06 KB )
  112. /yingpanguazai/ssd/ssd1/www/c.460.net.cn/vendor/topthink/think-orm/src/db/BaseBuilder.php ( 27.50 KB )
  113. /yingpanguazai/ssd/ssd1/www/c.460.net.cn/vendor/topthink/think-orm/src/db/Query.php ( 15.71 KB )
  114. /yingpanguazai/ssd/ssd1/www/c.460.net.cn/vendor/topthink/think-orm/src/db/BaseQuery.php ( 45.13 KB )
  115. /yingpanguazai/ssd/ssd1/www/c.460.net.cn/vendor/topthink/think-orm/src/db/concern/TimeFieldQuery.php ( 7.43 KB )
  116. /yingpanguazai/ssd/ssd1/www/c.460.net.cn/vendor/topthink/think-orm/src/db/concern/AggregateQuery.php ( 3.26 KB )
  117. /yingpanguazai/ssd/ssd1/www/c.460.net.cn/vendor/topthink/think-orm/src/db/concern/ModelRelationQuery.php ( 20.07 KB )
  118. /yingpanguazai/ssd/ssd1/www/c.460.net.cn/vendor/topthink/think-orm/src/db/concern/ParamsBind.php ( 3.66 KB )
  119. /yingpanguazai/ssd/ssd1/www/c.460.net.cn/vendor/topthink/think-orm/src/db/concern/ResultOperation.php ( 7.01 KB )
  120. /yingpanguazai/ssd/ssd1/www/c.460.net.cn/vendor/topthink/think-orm/src/db/concern/WhereQuery.php ( 19.37 KB )
  121. /yingpanguazai/ssd/ssd1/www/c.460.net.cn/vendor/topthink/think-orm/src/db/concern/JoinAndViewQuery.php ( 7.11 KB )
  122. /yingpanguazai/ssd/ssd1/www/c.460.net.cn/vendor/topthink/think-orm/src/db/concern/TableFieldInfo.php ( 2.63 KB )
  123. /yingpanguazai/ssd/ssd1/www/c.460.net.cn/vendor/topthink/think-orm/src/db/concern/Transaction.php ( 2.77 KB )
  124. /yingpanguazai/ssd/ssd1/www/c.460.net.cn/vendor/topthink/framework/src/think/log/driver/File.php ( 5.96 KB )
  125. /yingpanguazai/ssd/ssd1/www/c.460.net.cn/vendor/topthink/framework/src/think/contract/LogHandlerInterface.php ( 0.86 KB )
  126. /yingpanguazai/ssd/ssd1/www/c.460.net.cn/vendor/topthink/framework/src/think/log/Channel.php ( 3.89 KB )
  127. /yingpanguazai/ssd/ssd1/www/c.460.net.cn/vendor/topthink/framework/src/think/event/LogRecord.php ( 1.02 KB )
  128. /yingpanguazai/ssd/ssd1/www/c.460.net.cn/vendor/topthink/think-helper/src/Collection.php ( 16.47 KB )
  129. /yingpanguazai/ssd/ssd1/www/c.460.net.cn/vendor/topthink/framework/src/think/facade/View.php ( 1.70 KB )
  130. /yingpanguazai/ssd/ssd1/www/c.460.net.cn/vendor/topthink/framework/src/think/View.php ( 4.39 KB )
  131. /yingpanguazai/ssd/ssd1/www/c.460.net.cn/vendor/topthink/framework/src/think/Response.php ( 8.81 KB )
  132. /yingpanguazai/ssd/ssd1/www/c.460.net.cn/vendor/topthink/framework/src/think/response/View.php ( 3.29 KB )
  133. /yingpanguazai/ssd/ssd1/www/c.460.net.cn/vendor/topthink/framework/src/think/Cookie.php ( 6.06 KB )
  134. /yingpanguazai/ssd/ssd1/www/c.460.net.cn/vendor/topthink/think-view/src/Think.php ( 8.38 KB )
  135. /yingpanguazai/ssd/ssd1/www/c.460.net.cn/vendor/topthink/framework/src/think/contract/TemplateHandlerInterface.php ( 1.60 KB )
  136. /yingpanguazai/ssd/ssd1/www/c.460.net.cn/vendor/topthink/think-template/src/Template.php ( 46.61 KB )
  137. /yingpanguazai/ssd/ssd1/www/c.460.net.cn/vendor/topthink/think-template/src/template/driver/File.php ( 2.41 KB )
  138. /yingpanguazai/ssd/ssd1/www/c.460.net.cn/vendor/topthink/think-template/src/template/contract/DriverInterface.php ( 0.86 KB )
  139. /yingpanguazai/ssd/ssd1/www/c.460.net.cn/runtime/temp/a3df6b94aede6ebd0d2926ccdfcd20d5.php ( 11.98 KB )
  140. /yingpanguazai/ssd/ssd1/www/c.460.net.cn/vendor/topthink/think-trace/src/Html.php ( 4.42 KB )
  1. CONNECT:[ UseTime:0.000479s ] mysql:host=127.0.0.1;port=3306;dbname=c460;charset=utf8mb4
  2. SHOW FULL COLUMNS FROM `fenlei` [ RunTime:0.000769s ]
  3. SELECT * FROM `fenlei` WHERE `fid` = 0 [ RunTime:0.000292s ]
  4. SELECT * FROM `fenlei` WHERE `fid` = 63 [ RunTime:0.000312s ]
  5. SHOW FULL COLUMNS FROM `set` [ RunTime:0.000623s ]
  6. SELECT * FROM `set` [ RunTime:0.000249s ]
  7. SHOW FULL COLUMNS FROM `article` [ RunTime:0.000712s ]
  8. SELECT * FROM `article` WHERE `id` = 544604 LIMIT 1 [ RunTime:0.000476s ]
  9. UPDATE `article` SET `lasttime` = 1780186073 WHERE `id` = 544604 [ RunTime:0.000688s ]
  10. SELECT * FROM `fenlei` WHERE `id` = 64 LIMIT 1 [ RunTime:0.000269s ]
  11. SELECT * FROM `article` WHERE `id` < 544604 ORDER BY `id` DESC LIMIT 1 [ RunTime:0.000536s ]
  12. SELECT * FROM `article` WHERE `id` > 544604 ORDER BY `id` ASC LIMIT 1 [ RunTime:0.000524s ]
  13. SELECT * FROM `article` WHERE `id` < 544604 ORDER BY `id` DESC LIMIT 10 [ RunTime:0.000948s ]
  14. SELECT * FROM `article` WHERE `id` < 544604 ORDER BY `id` DESC LIMIT 10,10 [ RunTime:0.001427s ]
  15. SELECT * FROM `article` WHERE `id` < 544604 ORDER BY `id` DESC LIMIT 20,10 [ RunTime:0.001186s ]
0.116833s