
今年核心地段最有看头之一观潮府,该项目由招商+华润两大巨头联袂操刀,这几乎等同于“品质保障”的代名词。这两大开发商都是深圳打造过不少标杆豪宅,每一个都是深受市场喜爱,像华润的润玺,悦府,澐玺,招商的双玺,招商玺,后海玺等标杆项目,观潮府当前营销团队已陆续进场,种种迹象表明,这绝非普通住宅,而是剑指宝中顶豪序列的战略之作。
深圳宝中的南街坊项目,规划图在去年11月也出街了。
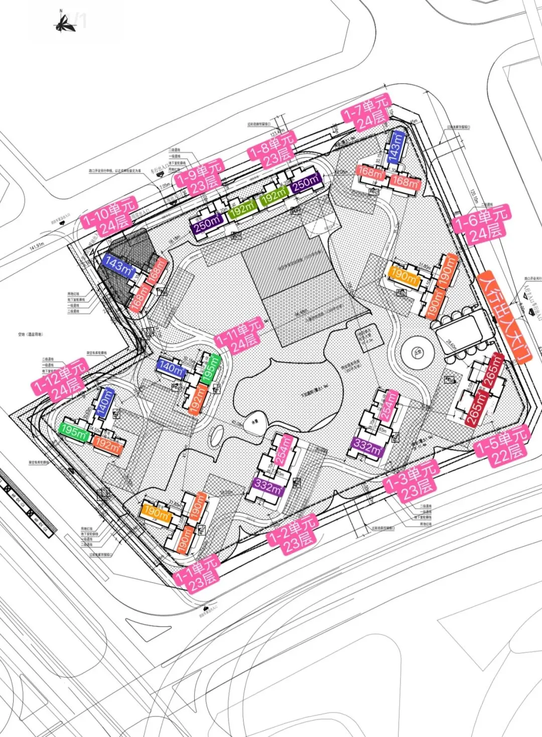
11月18日,深圳规自局披露了观潮府项目的《建设工程规划许可证》及总平面图。
整个项目围合式布局,共规划打造11栋住宅,分别为1栋一至三单元,以及1栋五至十二单元。
层高22层~24层,总楼高最高限制在80米左右。项目规定容积率3.41但是好像最终建面容积率在4.12了
主要为2梯2户、3梯3户的户型。如果按目前规划的层数梯户比算是657套房源,因为正常现在都有架空层不确定2层还是3层起算首层,所以最终户数可能有点小差距,以实际公布为准,车位地上271+地下934个一共1205个,如果最终是2-3层为首层车位比应该能达到1:2以上
南街坊地块是今年深圳的总价地王,凭借宝中核心地段+稀缺海景等优势,南街坊一举一动备受关注,项目户型图和效果图已经曝光!目前已出地面
南街坊定位高端,纯大户型产品,户型面积约140-143-168-189-190-193-245-257-265-332㎡,整体户型设计和空间尺度都很不错。项目楼面价5.96万,价格大概率卖12万左右
参考目前周边价格旁边的保利瑧誉9.4万均价,中铁阅臻府8.86万均价!但是这两个都不如观潮府好,目前宝中的地标熙龙湾跟壹方玖誉成交都在12-14万左右
最新消息,深圳观潮首推的5/6/7单元户型图曝光,目前展示中心已经开放,4月中旬开放实体样板间,开样板房可能跟拿证同时进行,而且到时候还会开放实体园林,据了解首批样板房只针对前期诚意登记客户开放,目前已经启动前期诚意登记中,诚意登记已经超600批,有需要看样板房客户提前过来登记!预计首推3、5、6、7单元,约222套143-330㎡平层、500㎡顶复。5单元:21层,2梯2户, 建面约260㎡,还有1套500㎡顶复
6单元:23层,3梯3户, 建面约188㎡
7单元:23层,3梯3户, 建面约143-168㎡头排190-254-257-332这几个户型不管东南还是西南基本都是无敌视野可能最右边的头排190西南不能做到,因为他会被它的其他两户190遮挡只能看企鹅岛这边的海景去年8月中旬南街坊地块二次上架,地块指标包括起始价都做了很大调整;地块开拍前吸引了3家房企报价。分别是:77招商+ 华润联合体 66号建发 68号中海经过187轮厮杀,最终由招商+华润联合体以总价86.4亿元竞得,楼面地价5.9586万元;宝中南街坊宅地其实是二次上架了!
对比首次出让,本次挂牌起始价降价超22亿,商业砍了8.4万㎡,容积率也从5.7下调至3.4......

7月16日,深圳公共资源交易中心挂牌一宗新宅地,宗地号A002-0108,地块位于新安街道甲岸南路与金科路交叉口西南侧。
土地面积42521.94㎡,建筑面积145000㎡,挂牌起始价64.09亿,8月15日出让。

值得一提的是,该地块就是4月份撤拍的宝中南街坊地块。
此次“回炉重造”后,不仅宗地号变了,连出让条件也大不相同了,主要的调整包括:
地块性质由原来的商住用地→二类居住用地;
土地面积由4.75万㎡→4.25万㎡
建筑面积由27.1万㎡→14.5万㎡
住宅建面由13.2万㎡→12.5万㎡
商业建面由10.25万㎡→1.84万㎡;
容积率由原来的≤5.7→≤3.4
挂牌起始价从86.27亿→64.09亿
......
另外,本公告出让宗地依旧按照“价高者得”的原则确定竞得人,住宅部分全部为普通商品住房,无配建、无“70/90户型”限制,无“限价”。
在今年4月28号宝中南街坊流拍后,重新调整规划,去除大量商业改为住宅,而且容积率降低到3.4,本以为这样这次宝安真要出地王了!好歹你也得拍个类似前海那块地王8万左右吧,结果拍了个5.95万楼面价,但由于限高80米多少有点可惜了,因为限高导致只能前排看海后排基本享受不到海景,不限高完全可以设计高低层次,后排也能享受海景这样更完美了
一、规划调整情况
(一)规划控制单元DY-01内部划分为DY01-01和DY01-02两个地块,单元用地面积为47548平方米,单元主导功能为“居住、商业服务业”,容积率为3.7,配套设施为“社区配套用房、小型消防救援站、社区体育活动场地、社区儿童游戏场地”,备注:规划。单元内DY01-01地块用地面积42523平方米,用地性质为二类居住用地,容积率为3.4;单元内DY01-02地块用地面积5025平方米,用地性质为商业用地,容积率为6.0。社区配套用房可设置社区管理用房、便民服务站(社区服务中心)等建筑功能。
(二)规划控制单元DY-02新增一条支路,内部拆分为DY02-01和DY02-02两个地块,单元用地面积为58148平方米,单元主导功能为“居住、商业服务业”,容积率为4.2,配套设施为“12班幼儿园、托育机构、社区体育活动场地、社区儿童游戏场地”,备注:规划。单元内DY02-01地块用地面积37356平方米,用地性质为二类居住用地,容积率为4.6;单元内DY02-02地块用地面积17500平方米,用地性质为商业用地,容积率为4.2。
回顾早期地块情况,4月28日,深圳公共资源交易中心发布公告称,受委托人通知,原拟定于4月30日出让的宝安新安街道A002-0060宗地,中止出让程序。对于此次土地出让中止的具体原因,中国房地产报记者先后联系了深圳公共资源交易中心和深圳市规划和自然资源局宝安管理局相关工作人员,双方均表示,“不清楚”。据相关媒体报道,此次出让中止公告是在保证金截止后仍无人应价的情况下公布的,这相当于变相“流拍”。A002-0060 宗地于3月31 日挂牌,该地块位于深圳市宝安区新安街道,距离欢乐港湾海岸线约300米,是近5年首次释放的黄金靓地(含住宅),其地段价值与此前出让的深超总、后海地块相当。同时,其也是深圳宝中最大体量的集中连片净地,未来规划将其打造成“文旅商住综合体天花板”,挂牌起始价为86.27亿元。据业内此前估算,若地块能成功交易,溢价率超过16%,成交价将突破百亿门槛,有望成为宝安区的“百亿新地王”。3月4日,该地块还举行了推介会,深圳本土企业如华润置地、中海发展、深铁置业,以及民企鸿荣源、星河控股等,和外地企业如厦门国贸、武汉城建、华发控股、中国能建等品牌房企现身推介会。最终,该地块却无人报名竞拍。广东省城乡规划院住房政策研究中心首席研究员李宇嘉认为,该地块体量较大,抑制了开发商拿地意愿。在当前市场环境下,有能力拿百亿元地块的主要是央企开发商,且近年来央企拿地集中在核心城市的核心区域,宝中该地块并非核心区域的核心地块。从地块自身条件来看,其占地面积4.75万平方米,总建筑面积27万平方米,容积率 5.7。其中,住宅面积13.23 万平方米,酒店面积3.5万平方米,商业面积10.25万平方米(其中 2.25万平方米可转换为酒店/商务公寓,允许在10.25万平方米商业比例中不超过1.5万平方米设置地下商业)。这种设计对开发商的资金链和运营能力提出了极高的要求。该地块开发要求也颇具特点,规定6年竣工周期、预留滨海廊桥接驳口、配建社区文体设施等要求,尤其是涉及港深西部铁路25平方米禁建区的特殊条款,既体现出城市规划的前瞻性,为开发商设置了多重技术门槛。同时,该地块商业比重过大,且要求整体转让,这对开发商的资金实力要求过高。深圳非住宅(特别是公寓)存量较大,包括酒店、商办等,目前正面临着空置和去化压力大、招商难的问题。该地块住宅部分占比 49%,允许分割转让;其余为酒店及商业,占比 51%,且限整体转让。此前深圳宝中地块也有过类似无人报名的情况。2022 年8月第二轮集中出让的宝安新安 A001 - 0212 宗地,就因商业比例超50%而遭遇流拍。一年后,该地块调整为纯住宅,去除了“办公建面”比例,仅保留了5000 平方米的商业规划,随后顺利出让。该地块由原本6块商业用地和1块绿地合并商改住
这块地是宝安中心区里面最临近海岸线的住宅,比「熙龙湾」更靠海,而且没有7090限制,将会做出宝中最王炸的住宅项目。
△项目海景角度
这个地块出来或许宝中的熙龙湾、以及全深圳都在等待的都市茗荟二期的热度都要覆盖下去了,甚至这个无敌海景加上这个地段配套前海等地段也不香了
宝中也是深圳的一个神奇区域,就算市场调整到今天这样,宝中的开发商依然非常傲娇,有新盘捂盘不售,还有尾盘一直有传收茶水费的消息。
宝中之所以一直这么傲娇,主要是那些开发商觉得,卖掉了就找不到宝中这么有现在还有未来的地块了。
宝中值得期待的未来最近来自企鹅岛的加速。
现在企鹅岛建设速度肉眼可见的飞快,据传年底可以首批将交付,2025年第一批楼栋可以投入使用。
资料显示,腾讯科技岛建面有约200万平,将建设“六基地一平台”,腾讯云、互联网+医疗等7大产业都将进驻,此外,腾讯企鹅岛规划容纳7.5万名腾讯员工,所以也在这里规划了宿舍、学校、商业酒店、会议中心、科技馆、文化馆、体育中心等配套。

从腾讯总部大楼的搬迁路径来看,腾讯一旦搬迁,搬迁的除了腾讯自己,还有一个巨大的产业链跟着搬迁,这种集聚效应在科技园已经非常明显,最近,腾讯的股票大涨,市值已经是阿里的两倍,证明这家企业依然还在很好的成长期。
所以,未来的产业链聚集,才是宝中更好的未来。
论配套,宝中自己就是核心。
宝中是CBD+TBD的(中央商务区和科技研发服务区)双核中心,有着可以比肩甚至超越福田的优质集中的配套。
是目前深圳生活氛围最纯粹,生活配套最齐全的区域之一。
最重要的是,宝中宅地很稀缺。
近几年宝中的年均入市项目不足1个,在加上周边优质二手房少,宝中新盘几乎一“出生”就备受瞩目。
众所周知,住宅土地越少未来价值确定性越高,更何况是在城市规划核心、配套核心的稀缺地段之上。
毋庸置疑,宝中未来价值确定性会越来越高,且随着人才入驻,其人居价值还将不断升级。

宝安中心区代表着宝安区城市的形象,是宝安的行政、经济、文化中心,纵观宝安中心区的发展史——不断修改完善,不断与时俱进,不断层级提升,其背后是宝安撤县建区后深圳发展一路向西,宝安逐步向世界级先进制造城、国际化湾区滨海城、高品质民生幸福城迈进的缩影。
拥有城海相融的滨海空间,是宝安中心区的独特优势。
环海而建,欢乐港湾滨海文化公园总面积达80万㎡,128米高的「湾区之光」摩天轮,由伦敦眼设计团队精心打造,是深圳首座巨型摩天轮。每个轿厢拥有360°超阔全景落地窗,登至最高处,便可一览前海、大铲湾和整个西部海岸线。

以金融集群发展为主,同步依靠“科技创新+总部经济”双轮驱动。
作为前海的中心门户,宝中承接着深圳核心规划,正虹吸着深圳甚至是全世界的资金和企业聚集。
如前海人寿、农商行超甲级写字楼群,京东国际、VIVO等优质企业也纷纷入驻,未来将产生大量的人才居住缺口!
图源滨海宝安
居住在此,将与世界级的城市坐标为邻,享受到国际化的生活品质和本土文化的深度融合。这里不仅是一处普通的居所,更是连接世界的起点。
交通方面,目前最近的地铁站为11号线宝安站,;周边还有1-5-9号线以及建设中的15号线;道路方面,临近兴业路和裕安一路,可以比较便捷前往宝中和南山。商业方面,项目旁边就是华侨城欢乐港湾,再远一些有壹方城、万象前海、前海山姆等商圈,开车都不远,商业还是便利的。湾区之光-摩天轮、湾区之声-滨海演艺中心、湾区之眼-湾区书城三大文化地标共同构成宝中文化中轴,代言宝安湾区城市形象,也为市民提供了丰富的文化生活选择,促进粤港澳大湾区的文化繁荣发展。
免责声明
*以上部分图片内容由来自网络,不作为销售承诺和合同附件,侵删*