深圳湾‧赛嘉服务式公寓,2+1房2厅3卫,品质装修,品牌家私电器,94平,特价18000元/月起


赛嘉服务式公寓位于深圳湾豪宅区,由全球五大行之一的第一太平戴维斯提供酒店式管理服务,名师设计,拎包入住,项目包含2栋楼,355套公寓,户户大阳台和大厨房,全屋中央空调,享深圳湾配套和美景,带给您品质生活和奢华享受。
项目优势:
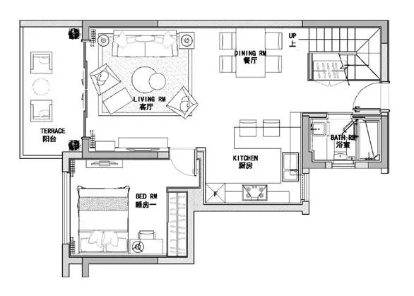
户型图1F
户型图2F

配套:
四、水电早餐收费情况:
水电费(水6元/吨、电1.1元/度)
早餐费(1500元/月/人或1800元/30张早餐券)
停车位(270元/月)
五、宠物
可以养1只10kg以下宠物,如果多只需要单独申请
单间和一房一厅收取2000元宠物押金和2000元清洁费(清洁费不退还)
两房以上收取3000元宠物押金和3000元清洁费(清洁费不退还)