深圳湾网红地标超甲级写字楼【深圳湾1号】全球租赁,高度350米,租赁面积:200-2800平方,看湾一线海景,商业配套齐全
招商热线:136-1287-6707【官网】
【深圳湾1号】
深圳湾一号T7栋写字楼
350m超高滨海写字楼
世界罕有·深圳唯一
租赁面积:336-515-850-2800㎡
租金单价:250元/平方起
深圳湾一线望海景视野,看人才公园
对一座城市而言,标志性的建筑就像是为城市量身定做的名片,给人留下难以磨灭的印象。
中国三大豪宅之一的深圳湾一号,地处深圳湾核心地段,是首个获得地产奥斯卡之称的“国际地产奖”的,集办公、居住、酒店、商业于一体的高端城市综合体。
无论是景观系统、建筑设计或是室内设计,皆汇集全球顶尖智慧,将生活环境与城市历史、自然艺术融合一体。为匆忙的都市生活开辟一个新境界,营造一个舒适的都市人居环境。

深圳湾1号是鹏瑞集团十年磨一剑、精雕细琢的国际超级滨海综合体,项目中包括顶级精装公寓、超甲级写字楼、莱佛士奢华酒店、莱佛士品牌公寓和湾汇高定商业中心。
前排永久无遮挡看海,湾区最大的卖点之一就是海景,整个湾区永久看海的也就只有深圳湾一号。综合户型和朝向来看,首屈一指当属深圳湾壹号。
深圳湾1号,分北区(1-4栋)和南区(5-8栋)
深圳湾一号位于深圳湾后海片区,紧邻深圳人才公园,是深圳湾内湖的一线海景项目。深圳湾一号由8座塔楼及1座商业建筑组成,分为南北两区,北区T1是写字楼,T2、T3、T4为公寓,南区 T5、T6、T8为公寓,T7为环球商务中心;总建筑面积47.5万㎡,是集寰球商务、高端公寓、奢华酒店、高端商业于一体的高端城市综合体,特别重要的是还带深圳湾中小学学位。
【写字楼基础信息】
💝位置:南山后海总部基地
💝总高:72层,总高350米
💝标准层面积:2300-2800平
💝层高4.5米,净高3.2米
💝8台瑞士进口电梯
💝出租楼层:7-30楼
💝物业管理费:38元/平含中央空调
💝479个停车位。
💝交楼标准:
👉天花:金属铝扣板天花+灯盘;
👉墙面:高级乳胶漆,双开玻璃门;
👉窗帘:可自动调节的电动智能窗帘;
👉地面:150毫米网络地板
推荐单元:
一,租赁单元
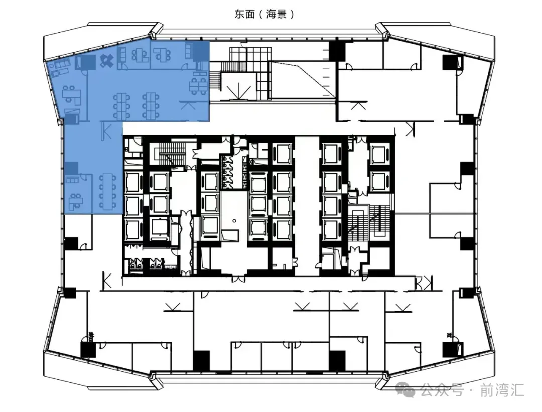
建筑面积:515.88平方米
实用率 : 约65%
交付标准:精装修
可办公人数:约25人
办公室:4间
会议室:1间
办公区:20个卡座
二,平面图
三、单元实景
2201
入户门 ↓
办公室1 ↓
办公室2 ↓
办公室3 ↓
办公室4 ↓
办公区卡座1 ↓
办公区卡座2 ↓
会议室 ↓
四、景观实拍
五、商务中心
大会议室(60㎡)
小会议室(36㎡)
六、写字楼配套
接驳巴士
后海地铁站深圳湾1号T7
5-10分钟/班
员工餐厅
深圳团餐协会会长单位服务商
3楼2500㎡高标准配置
七、项目配套
莱佛士酒店 -- 百年尊贵传奇 五星商务礼遇
湾汇 -- 国际高端定制商业中心
深湾会 -- 英式国际会员制俱乐部