南山区同乐板块【乐源雅居】,面积66-76-83-89㎡2-4房,共102套。最大的亮点是户型,76㎡就能做到3房,89㎡可以改4房。项目位于荔源雅苑北面,100米高层单体楼,层高3.05米,2T5户。建设用地3190㎡,计容面积16600㎡,住宅户数143户,可售102户,总高31层,停车位90个。
乐源雅居距离12号线同乐南站约900米距离,还有建设中的15号线同乐关站双地铁口物业,贯穿前海、后海、南山、宝安等重要片区,环经济发展核心区域。
周边还有南坪快速,南山大道,北环大道,京港澳高速等交通要道,出行便捷。
2026年南山区教育局地图学区划分,荔源雅苑小中学区都是划分在南山区教育科学研究院同乐实验学校,该校于2004年创建,是1所九年制公办学校,现有48个教学班。
项目距离科院同乐实验学校约300米,南山首个教科院系实验学校&九年一贯制学校,教科院:深圳市教育局直属公益一类事业单位,曾打造南山第二外国语学校。
项目直线距离约350米有1万㎡隆尚Minitown,周边目前有成熟的社区底商,可以满足日常需求,在2.5公里范围内有海雅缤纷城,约6公里有前海壹方城,约7公里有深圳万象天地等大型商业综合体等等,坐享超50万㎡南山、宝中成熟中心高端商圈。

楼下规划公园绿地(约2.5万㎡)、铁路文化公园(直线约500m)、新安公园、中山公园等城市绿氧触手可及。
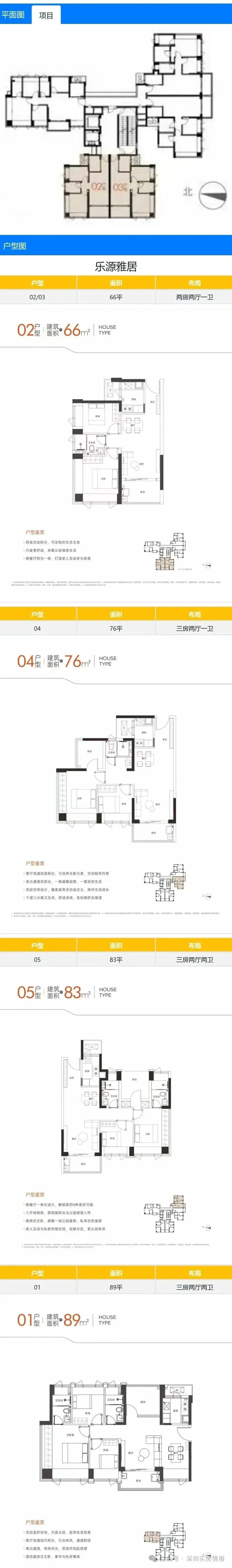
项目是新规后的户型,66㎡的2房1卫,76㎡的3房1卫,83㎡的3房2卫,89㎡的3房2卫(可改4房)。
下面还做了份【乐源雅居】楼盘介绍,可以作为参考。
项目优点
1、小面积低总价,适合刚需上车,户型还算可以。
2、地处南山,与科技园之间距离还是非常近的。
项目缺点
1、体量小、户型小社区档次一般。
2、属于南山边缘地带,配套一般。
3、周边老旧,城市面貌一般。
项目总结
项目处于南山区边缘地段,周边没有太多城中村,但也没有太成熟社区,生活配套稍欠缺,未来也没有太大的想象空间。