后海招商玺预计首批发售的1栋大平层,面积约197-235㎡,作为玺系的全新产品,后海招商玺是招商继“5000万栋”深圳双玺和“2024年交付天花板”太子湾招商玺之后,再次带来的玺系新作。项目预计2025年年底入市
目前项目规划也已曝光:共有4栋住宅和1栋幼儿园,1、2、3栋的主力户型197-237-246㎡大平层。


项目介绍 | 基础信息
用地面积14969.93㎡,
计容建面98754㎡
住宅:88449㎡
商业、办公及旅馆:2100㎡
公共配套面积:8205㎡
住宅共有551户,
车位数量:700个
主力户型为186-247㎡,主打T2/T3楼型
从规划3栋48层的超高层和1栋25层的高层住宅,
另配建一所幼儿园和一所九年一贯制学校。


- 在住宅设计上,我们规划了“浮岛甲板”策略,四栋住宅楼坐落于抬升的甲板层面,共同享有其上的大型庭院花园。
- 此举构筑了“超级社区底盘”与“浮岛绿化甲板”的垂直共生模式,致力于打造引领未来的人居典范

- 此次推出42套197平与237平大四房户型,专梯专户。

- 后海招商玺项目效果示意图后海招商玺项目效果示意图后海招商玺项目效果示意图后海招商玺项目效果示意图后海招商玺项目效果示意图后海招商玺项目户型示意图后海招商玺项目效果示意图
- 四栋住宅落在架空的绿化甲板上,底层是立体花园、会所空间,上层则是安静的人居区,动静分离,像是把“城市会客厅”搬进家门口。
- 据说,入口的殿堂级落客区、水景、天幕设计,仪式感直接拉满。

- 简于形,奢于心
- 传承美学基因,超越时间的经典
- 一座城市里,每一个伟大建筑的魅力,都始于其与地域的对话。后海招商玺的立面,就很像是一首写给深圳的散文诗。
- 它的设计理念,有一个非常浪漫的名字:“海风百褶”。

- 远观之下,米色与香槟金色铝板勾勒出的反弧曲线,如同海风轻抚过海面泛起的层层涟漪,让坚硬的建筑体量焕发出一种轻盈的动态美感。
- 但真正的考究,可能需要近身才能体会。它通过独创的"揉石成缎"工艺,赋予了石材全新的生命。通常冰冷、坚硬的奢石,在这里经过匠人手工的反复打磨,呈现出温润、细腻如丝绸缎面般的触感。
- 首创的“平推窗系统”。它摒弃了常见宽窗扇,以极高的成本,实现了安全、隔音、节能与极致美学的统一。
- 结合进口系统窗与超白LOW-E玻璃幕墙,构筑了堪比录音室的静音屏障,同时强化了建筑干净、高级的“公建化”质感。
- 但你要知道,这几乎让立面成本投入远超常规住宅60%以上。
- 这再次印证了其逻辑:真正的奢侈,是让顶级功能隐于优雅形式之后。

- 当你带着这样的价值逻辑审视项目,便不难理解,为何其每一个产品模块,都能呈现出完全不同于市面上豪宅的独特质感。
- 一是景观园林,一个令人惊艳的立体景观体系——垂直绿岛。
- 它打破了单层绿化的局限,通过地面、庭院、空中花园甲板的立体分层,构建出层层递进的沉浸式归家体验。
- 景观,也不再只是装饰,而是可传承的家族背景。因为一棵树,就是一部家族编年史。

- 主入口阵列栽植的超300年树龄的西班牙油橄榄,单颗造价百万。作为"植物活化石",象征着基业永续的传承;
- 浮岛花园中特选的非洲象腿树、东南亚多头苏铁以及丛生乌桕等全冠移植的珍稀乔木,共同构建起"一树一景"的传世园林基底。

- 这些树木与采用羽毛灰、维拉多莱姆、巴西利亚黑等顶级奢石打造的铺装、水景相映成趣在约2000m绿带的环绕下,真正实现了“家园”与“城市公园”的无界融合。

- 极致的选材、艺术的装置与布局,让这个园林成为一片可阅读、可收藏的绿色瑰宝。

- 二是会所,“运动-社交-娱乐”全维奢享,成为顶豪圈层身份与生活的具象表达。

- 会所以顶豪圈层的专属需求为标尺,打造全维生活主场:
- 恒温泳池以星级酒店标准营造静谧泳境;泰诺健全系健身设备为定制化运动方案提供专业支撑,筑牢健康生活基石;

- 创新增设的室内高尔夫模拟场可精准还原知名球场地形,半场网球练习场配备专业教练服务,让顶流运动从“偶尔体验”变为“日常标配”,成为圈层间志趣相投的社交纽带。
- 而私宴厅与家宴厅的一体化切换系统,既能满足数十人规模的高端商务宴请,适配塔尖圈层的商务社交需求;亦可快速切换为温馨家宴模式,承载多代同堂的团圆时刻,实现商务与家庭场景的无缝衔接。

- 三是一个被彻底重新定义的领域:“中央车站”式地下车库。
- 被赋予艺术藏品属性的“中央车站”式地下车库,它将顶豪的奢华从实用维度拉升至艺术收藏层面。

- 全线环氧磨石地面以十倍成本的选材与工艺,成为空间的艺术基底;而核心落客区的“星钻穹顶”,更是一件可触摸、可体验的地下艺术藏品——以世界名钻为灵感的58切面结构,是对珠宝美学的建筑转译。

- 当多数顶豪还在追求地库的功能升级时,这里已将地下空间打造成可传世的艺术藏品,让归家的每一刻都成为与艺术的邂逅。
- 锚定百年住宅的传世基底,赋能美学创新的时代羽翼,于建筑、园林、配套、地库的全维空间中践行艺术传承的逻辑。
- 03
- 空间奇迹
- 超高实用率 重新定义塔尖生活尺度
- 从宏观的规划魄力,到中观的结构创新、立面美学,再到微观的一颗石材的触感、一扇窗的开启方式,从一颗树的选择,再到一道光影的设计,都体现后海招商玺极致的产品主义思维。
- 但它的革新还远不止于此,还有对空间价值的极致挖掘。它通过精准把握行业新规,将豪宅的实用率与赠送率推向极致。
项目整体实用率高达约96%,这在与传统豪宅约74-82%实用率的对比中,形成了压倒性优势。这意味着,客户支付的每一分钱,都更大比例地兑换为真实可用的生活空间。
- 极致窗墙体系:采用约800mm高的全景飘窗,最大化采光与视野附加值。
- 灵动空间设计:利用框架结构优势,将承重体系置于梁柱,室内空间可根据家族全生命周期需求自由定制,实现“百变生活”。
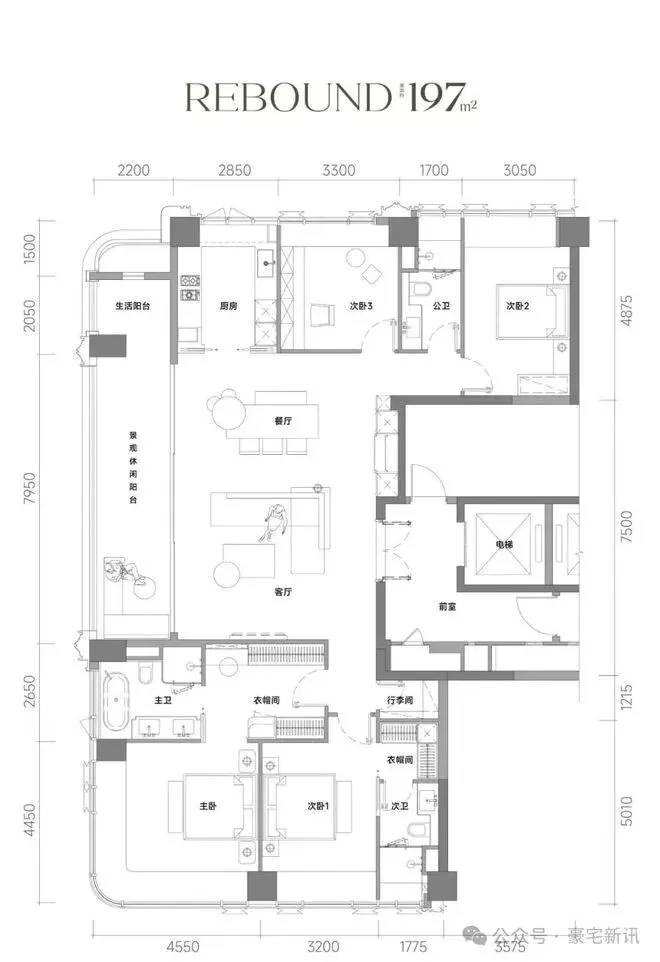
- 尺度革新:建面约197m²户型,专梯入户设计。户型格局极致方正,动静分区清晰,实现了三面采光与双南向套房的“双龙抱珠”格局。

- 后海招商玺项目户型示意图
- 其核心魅力在于约8米开间、48m²的LDKB一体化全景方厅,与面积约11m²的景观阳台融为一体,构成了家庭生活的核心场域。
- 客厅进深约6米,尺度从容。厨房为U型明厨,卫生间全明设计,细节处处考量。
- 主卧采用豪华套房+步入式衣帽间设计,开间约4.6米,营造出奢适的休憩空间。次卧套间开间约3.2米,面积约22m²,每个卧室均配宽景飘窗,延伸出更多功能场景。
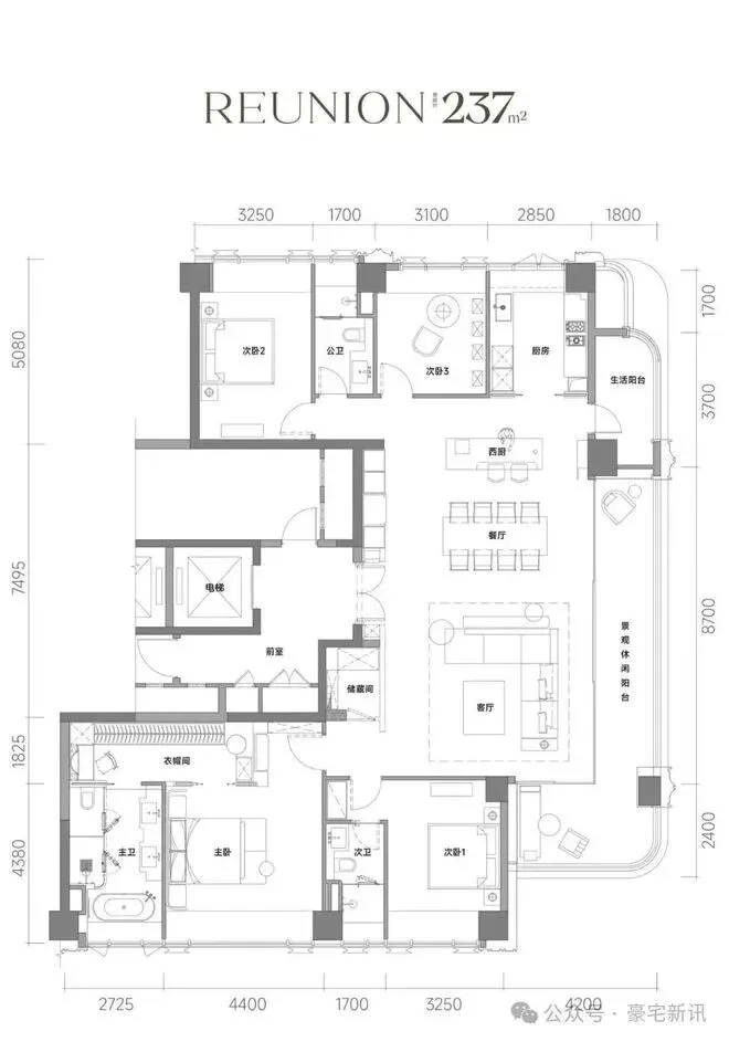
- 而建面约237m²户型,最大的亮点是其面积高达60m²、接近标准羽毛球场大小的LDKB全景家庭厅,以及一个长约18.9米、面积约31m²的L型270°拐角瞰景阳台。

- 后海招商玺项目户型示意图
- 这个阳台,还创新性地增加了一个约10m²、最宽进深2.4米的"X"百变空间。同样的框架结构设计,它将承重体系置于梁板柱,意味着室内空间可根据家庭全生命周期需求进行个性化定制。
- 主卧尺度也很奢侈,开间约7.05米,进深约6.3米,面积高达44m²,堪比市场二手400平米大面积段产品,并配备超长步入式衣帽间。次卧套间开间亦达约5米,确保了每一位家庭成员的尊崇体验。
- 这种“真金白银”的得房价值,是产品力最直观、最硬核的体现,也在某种程度上,重塑了顶豪的空间价值等式。

循着“百年住宅”的营造理念,项目在隐蔽工程上完成了一场从材料、技术到系统协同的彻底跃升,以硬核技术支撑起长久的人居体验。
☎ 马上拨打售楼处专线:400-876-8031(一键直连/预约看房)
深圳后海招商玺营销中心电话📞📞:400-876-8031楼盘开盘、交房时间、房价、户型、学区、怎么样、楼盘详情、价格、售楼处地址、销售中心电话、楼盘地址、户型图、交通、备案价、最新优惠、营销中心电话、得房率、周边配套等详情咨询
免责声明:部分信息来源于网络,如果侵权,请联系及时删除本宣传资料不构成邀约邀请,对周边、政府规划、商业配套、教育资源、投资前景等数据和图文仅为提供相关信息,该信息以政府最终批文为准,开发商不对此作任何承诺。买卖双方的权利义务以双方签订的买卖合同约定及附件、实际交付为准,本公司保留对宣传资料修改的权利,敬请留意最新资料!