当前位置:首页>东莞>青山周平新作 | 广州阿那亚理想国酒店

青山周平新作 | 广州阿那亚理想国酒店

  • 2026-05-09 11:37:15
青山周平新作 | 广州阿那亚理想国酒店

项目概况Project Background

理想国酒店项目位于广州九龙湖阿那亚, 是为文化品牌naive理想国打造的一个集合书店、咖啡简餐、住宿功能一体的复合型空间。九龙湖距离广州市区1小时车程,被2.5万亩原生山林与湖域环绕。建筑选址在小镇河的东岸,背靠广袤的湖山风光,同时与社区美术馆、食堂相邻,在这样一个一半城市烟火一半自然的场地之中,我们希望把本土文化融入空间叙事,创造一个有温度、有情感的文化空间。

空间设计与理念Spatial Design and Concept

从岭南文化出发,设计初始的灵感源自广州老城的外廊式建筑骑楼。广州骑楼以“下铺上居、廊道贯通”为特点,底层为商铺,设在延续的骑廊立柱之内,二层以上为私密的住宅。骑楼式建筑集商业、居住、交通为一体,不仅见证了广州商业文化的繁荣,更是居民日常生活的依托,是岭南生活氛围的缩影。

理想国酒店作为一个多功能集合式空间,也使用了“下铺上居“的空间构成逻辑。建筑共分为四层,首层是对外开放的书店、咖啡简餐厅, 二至四层为酒店客房。四层空间全部构建在“骑楼式”的连续柱廊之下。设计选择将外围结构体系的梁、板、柱直接暴露出来,立柱和梁板形成的直线网格既是视觉语法也是建筑实际的结构骨架。从外观来看,整个建筑的正面没有设实体墙,由多边形的立柱构建而成,外在造型直接体现着内在建造逻辑。
柱廊形成的虚实空间,打开了想象。廊下的空间是一片灵动的场域, 它邀请阳光、微风入内,包容四季的流转,形成温柔的开放性边界。人们多样的生活场景也在其中展开——首层商业空间的沿街面全部后退留出公共人行空间,过往的游人漫步廊下,自然的就穿行进入了书店和咖啡厅内部;上方的楼层在柱间分隔出18间面向河景的客房,檐下的露台让客人与河景直接对话,亲近自然。功能性上,柱廊作为建筑的第二层表皮,遮阳避雨,顺应了广州多变的天气,同时也一定程度的遮挡了河对岸视线,让客房获得足够的隐私。
建筑另一个突出的造型特点是退台式的设计。四层的建筑由四个堆叠的体块组成,随着楼层的增加,体积逐渐减小,形成富有力感的阶梯式造型。从各个角度看,它的轮廓都呈现出变化。作为地块中最靠近岸边的建筑,退台设计也一定程度的从视觉上消解了建筑体,形成更宜人的尺度感。
在建筑稳定对称的结构之中,我们在首层和三层设计了两个挑高的半室外庭院,打破了立面复的韵律,形成空间的小变奏。同时引入阳光和绿植,让自然景观始终贯穿在建筑之间。位于首层中心的架空中庭,一侧正对河岸上的观景平台,另一面连接着步行街区,让建筑以开放的姿态接纳各个方向来往的行人,增强了建筑公共属性。庭院作为一个过渡空间,把书店和餐厅两个原本分离的功能区,通过人在其间的活动连接起来,让室内外的转换成为一种连续无形的空间体验。
廊和院的设计让建筑有了“可以呼吸”的空间。在快节奏的现代生活中,城市空间总是在被高效的使用着,然而, 在单体建筑原本就有限的空间和范围里,我们仍然选择构建半室外连廊和架空庭院,把一定的空间贡献给自然和街道。设计上没有特意界定它们的功能,是人的活动赋予了空间意义——人的游走与自然的渗透在虚实之间悠然转换,空间也随着人和环境的变化而不断进化和生长。酒店的客人,或是社区里漫步而来的游客,在树庭院的长桌边坐下,发呆、读书、聊天、晒太阳。随着微风和光影变幻,人们的动作也自然的放缓下来,度过些许“散漫的时光”。设计相信,建筑的价值不在于宏大的叙事,而在于创造这样的微小的时刻,让人感知真实的生活和自我的存在。

材料运用和室内设计Materials and Interior Design

在材料方面我们选择使用红色清水混凝土来呈现建筑的主体结构,混凝土一次浇筑成型,将结构与材料最真实的呈现。低饱和度的红色像是老砖的颜色 ,也像是泥土的颜色,与混凝土天然、粗粝的质感结合,给人温暖的感觉。红色随着时间微妙的变换色调,让建筑有了表情和生命力,像是在和背后的群山一起生长。晴天时,红色的建筑与水中的倒影相呼映衬,更多了一分灵动。在与环境的对话之中,立面直线网格的坚实和厚感被柔化了,营造出轻盈的感知。与红色混凝土搭配使用的乱纹红铜板,运用在室外疏散楼梯、核心筒的外立面。金属的精致冷峻与混凝土的粗温润,在对比中加强了立面的层次感。整体材质明快的色调也让建筑从青山绿水之间跳脱出来,充满活力和愉悦的度假氛围。

室内氛围也延续了建筑温暖的调性。首层分成两个通过中庭连接的独立室内区域,一侧空间集书店和酒店接待功能为一体,另一侧是简餐厅和咖啡厅。在公区设计中,我们没有设置隔墙将不同的功能硬性隔开,而是创造一个连续流动的动线,最大程度释放建筑空间本身开放的特质。二到四层的客房共18间,分为3种户型。 标准户型虽然室内面积不算大,但每个房间都有一个充满阳光的河景阳台,把生活放大和延伸。室内大使用了木纹石材、红色洞石、红色海洋板、混凝土砖、等暖色的材料, 天然材质温润的属性和带有暖意的色彩,让空间保持着亲和感和烟火气息。在局部的地面和墙面,我们设计了拼花木地板、拼花水磨石和马赛克石材砖,多种纹样的使用让人联想到广州的老式花砖,把广府的技艺和美学传统用现代的语言融入到空间细节之中。

总结New Way of Thinking

naive理想国的寓意是“想象另一种可能”,这次理想国酒店的设计也是我们的对于探索建筑可能性的一次实践。骑楼诞生在步行为主的年代,我们利用相似的空间逻辑,把在建筑中漫步的体验带给今天的人们,将传统记忆转换为人们可以真实体验的当代情感。“理想国”不是设立在日常之外的一场空想,而是试图通过空间创造相聚与停留的时刻,让人与人、人与环境共建生活的另一种可能。

总平面图
底层平面图
二层平面图
三层平面图
四层平面图
五层平面图
顶层平面图
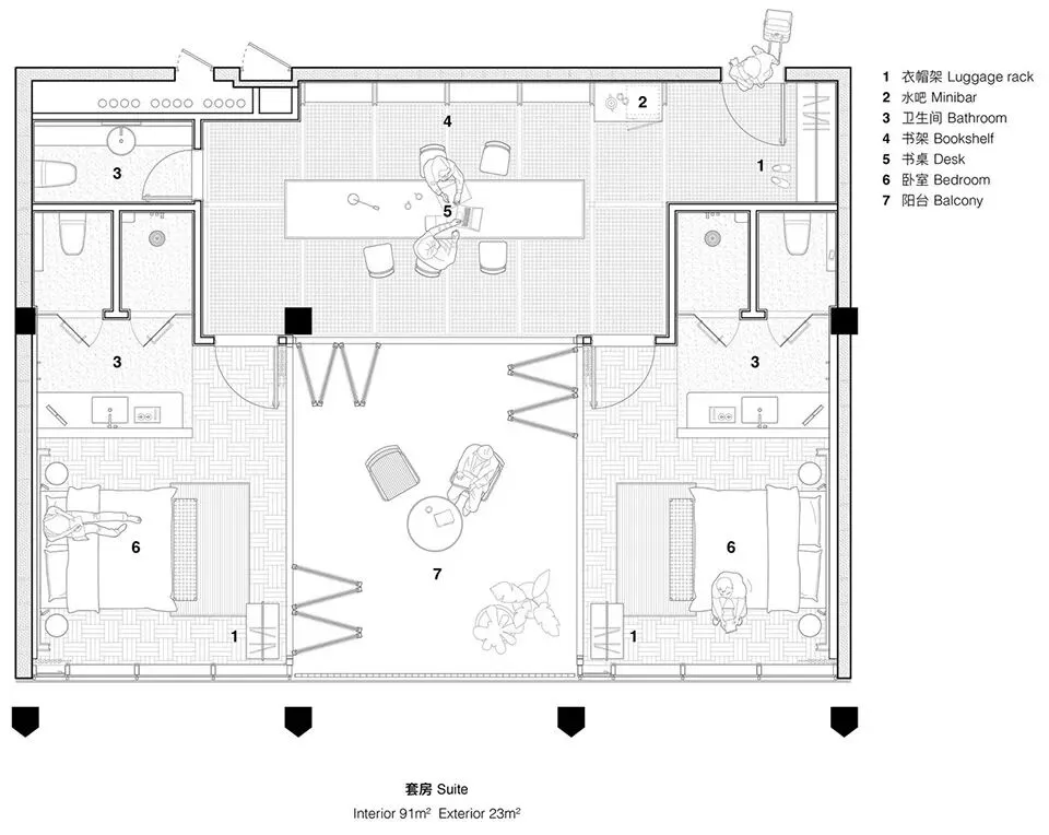
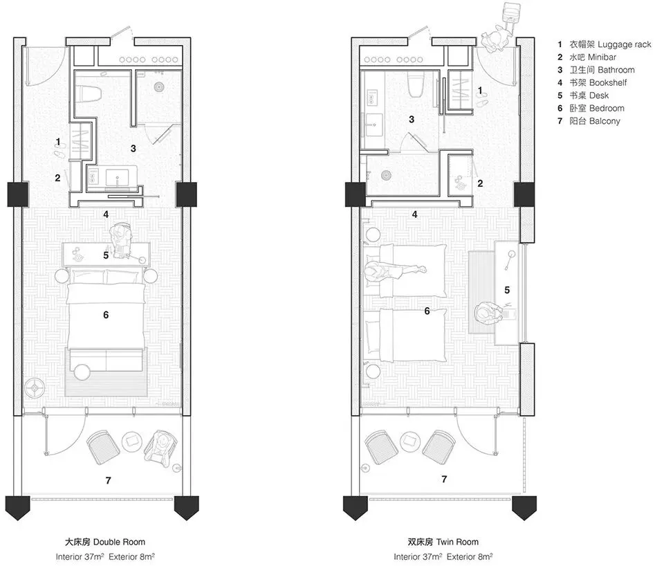
客房平面图
套房平面图
项目名称:广州阿那亚理想国酒店项目所在地:广东省广州市项目类型:建筑设计 室内设计建筑师:青山周平、藤井洋子、刘凌子、王嘉慧、冯蕾、陈璐、杨易欣、张昕翌业主:广州九龙湖房地产开发有限公司占地面积 845.58m²建筑面积 2315.36m²设计周期 2022年1月—2024年7月施工周期 2023年10月—2025年10月摄影师:夏至 / DONG建筑影像 / The Wethos短片制作:夏制映画主要材料建筑材料:清水混凝土、红铜板、肌理涂料室内材料:海洋板、红洞石、木纹石材合作单位合作设计院:深圳华森建筑与工程设计顾问有限公司景观设计:致舍(北京)景观规划设计有限公司灯光顾问:汉都设计顾问(深圳)有限公司深圳普莱思照明设计顾问有限责任公司幕墙顾问:深圳天盛外墙技术咨询有限公司标识设计:广州揽世标识有限公司施工单位中国建筑第七工程局有限公司深圳市博大建设集团有限公司广东景龙建设集团有限公司常州创新园林工程有限公司
B.L.U.E. 建筑设计事务所成立于2014年,由日本建筑师青山周平和藤井洋子共同创建,是面向建筑以及建筑室内设计方向的充满年轻活力的建筑设计事务所。事务所目前的项目分布在北京、山西、山东、云南等省市的核心地段,涉及文化、商业等中小型规模建筑项目。事务所致力于用最精致的设计、最严谨的制图以及最精细的施工,保证每一个项目的圆满落成。

END -

• 

编辑推荐

最新文章

随机文章

基本 文件 流程 错误 SQL 调试
  1. 请求信息 : 2026-05-15 02:04:18 HTTP/2.0 GET : https://c.460.net.cn/a/485930.html
  2. 运行时间 : 0.342806s [ 吞吐率:2.92req/s ] 内存消耗:4,636.31kb 文件加载:140
  3. 缓存信息 : 0 reads,0 writes
  4. 会话信息 : SESSION_ID=329c159cb7e732b2993a6a1df6f5ffc2
  1. /yingpanguazai/ssd/ssd1/www/c.460.net.cn/public/index.php ( 0.79 KB )
  2. /yingpanguazai/ssd/ssd1/www/c.460.net.cn/vendor/autoload.php ( 0.17 KB )
  3. /yingpanguazai/ssd/ssd1/www/c.460.net.cn/vendor/composer/autoload_real.php ( 2.49 KB )
  4. /yingpanguazai/ssd/ssd1/www/c.460.net.cn/vendor/composer/platform_check.php ( 0.90 KB )
  5. /yingpanguazai/ssd/ssd1/www/c.460.net.cn/vendor/composer/ClassLoader.php ( 14.03 KB )
  6. /yingpanguazai/ssd/ssd1/www/c.460.net.cn/vendor/composer/autoload_static.php ( 4.90 KB )
  7. /yingpanguazai/ssd/ssd1/www/c.460.net.cn/vendor/topthink/think-helper/src/helper.php ( 8.34 KB )
  8. /yingpanguazai/ssd/ssd1/www/c.460.net.cn/vendor/topthink/think-validate/src/helper.php ( 2.19 KB )
  9. /yingpanguazai/ssd/ssd1/www/c.460.net.cn/vendor/topthink/think-orm/src/helper.php ( 1.47 KB )
  10. /yingpanguazai/ssd/ssd1/www/c.460.net.cn/vendor/topthink/think-orm/stubs/load_stubs.php ( 0.16 KB )
  11. /yingpanguazai/ssd/ssd1/www/c.460.net.cn/vendor/topthink/framework/src/think/Exception.php ( 1.69 KB )
  12. /yingpanguazai/ssd/ssd1/www/c.460.net.cn/vendor/topthink/think-container/src/Facade.php ( 2.71 KB )
  13. /yingpanguazai/ssd/ssd1/www/c.460.net.cn/vendor/symfony/deprecation-contracts/function.php ( 0.99 KB )
  14. /yingpanguazai/ssd/ssd1/www/c.460.net.cn/vendor/symfony/polyfill-mbstring/bootstrap.php ( 8.26 KB )
  15. /yingpanguazai/ssd/ssd1/www/c.460.net.cn/vendor/symfony/polyfill-mbstring/bootstrap80.php ( 9.78 KB )
  16. /yingpanguazai/ssd/ssd1/www/c.460.net.cn/vendor/symfony/var-dumper/Resources/functions/dump.php ( 1.49 KB )
  17. /yingpanguazai/ssd/ssd1/www/c.460.net.cn/vendor/topthink/think-dumper/src/helper.php ( 0.18 KB )
  18. /yingpanguazai/ssd/ssd1/www/c.460.net.cn/vendor/symfony/var-dumper/VarDumper.php ( 4.30 KB )
  19. /yingpanguazai/ssd/ssd1/www/c.460.net.cn/vendor/topthink/framework/src/think/App.php ( 15.30 KB )
  20. /yingpanguazai/ssd/ssd1/www/c.460.net.cn/vendor/topthink/think-container/src/Container.php ( 15.76 KB )
  21. /yingpanguazai/ssd/ssd1/www/c.460.net.cn/vendor/psr/container/src/ContainerInterface.php ( 1.02 KB )
  22. /yingpanguazai/ssd/ssd1/www/c.460.net.cn/app/provider.php ( 0.19 KB )
  23. /yingpanguazai/ssd/ssd1/www/c.460.net.cn/vendor/topthink/framework/src/think/Http.php ( 6.04 KB )
  24. /yingpanguazai/ssd/ssd1/www/c.460.net.cn/vendor/topthink/think-helper/src/helper/Str.php ( 7.29 KB )
  25. /yingpanguazai/ssd/ssd1/www/c.460.net.cn/vendor/topthink/framework/src/think/Env.php ( 4.68 KB )
  26. /yingpanguazai/ssd/ssd1/www/c.460.net.cn/app/common.php ( 0.03 KB )
  27. /yingpanguazai/ssd/ssd1/www/c.460.net.cn/vendor/topthink/framework/src/helper.php ( 18.78 KB )
  28. /yingpanguazai/ssd/ssd1/www/c.460.net.cn/vendor/topthink/framework/src/think/Config.php ( 5.54 KB )
  29. /yingpanguazai/ssd/ssd1/www/c.460.net.cn/config/app.php ( 0.95 KB )
  30. /yingpanguazai/ssd/ssd1/www/c.460.net.cn/config/cache.php ( 0.78 KB )
  31. /yingpanguazai/ssd/ssd1/www/c.460.net.cn/config/console.php ( 0.23 KB )
  32. /yingpanguazai/ssd/ssd1/www/c.460.net.cn/config/cookie.php ( 0.56 KB )
  33. /yingpanguazai/ssd/ssd1/www/c.460.net.cn/config/database.php ( 2.47 KB )
  34. /yingpanguazai/ssd/ssd1/www/c.460.net.cn/vendor/topthink/framework/src/think/facade/Env.php ( 1.67 KB )
  35. /yingpanguazai/ssd/ssd1/www/c.460.net.cn/config/filesystem.php ( 0.61 KB )
  36. /yingpanguazai/ssd/ssd1/www/c.460.net.cn/config/lang.php ( 0.91 KB )
  37. /yingpanguazai/ssd/ssd1/www/c.460.net.cn/config/log.php ( 1.35 KB )
  38. /yingpanguazai/ssd/ssd1/www/c.460.net.cn/config/middleware.php ( 0.19 KB )
  39. /yingpanguazai/ssd/ssd1/www/c.460.net.cn/config/route.php ( 1.89 KB )
  40. /yingpanguazai/ssd/ssd1/www/c.460.net.cn/config/session.php ( 0.57 KB )
  41. /yingpanguazai/ssd/ssd1/www/c.460.net.cn/config/trace.php ( 0.34 KB )
  42. /yingpanguazai/ssd/ssd1/www/c.460.net.cn/config/view.php ( 0.82 KB )
  43. /yingpanguazai/ssd/ssd1/www/c.460.net.cn/app/event.php ( 0.25 KB )
  44. /yingpanguazai/ssd/ssd1/www/c.460.net.cn/vendor/topthink/framework/src/think/Event.php ( 7.67 KB )
  45. /yingpanguazai/ssd/ssd1/www/c.460.net.cn/app/service.php ( 0.13 KB )
  46. /yingpanguazai/ssd/ssd1/www/c.460.net.cn/app/AppService.php ( 0.26 KB )
  47. /yingpanguazai/ssd/ssd1/www/c.460.net.cn/vendor/topthink/framework/src/think/Service.php ( 1.64 KB )
  48. /yingpanguazai/ssd/ssd1/www/c.460.net.cn/vendor/topthink/framework/src/think/Lang.php ( 7.35 KB )
  49. /yingpanguazai/ssd/ssd1/www/c.460.net.cn/vendor/topthink/framework/src/lang/zh-cn.php ( 13.70 KB )
  50. /yingpanguazai/ssd/ssd1/www/c.460.net.cn/vendor/topthink/framework/src/think/initializer/Error.php ( 3.31 KB )
  51. /yingpanguazai/ssd/ssd1/www/c.460.net.cn/vendor/topthink/framework/src/think/initializer/RegisterService.php ( 1.33 KB )
  52. /yingpanguazai/ssd/ssd1/www/c.460.net.cn/vendor/services.php ( 0.14 KB )
  53. /yingpanguazai/ssd/ssd1/www/c.460.net.cn/vendor/topthink/framework/src/think/service/PaginatorService.php ( 1.52 KB )
  54. /yingpanguazai/ssd/ssd1/www/c.460.net.cn/vendor/topthink/framework/src/think/service/ValidateService.php ( 0.99 KB )
  55. /yingpanguazai/ssd/ssd1/www/c.460.net.cn/vendor/topthink/framework/src/think/service/ModelService.php ( 2.04 KB )
  56. /yingpanguazai/ssd/ssd1/www/c.460.net.cn/vendor/topthink/think-trace/src/Service.php ( 0.77 KB )
  57. /yingpanguazai/ssd/ssd1/www/c.460.net.cn/vendor/topthink/framework/src/think/Middleware.php ( 6.72 KB )
  58. /yingpanguazai/ssd/ssd1/www/c.460.net.cn/vendor/topthink/framework/src/think/initializer/BootService.php ( 0.77 KB )
  59. /yingpanguazai/ssd/ssd1/www/c.460.net.cn/vendor/topthink/think-orm/src/Paginator.php ( 11.86 KB )
  60. /yingpanguazai/ssd/ssd1/www/c.460.net.cn/vendor/topthink/think-validate/src/Validate.php ( 63.20 KB )
  61. /yingpanguazai/ssd/ssd1/www/c.460.net.cn/vendor/topthink/think-orm/src/Model.php ( 23.55 KB )
  62. /yingpanguazai/ssd/ssd1/www/c.460.net.cn/vendor/topthink/think-orm/src/model/concern/Attribute.php ( 21.05 KB )
  63. /yingpanguazai/ssd/ssd1/www/c.460.net.cn/vendor/topthink/think-orm/src/model/concern/AutoWriteData.php ( 4.21 KB )
  64. /yingpanguazai/ssd/ssd1/www/c.460.net.cn/vendor/topthink/think-orm/src/model/concern/Conversion.php ( 6.44 KB )
  65. /yingpanguazai/ssd/ssd1/www/c.460.net.cn/vendor/topthink/think-orm/src/model/concern/DbConnect.php ( 5.16 KB )
  66. /yingpanguazai/ssd/ssd1/www/c.460.net.cn/vendor/topthink/think-orm/src/model/concern/ModelEvent.php ( 2.33 KB )
  67. /yingpanguazai/ssd/ssd1/www/c.460.net.cn/vendor/topthink/think-orm/src/model/concern/RelationShip.php ( 28.29 KB )
  68. /yingpanguazai/ssd/ssd1/www/c.460.net.cn/vendor/topthink/think-helper/src/contract/Arrayable.php ( 0.09 KB )
  69. /yingpanguazai/ssd/ssd1/www/c.460.net.cn/vendor/topthink/think-helper/src/contract/Jsonable.php ( 0.13 KB )
  70. /yingpanguazai/ssd/ssd1/www/c.460.net.cn/vendor/topthink/think-orm/src/model/contract/Modelable.php ( 0.09 KB )
  71. /yingpanguazai/ssd/ssd1/www/c.460.net.cn/vendor/topthink/framework/src/think/Db.php ( 2.88 KB )
  72. /yingpanguazai/ssd/ssd1/www/c.460.net.cn/vendor/topthink/think-orm/src/DbManager.php ( 8.52 KB )
  73. /yingpanguazai/ssd/ssd1/www/c.460.net.cn/vendor/topthink/framework/src/think/Log.php ( 6.28 KB )
  74. /yingpanguazai/ssd/ssd1/www/c.460.net.cn/vendor/topthink/framework/src/think/Manager.php ( 3.92 KB )
  75. /yingpanguazai/ssd/ssd1/www/c.460.net.cn/vendor/psr/log/src/LoggerTrait.php ( 2.69 KB )
  76. /yingpanguazai/ssd/ssd1/www/c.460.net.cn/vendor/psr/log/src/LoggerInterface.php ( 2.71 KB )
  77. /yingpanguazai/ssd/ssd1/www/c.460.net.cn/vendor/topthink/framework/src/think/Cache.php ( 4.92 KB )
  78. /yingpanguazai/ssd/ssd1/www/c.460.net.cn/vendor/psr/simple-cache/src/CacheInterface.php ( 4.71 KB )
  79. /yingpanguazai/ssd/ssd1/www/c.460.net.cn/vendor/topthink/think-helper/src/helper/Arr.php ( 16.63 KB )
  80. /yingpanguazai/ssd/ssd1/www/c.460.net.cn/vendor/topthink/framework/src/think/cache/driver/File.php ( 7.84 KB )
  81. /yingpanguazai/ssd/ssd1/www/c.460.net.cn/vendor/topthink/framework/src/think/cache/Driver.php ( 9.03 KB )
  82. /yingpanguazai/ssd/ssd1/www/c.460.net.cn/vendor/topthink/framework/src/think/contract/CacheHandlerInterface.php ( 1.99 KB )
  83. /yingpanguazai/ssd/ssd1/www/c.460.net.cn/app/Request.php ( 0.09 KB )
  84. /yingpanguazai/ssd/ssd1/www/c.460.net.cn/vendor/topthink/framework/src/think/Request.php ( 55.78 KB )
  85. /yingpanguazai/ssd/ssd1/www/c.460.net.cn/app/middleware.php ( 0.25 KB )
  86. /yingpanguazai/ssd/ssd1/www/c.460.net.cn/vendor/topthink/framework/src/think/Pipeline.php ( 2.61 KB )
  87. /yingpanguazai/ssd/ssd1/www/c.460.net.cn/vendor/topthink/think-trace/src/TraceDebug.php ( 3.40 KB )
  88. /yingpanguazai/ssd/ssd1/www/c.460.net.cn/vendor/topthink/framework/src/think/middleware/SessionInit.php ( 1.94 KB )
  89. /yingpanguazai/ssd/ssd1/www/c.460.net.cn/vendor/topthink/framework/src/think/Session.php ( 1.80 KB )
  90. /yingpanguazai/ssd/ssd1/www/c.460.net.cn/vendor/topthink/framework/src/think/session/driver/File.php ( 6.27 KB )
  91. /yingpanguazai/ssd/ssd1/www/c.460.net.cn/vendor/topthink/framework/src/think/contract/SessionHandlerInterface.php ( 0.87 KB )
  92. /yingpanguazai/ssd/ssd1/www/c.460.net.cn/vendor/topthink/framework/src/think/session/Store.php ( 7.12 KB )
  93. /yingpanguazai/ssd/ssd1/www/c.460.net.cn/vendor/topthink/framework/src/think/Route.php ( 23.73 KB )
  94. /yingpanguazai/ssd/ssd1/www/c.460.net.cn/vendor/topthink/framework/src/think/route/RuleName.php ( 5.75 KB )
  95. /yingpanguazai/ssd/ssd1/www/c.460.net.cn/vendor/topthink/framework/src/think/route/Domain.php ( 2.53 KB )
  96. /yingpanguazai/ssd/ssd1/www/c.460.net.cn/vendor/topthink/framework/src/think/route/RuleGroup.php ( 22.43 KB )
  97. /yingpanguazai/ssd/ssd1/www/c.460.net.cn/vendor/topthink/framework/src/think/route/Rule.php ( 26.95 KB )
  98. /yingpanguazai/ssd/ssd1/www/c.460.net.cn/vendor/topthink/framework/src/think/route/RuleItem.php ( 9.78 KB )
  99. /yingpanguazai/ssd/ssd1/www/c.460.net.cn/route/app.php ( 1.72 KB )
  100. /yingpanguazai/ssd/ssd1/www/c.460.net.cn/vendor/topthink/framework/src/think/facade/Route.php ( 4.70 KB )
  101. /yingpanguazai/ssd/ssd1/www/c.460.net.cn/vendor/topthink/framework/src/think/route/dispatch/Controller.php ( 4.74 KB )
  102. /yingpanguazai/ssd/ssd1/www/c.460.net.cn/vendor/topthink/framework/src/think/route/Dispatch.php ( 10.44 KB )
  103. /yingpanguazai/ssd/ssd1/www/c.460.net.cn/app/controller/Index.php ( 4.81 KB )
  104. /yingpanguazai/ssd/ssd1/www/c.460.net.cn/app/BaseController.php ( 2.05 KB )
  105. /yingpanguazai/ssd/ssd1/www/c.460.net.cn/vendor/topthink/think-orm/src/facade/Db.php ( 0.93 KB )
  106. /yingpanguazai/ssd/ssd1/www/c.460.net.cn/vendor/topthink/think-orm/src/db/connector/Mysql.php ( 5.44 KB )
  107. /yingpanguazai/ssd/ssd1/www/c.460.net.cn/vendor/topthink/think-orm/src/db/PDOConnection.php ( 52.47 KB )
  108. /yingpanguazai/ssd/ssd1/www/c.460.net.cn/vendor/topthink/think-orm/src/db/Connection.php ( 8.39 KB )
  109. /yingpanguazai/ssd/ssd1/www/c.460.net.cn/vendor/topthink/think-orm/src/db/ConnectionInterface.php ( 4.57 KB )
  110. /yingpanguazai/ssd/ssd1/www/c.460.net.cn/vendor/topthink/think-orm/src/db/builder/Mysql.php ( 16.58 KB )
  111. /yingpanguazai/ssd/ssd1/www/c.460.net.cn/vendor/topthink/think-orm/src/db/Builder.php ( 24.06 KB )
  112. /yingpanguazai/ssd/ssd1/www/c.460.net.cn/vendor/topthink/think-orm/src/db/BaseBuilder.php ( 27.50 KB )
  113. /yingpanguazai/ssd/ssd1/www/c.460.net.cn/vendor/topthink/think-orm/src/db/Query.php ( 15.71 KB )
  114. /yingpanguazai/ssd/ssd1/www/c.460.net.cn/vendor/topthink/think-orm/src/db/BaseQuery.php ( 45.13 KB )
  115. /yingpanguazai/ssd/ssd1/www/c.460.net.cn/vendor/topthink/think-orm/src/db/concern/TimeFieldQuery.php ( 7.43 KB )
  116. /yingpanguazai/ssd/ssd1/www/c.460.net.cn/vendor/topthink/think-orm/src/db/concern/AggregateQuery.php ( 3.26 KB )
  117. /yingpanguazai/ssd/ssd1/www/c.460.net.cn/vendor/topthink/think-orm/src/db/concern/ModelRelationQuery.php ( 20.07 KB )
  118. /yingpanguazai/ssd/ssd1/www/c.460.net.cn/vendor/topthink/think-orm/src/db/concern/ParamsBind.php ( 3.66 KB )
  119. /yingpanguazai/ssd/ssd1/www/c.460.net.cn/vendor/topthink/think-orm/src/db/concern/ResultOperation.php ( 7.01 KB )
  120. /yingpanguazai/ssd/ssd1/www/c.460.net.cn/vendor/topthink/think-orm/src/db/concern/WhereQuery.php ( 19.37 KB )
  121. /yingpanguazai/ssd/ssd1/www/c.460.net.cn/vendor/topthink/think-orm/src/db/concern/JoinAndViewQuery.php ( 7.11 KB )
  122. /yingpanguazai/ssd/ssd1/www/c.460.net.cn/vendor/topthink/think-orm/src/db/concern/TableFieldInfo.php ( 2.63 KB )
  123. /yingpanguazai/ssd/ssd1/www/c.460.net.cn/vendor/topthink/think-orm/src/db/concern/Transaction.php ( 2.77 KB )
  124. /yingpanguazai/ssd/ssd1/www/c.460.net.cn/vendor/topthink/framework/src/think/log/driver/File.php ( 5.96 KB )
  125. /yingpanguazai/ssd/ssd1/www/c.460.net.cn/vendor/topthink/framework/src/think/contract/LogHandlerInterface.php ( 0.86 KB )
  126. /yingpanguazai/ssd/ssd1/www/c.460.net.cn/vendor/topthink/framework/src/think/log/Channel.php ( 3.89 KB )
  127. /yingpanguazai/ssd/ssd1/www/c.460.net.cn/vendor/topthink/framework/src/think/event/LogRecord.php ( 1.02 KB )
  128. /yingpanguazai/ssd/ssd1/www/c.460.net.cn/vendor/topthink/think-helper/src/Collection.php ( 16.47 KB )
  129. /yingpanguazai/ssd/ssd1/www/c.460.net.cn/vendor/topthink/framework/src/think/facade/View.php ( 1.70 KB )
  130. /yingpanguazai/ssd/ssd1/www/c.460.net.cn/vendor/topthink/framework/src/think/View.php ( 4.39 KB )
  131. /yingpanguazai/ssd/ssd1/www/c.460.net.cn/vendor/topthink/framework/src/think/Response.php ( 8.81 KB )
  132. /yingpanguazai/ssd/ssd1/www/c.460.net.cn/vendor/topthink/framework/src/think/response/View.php ( 3.29 KB )
  133. /yingpanguazai/ssd/ssd1/www/c.460.net.cn/vendor/topthink/framework/src/think/Cookie.php ( 6.06 KB )
  134. /yingpanguazai/ssd/ssd1/www/c.460.net.cn/vendor/topthink/think-view/src/Think.php ( 8.38 KB )
  135. /yingpanguazai/ssd/ssd1/www/c.460.net.cn/vendor/topthink/framework/src/think/contract/TemplateHandlerInterface.php ( 1.60 KB )
  136. /yingpanguazai/ssd/ssd1/www/c.460.net.cn/vendor/topthink/think-template/src/Template.php ( 46.61 KB )
  137. /yingpanguazai/ssd/ssd1/www/c.460.net.cn/vendor/topthink/think-template/src/template/driver/File.php ( 2.41 KB )
  138. /yingpanguazai/ssd/ssd1/www/c.460.net.cn/vendor/topthink/think-template/src/template/contract/DriverInterface.php ( 0.86 KB )
  139. /yingpanguazai/ssd/ssd1/www/c.460.net.cn/runtime/temp/a3df6b94aede6ebd0d2926ccdfcd20d5.php ( 11.98 KB )
  140. /yingpanguazai/ssd/ssd1/www/c.460.net.cn/vendor/topthink/think-trace/src/Html.php ( 4.42 KB )
  1. CONNECT:[ UseTime:0.001292s ] mysql:host=127.0.0.1;port=3306;dbname=c460;charset=utf8mb4
  2. SHOW FULL COLUMNS FROM `fenlei` [ RunTime:0.001735s ]
  3. SELECT * FROM `fenlei` WHERE `fid` = 0 [ RunTime:0.004337s ]
  4. SELECT * FROM `fenlei` WHERE `fid` = 63 [ RunTime:0.009343s ]
  5. SHOW FULL COLUMNS FROM `set` [ RunTime:0.001560s ]
  6. SELECT * FROM `set` [ RunTime:0.009203s ]
  7. SHOW FULL COLUMNS FROM `article` [ RunTime:0.001992s ]
  8. SELECT * FROM `article` WHERE `id` = 485930 LIMIT 1 [ RunTime:0.033768s ]
  9. UPDATE `article` SET `lasttime` = 1778781858 WHERE `id` = 485930 [ RunTime:0.015559s ]
  10. SELECT * FROM `fenlei` WHERE `id` = 65 LIMIT 1 [ RunTime:0.000900s ]
  11. SELECT * FROM `article` WHERE `id` < 485930 ORDER BY `id` DESC LIMIT 1 [ RunTime:0.002041s ]
  12. SELECT * FROM `article` WHERE `id` > 485930 ORDER BY `id` ASC LIMIT 1 [ RunTime:0.022180s ]
  13. SELECT * FROM `article` WHERE `id` < 485930 ORDER BY `id` DESC LIMIT 10 [ RunTime:0.083741s ]
  14. SELECT * FROM `article` WHERE `id` < 485930 ORDER BY `id` DESC LIMIT 10,10 [ RunTime:0.019683s ]
  15. SELECT * FROM `article` WHERE `id` < 485930 ORDER BY `id` DESC LIMIT 20,10 [ RunTime:0.009959s ]
0.346858s