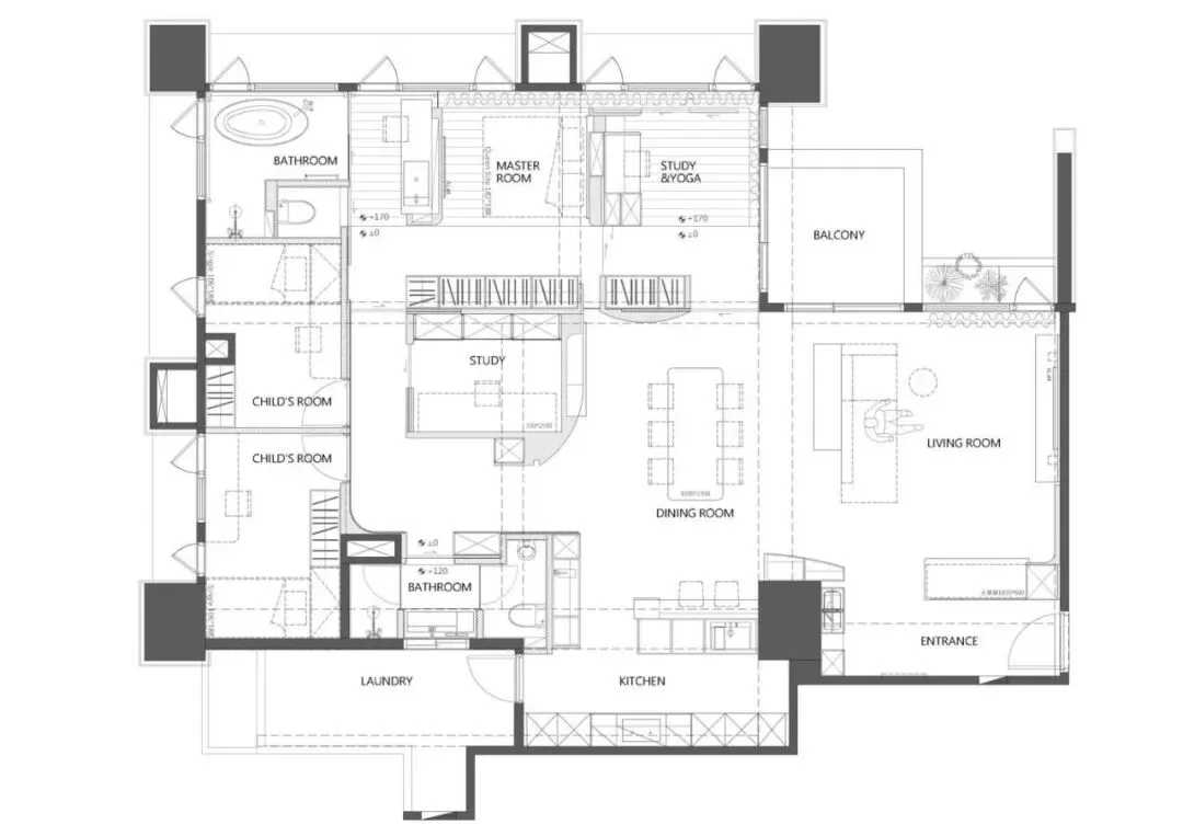
好的东西,是会引起共鸣的。好的空间,是会让人暂时卸下防备顺势躺在沙发上然后长叹一口气,让人在繁杂生活里依旧拥有一颗平静的心。当我第一次看到这个空间的时候,我感受到了洗完澡吹完头发的清爽,还有假期刚开始的松弛感,或许我们的理想不同,但那份对归处安宁的渴求始终相通。原方正客厅打通邻间与阳台,打造洄游式的空间,将电视墙连通客厅、书房与茶室;拆除玻璃隔断,扩大景观视野,日常收纳归入书房柜体,保持空间简约通透,如此一来,增添了更多不同生活场景的可能,加深生活的自在,减少生活的繁杂。广州私宅,250㎡。以城市美景作窗画,以线条描述结构,以浅色衬托色彩,以温柔赋以温度,以自然给予灵动。一切都是刚刚好。设计之前,设计师说:目前您比较喜欢什么样的生活方式或者想要参考什么样的空间案例呢?业主说:我现在就处于一个‘做减法’的人生阶段,孩子大了,家人的工作和生活也都稳定了,以前住的空间都是千家万户的大多数,现在就想改变一下,甚至是突破自己,希望给自己和家人一个全新的生活方式,如果非要我给出要求的话,我就希望我回家以后是可以赤脚走在家里,随意靠在墙边或者坐在家里的某个地方,我内心平静一点点,我的身体舒展一点点。“不设限”这三个字不仅是业主的信任,对设计师来说,动力和压力同时扑面而来。干湿分区以透光移门隔断,增设水波纹艺术移门双重闭合,日常透光通透明亮,高隐私需求时双重门全闭隔绝,满足不同人的隐私需求。△平面图
项目地址丨中国·广州
设计公司丨里见设计 Atelier LIJIAN
项目年份丨2025年
建筑面积丨250㎡
主创设计丨李健
设计团队丨马健文、李健强、贺宁
艺术策划丨lagom design-贺宁
执行统筹丨潘智、李薇
中国·桃园159㎡极简平层-Slow Rhythm考量屋主的使用习惯,将原本的三房改为四房,并面对较低的樑柱,更要思考如何在有限的范围内,确保整体舒适度与功能性。在空间操作上,天花与立面透过不同形式的弧形取代锐利的线条,让圆润的元素贯穿整个空间,从而弱化压迫感并自然引导视觉,使整体更加开阔。圆弧不仅成为结构的延伸,更是串联空间氛围的关键元素。空间配置上,以书房作为核心延伸回字动线,串连各个功能区域。主卧采用架高地坪搭配一字型的廊道,巧妙划分不同的使用空间,既保持通透感,又能有效区隔各功能使用,增强灵活性并提升空间的串联性。透过圆润的线条勾勒生活的轮廓,整体调性以温润的暖色为主,通过不同彩度的堆叠,营造丰富层次感赋予空间流动的静谧感。Global Habitat Design Awards第 | 二 | 轮 | 火 | 热 | 申 | 报 | 中
地标建筑、顶奢酒店、高端住宅、艺术馆、公共建筑与景观