新洲是深圳福田中心区南侧重要的居住生活区,多年的商住与城中村并置,丰富的城市肌理形成多样的社区与街道生活。本人早年落脚深圳,也曾在新洲居住7年,它或许不够“美观”,不够“高效”,却提供了标准化城市开发中日益稀缺的东西:生活的偶然性、社会的多样性、空间的包容性与成长的有机性,这里是一面诚实的镜子,映照出一座超级城市在宏伟叙事之下,细腻而坚韧的日常生活原力。场地西南侧福强路是城市主干道,噪音较大。西北新洲五街,东北侧新洲七街为城市支路是建筑组织出入的主要界面。项目整体容积率2.26,是深圳高密度校园的典型。规避噪音,“上天下地”寻找空间,很快通过多方案比较得到了一个较为理性的总体布局,随后便展开建筑的设计。
开放共享式教育
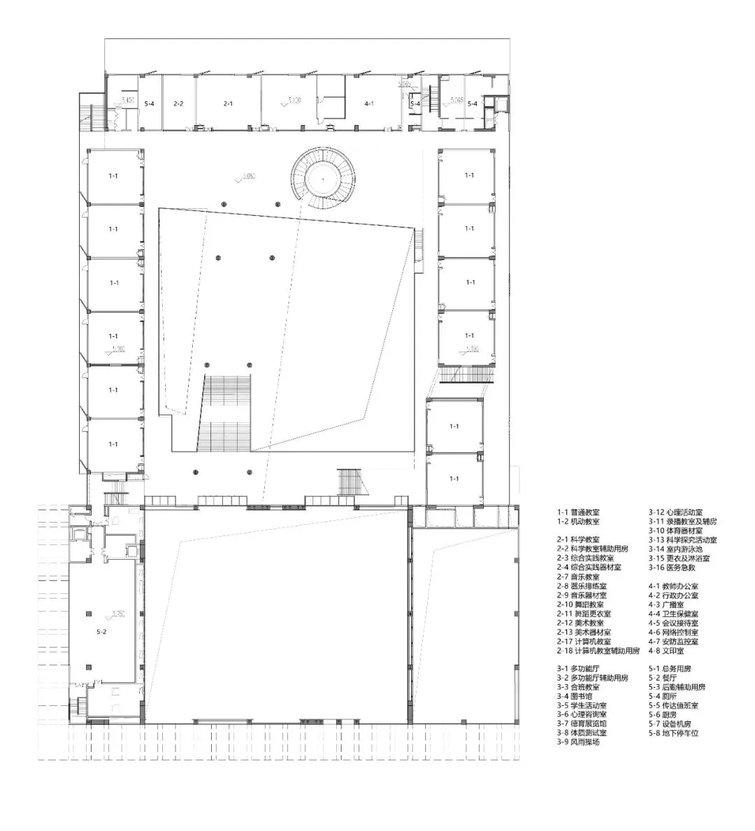
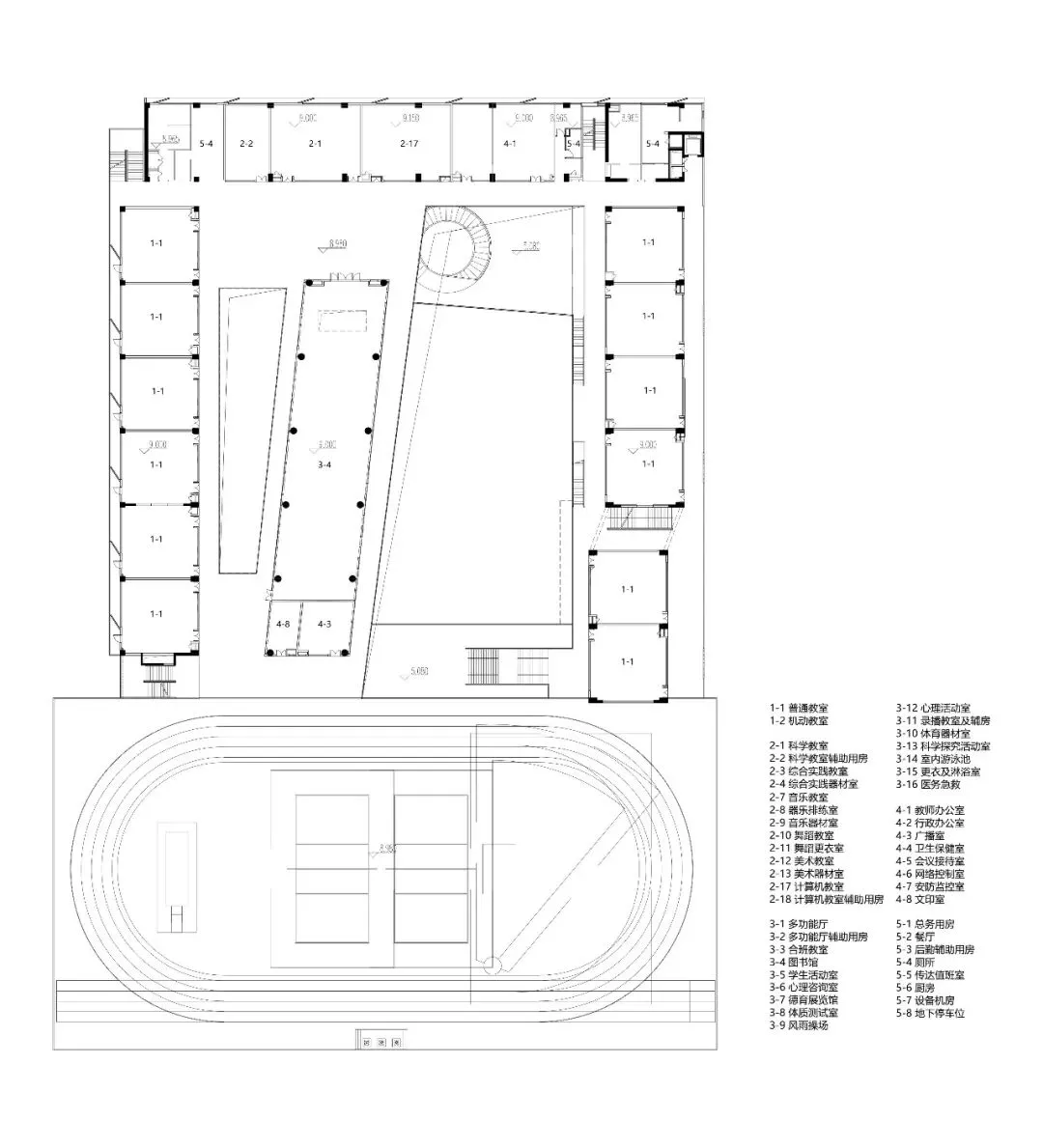
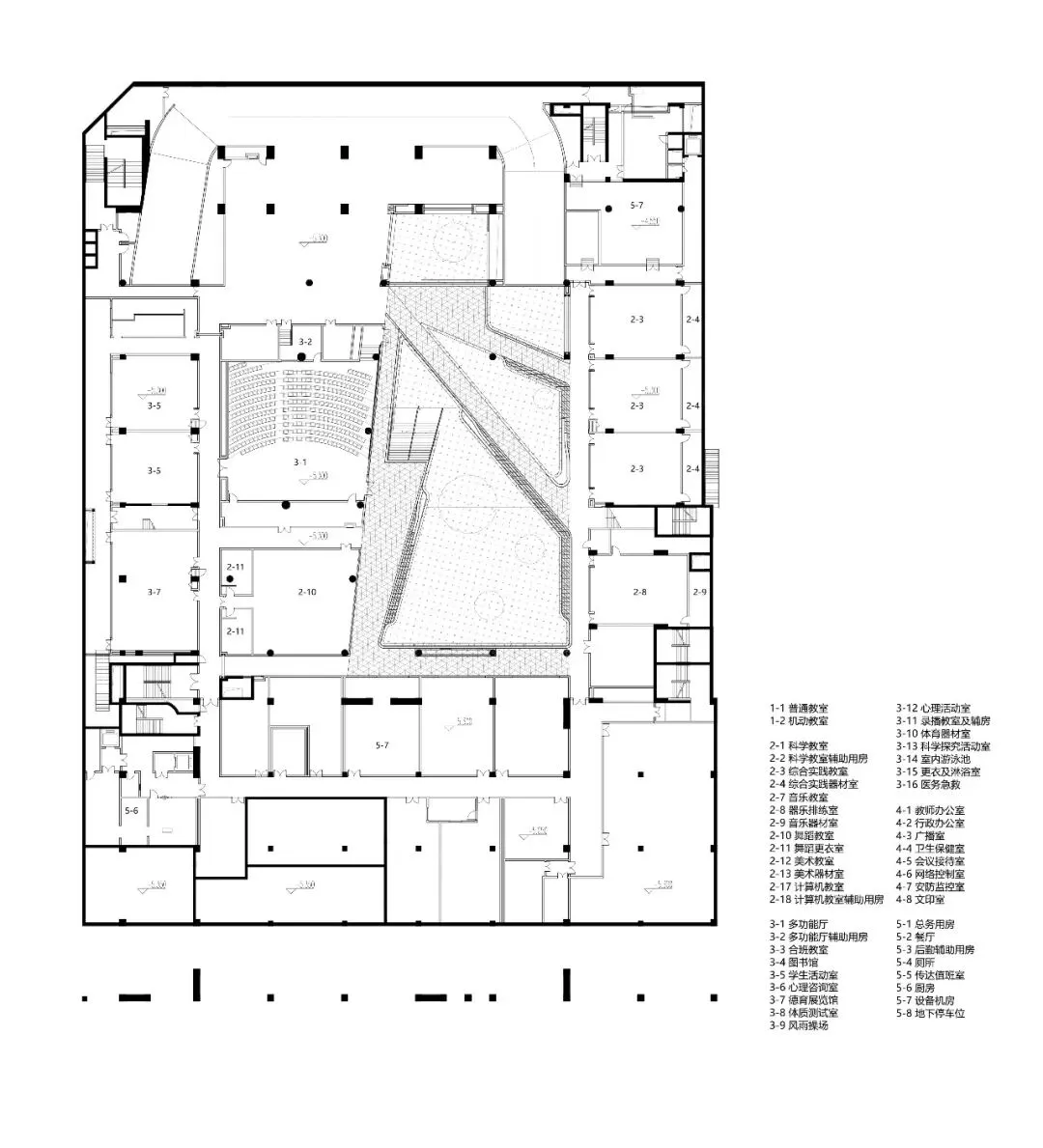
开放式学校出现在上世纪50年代美国,它打破年级界限,把各式电子教学设施集中起来形成全校的教学情报资料中心。这个空间通常布置在校园平面的中心部位, 形成一个多功能综合性的“学习中心”。绿洲小学的设计以“U”型半围合的院子为类型作为空间原型,普通教室单元布置在周边,把所有共享功能,绿化围绕中庭展开,形成一个开放共享教育的发生场地。中央庭院不仅是视觉焦点,更是学校各类活动的核心舞台。图书馆、报告厅、体育馆、游泳馆、艺术教室、科学实验室等共享功能空间面向庭院开放,使学习从封闭的教室延伸到整个校园。这种布局鼓励跨年级交流、激发偶然相遇与知识碰撞,将“开放教育”理念具象化为可感知、可体验的空间现实。
多零层活动平台
通过水平楼板组织活动空间,强调建筑的水平性,楼板截面整合空调、设备管线,形成一块纯粹的“板”,层与层交错,富有变化。
设计草图
课间十分钟通常被认为是“无法有效利用的碎片时间”,但在绿洲小学,这段短暂的时间被赋予了新的价值。学生只需几步就能从教室来到平台,享受阳光、新鲜空气和短暂的游戏。这种设计深刻理解儿童行为特征——他们需要频繁的休息和活动来维持注意力,而非长时间困在固定座位上。
垂直维度的平等化:传统教学楼中,高层班级的学生往往难以在课间到达地面活动场地。多平台设计消除了这种垂直不平等,确保每个学生,无论所在楼层高低,都能平等享受活动空间。这些平台不仅是过渡区域,更是小型社交中心、临时展览空间和非正式学习场所,极大地丰富了校园生活的层次。
同时,我们在这些平板之中“随意”放置了若干的“异物”,与学生相遇,成为日常的”玩具”。
©樊钊明
©樊钊明
©袁小宜
©朱雄毅
多孔、开放的校园
在深圳湿热的气候条件下,多孔设计促进了自然通风和散热。错落有致的开口形成风道,引导气流穿越建筑群;遮阳设施与绿植结合,创造了舒适的微气候。这种设计既降低了能耗,也让学生亲身体验可持续设计的价值。设计草图
©樊钊明
©樊钊明
©樊钊明
©樊钊明
©朱雄毅
高密度之后
在深圳持续演进的新校园建设中,应对高密度挑战的设计策略已日趋完善,形成一套成熟而富有弹性的“工具包”。高密度不再必然指向压抑与单调,反而能被转化为塑造场所特色、激发空间潜力的独特机遇。
解决高密度问题之后,我们的目光终究需要回归到教育与空间的本质关系上。通过多次的回访与观察,我们发现这所嵌入城中村的校园,其内在气质似乎也悄然浸润着新洲社区特有的环境氛围。在这里,过度的管控与约束悄然退场,取而代之的是一份自然而生的自由与轻松。令人欣慰的是,这种氛围让空间的使用方式,在很大程度上贴近了设计最初的构想与期待——空间与行为之间,呈现出一种少见的、良性而活泼的默契。

©樊钊明
©朱雄毅
©方芳
©朱雄毅
©樊钊明
游泳馆室内照片©樊钊明
体育馆室内照片©方芳
食堂室内照片©袁小宜
报告厅室内照片©廖洪锋
报告厅吊顶照片©廖洪锋
施工过程©朱雄毅
施工过程©朱雄毅
施工过程©朱雄毅
施工过程©朱雄毅
技术图纸
方案设计团队:余陈华、廖洪锋、林华妹、罗哲志、薛梦琦、夏坚强、詹文泽、林兆锦建筑:朱宁、宋洪波、贾翀赫、彭玉凤、崔文武、方若慧、李海福机电:朱永斌、杨德志、姚京辉、刘康荣、张维业、杨纪超、康少军、黄嘉伟、刘俊、谭晓军、唐平成、陈多纳景观:汪春厚、伍艳瑜、杨丽娟、陈诚、戴超、崔敏、黄燚、鄢小娜
室内:深圳卓艺装饰设计工程有限公司
标识:深圳市自由空间标识有限公司
-END-版权归原作者所有如有部分权属不清导致的侵权请联系我们删除
点“在看”,传播建筑之美