
东莞市人民医院现有地面商业将于4月份全部关停,
全面由地下商业街承接!
没看错!是真的!
随着轨道交通1号线人民医院站正式开通,
东莞市人民医院TID项目,
已正式投入运营!

该项目规划超2600㎡"地下商业街"
"无风雨出行模式"
"嵌入式立体交通"
"天然医疗资源流量池"…
坐拥多种优势条件
东莞市人民医院TID项目医疗"商业街"招商
火热进行中!




东莞市人民医院作为
东莞最大的公立医院,
设有红楼、普济两个院区,
其中红楼院区,
总占地29万㎡ 、建面约18万㎡。

本项目就设置在东莞市人民医院(红楼院区)内部,
依托东莞市人民医院(三级甲等),
年超250万人次的门、急诊量,
未来BNCT国际治疗中心落地,
吸引全国高端医疗需求人群。
日均客流近20000人次,
汇聚就医、陪护、医护、
科研等高消费力稳定客群。

BNCT项目治疗中心大楼

"嵌入式立体交通,轻松实现'无风雨'出行"
作为地铁1号线站点上盖项目,
该项目所处人民医院站,
5站直达鸿福路核心商圈(换乘2号线),
3站接驳东莞西站,
快速对接穗莞深城际、佛莞惠城际,
院区地下二层与地铁站厅无缝衔接,
街坊们从地铁出站,
就可以直达下沉广场配套、
医院门诊、科教综合楼等功能区。
简直不要太贴心!

立体交通流线规划示意图
项目首层设置公交枢纽站
地下负一层设置社会车辆即停即走区,
地下新增超1200个社会停车位,
已正式投入使用!
全面升级市民的就医体验~

地下新增的社会停车位实拍图

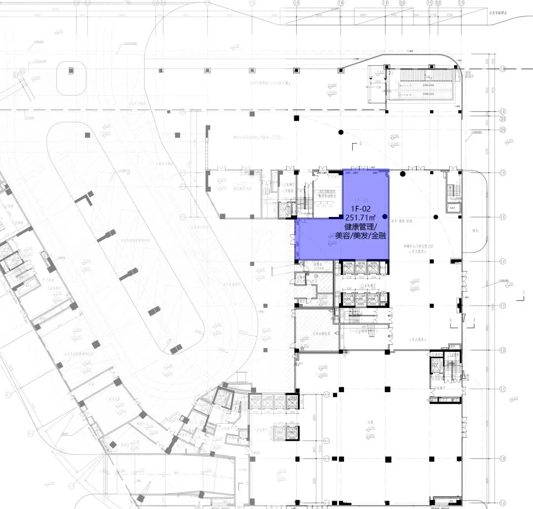
本项目商业共三层,
规划28个商铺,
涵盖餐饮、零售、配套服务。
基于首批招商的成功经验与市场反馈,
现正式启动第二批,
共19个铺位的公开招租工作。
分布更广、业态更全,
能满足不同业态的经营需求!

挂网公告请点击下方文字跳转小程序查看
B1:
B1-02、03、B1-06、B1-07、B1-09、B1-11-1、B1-12、13、B1-14
B2:
B2-01、B2-02、B2-05、B2-06、B2-07、B2-08、B2-09、B2-10、B2-11、B2-12、13、B2-14
1F:
自首批7个黄金铺位公开招租以来,
东莞市人民医院TID项目,
受到市场高度关注与积极响应!
目前,首批招租已顺利完成~
瑞幸咖啡、永和大王、美宜佳便利店、
仟福粥点、露丝卡文世界冠军面包…
一众知名品牌已确认入驻,
共同打造"医疗+生活"服务矩阵~
招商的靓铺位置放在下面啦!



本次公开招租的19间铺位,
位于东莞市万江街道万道路78号
东莞市人民医院(红楼院区),
均已明确业态定位与资格要求,
面向符合条件的个人/企业开放竞投。
那么如何参与竞投呢?
重点看这里!
挂网平台:
广州产权交易所(广东联合产权交易中心子平台)
挂网时间:
详见平台公示内容
服务费用:
由承租方支付,为成交首年月租金的48%(单宗不低于600元)
✅中华人民共和国境内注册成立、合法存续的法人、非法人组织或具有完全民事行为能力的自然人(含个体工商户)。
✅无失信、重大违约、违法记录
✅符合各商铺的业态用途要求、品牌品质要求(详见挂网公告)
1、品牌商标注册证或品牌授权书
2、身份证明、信用查询证明材料
3、品牌品质要求证明相关材料(详见挂网公告)
更多铺位详情与资格要求:请关注广州产权交易所相关挂牌信息
医院现有地面商铺将于4月份全部关停,全面由地下商业街承接!
我们期待与优质商家携手合作,让这片"医疗+健康配套"的潜力区域,
爆发出更大活力、创造更多可能!
- 招商热线 -
孙先生
18688613703
廖小姐
15019942740
- 项目地址 -
东莞万江街道东莞市人民医院(红楼院区)
(东莞地铁1号线人民医院站上盖)

