当前位置:首页>东莞>建筑模型博物馆广州馆·馆藏 | 建筑模型博物馆广州馆 / 何健翔

建筑模型博物馆广州馆·馆藏 | 建筑模型博物馆广州馆 / 何健翔

  • 2026-05-09 16:09:30
建筑模型博物馆广州馆·馆藏 | 建筑模型博物馆广州馆 / 何健翔

不同于建筑图纸的抽象构思,模型以其可视、可感、可近的特质,承载着设计背后的思想路径与空间构想,是建筑创作的缩影,也是公共认知建筑文化的重要媒介。

建筑模型博物馆的馆藏介绍系列推文将围绕“M.O.D.E.L.S.”六大展陈板块,从纪念性空间到在地建造,从密度聚落到岭南语境,带领大家走近每一个模型背后的设计者、项目现场与建构逻辑。

模型之形,亦是思想之形。在建筑模型中,共同阅读模型背后的城市、建筑与社会关系,在微观与宏观的辩证中,思考空间、结构与人文的深层关联。

建筑模型博物馆收藏 来自

源计划建筑师事务所

建筑模型博物馆广州馆 / 何健翔

Architect Model Museum (GuangZhou)/  He Jianxiang·O-office Architects

▲建筑模型博物馆馆藏

▲建筑实景

微观岭南

建筑模型博物馆空间设计

建筑模型博物馆广州馆设置于广州城市中心北部白云区鹤龙街道黄边村的“设计之都”产业服务区中心建筑 —— “设计殿堂”的三层。作为新都市区引进的首个重要公共文化空间,模型博物馆的前身、构想及落成的全过程可以看作为一部在地的城建发展史的浓缩版本。

△模型博物馆展陈公共空间 © 吴嗣铭

△土楼空间入口© 吴嗣铭

△多义空间 © 吴嗣铭

场址 形制

“设计之都”所在场地原本属典型的城乡结合地带,由城中村落、农耕田地以及 2000 年后逐步发展起来的工业棚屋区组成。2005 年,由雷姆•库哈斯选址并设计的时代美术馆在“时代玫瑰园”的全新高层住区顶层跃现,预言了未来“设计之都”的文艺基因。如今,这片往昔带着浓郁农耕意味的城乡结合区俨然已为高楼林立、车马川流的现代城区。由何镜堂院士主持设计的“设计殿堂”坐落于“设计之都”首期开发的中央空间之中。

△“设计之都”城区演变:(左)2005 年,(右)2025 年

 © 源计划建筑师事务所

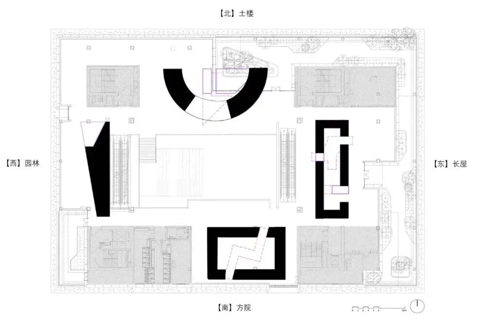
建筑为中心形制,由四个结构筒体支撑悬挂着的 4 层展览会议空间坐落在抬升的基座之上。模型博物馆选取了设计殿堂三层作为其启动和引流空间,并为其提供一个常设的公共展览场所。该层建筑空间平面被四个结构筒体划分为东南西北四个相对独立又相互流通的区间,其独特之处是由北侧向东侧环绕的半户外庭园,彰显建筑的岭南属性。

△“设计殿堂” 剖面图及 3F 平面图 

© 源计划建筑师事务所

△园林空间展陈 © 吴嗣铭

△两种构筑叙事的穿插 © 吴嗣铭

△长屋内部空间 © 吴嗣铭

原型 岭南

与内陆和“北方”相对,岭南地域本有着独特的地理和人文内涵,但随着现代性技术文明对珠三角原有农商文明的吞袭,城市和空间岭南属性被逐步消解。当我们回看过去四十年的地域城建历史,自觉需要在新空间营造中重新反思,把地域精神通过某种策略和新的方法论嫁接于现代性议程,从而创建所谓“新岭南性”。

△四个岭南民居“原型”,从左往右依次:土楼,长屋,方院,园林 

© 源计划建筑师事务所

△四个“原型”被植入“设计殿堂” 3F 平面图

 © 源计划建筑师事务所

而岭南地域最重要的文化特征是其历史动因所构成的多元文化图景:不同的历史时期不同的族群迁徙所汇入、却又保持各自的文化源头的“杂糅”,加上作为近代全球化重要节点所受的外来(对我们而言可以以为是“西方”)的文化影响所发生的进一步“混交(hybrid)”,构成岭南地域建筑文化的强烈特征。

通过对岭南传统民居建筑空间的类型学研究,我们梳理了岭南地区所留存的不通过房屋类型,最终选择了土楼、长屋、方院和园林这四种最具代表性的空间,经过抽象化的转译而获得四个形态各异并且与现场四个展厅分别相适应的空间原型。这四个原型被立体化后,以“内建筑(internal architecture)”的形式分列在四向的展厅中,作为博物馆内部空间体验的原型。

△四个“原型”的立体演化,从上往下:土楼,长屋,方院,园林

 © 源计划建筑师事务所

△土楼入口空间 © 吴嗣铭

△长屋木构呈现 © 吴嗣铭

△方院空间入口 © 吴嗣铭

△园林意向空间 © 吴嗣铭

建构 体验

建构是将四个建筑“原型”在“殿堂”空间中游历体验和落实展陈的具体路径。建造材质选择上希望回到一种抽象原初感,结合模型展示和预制加工的需求,设计最终聚焦在热轧钢板的构建。它色调暗黑、富有强度、且易于标准化加工和拼装。针对四个建筑“原型”,我们设计了四种不同的单元式折叠和装配方式,每个单元的宽度均为模型展示所需的 1.5 米宽度和 0.9 米高度模数的变化组合。

△5 种模数化展架类型配合不同的观看方式

 © 源计划建筑师事务所

△土楼空间次入口 © 吴嗣铭

△长屋钢构展架剖面构造 © 吴嗣铭

其次为了增加现场体验和路径的维度,每个“原型”框架之中被植入一组带有现象学意义的“事件性(event)”木构空间,在形式和材质上均对理性、冷峻的刚性构架产生干预并生产对话,为整体水平漫游的空间体系提供不同高程上的观看视角与偶发(sporadic)相遇。传统建筑的形制和尺度被复合至现代性都市仪式空间之中,通过标准化现代性的生产和拼装所呈现的诸多空间和建造细节,构成了速生城市中的“内在风景(arch-scape)”。

△四种“原型”的单元建造,模数均为 1500mm × 900mm × 4800mm 

© 源计划建筑师事务所

△模数化的钢构展架 © 吴嗣铭

△沿墙自发光展架 © 吴嗣铭

△园林断桥细节构造 © 吴嗣铭

微观 都市

北展厅的土楼“原型”空间从室内延伸至室外庭园,并营造了博物馆的前厅空间。东展厅的长屋“原型”配合了该空间南北长向的特性,同时让外溢的两个小空间得以围合合适室内装置展览的空间。方院“原型”合理地布置于南展厅的方正空间之中,通过自身单元的偏转营造空间的多义性。

△内部微都市系统的生成

 © 源计划建筑师事务所

△“路径”平面图 

© 源计划建筑师事务所

△土楼内部空间对话 © 吴嗣铭

△土楼木构延伸至户外平台 © 吴嗣铭

△长屋内外之间 © 吴嗣铭

△方院空间外部展廊 © 吴嗣铭

西展厅的狭小空间中截取了传统“园林”中拱桥原型的片段进行植入,形成一个可登高放松的身体性体验场所。从北侧延伸至东侧的半室外庭园则被改造成为一组由岭南绿植相间布置的户外展示和休闲平台。四组岭南地域历史空间“原型”加上内在的“事件性”空间组合,最终在已有的建筑内部复杂性之内形成设计所称之为的“微观都市”的内化聚落效应。

△桥上空间 © 吴嗣铭

△张永和作品“寻找帕拉迪奥” © 吴嗣铭

图文编辑&模型摄影:建筑模型博物馆广州馆

部分图文来源:建日筑闻微信公众号

关于我们:

建筑模型博物馆广州馆是由风语筑创建的以建筑模型为主题的先锋艺术场馆,何镜堂院士主持建筑设计,源计划事务所担纲展陈设计。博物馆拥有高水准藏品体系与宋春华、何镜堂等14位学术委员构成的学术资源队伍。

博物馆以建筑模型为媒介,聚合建筑与艺术领域资源,呈现从概念到建造的完整历程。依托专业收藏与学术研究,构建建筑文化传播与空间教育的实验平台。  

△ 建筑模型博物馆广州馆

参观指南:

博物馆地址:广州市白云区设计之都设计殿堂 3F

· 地铁2号线黄边站:D出口步行约10分钟

· 公交黄边北路站:步行约7分钟

· 自驾导航至 广州设计之都停车场(环隧东入口),往E3栋方向,乘坐电梯可达地面

建筑模型博物馆

ARCHITECTUAL MODEL MUSEUM

大湾区首个建筑模型博物馆

馆内收藏众多著名建筑师手工模型

融合岭南地域特色与数字化展陈空间

打造“微都市”空间体验的实验场地

广州市白云区设计之都设计殿堂3F

.....................

ArchModelMuseum

中国建筑模型博物馆

喜欢这篇文章,给你更多「好看」  ▽

最新文章

随机文章

基本 文件 流程 错误 SQL 调试
  1. 请求信息 : 2026-05-11 04:33:11 HTTP/2.0 GET : https://c.460.net.cn/a/460700.html
  2. 运行时间 : 0.347455s [ 吞吐率:2.88req/s ] 内存消耗:4,548.12kb 文件加载:140
  3. 缓存信息 : 0 reads,0 writes
  4. 会话信息 : SESSION_ID=de077ba43921b86e4f28ff8029ffc53a
  1. /yingpanguazai/ssd/ssd1/www/c.460.net.cn/public/index.php ( 0.79 KB )
  2. /yingpanguazai/ssd/ssd1/www/c.460.net.cn/vendor/autoload.php ( 0.17 KB )
  3. /yingpanguazai/ssd/ssd1/www/c.460.net.cn/vendor/composer/autoload_real.php ( 2.49 KB )
  4. /yingpanguazai/ssd/ssd1/www/c.460.net.cn/vendor/composer/platform_check.php ( 0.90 KB )
  5. /yingpanguazai/ssd/ssd1/www/c.460.net.cn/vendor/composer/ClassLoader.php ( 14.03 KB )
  6. /yingpanguazai/ssd/ssd1/www/c.460.net.cn/vendor/composer/autoload_static.php ( 4.90 KB )
  7. /yingpanguazai/ssd/ssd1/www/c.460.net.cn/vendor/topthink/think-helper/src/helper.php ( 8.34 KB )
  8. /yingpanguazai/ssd/ssd1/www/c.460.net.cn/vendor/topthink/think-validate/src/helper.php ( 2.19 KB )
  9. /yingpanguazai/ssd/ssd1/www/c.460.net.cn/vendor/topthink/think-orm/src/helper.php ( 1.47 KB )
  10. /yingpanguazai/ssd/ssd1/www/c.460.net.cn/vendor/topthink/think-orm/stubs/load_stubs.php ( 0.16 KB )
  11. /yingpanguazai/ssd/ssd1/www/c.460.net.cn/vendor/topthink/framework/src/think/Exception.php ( 1.69 KB )
  12. /yingpanguazai/ssd/ssd1/www/c.460.net.cn/vendor/topthink/think-container/src/Facade.php ( 2.71 KB )
  13. /yingpanguazai/ssd/ssd1/www/c.460.net.cn/vendor/symfony/deprecation-contracts/function.php ( 0.99 KB )
  14. /yingpanguazai/ssd/ssd1/www/c.460.net.cn/vendor/symfony/polyfill-mbstring/bootstrap.php ( 8.26 KB )
  15. /yingpanguazai/ssd/ssd1/www/c.460.net.cn/vendor/symfony/polyfill-mbstring/bootstrap80.php ( 9.78 KB )
  16. /yingpanguazai/ssd/ssd1/www/c.460.net.cn/vendor/symfony/var-dumper/Resources/functions/dump.php ( 1.49 KB )
  17. /yingpanguazai/ssd/ssd1/www/c.460.net.cn/vendor/topthink/think-dumper/src/helper.php ( 0.18 KB )
  18. /yingpanguazai/ssd/ssd1/www/c.460.net.cn/vendor/symfony/var-dumper/VarDumper.php ( 4.30 KB )
  19. /yingpanguazai/ssd/ssd1/www/c.460.net.cn/vendor/topthink/framework/src/think/App.php ( 15.30 KB )
  20. /yingpanguazai/ssd/ssd1/www/c.460.net.cn/vendor/topthink/think-container/src/Container.php ( 15.76 KB )
  21. /yingpanguazai/ssd/ssd1/www/c.460.net.cn/vendor/psr/container/src/ContainerInterface.php ( 1.02 KB )
  22. /yingpanguazai/ssd/ssd1/www/c.460.net.cn/app/provider.php ( 0.19 KB )
  23. /yingpanguazai/ssd/ssd1/www/c.460.net.cn/vendor/topthink/framework/src/think/Http.php ( 6.04 KB )
  24. /yingpanguazai/ssd/ssd1/www/c.460.net.cn/vendor/topthink/think-helper/src/helper/Str.php ( 7.29 KB )
  25. /yingpanguazai/ssd/ssd1/www/c.460.net.cn/vendor/topthink/framework/src/think/Env.php ( 4.68 KB )
  26. /yingpanguazai/ssd/ssd1/www/c.460.net.cn/app/common.php ( 0.03 KB )
  27. /yingpanguazai/ssd/ssd1/www/c.460.net.cn/vendor/topthink/framework/src/helper.php ( 18.78 KB )
  28. /yingpanguazai/ssd/ssd1/www/c.460.net.cn/vendor/topthink/framework/src/think/Config.php ( 5.54 KB )
  29. /yingpanguazai/ssd/ssd1/www/c.460.net.cn/config/app.php ( 0.95 KB )
  30. /yingpanguazai/ssd/ssd1/www/c.460.net.cn/config/cache.php ( 0.78 KB )
  31. /yingpanguazai/ssd/ssd1/www/c.460.net.cn/config/console.php ( 0.23 KB )
  32. /yingpanguazai/ssd/ssd1/www/c.460.net.cn/config/cookie.php ( 0.56 KB )
  33. /yingpanguazai/ssd/ssd1/www/c.460.net.cn/config/database.php ( 2.47 KB )
  34. /yingpanguazai/ssd/ssd1/www/c.460.net.cn/vendor/topthink/framework/src/think/facade/Env.php ( 1.67 KB )
  35. /yingpanguazai/ssd/ssd1/www/c.460.net.cn/config/filesystem.php ( 0.61 KB )
  36. /yingpanguazai/ssd/ssd1/www/c.460.net.cn/config/lang.php ( 0.91 KB )
  37. /yingpanguazai/ssd/ssd1/www/c.460.net.cn/config/log.php ( 1.35 KB )
  38. /yingpanguazai/ssd/ssd1/www/c.460.net.cn/config/middleware.php ( 0.19 KB )
  39. /yingpanguazai/ssd/ssd1/www/c.460.net.cn/config/route.php ( 1.89 KB )
  40. /yingpanguazai/ssd/ssd1/www/c.460.net.cn/config/session.php ( 0.57 KB )
  41. /yingpanguazai/ssd/ssd1/www/c.460.net.cn/config/trace.php ( 0.34 KB )
  42. /yingpanguazai/ssd/ssd1/www/c.460.net.cn/config/view.php ( 0.82 KB )
  43. /yingpanguazai/ssd/ssd1/www/c.460.net.cn/app/event.php ( 0.25 KB )
  44. /yingpanguazai/ssd/ssd1/www/c.460.net.cn/vendor/topthink/framework/src/think/Event.php ( 7.67 KB )
  45. /yingpanguazai/ssd/ssd1/www/c.460.net.cn/app/service.php ( 0.13 KB )
  46. /yingpanguazai/ssd/ssd1/www/c.460.net.cn/app/AppService.php ( 0.26 KB )
  47. /yingpanguazai/ssd/ssd1/www/c.460.net.cn/vendor/topthink/framework/src/think/Service.php ( 1.64 KB )
  48. /yingpanguazai/ssd/ssd1/www/c.460.net.cn/vendor/topthink/framework/src/think/Lang.php ( 7.35 KB )
  49. /yingpanguazai/ssd/ssd1/www/c.460.net.cn/vendor/topthink/framework/src/lang/zh-cn.php ( 13.70 KB )
  50. /yingpanguazai/ssd/ssd1/www/c.460.net.cn/vendor/topthink/framework/src/think/initializer/Error.php ( 3.31 KB )
  51. /yingpanguazai/ssd/ssd1/www/c.460.net.cn/vendor/topthink/framework/src/think/initializer/RegisterService.php ( 1.33 KB )
  52. /yingpanguazai/ssd/ssd1/www/c.460.net.cn/vendor/services.php ( 0.14 KB )
  53. /yingpanguazai/ssd/ssd1/www/c.460.net.cn/vendor/topthink/framework/src/think/service/PaginatorService.php ( 1.52 KB )
  54. /yingpanguazai/ssd/ssd1/www/c.460.net.cn/vendor/topthink/framework/src/think/service/ValidateService.php ( 0.99 KB )
  55. /yingpanguazai/ssd/ssd1/www/c.460.net.cn/vendor/topthink/framework/src/think/service/ModelService.php ( 2.04 KB )
  56. /yingpanguazai/ssd/ssd1/www/c.460.net.cn/vendor/topthink/think-trace/src/Service.php ( 0.77 KB )
  57. /yingpanguazai/ssd/ssd1/www/c.460.net.cn/vendor/topthink/framework/src/think/Middleware.php ( 6.72 KB )
  58. /yingpanguazai/ssd/ssd1/www/c.460.net.cn/vendor/topthink/framework/src/think/initializer/BootService.php ( 0.77 KB )
  59. /yingpanguazai/ssd/ssd1/www/c.460.net.cn/vendor/topthink/think-orm/src/Paginator.php ( 11.86 KB )
  60. /yingpanguazai/ssd/ssd1/www/c.460.net.cn/vendor/topthink/think-validate/src/Validate.php ( 63.20 KB )
  61. /yingpanguazai/ssd/ssd1/www/c.460.net.cn/vendor/topthink/think-orm/src/Model.php ( 23.55 KB )
  62. /yingpanguazai/ssd/ssd1/www/c.460.net.cn/vendor/topthink/think-orm/src/model/concern/Attribute.php ( 21.05 KB )
  63. /yingpanguazai/ssd/ssd1/www/c.460.net.cn/vendor/topthink/think-orm/src/model/concern/AutoWriteData.php ( 4.21 KB )
  64. /yingpanguazai/ssd/ssd1/www/c.460.net.cn/vendor/topthink/think-orm/src/model/concern/Conversion.php ( 6.44 KB )
  65. /yingpanguazai/ssd/ssd1/www/c.460.net.cn/vendor/topthink/think-orm/src/model/concern/DbConnect.php ( 5.16 KB )
  66. /yingpanguazai/ssd/ssd1/www/c.460.net.cn/vendor/topthink/think-orm/src/model/concern/ModelEvent.php ( 2.33 KB )
  67. /yingpanguazai/ssd/ssd1/www/c.460.net.cn/vendor/topthink/think-orm/src/model/concern/RelationShip.php ( 28.29 KB )
  68. /yingpanguazai/ssd/ssd1/www/c.460.net.cn/vendor/topthink/think-helper/src/contract/Arrayable.php ( 0.09 KB )
  69. /yingpanguazai/ssd/ssd1/www/c.460.net.cn/vendor/topthink/think-helper/src/contract/Jsonable.php ( 0.13 KB )
  70. /yingpanguazai/ssd/ssd1/www/c.460.net.cn/vendor/topthink/think-orm/src/model/contract/Modelable.php ( 0.09 KB )
  71. /yingpanguazai/ssd/ssd1/www/c.460.net.cn/vendor/topthink/framework/src/think/Db.php ( 2.88 KB )
  72. /yingpanguazai/ssd/ssd1/www/c.460.net.cn/vendor/topthink/think-orm/src/DbManager.php ( 8.52 KB )
  73. /yingpanguazai/ssd/ssd1/www/c.460.net.cn/vendor/topthink/framework/src/think/Log.php ( 6.28 KB )
  74. /yingpanguazai/ssd/ssd1/www/c.460.net.cn/vendor/topthink/framework/src/think/Manager.php ( 3.92 KB )
  75. /yingpanguazai/ssd/ssd1/www/c.460.net.cn/vendor/psr/log/src/LoggerTrait.php ( 2.69 KB )
  76. /yingpanguazai/ssd/ssd1/www/c.460.net.cn/vendor/psr/log/src/LoggerInterface.php ( 2.71 KB )
  77. /yingpanguazai/ssd/ssd1/www/c.460.net.cn/vendor/topthink/framework/src/think/Cache.php ( 4.92 KB )
  78. /yingpanguazai/ssd/ssd1/www/c.460.net.cn/vendor/psr/simple-cache/src/CacheInterface.php ( 4.71 KB )
  79. /yingpanguazai/ssd/ssd1/www/c.460.net.cn/vendor/topthink/think-helper/src/helper/Arr.php ( 16.63 KB )
  80. /yingpanguazai/ssd/ssd1/www/c.460.net.cn/vendor/topthink/framework/src/think/cache/driver/File.php ( 7.84 KB )
  81. /yingpanguazai/ssd/ssd1/www/c.460.net.cn/vendor/topthink/framework/src/think/cache/Driver.php ( 9.03 KB )
  82. /yingpanguazai/ssd/ssd1/www/c.460.net.cn/vendor/topthink/framework/src/think/contract/CacheHandlerInterface.php ( 1.99 KB )
  83. /yingpanguazai/ssd/ssd1/www/c.460.net.cn/app/Request.php ( 0.09 KB )
  84. /yingpanguazai/ssd/ssd1/www/c.460.net.cn/vendor/topthink/framework/src/think/Request.php ( 55.78 KB )
  85. /yingpanguazai/ssd/ssd1/www/c.460.net.cn/app/middleware.php ( 0.25 KB )
  86. /yingpanguazai/ssd/ssd1/www/c.460.net.cn/vendor/topthink/framework/src/think/Pipeline.php ( 2.61 KB )
  87. /yingpanguazai/ssd/ssd1/www/c.460.net.cn/vendor/topthink/think-trace/src/TraceDebug.php ( 3.40 KB )
  88. /yingpanguazai/ssd/ssd1/www/c.460.net.cn/vendor/topthink/framework/src/think/middleware/SessionInit.php ( 1.94 KB )
  89. /yingpanguazai/ssd/ssd1/www/c.460.net.cn/vendor/topthink/framework/src/think/Session.php ( 1.80 KB )
  90. /yingpanguazai/ssd/ssd1/www/c.460.net.cn/vendor/topthink/framework/src/think/session/driver/File.php ( 6.27 KB )
  91. /yingpanguazai/ssd/ssd1/www/c.460.net.cn/vendor/topthink/framework/src/think/contract/SessionHandlerInterface.php ( 0.87 KB )
  92. /yingpanguazai/ssd/ssd1/www/c.460.net.cn/vendor/topthink/framework/src/think/session/Store.php ( 7.12 KB )
  93. /yingpanguazai/ssd/ssd1/www/c.460.net.cn/vendor/topthink/framework/src/think/Route.php ( 23.73 KB )
  94. /yingpanguazai/ssd/ssd1/www/c.460.net.cn/vendor/topthink/framework/src/think/route/RuleName.php ( 5.75 KB )
  95. /yingpanguazai/ssd/ssd1/www/c.460.net.cn/vendor/topthink/framework/src/think/route/Domain.php ( 2.53 KB )
  96. /yingpanguazai/ssd/ssd1/www/c.460.net.cn/vendor/topthink/framework/src/think/route/RuleGroup.php ( 22.43 KB )
  97. /yingpanguazai/ssd/ssd1/www/c.460.net.cn/vendor/topthink/framework/src/think/route/Rule.php ( 26.95 KB )
  98. /yingpanguazai/ssd/ssd1/www/c.460.net.cn/vendor/topthink/framework/src/think/route/RuleItem.php ( 9.78 KB )
  99. /yingpanguazai/ssd/ssd1/www/c.460.net.cn/route/app.php ( 1.72 KB )
  100. /yingpanguazai/ssd/ssd1/www/c.460.net.cn/vendor/topthink/framework/src/think/facade/Route.php ( 4.70 KB )
  101. /yingpanguazai/ssd/ssd1/www/c.460.net.cn/vendor/topthink/framework/src/think/route/dispatch/Controller.php ( 4.74 KB )
  102. /yingpanguazai/ssd/ssd1/www/c.460.net.cn/vendor/topthink/framework/src/think/route/Dispatch.php ( 10.44 KB )
  103. /yingpanguazai/ssd/ssd1/www/c.460.net.cn/app/controller/Index.php ( 4.81 KB )
  104. /yingpanguazai/ssd/ssd1/www/c.460.net.cn/app/BaseController.php ( 2.05 KB )
  105. /yingpanguazai/ssd/ssd1/www/c.460.net.cn/vendor/topthink/think-orm/src/facade/Db.php ( 0.93 KB )
  106. /yingpanguazai/ssd/ssd1/www/c.460.net.cn/vendor/topthink/think-orm/src/db/connector/Mysql.php ( 5.44 KB )
  107. /yingpanguazai/ssd/ssd1/www/c.460.net.cn/vendor/topthink/think-orm/src/db/PDOConnection.php ( 52.47 KB )
  108. /yingpanguazai/ssd/ssd1/www/c.460.net.cn/vendor/topthink/think-orm/src/db/Connection.php ( 8.39 KB )
  109. /yingpanguazai/ssd/ssd1/www/c.460.net.cn/vendor/topthink/think-orm/src/db/ConnectionInterface.php ( 4.57 KB )
  110. /yingpanguazai/ssd/ssd1/www/c.460.net.cn/vendor/topthink/think-orm/src/db/builder/Mysql.php ( 16.58 KB )
  111. /yingpanguazai/ssd/ssd1/www/c.460.net.cn/vendor/topthink/think-orm/src/db/Builder.php ( 24.06 KB )
  112. /yingpanguazai/ssd/ssd1/www/c.460.net.cn/vendor/topthink/think-orm/src/db/BaseBuilder.php ( 27.50 KB )
  113. /yingpanguazai/ssd/ssd1/www/c.460.net.cn/vendor/topthink/think-orm/src/db/Query.php ( 15.71 KB )
  114. /yingpanguazai/ssd/ssd1/www/c.460.net.cn/vendor/topthink/think-orm/src/db/BaseQuery.php ( 45.13 KB )
  115. /yingpanguazai/ssd/ssd1/www/c.460.net.cn/vendor/topthink/think-orm/src/db/concern/TimeFieldQuery.php ( 7.43 KB )
  116. /yingpanguazai/ssd/ssd1/www/c.460.net.cn/vendor/topthink/think-orm/src/db/concern/AggregateQuery.php ( 3.26 KB )
  117. /yingpanguazai/ssd/ssd1/www/c.460.net.cn/vendor/topthink/think-orm/src/db/concern/ModelRelationQuery.php ( 20.07 KB )
  118. /yingpanguazai/ssd/ssd1/www/c.460.net.cn/vendor/topthink/think-orm/src/db/concern/ParamsBind.php ( 3.66 KB )
  119. /yingpanguazai/ssd/ssd1/www/c.460.net.cn/vendor/topthink/think-orm/src/db/concern/ResultOperation.php ( 7.01 KB )
  120. /yingpanguazai/ssd/ssd1/www/c.460.net.cn/vendor/topthink/think-orm/src/db/concern/WhereQuery.php ( 19.37 KB )
  121. /yingpanguazai/ssd/ssd1/www/c.460.net.cn/vendor/topthink/think-orm/src/db/concern/JoinAndViewQuery.php ( 7.11 KB )
  122. /yingpanguazai/ssd/ssd1/www/c.460.net.cn/vendor/topthink/think-orm/src/db/concern/TableFieldInfo.php ( 2.63 KB )
  123. /yingpanguazai/ssd/ssd1/www/c.460.net.cn/vendor/topthink/think-orm/src/db/concern/Transaction.php ( 2.77 KB )
  124. /yingpanguazai/ssd/ssd1/www/c.460.net.cn/vendor/topthink/framework/src/think/log/driver/File.php ( 5.96 KB )
  125. /yingpanguazai/ssd/ssd1/www/c.460.net.cn/vendor/topthink/framework/src/think/contract/LogHandlerInterface.php ( 0.86 KB )
  126. /yingpanguazai/ssd/ssd1/www/c.460.net.cn/vendor/topthink/framework/src/think/log/Channel.php ( 3.89 KB )
  127. /yingpanguazai/ssd/ssd1/www/c.460.net.cn/vendor/topthink/framework/src/think/event/LogRecord.php ( 1.02 KB )
  128. /yingpanguazai/ssd/ssd1/www/c.460.net.cn/vendor/topthink/think-helper/src/Collection.php ( 16.47 KB )
  129. /yingpanguazai/ssd/ssd1/www/c.460.net.cn/vendor/topthink/framework/src/think/facade/View.php ( 1.70 KB )
  130. /yingpanguazai/ssd/ssd1/www/c.460.net.cn/vendor/topthink/framework/src/think/View.php ( 4.39 KB )
  131. /yingpanguazai/ssd/ssd1/www/c.460.net.cn/vendor/topthink/framework/src/think/Response.php ( 8.81 KB )
  132. /yingpanguazai/ssd/ssd1/www/c.460.net.cn/vendor/topthink/framework/src/think/response/View.php ( 3.29 KB )
  133. /yingpanguazai/ssd/ssd1/www/c.460.net.cn/vendor/topthink/framework/src/think/Cookie.php ( 6.06 KB )
  134. /yingpanguazai/ssd/ssd1/www/c.460.net.cn/vendor/topthink/think-view/src/Think.php ( 8.38 KB )
  135. /yingpanguazai/ssd/ssd1/www/c.460.net.cn/vendor/topthink/framework/src/think/contract/TemplateHandlerInterface.php ( 1.60 KB )
  136. /yingpanguazai/ssd/ssd1/www/c.460.net.cn/vendor/topthink/think-template/src/Template.php ( 46.61 KB )
  137. /yingpanguazai/ssd/ssd1/www/c.460.net.cn/vendor/topthink/think-template/src/template/driver/File.php ( 2.41 KB )
  138. /yingpanguazai/ssd/ssd1/www/c.460.net.cn/vendor/topthink/think-template/src/template/contract/DriverInterface.php ( 0.86 KB )
  139. /yingpanguazai/ssd/ssd1/www/c.460.net.cn/runtime/temp/a3df6b94aede6ebd0d2926ccdfcd20d5.php ( 11.98 KB )
  140. /yingpanguazai/ssd/ssd1/www/c.460.net.cn/vendor/topthink/think-trace/src/Html.php ( 4.42 KB )
  1. CONNECT:[ UseTime:0.000657s ] mysql:host=127.0.0.1;port=3306;dbname=c460;charset=utf8mb4
  2. SHOW FULL COLUMNS FROM `fenlei` [ RunTime:0.000606s ]
  3. SELECT * FROM `fenlei` WHERE `fid` = 0 [ RunTime:0.006405s ]
  4. SELECT * FROM `fenlei` WHERE `fid` = 63 [ RunTime:0.000410s ]
  5. SHOW FULL COLUMNS FROM `set` [ RunTime:0.000710s ]
  6. SELECT * FROM `set` [ RunTime:0.000208s ]
  7. SHOW FULL COLUMNS FROM `article` [ RunTime:0.000601s ]
  8. SELECT * FROM `article` WHERE `id` = 460700 LIMIT 1 [ RunTime:0.017904s ]
  9. UPDATE `article` SET `lasttime` = 1778445192 WHERE `id` = 460700 [ RunTime:0.029061s ]
  10. SELECT * FROM `fenlei` WHERE `id` = 65 LIMIT 1 [ RunTime:0.001174s ]
  11. SELECT * FROM `article` WHERE `id` < 460700 ORDER BY `id` DESC LIMIT 1 [ RunTime:0.004357s ]
  12. SELECT * FROM `article` WHERE `id` > 460700 ORDER BY `id` ASC LIMIT 1 [ RunTime:0.006710s ]
  13. SELECT * FROM `article` WHERE `id` < 460700 ORDER BY `id` DESC LIMIT 10 [ RunTime:0.045346s ]
  14. SELECT * FROM `article` WHERE `id` < 460700 ORDER BY `id` DESC LIMIT 10,10 [ RunTime:0.029635s ]
  15. SELECT * FROM `article` WHERE `id` < 460700 ORDER BY `id` DESC LIMIT 20,10 [ RunTime:0.037672s ]
0.350153s