

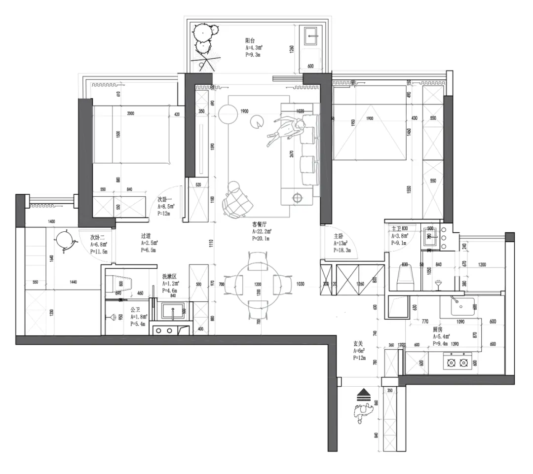
深圳御龙天地本案为三代同堂之家,设计师通过“去界一体化”的公共区域设计。
最大化开放感与互动性;同时精细规划厨卫动线与卧室布局,在有限面积内实现了功能、隐私与成长性的完美平衡。
\/



客餐厅空间以白色与原木色奠定柔和清新的基调,局部点缀深棕色与黑色,形成明暗对比与视觉层次。

客厅则通过电视背景墙与整面柜体结合,在提升储物能力的同时保持动线通透,使客餐厅区域既独立又联动。



厨房采用狭长型 U 型布局,充分利用纵向空间,洗菜区、烹饪区、收纳区依次排布,形成高效 “洗 - 切 - 炒” 动线,即使空间紧凑也能保证操作流畅。
以暖木色橱柜搭配白色吊柜金色五金拉手作为点缀木地板通铺,提升轻奢质感,让厨房在简约中透出精致感。

主卧采用“睡眠+收纳+工作”一体化布局,通过依次排布睡眠区、整面到顶衣柜与书桌,在有限空间内实现了功能整合与动线优化。

设计上以白色与暖木色为基调,点缀深木色书桌与浅蓝床品,营造出简约温馨的视觉感受;同时极致利用垂直空间,结合大衣柜与床底收纳,让储物能力最大化且视觉隐形。

细节上,吊扇灯、双层窗帘、木质搁板与金属拉手等元素,则在保障实用与舒适的同时,为空间注入了精致的生活气息,最终打造出一个功能完备、收纳强大且充满温度的高效休憩空间。

次卧定制到顶衣柜与流畅的“睡眠+收纳”布局,在有限空间内实现了收纳最大化与动线最优化。设计以米白、浅棕为基调,融入花卉床品与木质元素,配合人字拼地板共同营造出简约温馨的休憩氛围。

细节处更见巧思:金色拉手、造型边几和木质挂钩等装饰,在满足日常收纳、置物功能的同时,也为空间注入了轻奢感与生活气息;而双层窗帘系统则保障了空间的隐私与采光灵活性。

儿童房Loft双层结构,将睡眠、玩乐与收纳功能垂直整合,极大提升了小空间的使用效率。

设计上通过圆洞楼梯、拱形门洞和圆形窗等造型元素,结合兔子装饰、云朵挂饰与柔和的粉浅色调,共同营造出一个梦幻童趣的童话王国。

干湿分离布局与高效收纳系统,玻璃淋浴房搭配金属边框,在阻隔水汽的同时保持了视觉通透;镜柜与浴室柜的组合则将杂物隐形收纳,确保台面整洁。


◍往期精选(私宅)作品 | Real works...




点击“阅读原文”在线预约本案设计师~