2018年,深圳市福田区“8+1”新校园行动计划正式启动。在高密度的城市环境下,尝试探索中小学校园的新类型,为以往效率至上的传统校园模式注入新的活力与想象。
红岭中学石厦校区坐落于深圳福田的石厦片区,始建于2004年。这里是深圳大型社区的所有地,城中村与高层住宅小区交织共存,社区氛围浓郁。校园连同周围的一系列基础设施,组成街区内的公共服务网络。二十年间,随着周边中低密度的城中村转变为高密度的住宅区,红岭石厦校园的拓展空间日趋紧张。为了应对持续增长的学位需求,学校在原有场地内实施改扩建:拆除东侧体育馆及运动场地,并在原址新建教学与运动空间,实现功能补足与提升。改造后,学校规模从24班扩至36班,地上建筑面积由15000平方米增至43000平方米,空间容量提升近三倍。这一高密度挑战下,设计不仅要创造出高效便捷的功能布局,更应通过融入街道、呼应气候、联结新旧等多重对话,塑造出独具特色的校园场所。

▲被高层住区包围的校园©张超 Chao Zhang

▲校园鸟瞰©张超 Chao Zhang
在“8+1”新校园行动计划第一季的九所学校里,红岭石厦是唯一一所被实施的改扩建项目。我们在保证校园西侧教学楼正常使用的前提下,完成了整个校园的更新与扩建。这也极大地提升了设计与施工的复杂性与挑战性。它的设计经验,也为后来燎原之火的深圳南山“百校焕新”行动埋下了伏笔。

▲改造前后-鸟瞰 ©张超 Chao Zhang
与街道共谋
在一个理想的城市里,街区代表了我们彼此共享日常场所的总和。学校、公园、街道、广场、车站、便利店……这些空间构建起属于公众的“街道生活共同体”。我们的设计,不仅希望为校内学生和社区居民提供更丰富的活动空间,也希望校园可以与城市相互借力,让人们看见街道生活的更多可能性。

▲灯火通明的运动场照亮了整个街道©张超 Chao Zhang
改造前,校园操场东侧紧贴道路,栅栏围墙将学校与街道截然分离,呈现出冷漠的城市界面。唯有转角处的邮政报刊亭,隐约透露出此地作为公共空间的潜质。

▲改造前后-东侧街景 ©张超 Chao Zhang

▲改造前后-东侧外立面 ©张超 Chao Zhang
在红岭石厦校区的改造中,设计将操场抬升至7.2米的空中,其下方则植入一系列公共功能空间,包括700人报告厅、半室内篮球馆、羽毛球场、空中跑道等体育设施,以分时共享的方式向社区居民开放。

▲与街道仅有半层高差的环形跑道©张超 Chao Zhang
操场抬升后,上部空间依然紧贴用地边界布置,下部则“以退为进”,向内退让3米,形成倾斜的沿街立面,有效缓解了体量对街道的压迫感。原本仅3米的人行道被扩宽至6米——深圳许多道路因历史规划所限,未设置自行车道,导致人车混行、时常拥挤。拓宽后的人行道化解了街道的日常交通矛盾,营造出更友好的步行空间。边缘设置的花池与长椅,为过往行人与放学学生提供短暂休憩的场所,形成一条线性的“街道公园”。倾斜的外立面,在一定程度上起到遮阳避雨的作用,与街道旁的小叶榕共同形成“拱廊”般的半室外灰空间。校园 、街道和城市之间的边界变得柔和,行道树也真正成为校园和街道共生的有机组成部分。

▲立体运动场细部©土木石

▲校园边界-线型街道公园©张超 Chao Zhang

▲校园边界-拱廊型的半室外空间©张超 Chao Zhang
城市生活也是学生学习体验的一部分。通透的立面,让在空中跑道运动的学生,能近距离观察街道的日常,体验一种生动的、关于社会生活的“非正式课程”。学生矫健的身影与欢笑声,也不时地从运动场弥漫到街道,吸引路人驻足观看。半层高差的跑道设计,连同独特而治愈的声音景观,让这种互动保持一种微妙而舒适的距离。
▲以退为进的校园边界©张超 Chao Zhang
街道十字路口本应是公共活动的自然聚集处,改造前却被封闭的围墙和空旷的操场阻隔,使校园东北角沦为街头的“飞地”。改造后,半透明的运动场体量成为路口的重要存在,校园转而成为街角的“守望者”。每天下午四五点,这里更成为斜对面小学家长等候、交谈的社交场所。傍晚时分,灯光通明的场馆与篮球的击打声、呐喊声,照亮了整个街道。

▲改造前后-东南角街景©张超 Chao Zhang

▲东南街角轴侧©土木石
我们在场地东南侧退让出空间,与原有报刊亭围合出一处小型市民广场。平日夜晚或节假日,周边居民可经广场沿一座人工“山丘”迂回而上,进入抬升的操场。山丘表面覆以爬藤植物,随时间渐次生长,与街道榕树连成一片绿意。市民也可经由广场进入报告厅前厅。这一空间有着如同山丘洞穴般的形态,既是报告厅的等候区,也是未来多功能的校园美术馆和社区美术馆。

▲改造前后-东北角街景©张超 Chao Zhang

▲东南街角报告厅和美术馆剖轴侧©土木石

▲东南街角美术空间剖面©土木石

▲退让街道的小山丘©张超 Chao Zhang

▲街道上的之字型楼梯直达空中操场©张超 Chao Zhang

▲小山丘下的共享美术馆©张超 Chao Zhang
南方操场
在中国南方,荫凉是建筑不可或缺的考量。如今越来越多的校园过度依赖空调,却忽略了自然气候的物理潜能。在高密度建设条件下,层叠设置的立体运动场不仅提供更多的运动场地,也创造出舒适、开放的阴影空间,同时建立校园与社区街道的联结,为重新定义南方高密度校园提供了新的可能。

▲改造前后-运动场©张超 Chao Zhang

▲空中操场全景©张超 Chao Zhang

▲独特观景体验的空中操场©张超 Chao Zhang

▲抬升至第三层的空中操场©张超 Chao Zhang
毗邻街道的运动场,不再设置密不透风的封闭外墙,仅以金属防护网与铝格栅遮阳板构成半透明的气候界面。通透的立面引导微风自由穿行,过滤光线,形成一座无需空调的半室内运动场。

▲从教学楼的架空庭院进入环形跑道©张超 Chao Zhang

▲阴影下的庭院是运动场的延伸©张超 Chao Zhang
二层的风雨操场通风、遮阳、挡雨,真正实现365天都可以奔跑的需求。在环形跑道上奔跑时,可以感受到风的流动,看见街道上郁郁葱葱的树冠。教学楼之间围合出的荫凉庭院,与风雨操场无缝衔接,共同成为酷暑季节最受欢迎的活动空间与非标准化运动场所。学生在不同天气下拥有灵活的空间选择,尤其适应夏季漫长,炎热多雨的深圳。

▲下沉庭院既是活动场地也是交通要道©张超 Chao Zhang

▲可进入篮球场的下沉庭院©张超 Chao Zhang
环形跑道下方是无柱的开放式篮球场。下沉的地势略低下东侧街道,利于城市自然风穿越球场与庭院,形成舒适的穿堂风。虽然标高地下2.3米,引入的风和自然光却让这里完全没有地下空间常见的封闭感。这一开阔的空间,也因此成为雨季和酷暑时全校集会的理想场地。铺设真草的主操场被抬升至7.2米的空中,不仅为校运会、开学典礼、校园音乐会等大型活动提供了专场。开阔的视野,环绕的深圳天际线,也为师生带来了独特的城市景观体验。

▲立体运动场轴侧©土木石

▲立体运动场剖轴侧©土木石

▲通透的半室内运动场©张超 Chao Zhang

▲树冠前的环形跑道©张超 Chao Zhang

▲环形跑道©张超 Chao Zhang

▲能举行大型活动的下沉篮球场©张超 Chao Zhang

▲下沉的篮球场©张超 Chao Zhang

▲与社区共享的开放式篮球场©张超 Chao Zhang
新旧嫁接的校园
在存量改造的时代背景下,如何协调新旧校园之间的关系,成为一个无法回避的课题。我们尝试营造一个新旧共生的“嫁接”校园。

▲新旧衔接的校园©张超 Chao Zhang
普通教室仍安排在原有教学楼内,四栋新建教学楼与旧楼有机衔接,形成一条在新与旧之间漫游的路径。新建筑向东延续原有的行列式布局,但通过细微的扭转、延伸或转折,予以变化,仿佛从旧结构中自然生长而出,它们与新增的连廊一起,围合出数个尺度相近却氛围各异的庭院。

▲新旧之间的楼梯轴侧©土木石

▲保留的大榕树成为新旧校园核心的记忆载体©张超 Chao Zhang

▲以榕树为中心形成一系列空间的路径和节点©张超 Chao Zhang

▲榕树下的图书馆室内©张超 Chao Zhang
行政楼平行于校园入口的外部道路布置,在靠近校园入口处向南转折,与旧教学楼共同界定出入口广场。广场中央屹立着一棵二十年树龄的大榕树——作为校园记忆的象征,它被完整保留下来,并以之为核心,衍生出一系列新的路径与节点,使这里成为承载校园记忆的场所。

▲改造前后-入口广场©张超 Chao Zhang

▲入口广场轴侧 ©土木石

▲环绕榕树的入口广场©张超 Chao Zhang

▲新旧交织的校园入口©张超 Chao Zhang

▲新旧嫁接的校园©张超 Chao Zhang
在新旧交接处,一组新置入的白色室外楼梯,在不同高度上将新旧教学楼相互连通。新建筑三楼的走廊也被适当扩宽,并与空中操场衔接,让学生能够高效抵达各处。新旧建筑之间通过室外走廊相连。这些兼具交通与社交功能的廊道,以及多处放大的“盒子”空间,成为学生日常驻足、交流的场所。

▲以榕树为中心形成一系列空间的路径和节点©张超 Chao Zhang

▲新旧校园之间的漫游路径©张超 Chao Zhang

▲新旧校园之间的交流空间©张超 Chao Zhang
变与不变
石厦校园已投入使用两年有余。随着四季更迭,建筑与设计者的痕迹悄然退隐,使用中我们也一直保持观察。在这个南方的校园里,街道的小叶榕悄然探入,空间的潜力在使用者手中被不断发掘,变化的印记无处不在。

▲实体模型©土木石
然而不变的,是人与场所那份持续生长的关系。这里已成为师生们日常学习的根基,也是与社区分时共享的公共中心。令人欣慰的是,建筑师努力营造的空间品质,并没有因设计的“完成”和使用的“介入”而削弱,反而在时间中愈发鲜活生动。
项目图纸
▲总平面示意©土木石

▲首层平面©土木石

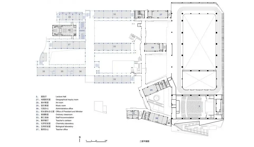
▲二层平面图©土木石

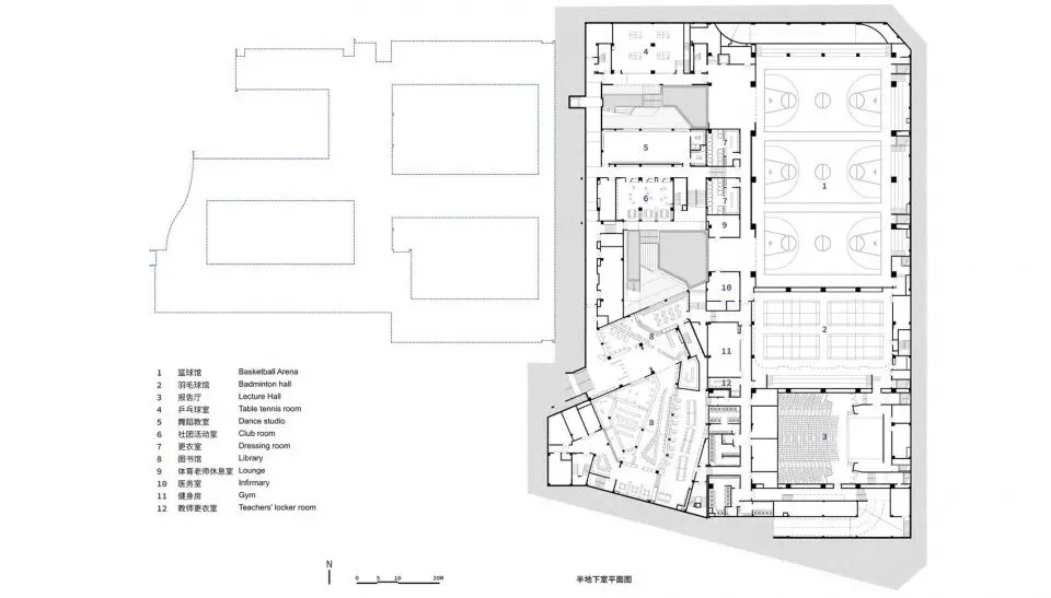
▲地下层平面©土木石

▲三层平面©土木石


▲剖面©土木石
项目信息
王栋,樊李烨,李放,周涛涛,李鹏飞,王祖梁,马丽娜,王健,曾秋华,骆力,李雨倩业主单位 / 深圳市福田区教育局, 深圳市福田区红岭中学(红岭教育集团)代建单位 / 深圳市万科发展有限公司 ( 深圳市万科城市建设管理有限公司 )施工图设计 / 北京中外建建筑设计有限公司深圳分公司室内设计 / 土木石建筑设计事务所 + 深圳市九度空间室内设计有限公司景观设计 / 土木石建筑设计事务所 + 深圳园策顾问设计有限公司建筑结构:混凝土框架结构(教学楼及餐厅)、钢结构(体育馆及报告厅)