当前位置:首页>深圳>深圳市龙岗区坂田华为总部旁【天安云谷里】楼盘资料

深圳市龙岗区坂田华为总部旁【天安云谷里】楼盘资料

  • 2026-05-21 02:29:59
深圳市龙岗区坂田华为总部旁【天安云谷里】楼盘资料

天安云谷里(深圳市龙岗区)

看房预约我们可享更多楼盘资料细节,成功认购还能享受自媒体渠道大额购房现金补贴!注意:(自己上门会被界定为开发商上门客户,将会丧失大额自媒体渠道优惠福利)

项目基本信息

开发商:深圳天安云城投资发展有限公司

占地面积:约10571.33㎡

建筑面积:约100572.70㎡

容积率:6.55

绿化率:40%

总层高:44层

车位比:1:1.44

产权年限:70年

交楼时间:27年12月12日

梯户比:3梯6户

交付标准:简装(绿建)

物业管理费:6.98元/㎡

物业:深圳市天安云谷物业服务有限公司

15分钟多维精配生活圈:

⛪️4名校:广东实验学校、深圳外国语湾区学校、三期自带公立学校/国际学校;

🚝3地铁口:10号线岗头站(已开通)、22号线岗头北站、27号线岗头西站;

🚈3城际线+超级枢纽站:深广中轴城际(规划中,途经地铁27号线岗头西站);

🚈3+2城际枢纽五和站:深大/深惠城际/深广中轴(在建)、地铁5/10号线;

🏥3家公立医院:香港中文大学、深圳市人民医院坂田院区、龙岗第二中医院;

🕌2个文体中心:龙岗国际艺术中心、坂田街道文体中心;

🏕六大城市公园:岗头科技公园(秋叶湖)、雪竹径公园、甘坑特色公园;

【天安云谷里·园游价值点】

首创产城标杆:坂田天安云谷是集团脱离传统产业链、首创“产城社区”核心理念的标杆之作,代表了集团在中国大陆产业地产开发的最新一代产品序列。

产城社区标杆:天安云谷总规划占地面积约76万㎡,总建筑面积约400万㎡,总投资300亿人民币,是国内首个以“云计算、大数据”理念规划的智慧园区,聚集了云计算、物联网、移动互联网等信息技术产业及智能设备,机器人等产业,是深圳现代产城融合的标杆之作;

➡深圳地理几何中芯 · 坂雪岗科技城核心

坂田,位踞深圳版图的物理中芯,依托多维路网可便捷通达福田、罗湖、南山等CBD中央商务区,稳健擎领着深圳的枢纽经济脉搏。天安云谷里·园游,立序于坂田北CBD中轴之上,坐享坂雪岗科技城的发展大势。,汇聚多元行业精英人群,执掌世界的雄心。

强劲经济引擎与广阔前景

龙岗经济的核心引擎:

根据龙岗政府在线的公开数据,2023年坂田的地区生产总值近2300亿元,占据了全区总量的46%。而到了2025年,龙岗区全区GDP首次突破6000亿元大关(达6095.92亿元),并连续第八年位居全国工业百强区榜首。

全国活力街道TOP5:

凭借着强劲的产业基础和持续攀升的综合竞争力,坂田在“中国活力街道全国500强”的评选中,从2024年的全国第八名,成功跃升至2025年的全国第五名。这种高效的产出与创富能力,业界常常拿它与南山区的粤海街道作对比参考,因此坂田也常被外界誉为“深圳第二街道”。

跨境电商集群:

坂田是龙岗区两个主要跨境电商集聚区之一,已形成了11个较大规模的电商企业集聚园区;培育了14家规模以上跨境电商企业;辖区星河World园区被授牌“国家电子商务示范基地”。龙岗区2022年全区跨境电商交易规模达到1700亿元,坂田几乎占了一半。据不完全统计,坂田街道的跨境电商企业有1万家左右;保守估计营收总额达千亿元以上。

引领前沿科创生态:

2025年坂田加速布局AI与鸿蒙生态,天安云谷(三期)脱颖而出,成为深圳首批“鸿蒙工地试点”项目,印证其科创引领地位。

千亿级科技产业 · 高端人才聚集地

汇聚核心资源的产城高地:全球第三大万亿级电子信息产业集群承载区

三大科创板块交汇:在这片约28.51平方公里的土地上,汇聚了广深港创新走廊、梅观创新产业走廊以及坂雪岗科技城三大科创高地。

高精尖圈层聚落:毗邻华为总部基地,周边吸引了康冠、神舟等众多知名企业,培育了逾600家高新技术企业。作为全球第三大万亿级电子信息产业集群承载区,这里汇聚了庞大的高素质精英人群,区域发展前景较为广阔。

千亿智造生态:目前已初步形成颇具规模的千亿级智造产业生态,其创新与孵化能力在全国同类科创区中名列前茅,为片区提供了源源不断的人才与活力。

➡130万方大城配套,下楼即享繁华

多元无界社区:项目自带约1.71万㎡商业,自带幸福力中心约3万㎡的综合配套空间、自运营约20万㎡商业:天安云谷星耀,各类社区内容商店及帆书樊登书店+HIGH5超级社群生活基地+超级星期6社群文化IP+天安全球资源,为业主提供丰富的志趣社交场景。

立体商业动线:项目将社会公共交通系统、城市道路系统与社区道路系统相联街,结合自然生态河道、公建、商业,规划合理的人流动线布局,使得整个居住区与城市网连成一个整体,实现社区与城市的联系与互动。通过社区内地上和双层地下的三层立体商业设计,将地下部分做到了与地铁站贯通。为年轻人提供了下班出站即可用餐、购物、归家的一体化便捷生活。

(本项目沿街商业人视图)

天安云谷星耀

建面约10万㎡生态体验社交中心商业商业,坐拥200+品牌美食,打造24Hour户外+购物中心消费圈商业;1-5栋商业入驻率约95%,以餐饮业态与生活休闲业态为主,天玺海鲜酒家、79号渔船、海底捞、奈雪、大疆创新、联通、平安银行等入驻。

➡多元之城·全优社区

多元之城:打破传统居住习惯,将居住空间、自然空间、商业空间及休闲、社交空间进行叠加,7座主题公园、5大全龄配套、1条三重立体特色商街,以开放式胸怀融入与引领城市空间,实现城市、自然、社区、人与人的360无界生活体验,打开超越时代的城市人居想像。

其中体育中心了配置无边泳池,室内篮球馆、屋顶足球场等体育设施。

2所社康服务中心+1所长者服务中心+1所健康食堂+1批养老公寓+1间中医理疗中心+十余所康养文娱健康场所。

➡丰富教育资源汇聚,名校资源优配

4所幼儿园:天安芬芳比诺中英文幼儿园、领德双语幼儿学院、项目自带2所幼儿园,规划在建有1所90班的国际化学校(九年制公办),分54班公立班和36班国际班组成;

3所名校学区:广东实验中学深圳学校、深圳外国语学校、三期自带公立学校/国际学校;

3所图书馆:科技艺术图书馆、少儿图书馆、三期屋顶图书馆;

6大中心+2大领队:桃李未来/国际级少年科创/兴趣发展/体能/游乐中心及父母工作坊+学习/游玩领队。

周边重点学校简介:

广东实验中学深圳学校、深圳外国语学校、三期自带公立学校/国际学校

根据2023年龙岗教育局学区划分,中小学学区划分在广东实验中学深圳学校,直线约800米,该校是由深圳市教育局与广东实验中学在深圳经济特区建立40周年之际合作创办的十二年一贯制学校,是直属于深圳市教育局的公办学校。采用"格新课程"体系(知新、求新、创新三级贯通),高中部设人工智能科技课程及"双导师制",小学初中阶段有院士大讲堂、航天专家讲座等特色活动。国际班与清华附中国际学校合作,提供美式K-12课程,外教占比高,注重跨文化教学。广东实验学校2025年中考最高分与深圳市状元仅差3分,2024年首届高考本科率高达98%,实力超群。

项目周边3公里内有56所幼儿园、6所小学、11所中学,包括广东省实验小学(距项目350米)、深圳外国语学校(集团)湾区学校等。

➡多维立体路网,高效通勤大湾区

已开通:地铁10号线岗头站C1约800米,4站到五和站,8站直达福田;

规划中:22号地铁线“岗头北站”(预计2028年年底开通),距离约600米,目前正在建设中,预计2028年建成,该线路起于福保南站,止于黎光站,其中一期工程止于福田上沙站,全线长34.2公里,共设21座。

27号线岗头西站(预计2028年年底开通)全线线路途经南山、龙华、龙岗三区,串联起前海、南山科技园、西丽高铁新城、龙华中心、坂雪岗科技城等重要片区。项目建成后将实现前海、南山中心与龙华中心45分钟快速通达;

3城际线+超级枢纽站:深广中轴城际规划中,连接深圳、东莞、广州,预计在地铁27号线岗头站设站点;

3+2城际枢纽站五和站:3城际:深大城际(在建)、深惠城际(在建)、深广中轴城际2地铁超级枢纽站:深圳地铁5、10号线

主干道:坂李大道、五和大道、坂雪岗大道

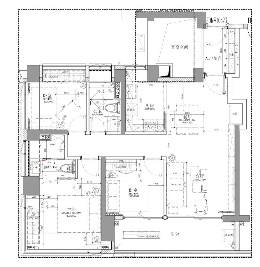
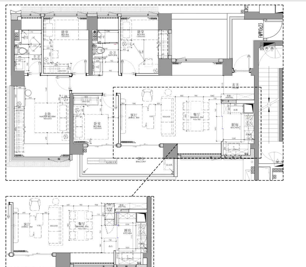
【户型赏析】 

约98-119㎡精制3-4房,考究空间布局,产品朝向整体以南为主,户户方正实用

具体怎么百变户型呢,看下面这张图来想象,利用还是非常不错的
交付标准呢,看下面图
看完以上介绍,如需了解更多关于楼盘最新消息、剩余房源、折扣优惠活动、近期房价走势等情况,欢迎咨询/预约电话:15889454254

      温馨提示:因本项目营销中心参观样板间采取预约制,为不耽误您的行程,过来营销中心现场看房请记得提前来电进行预约,预约看房的话享受的优惠折扣比直接上门更多,最终成交价格也会更优惠更划算,在此真诚感谢您对我们工作的支持和信赖,恭候您大驾光临。

看房长按二维码

最新文章

随机文章

基本 文件 流程 错误 SQL 调试
  1. 请求信息 : 2026-05-30 09:29:46 HTTP/2.0 GET : https://c.460.net.cn/a/537954.html
  2. 运行时间 : 0.081236s [ 吞吐率:12.31req/s ] 内存消耗:4,517.28kb 文件加载:140
  3. 缓存信息 : 0 reads,0 writes
  4. 会话信息 : SESSION_ID=847527665369ae4505d1ba0b8b608167
  1. /yingpanguazai/ssd/ssd1/www/c.460.net.cn/public/index.php ( 0.79 KB )
  2. /yingpanguazai/ssd/ssd1/www/c.460.net.cn/vendor/autoload.php ( 0.17 KB )
  3. /yingpanguazai/ssd/ssd1/www/c.460.net.cn/vendor/composer/autoload_real.php ( 2.49 KB )
  4. /yingpanguazai/ssd/ssd1/www/c.460.net.cn/vendor/composer/platform_check.php ( 0.90 KB )
  5. /yingpanguazai/ssd/ssd1/www/c.460.net.cn/vendor/composer/ClassLoader.php ( 14.03 KB )
  6. /yingpanguazai/ssd/ssd1/www/c.460.net.cn/vendor/composer/autoload_static.php ( 4.90 KB )
  7. /yingpanguazai/ssd/ssd1/www/c.460.net.cn/vendor/topthink/think-helper/src/helper.php ( 8.34 KB )
  8. /yingpanguazai/ssd/ssd1/www/c.460.net.cn/vendor/topthink/think-validate/src/helper.php ( 2.19 KB )
  9. /yingpanguazai/ssd/ssd1/www/c.460.net.cn/vendor/topthink/think-orm/src/helper.php ( 1.47 KB )
  10. /yingpanguazai/ssd/ssd1/www/c.460.net.cn/vendor/topthink/think-orm/stubs/load_stubs.php ( 0.16 KB )
  11. /yingpanguazai/ssd/ssd1/www/c.460.net.cn/vendor/topthink/framework/src/think/Exception.php ( 1.69 KB )
  12. /yingpanguazai/ssd/ssd1/www/c.460.net.cn/vendor/topthink/think-container/src/Facade.php ( 2.71 KB )
  13. /yingpanguazai/ssd/ssd1/www/c.460.net.cn/vendor/symfony/deprecation-contracts/function.php ( 0.99 KB )
  14. /yingpanguazai/ssd/ssd1/www/c.460.net.cn/vendor/symfony/polyfill-mbstring/bootstrap.php ( 8.26 KB )
  15. /yingpanguazai/ssd/ssd1/www/c.460.net.cn/vendor/symfony/polyfill-mbstring/bootstrap80.php ( 9.78 KB )
  16. /yingpanguazai/ssd/ssd1/www/c.460.net.cn/vendor/symfony/var-dumper/Resources/functions/dump.php ( 1.49 KB )
  17. /yingpanguazai/ssd/ssd1/www/c.460.net.cn/vendor/topthink/think-dumper/src/helper.php ( 0.18 KB )
  18. /yingpanguazai/ssd/ssd1/www/c.460.net.cn/vendor/symfony/var-dumper/VarDumper.php ( 4.30 KB )
  19. /yingpanguazai/ssd/ssd1/www/c.460.net.cn/vendor/topthink/framework/src/think/App.php ( 15.30 KB )
  20. /yingpanguazai/ssd/ssd1/www/c.460.net.cn/vendor/topthink/think-container/src/Container.php ( 15.76 KB )
  21. /yingpanguazai/ssd/ssd1/www/c.460.net.cn/vendor/psr/container/src/ContainerInterface.php ( 1.02 KB )
  22. /yingpanguazai/ssd/ssd1/www/c.460.net.cn/app/provider.php ( 0.19 KB )
  23. /yingpanguazai/ssd/ssd1/www/c.460.net.cn/vendor/topthink/framework/src/think/Http.php ( 6.04 KB )
  24. /yingpanguazai/ssd/ssd1/www/c.460.net.cn/vendor/topthink/think-helper/src/helper/Str.php ( 7.29 KB )
  25. /yingpanguazai/ssd/ssd1/www/c.460.net.cn/vendor/topthink/framework/src/think/Env.php ( 4.68 KB )
  26. /yingpanguazai/ssd/ssd1/www/c.460.net.cn/app/common.php ( 0.03 KB )
  27. /yingpanguazai/ssd/ssd1/www/c.460.net.cn/vendor/topthink/framework/src/helper.php ( 18.78 KB )
  28. /yingpanguazai/ssd/ssd1/www/c.460.net.cn/vendor/topthink/framework/src/think/Config.php ( 5.54 KB )
  29. /yingpanguazai/ssd/ssd1/www/c.460.net.cn/config/app.php ( 0.95 KB )
  30. /yingpanguazai/ssd/ssd1/www/c.460.net.cn/config/cache.php ( 0.78 KB )
  31. /yingpanguazai/ssd/ssd1/www/c.460.net.cn/config/console.php ( 0.23 KB )
  32. /yingpanguazai/ssd/ssd1/www/c.460.net.cn/config/cookie.php ( 0.56 KB )
  33. /yingpanguazai/ssd/ssd1/www/c.460.net.cn/config/database.php ( 2.47 KB )
  34. /yingpanguazai/ssd/ssd1/www/c.460.net.cn/vendor/topthink/framework/src/think/facade/Env.php ( 1.67 KB )
  35. /yingpanguazai/ssd/ssd1/www/c.460.net.cn/config/filesystem.php ( 0.61 KB )
  36. /yingpanguazai/ssd/ssd1/www/c.460.net.cn/config/lang.php ( 0.91 KB )
  37. /yingpanguazai/ssd/ssd1/www/c.460.net.cn/config/log.php ( 1.35 KB )
  38. /yingpanguazai/ssd/ssd1/www/c.460.net.cn/config/middleware.php ( 0.19 KB )
  39. /yingpanguazai/ssd/ssd1/www/c.460.net.cn/config/route.php ( 1.89 KB )
  40. /yingpanguazai/ssd/ssd1/www/c.460.net.cn/config/session.php ( 0.57 KB )
  41. /yingpanguazai/ssd/ssd1/www/c.460.net.cn/config/trace.php ( 0.34 KB )
  42. /yingpanguazai/ssd/ssd1/www/c.460.net.cn/config/view.php ( 0.82 KB )
  43. /yingpanguazai/ssd/ssd1/www/c.460.net.cn/app/event.php ( 0.25 KB )
  44. /yingpanguazai/ssd/ssd1/www/c.460.net.cn/vendor/topthink/framework/src/think/Event.php ( 7.67 KB )
  45. /yingpanguazai/ssd/ssd1/www/c.460.net.cn/app/service.php ( 0.13 KB )
  46. /yingpanguazai/ssd/ssd1/www/c.460.net.cn/app/AppService.php ( 0.26 KB )
  47. /yingpanguazai/ssd/ssd1/www/c.460.net.cn/vendor/topthink/framework/src/think/Service.php ( 1.64 KB )
  48. /yingpanguazai/ssd/ssd1/www/c.460.net.cn/vendor/topthink/framework/src/think/Lang.php ( 7.35 KB )
  49. /yingpanguazai/ssd/ssd1/www/c.460.net.cn/vendor/topthink/framework/src/lang/zh-cn.php ( 13.70 KB )
  50. /yingpanguazai/ssd/ssd1/www/c.460.net.cn/vendor/topthink/framework/src/think/initializer/Error.php ( 3.31 KB )
  51. /yingpanguazai/ssd/ssd1/www/c.460.net.cn/vendor/topthink/framework/src/think/initializer/RegisterService.php ( 1.33 KB )
  52. /yingpanguazai/ssd/ssd1/www/c.460.net.cn/vendor/services.php ( 0.14 KB )
  53. /yingpanguazai/ssd/ssd1/www/c.460.net.cn/vendor/topthink/framework/src/think/service/PaginatorService.php ( 1.52 KB )
  54. /yingpanguazai/ssd/ssd1/www/c.460.net.cn/vendor/topthink/framework/src/think/service/ValidateService.php ( 0.99 KB )
  55. /yingpanguazai/ssd/ssd1/www/c.460.net.cn/vendor/topthink/framework/src/think/service/ModelService.php ( 2.04 KB )
  56. /yingpanguazai/ssd/ssd1/www/c.460.net.cn/vendor/topthink/think-trace/src/Service.php ( 0.77 KB )
  57. /yingpanguazai/ssd/ssd1/www/c.460.net.cn/vendor/topthink/framework/src/think/Middleware.php ( 6.72 KB )
  58. /yingpanguazai/ssd/ssd1/www/c.460.net.cn/vendor/topthink/framework/src/think/initializer/BootService.php ( 0.77 KB )
  59. /yingpanguazai/ssd/ssd1/www/c.460.net.cn/vendor/topthink/think-orm/src/Paginator.php ( 11.86 KB )
  60. /yingpanguazai/ssd/ssd1/www/c.460.net.cn/vendor/topthink/think-validate/src/Validate.php ( 63.20 KB )
  61. /yingpanguazai/ssd/ssd1/www/c.460.net.cn/vendor/topthink/think-orm/src/Model.php ( 23.55 KB )
  62. /yingpanguazai/ssd/ssd1/www/c.460.net.cn/vendor/topthink/think-orm/src/model/concern/Attribute.php ( 21.05 KB )
  63. /yingpanguazai/ssd/ssd1/www/c.460.net.cn/vendor/topthink/think-orm/src/model/concern/AutoWriteData.php ( 4.21 KB )
  64. /yingpanguazai/ssd/ssd1/www/c.460.net.cn/vendor/topthink/think-orm/src/model/concern/Conversion.php ( 6.44 KB )
  65. /yingpanguazai/ssd/ssd1/www/c.460.net.cn/vendor/topthink/think-orm/src/model/concern/DbConnect.php ( 5.16 KB )
  66. /yingpanguazai/ssd/ssd1/www/c.460.net.cn/vendor/topthink/think-orm/src/model/concern/ModelEvent.php ( 2.33 KB )
  67. /yingpanguazai/ssd/ssd1/www/c.460.net.cn/vendor/topthink/think-orm/src/model/concern/RelationShip.php ( 28.29 KB )
  68. /yingpanguazai/ssd/ssd1/www/c.460.net.cn/vendor/topthink/think-helper/src/contract/Arrayable.php ( 0.09 KB )
  69. /yingpanguazai/ssd/ssd1/www/c.460.net.cn/vendor/topthink/think-helper/src/contract/Jsonable.php ( 0.13 KB )
  70. /yingpanguazai/ssd/ssd1/www/c.460.net.cn/vendor/topthink/think-orm/src/model/contract/Modelable.php ( 0.09 KB )
  71. /yingpanguazai/ssd/ssd1/www/c.460.net.cn/vendor/topthink/framework/src/think/Db.php ( 2.88 KB )
  72. /yingpanguazai/ssd/ssd1/www/c.460.net.cn/vendor/topthink/think-orm/src/DbManager.php ( 8.52 KB )
  73. /yingpanguazai/ssd/ssd1/www/c.460.net.cn/vendor/topthink/framework/src/think/Log.php ( 6.28 KB )
  74. /yingpanguazai/ssd/ssd1/www/c.460.net.cn/vendor/topthink/framework/src/think/Manager.php ( 3.92 KB )
  75. /yingpanguazai/ssd/ssd1/www/c.460.net.cn/vendor/psr/log/src/LoggerTrait.php ( 2.69 KB )
  76. /yingpanguazai/ssd/ssd1/www/c.460.net.cn/vendor/psr/log/src/LoggerInterface.php ( 2.71 KB )
  77. /yingpanguazai/ssd/ssd1/www/c.460.net.cn/vendor/topthink/framework/src/think/Cache.php ( 4.92 KB )
  78. /yingpanguazai/ssd/ssd1/www/c.460.net.cn/vendor/psr/simple-cache/src/CacheInterface.php ( 4.71 KB )
  79. /yingpanguazai/ssd/ssd1/www/c.460.net.cn/vendor/topthink/think-helper/src/helper/Arr.php ( 16.63 KB )
  80. /yingpanguazai/ssd/ssd1/www/c.460.net.cn/vendor/topthink/framework/src/think/cache/driver/File.php ( 7.84 KB )
  81. /yingpanguazai/ssd/ssd1/www/c.460.net.cn/vendor/topthink/framework/src/think/cache/Driver.php ( 9.03 KB )
  82. /yingpanguazai/ssd/ssd1/www/c.460.net.cn/vendor/topthink/framework/src/think/contract/CacheHandlerInterface.php ( 1.99 KB )
  83. /yingpanguazai/ssd/ssd1/www/c.460.net.cn/app/Request.php ( 0.09 KB )
  84. /yingpanguazai/ssd/ssd1/www/c.460.net.cn/vendor/topthink/framework/src/think/Request.php ( 55.78 KB )
  85. /yingpanguazai/ssd/ssd1/www/c.460.net.cn/app/middleware.php ( 0.25 KB )
  86. /yingpanguazai/ssd/ssd1/www/c.460.net.cn/vendor/topthink/framework/src/think/Pipeline.php ( 2.61 KB )
  87. /yingpanguazai/ssd/ssd1/www/c.460.net.cn/vendor/topthink/think-trace/src/TraceDebug.php ( 3.40 KB )
  88. /yingpanguazai/ssd/ssd1/www/c.460.net.cn/vendor/topthink/framework/src/think/middleware/SessionInit.php ( 1.94 KB )
  89. /yingpanguazai/ssd/ssd1/www/c.460.net.cn/vendor/topthink/framework/src/think/Session.php ( 1.80 KB )
  90. /yingpanguazai/ssd/ssd1/www/c.460.net.cn/vendor/topthink/framework/src/think/session/driver/File.php ( 6.27 KB )
  91. /yingpanguazai/ssd/ssd1/www/c.460.net.cn/vendor/topthink/framework/src/think/contract/SessionHandlerInterface.php ( 0.87 KB )
  92. /yingpanguazai/ssd/ssd1/www/c.460.net.cn/vendor/topthink/framework/src/think/session/Store.php ( 7.12 KB )
  93. /yingpanguazai/ssd/ssd1/www/c.460.net.cn/vendor/topthink/framework/src/think/Route.php ( 23.73 KB )
  94. /yingpanguazai/ssd/ssd1/www/c.460.net.cn/vendor/topthink/framework/src/think/route/RuleName.php ( 5.75 KB )
  95. /yingpanguazai/ssd/ssd1/www/c.460.net.cn/vendor/topthink/framework/src/think/route/Domain.php ( 2.53 KB )
  96. /yingpanguazai/ssd/ssd1/www/c.460.net.cn/vendor/topthink/framework/src/think/route/RuleGroup.php ( 22.43 KB )
  97. /yingpanguazai/ssd/ssd1/www/c.460.net.cn/vendor/topthink/framework/src/think/route/Rule.php ( 26.95 KB )
  98. /yingpanguazai/ssd/ssd1/www/c.460.net.cn/vendor/topthink/framework/src/think/route/RuleItem.php ( 9.78 KB )
  99. /yingpanguazai/ssd/ssd1/www/c.460.net.cn/route/app.php ( 1.72 KB )
  100. /yingpanguazai/ssd/ssd1/www/c.460.net.cn/vendor/topthink/framework/src/think/facade/Route.php ( 4.70 KB )
  101. /yingpanguazai/ssd/ssd1/www/c.460.net.cn/vendor/topthink/framework/src/think/route/dispatch/Controller.php ( 4.74 KB )
  102. /yingpanguazai/ssd/ssd1/www/c.460.net.cn/vendor/topthink/framework/src/think/route/Dispatch.php ( 10.44 KB )
  103. /yingpanguazai/ssd/ssd1/www/c.460.net.cn/app/controller/Index.php ( 4.81 KB )
  104. /yingpanguazai/ssd/ssd1/www/c.460.net.cn/app/BaseController.php ( 2.05 KB )
  105. /yingpanguazai/ssd/ssd1/www/c.460.net.cn/vendor/topthink/think-orm/src/facade/Db.php ( 0.93 KB )
  106. /yingpanguazai/ssd/ssd1/www/c.460.net.cn/vendor/topthink/think-orm/src/db/connector/Mysql.php ( 5.44 KB )
  107. /yingpanguazai/ssd/ssd1/www/c.460.net.cn/vendor/topthink/think-orm/src/db/PDOConnection.php ( 52.47 KB )
  108. /yingpanguazai/ssd/ssd1/www/c.460.net.cn/vendor/topthink/think-orm/src/db/Connection.php ( 8.39 KB )
  109. /yingpanguazai/ssd/ssd1/www/c.460.net.cn/vendor/topthink/think-orm/src/db/ConnectionInterface.php ( 4.57 KB )
  110. /yingpanguazai/ssd/ssd1/www/c.460.net.cn/vendor/topthink/think-orm/src/db/builder/Mysql.php ( 16.58 KB )
  111. /yingpanguazai/ssd/ssd1/www/c.460.net.cn/vendor/topthink/think-orm/src/db/Builder.php ( 24.06 KB )
  112. /yingpanguazai/ssd/ssd1/www/c.460.net.cn/vendor/topthink/think-orm/src/db/BaseBuilder.php ( 27.50 KB )
  113. /yingpanguazai/ssd/ssd1/www/c.460.net.cn/vendor/topthink/think-orm/src/db/Query.php ( 15.71 KB )
  114. /yingpanguazai/ssd/ssd1/www/c.460.net.cn/vendor/topthink/think-orm/src/db/BaseQuery.php ( 45.13 KB )
  115. /yingpanguazai/ssd/ssd1/www/c.460.net.cn/vendor/topthink/think-orm/src/db/concern/TimeFieldQuery.php ( 7.43 KB )
  116. /yingpanguazai/ssd/ssd1/www/c.460.net.cn/vendor/topthink/think-orm/src/db/concern/AggregateQuery.php ( 3.26 KB )
  117. /yingpanguazai/ssd/ssd1/www/c.460.net.cn/vendor/topthink/think-orm/src/db/concern/ModelRelationQuery.php ( 20.07 KB )
  118. /yingpanguazai/ssd/ssd1/www/c.460.net.cn/vendor/topthink/think-orm/src/db/concern/ParamsBind.php ( 3.66 KB )
  119. /yingpanguazai/ssd/ssd1/www/c.460.net.cn/vendor/topthink/think-orm/src/db/concern/ResultOperation.php ( 7.01 KB )
  120. /yingpanguazai/ssd/ssd1/www/c.460.net.cn/vendor/topthink/think-orm/src/db/concern/WhereQuery.php ( 19.37 KB )
  121. /yingpanguazai/ssd/ssd1/www/c.460.net.cn/vendor/topthink/think-orm/src/db/concern/JoinAndViewQuery.php ( 7.11 KB )
  122. /yingpanguazai/ssd/ssd1/www/c.460.net.cn/vendor/topthink/think-orm/src/db/concern/TableFieldInfo.php ( 2.63 KB )
  123. /yingpanguazai/ssd/ssd1/www/c.460.net.cn/vendor/topthink/think-orm/src/db/concern/Transaction.php ( 2.77 KB )
  124. /yingpanguazai/ssd/ssd1/www/c.460.net.cn/vendor/topthink/framework/src/think/log/driver/File.php ( 5.96 KB )
  125. /yingpanguazai/ssd/ssd1/www/c.460.net.cn/vendor/topthink/framework/src/think/contract/LogHandlerInterface.php ( 0.86 KB )
  126. /yingpanguazai/ssd/ssd1/www/c.460.net.cn/vendor/topthink/framework/src/think/log/Channel.php ( 3.89 KB )
  127. /yingpanguazai/ssd/ssd1/www/c.460.net.cn/vendor/topthink/framework/src/think/event/LogRecord.php ( 1.02 KB )
  128. /yingpanguazai/ssd/ssd1/www/c.460.net.cn/vendor/topthink/think-helper/src/Collection.php ( 16.47 KB )
  129. /yingpanguazai/ssd/ssd1/www/c.460.net.cn/vendor/topthink/framework/src/think/facade/View.php ( 1.70 KB )
  130. /yingpanguazai/ssd/ssd1/www/c.460.net.cn/vendor/topthink/framework/src/think/View.php ( 4.39 KB )
  131. /yingpanguazai/ssd/ssd1/www/c.460.net.cn/vendor/topthink/framework/src/think/Response.php ( 8.81 KB )
  132. /yingpanguazai/ssd/ssd1/www/c.460.net.cn/vendor/topthink/framework/src/think/response/View.php ( 3.29 KB )
  133. /yingpanguazai/ssd/ssd1/www/c.460.net.cn/vendor/topthink/framework/src/think/Cookie.php ( 6.06 KB )
  134. /yingpanguazai/ssd/ssd1/www/c.460.net.cn/vendor/topthink/think-view/src/Think.php ( 8.38 KB )
  135. /yingpanguazai/ssd/ssd1/www/c.460.net.cn/vendor/topthink/framework/src/think/contract/TemplateHandlerInterface.php ( 1.60 KB )
  136. /yingpanguazai/ssd/ssd1/www/c.460.net.cn/vendor/topthink/think-template/src/Template.php ( 46.61 KB )
  137. /yingpanguazai/ssd/ssd1/www/c.460.net.cn/vendor/topthink/think-template/src/template/driver/File.php ( 2.41 KB )
  138. /yingpanguazai/ssd/ssd1/www/c.460.net.cn/vendor/topthink/think-template/src/template/contract/DriverInterface.php ( 0.86 KB )
  139. /yingpanguazai/ssd/ssd1/www/c.460.net.cn/runtime/temp/a3df6b94aede6ebd0d2926ccdfcd20d5.php ( 11.98 KB )
  140. /yingpanguazai/ssd/ssd1/www/c.460.net.cn/vendor/topthink/think-trace/src/Html.php ( 4.42 KB )
  1. CONNECT:[ UseTime:0.000735s ] mysql:host=127.0.0.1;port=3306;dbname=c460;charset=utf8mb4
  2. SHOW FULL COLUMNS FROM `fenlei` [ RunTime:0.000840s ]
  3. SELECT * FROM `fenlei` WHERE `fid` = 0 [ RunTime:0.000324s ]
  4. SELECT * FROM `fenlei` WHERE `fid` = 63 [ RunTime:0.000312s ]
  5. SHOW FULL COLUMNS FROM `set` [ RunTime:0.000486s ]
  6. SELECT * FROM `set` [ RunTime:0.000207s ]
  7. SHOW FULL COLUMNS FROM `article` [ RunTime:0.000674s ]
  8. SELECT * FROM `article` WHERE `id` = 537954 LIMIT 1 [ RunTime:0.000468s ]
  9. UPDATE `article` SET `lasttime` = 1780104586 WHERE `id` = 537954 [ RunTime:0.001701s ]
  10. SELECT * FROM `fenlei` WHERE `id` = 64 LIMIT 1 [ RunTime:0.000794s ]
  11. SELECT * FROM `article` WHERE `id` < 537954 ORDER BY `id` DESC LIMIT 1 [ RunTime:0.000505s ]
  12. SELECT * FROM `article` WHERE `id` > 537954 ORDER BY `id` ASC LIMIT 1 [ RunTime:0.000410s ]
  13. SELECT * FROM `article` WHERE `id` < 537954 ORDER BY `id` DESC LIMIT 10 [ RunTime:0.001218s ]
  14. SELECT * FROM `article` WHERE `id` < 537954 ORDER BY `id` DESC LIMIT 10,10 [ RunTime:0.004276s ]
  15. SELECT * FROM `article` WHERE `id` < 537954 ORDER BY `id` DESC LIMIT 20,10 [ RunTime:0.001834s ]
0.082832s