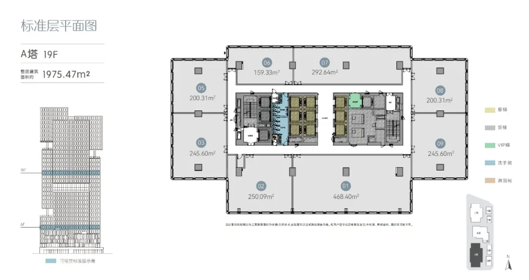
天音大厦位于深圳市南山区深圳湾超级总部基地北端,宗地号T207-005,总用地面积15539.46平方米,建设用地面积同样为15539.46平方米。项目总建筑面积约14.7万平方米,其中总计容建筑面积为10.3万平方米,容积率达6.18。项目由A、B两栋塔楼、C栋文化中心及DEFG独栋商业裙楼组成,其中A塔约32层,建筑高度约155米;B塔约21层,建筑高度约107米;文化中心10层,建筑高度约57米;独栋商业裙楼建筑高度约25米。


天音大厦由国际知名建筑事务所gmp·冯·格康,玛格及合伙人建筑师事务所(gmp Architekten)通过国际竞赛中标设计,设计概念为“世界之树”,旨在营造丰富室外公共空间与亲切的小聚落感。这一理念象征着宇宙之轴与生命循环,涵盖了人与自然的紧密联系。项目以“世界之树”构筑的宇宙为蓝本,将酒店、办公、商业、塔尖圈层平台等多元业态融合为一个有机整体,既各自独立成小世界,又相互融合成一个大宇宙,共同生长、共融共促。


在建筑形态上,天音大厦的南北两座塔楼如同两棵参天大树,扎根于深圳湾这片充满活力的土地上。整体布局由两座主要高层塔楼(南北向)坐落于同一个景观平台上,通过裙房“盒子”灵活组合,化解场地宽度有限的制约,围合出尺度丰富的户外空间。错落有致的“悬浮立方体”造型,象征天音通信多元化的业务领域(如不同部门与产品线)。塔楼与裙房结合多变视角,形成聚落般的亲切感。


项目强调与周边环境融合,包括绿化步行桥、中央公园整合、空中花园等,面向东侧中央绿地公园和北侧湿地公园,提供休闲、会议与交流场所。设计注重消除公园与项目平台的边界,形成差异化吸引力。建筑在多个层面与周围地块建立联系,成为都市网络节点,呼应深超总“通山达海”的生态布局和高密度商务区定位。此外,天音大厦的建筑幕墙设计更是别出心裁。其灵感源自天音通信的主业——智能手机,整体立面完整性极高,一个幕墙单元仅由一块玻璃与型材组合而成,既展现了科技产品的精致与细腻,又体现了建筑艺术与科技元素的完美融合。幕墙单元四角设计为平滑的圆弧造型,结合室内平开窗,实现了室内外互通,为建筑增添了灵动与活力。
结构设计由广东省建筑设计研究院深圳分院负责,景观由深圳迪加希望城市景观设计有限公司配合,室内设计由广州城市组设计集团有限公司参与。幕墙工程等由方大建科等企业承建,注重样板先行与精细化管理。
天音大厦将成为深圳乃至全国高端商务办公的新标杆。它不仅将为入驻企业提供高品质的办公空间和商业体验,还将成为文化交流和创新创业的重要平台。随着项目的全面竣工和投入使用,天音大厦将携手周边其他大型企业总部大楼,共同聚合形成具有强大势能的地标建筑群,成为深圳湾最亮丽的风景线。天音大厦严格遵循绿色建筑LEED金牌认证要求,体现了对环境保护和可持续发展的高度承诺。
项目于2018年左右开工,项目主体结构已于2022年初封顶,2023年曾对总平面图、技术经济指标进行调整(如建筑面积微调、楼层与高度优化、绿化平台完善等),2026年2月天音大厦一期已竣备(竣工验收备案),与其他项目共同构成深超总已投用或接近投用的节点。预计将在不久的将来全面竣工并投入使用。项目概览
建筑组成:由三座塔楼及裙楼组成,A座塔楼高150米(32层)、B座塔楼高约95.8–100米(21层)、C座塔楼高53米(10层),均采用钢管混凝土框架-钢筋混凝土核心筒结构体系。功能定位:以办公为主,配套商业、通信机楼等,服务天音通信在智能手机及移动设备软硬件领域的总部需求。开发背景:项目于2018年左右开工,属于深超总首批企业总部项目之一。图片来自:gmp、建筑细部、saul archiman