

这套现代简约风改造,没有花里胡哨的东西,就是实实在在把家变好住。
拆了该拆的墙,动了该动的布局,看起来清爽了,用起来也顺手了。业主说:早知道装成这样,早几年就该动了。
\/


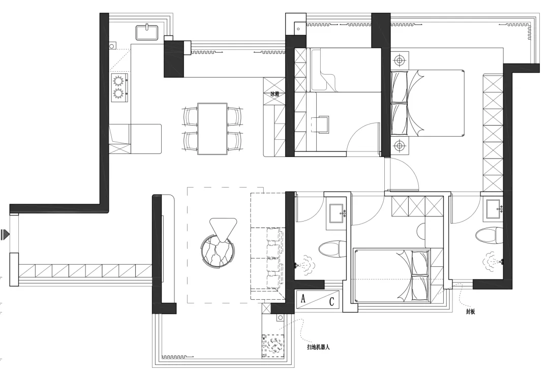
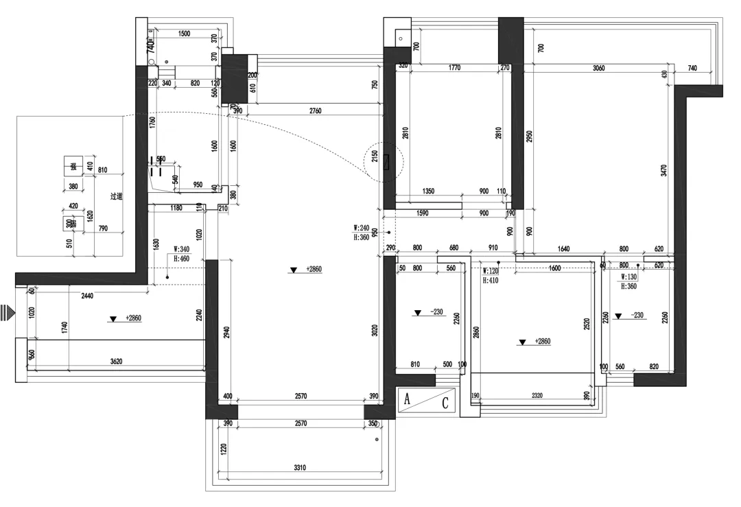
客餐厨一体化布局与无隔断设计,让客厅、餐厅、开放式厨房自然连通,选用白色纱帘柔和过滤自然光,配合大面窗与浅色地面,营造出平整利落、均匀柔和的明亮氛围。



嵌入式电视背景墙以黑白撞色与底部灯带实现“隐形收纳”,餐边柜则与厨房橱柜统一为浅米色基调,将洗衣机等功能体块巧妙隐藏,搭配可移动圆凳等灵活家具,让空间整洁有序。




米白、浅灰、原木色奠定低饱和温暖基调,通过实木、皮质、大理石纹等材质碰撞丰富层次;灯光上构建基础照明、氛围灯带与餐桌艺术吊灯的多层次场景。

细节处,细踢脚线、隐藏式空调出风口及少量绿植与软装点缀,进一步强化了简约却不失生活温度的居住体验。


主卧改造以黑色边框玻璃门实现主卧与卫生间的通透互联,通顶衣柜通过精细化分区与隐形把手设计兼顾整洁美观与实用收纳。

胡桃木床架与磨砂玻璃碰撞出温暖层次,轻薄吸顶灯结合线性灯带营造柔和场景,细部平整化处理与统一色调则让整个空间在极简中回归纯粹的睡眠体验。

男孩房兼顾书房与卧室功能,满足在家办公与游戏需求,配置大尺度书桌;次卧则以“书桌+衣柜+床”一体化设计实现功能复合,白天为独立书房,夜晚切换为舒适卧室,让小空间实现“一房两用”。

定制收纳采用藏露结合的分区设计与隐形把手,搭配多层次灯光,以及米白、浅灰与黑胡桃木的冷暖色调平衡,在紧凑布局中兼顾高效实用与简约美感。

女孩房采用“通顶衣柜+书桌+床”沿墙一字排开的紧凑一体化布局,根据喜好设计收集的手办打造了玻璃柜作床头展示,睡眠与工作学习区无缝衔接;再配合靠窗采光与双层窗帘,让小空间轻松实现日夜场景的自由切换。

公卫采用洗手台、马桶、淋浴区一字排布的紧凑布局,通过地面坡度实现干湿分离,以浅米色大尺寸哑光瓷砖通铺墙面与地面延伸空间感,搭配悬浮式洗手台、极窄边框门、风暖浴霸与棕色百叶窗设计。

◍往期精选(私宅)作品 | Real works...




点击“阅读原文”在线预约本案设计师~