

秉承联系山体与园区,融汇文化与科技、人文与自然的使命,光明华强科技生态园的最后一环,以“文化 + 科技”为内核,“生态 + 智慧”为肌理,在光明城的山景脉络中,构建出一座既有在地性又具未来感的产业新地标。

园区半鸟瞰©刘俊男
由AUBE欧博设计主持设计的光明华强科技生态园(六期)位于深圳市光明科学城核芯区,是光明区打造“世界一流科学城”的重要产业载体。光明华强科技生态园以“3+3+1”产业集群为基石,聚焦人工智能、高端医疗器械、生物医药等前沿领域。
让建筑依山而伴成为天际线的自然延伸
设计的起点,是对场地原生条件的回应,即在空间上保留对山体的实现通廊,又在地面建立立体复核的休闲层台,成为山脚下的歇息驿站。基地东南角崛起150米地标塔楼,以挺拔姿态最大化享有山景视野;辅以100米与70米塔楼,形成“两边高中间低”的错落格局,如同山体轮廓的自然延续。这种与山势呼应的规划,不仅优化了区域天际线的韵律感,更让建筑与山体深度耦合,让每一处空间都能浸润在自然的底色中。


沿街视角©刘俊男

整体鸟瞰©刘俊男

二层平台©刘俊男
三栋塔楼并非简单并列,而是以“错落 + 旋转”的布局策略,在疏密之间留出通透的视线通廊。横向绿化通廊串联起水平维度的景观渗透,纵向视野则突破建筑界限直抵山巅,让山景成为园区最动人的“背景墙”,实现人工建造与自然肌理的无缝衔接。
园区以立体分层的城市平台系统为核心,打破传统产业空间的平面局限,构建从地面到空中的多维场景网络。

园区半鸟瞰©刘俊男

园区二层平台系统

塔楼立面©刘俊男
地面层,入口广场、台阶、口袋公园与共享休闲阶相互串联,将研发厂房与城市开放公共空间融为一体,让产业园区不再是封闭的孤岛,而是融入城市生活的活力节点。

园区广场©刘俊男

塔楼前广场©刘俊男
二层架空连廊如同“空中社交客厅”,串联起各栋主体建筑,既实现了办公空间的高效连通,又以通透的设计让自然光线与绿植景观渗透其间,为产业人员营造出亲近自然的办公休憩环境,让创意在流动中自然生长。

园区半鸟瞰©刘俊男

二层平台©刘俊男
屋顶平台被赋予更丰富的功能意义,C座屋面整合植被景观与休憩设施,打造生态花园与观景复合空间。在这里,自然绿意与城市全景交相辉映,为高压的产业工作提供一处可呼吸、可社交的高品质场所,让园区空间体验从平面延伸至立体。

西侧规划的两栋特色商业,以小体量、宜人尺度的空间设计,填补了园区多元生活需求,让工作与休闲、产业与消费在此形成良性互动。

沿街商业©初祎君
建筑的立面设计,是“文化 + 科技”内核的直观呈现。以“思绪旋转上升”为灵感,塔楼轮廓线条富有动态张力,既呼应了创意产业的灵动特质,又强化了建筑的昭示性,使其成为光明城站周边极具辨识度的视觉锚点。

塔楼立面©刘俊男


塔楼细部©刘俊男
办公楼采用框架式幕墙体系,兼顾快速建造与施工效率;双银LOW-E中空玻璃的运用,在保障通透视野的同时,实现了节能降耗与成本优化的双重目标。科技感的材质与灵动的形态相结合,让建筑既满足产业功能需求,又成为文化创意的具象表达。

大堂雨棚©刘俊男

雨棚细部©刘俊男
从与山体共生的规划布局,到多维互动的空间设计,再到文化与科技融合的立面表达,光明华强科技生态园(六期)不仅是一座产业园区,更是一座生态、智慧、开放的城市新空间。它以建筑为媒介,连接自然与城市、产业与生活,成为区域城市更新与产业升级的视觉象征,也为“文化 + 科技”的产业生态,提供了一处生长与绽放的理想土壤。


沿街视角©刘俊男
技术图纸

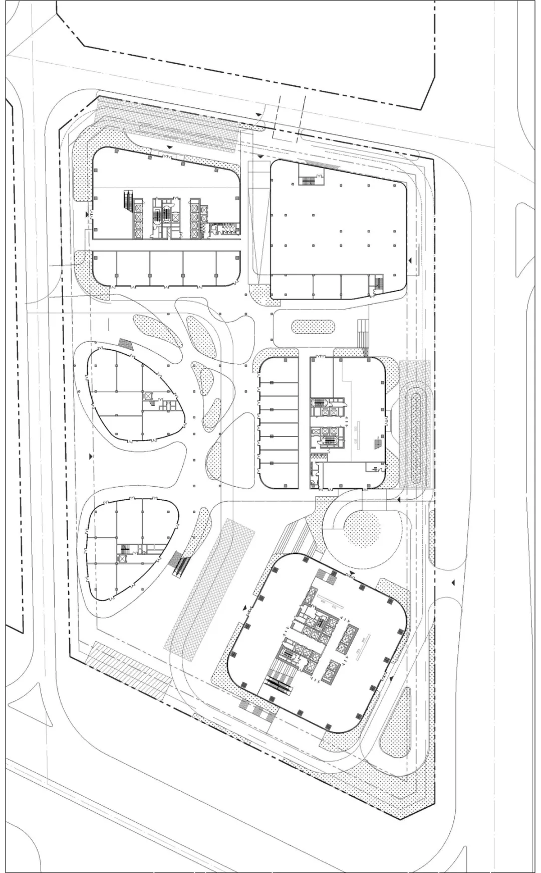
总平面图

首层平面组合图

立面图

剖面图
项目信息
项目地点:广东省深圳市
客户:深圳华强高新产业园投资发展有限公司设计范围:规划、建筑主要功能:研发厂房、小型商业服务设施用地面积:87 200㎡ 总建筑面积:191 850㎡设计/竣工年份:2018/2025
AUBE欧博设计团队:
主持建筑师:初祎君项目负责人:丁荣
设计团队:蔡寒丹、徐锐豪、薛业彬、冯德泰、曾先、许宗琦、叶志超、付嘉颖、陈熙、陈秋霞、施沛、傅慧玲、陆茵
建筑方案设计:深圳市欧博工程设计顾问有限公司施工图设计:深圳市鹏清建筑与规划设计有限公司
室内设计:深圳毕路德建筑顾问有限公司
景观设计:深圳市西海景观规划设计有限公司泛光设计:深圳市索氏照明设计事务所有限公司 幕墙设计:深圳市中筑科技幕墙设计咨询有限公司标识设计:深圳市自由空间标识有限公司
智能化设计:深圳市麦驰物联股份有限公司
摄影师:刘俊男、初祎君
END 联系我们:sheji2415 投稿邮箱:youtharch@163.com