深圳华联·峦山府最新2栋已拿证,均价6.4万,预计下周开盘,折扣方面暂定,去年10月开盘1栋以及6栋均价6.6万,综合折扣约87折,不过开盘两天后又回到了9折,据说本次由于2栋位置最好,也是整个小区楼栋最低的仅28层高,整体均价也低2000一平米,折扣可能不会给太高,最终以开发商公布为准
说峦山府你可能不知道,但是他有个名字你肯定听过他就是御品峦山宝安区御品峦山花园最早可以追溯到2006年,2016年基本完成基础工程后项目却突然停工了。
项目名称由“御品峦山花园”变更为“御品峦山雅苑”;建设单位由“深圳市泰新利物业管理有限公司”变更为“深圳市景恒泰房地产开发有限公司”;
设计单位由“深圳合大国际工程设计有限公司”变更为“梁黄顾建筑设计(深圳)有限公司”。

这一晃19年过去了,项目在今年又复工了
御品峦山花园也就是如今的峦山府位于西乡桃源片区,属于地铁12号线西乡桃源站跟20号线的航城站双地铁口物业。未来6站直达南山科技园
还有一个比较重要的问题就是华联峦山府卖土地使用年限短,1993年拿的地,已经过去32年了。等客户拿到房时,使用年限大约只剩一半了!其实项目位置挺好而且片区没有新房在售,在这个条件下开盘218套如今半年时间过去只卖了45%,大概100套这样
据了解,御品峦山1公里范围内都是入伙多年的小区,北面的桃源居楼龄约13-20年,挂牌价约4万/㎡出头到5.3万/㎡;西侧的领航城楼龄约5-10年,挂牌价约5.2-7.6万/㎡。7.6万主要是大户型的,小户型基本在5万出头
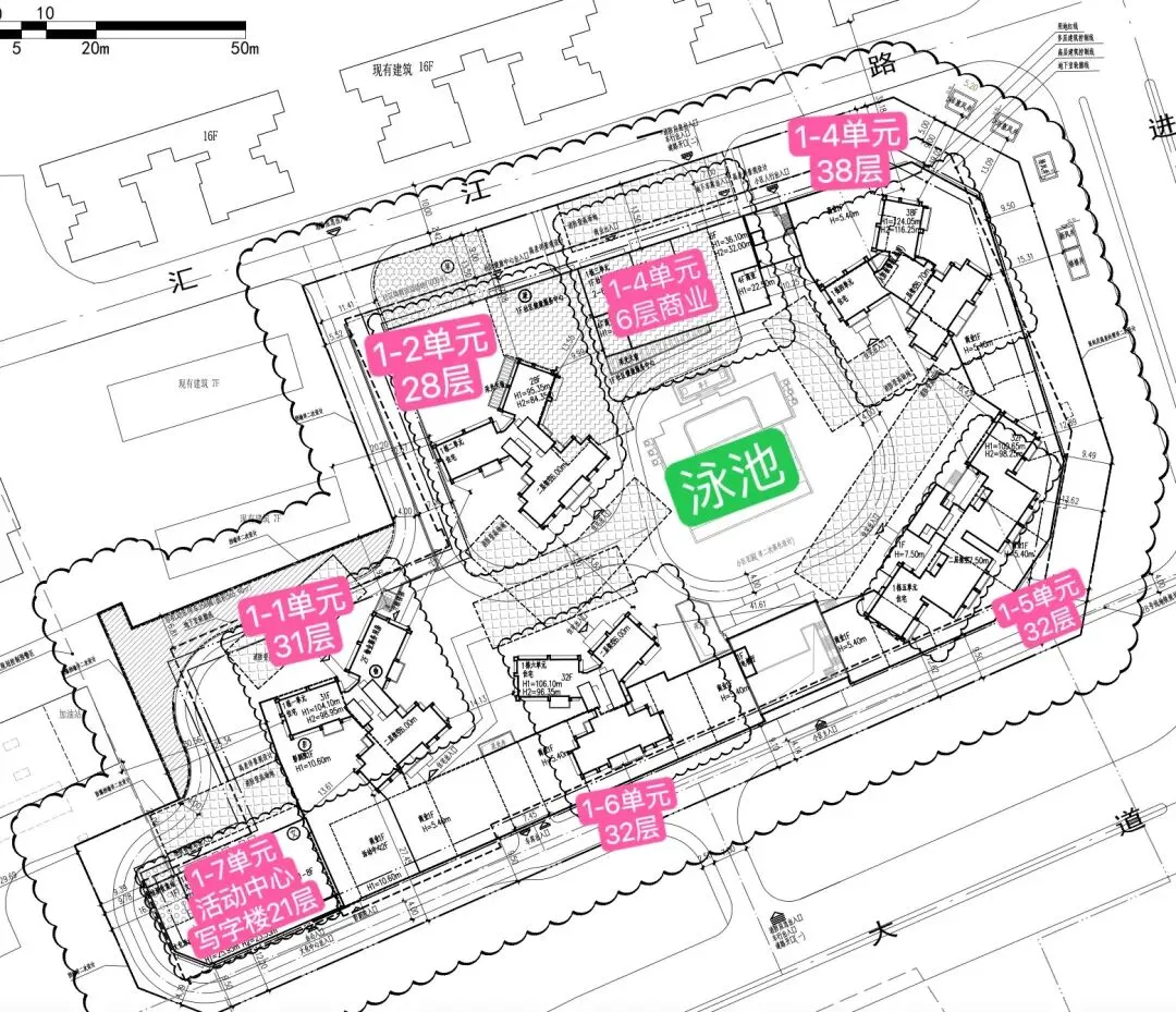
华联峦山府位于宝安区西乡街道广深公路与航城大道交汇处东北侧,楼下即地铁12号线西乡桃源站,是景恒泰公司倾力打造的高端住宅项目。项目早期开盘的是1栋以及6栋都是靠马路看外围的,项目即将加推2栋楼王单位户型跟之前是一样94-164平米项目总建设用地面积约2.19万m²,总建筑面积约12.42万m²,容积率4.19,车位比约1:1.29。共规划建设7栋楼体,其中5栋为28-38层的高层住宅,共504户,均采用2梯4户或3梯4户的设计,另有1栋6层商业和1栋21层的办公产品,项目推出住宅产品为94-120㎡,以及161㎡6米层高的复式,此外小区内设有泳池配套。该项目是华联联合豪宅专家恒裕开发「新古典立面」定调美学风骨,延续恒裕豪宅基因形象,暖色系一揽建筑气韵,线条间勾勒出挺拔利,尽显庄重与雅致。塔楼主体墙面甄选恒裕滨城同款的「陶瓷马赛克」铺陈,装饰效果精致考究,更兼具耐候性强、不易褪色脱落的优越性能,能使建筑立面日久弥新
度假风情式的灵动泳池,消弭与天地的界限天光云影跌入碧波,岸边花树晕开整片画卷的“镜花水月
视线随路径缓缓引导,时而豁然开朗,时而峰回路转,情绪也随之起伏,串联空间秩序,让每一步探寻都藏着不期而遇的惊喜
官方户型图:
周边配套情况:
交通配套:
御品峦山雅苑坐落于宝安区西乡街道,出门即是主干道107国道(广深公路),为您的出行提供了极大的便利。此外,项目还是双地铁口物业,距离12号地铁线“西乡桃源站”和在建的20号地铁线二期“航城站”均在50米范围内,真正实现了地铁物业的便捷生活。20号线3站机场,6站南山科技园根据宝安区教育局2024年最新的学区划分,峦山府的小初学区均划分在西乡实验学校和中澳实验学校公办班。其中,西乡实验学校距离项目约880米,是一所九年制公办学校,设计办学规模72班,于2021年9月正式开办。在
中澳实验学校公办班虽然距离较近,但需注意的是,该校公办班有委托办学协议,会优先录取桃源居小区的生源。因此,购房者在选择时需充分考虑这一因素。
商业配套:
御品峦山雅苑自带有7000㎡社区底商,满足日常购物需求。同时,周边桃源居的社区底商也非常成熟,提供了更多的购物选择。在1公里范围内,有航城里购物中心;约3公里内,还有缤纷时代购物中心、西乡彩虹城等集中商业体,为居民提供了丰富的购物、娱乐、餐饮等生活配套。文娱配套:
项目几百米就是森林体育公园跟平峦山公园,平时休闲可以走走体育公园,周末休息能爬爬山,距离项目4公里范围内还有铁仔山公园,西乡红树林公园,尖岗山公园等
华联峦山府楼盘的优缺点如下,供参考:
优点:
交通便利
- 双地铁上盖,楼下即地铁12号线西乡桃源站,步行约50米可达,在建的20号线二期航城站也在500米范围内,未来还将有28号线规划交汇,形成三地铁格局,出行便捷。
- 紧邻107国道、航城大道等主干道,自驾可快速接入深中通道、广深沿江高速等,15分钟可达深圳宝安国际机场,30分钟内可达南山、前海等核心区域。
生态宜居
- 周边有平峦山公园(宝安最大城市公园,219公顷)、铁岗水库(“小千岛湖”)、铁仔山公园、桃源居森林体育公园等,高楼层可瞰湖景或山景,居住环境舒适,鲜氧充沛。
产品品质高
- 由华联控股与恒裕集团联合打造,外立面采用马赛克+22mm超白low-e玻璃+裙楼石材,设计现代感强,品质有保障。
- 小区内规划有恒温泳池、6层独立商业(约7000㎡)、老年活动中心等配套,华联物业(国家一级资质)提供“白金管家”服务,居住体验较好。
户型设计合理
- 主力户型为94-1200㎡平层和161㎡复式,多为2梯4户或3梯4户设计,得房率较高,部分户型赠送面积多,实用率可达95%以上。
- 户型多为全南向布局,通风采光好,复式户型在新规下较为稀缺,适合改善型需求。
教育资源丰富
- 一路之隔省一级桃源居中澳实验学校,直线距离约700米有九年一贯制西乡实验学校,富源英美学校等教育资源云集,孩子成长选择较多。
缺点:
产权年限较短
- 项目地块批地于1993年,2027年交房后,房屋土地使用年限仅剩约38年,可能影响后续二手房交易和贷款政策,部分购房者可能介意。
周边环境复杂
- 西侧紧邻中石化加油站,存在安全隐患和油气异味问题;南侧和东侧为航城大道、前进二路等主干道,噪音和粉尘较大;北侧为桃源居小区,部分楼龄较老,城市界面相对混杂。
教育竞争较大
- 对口西乡实验学校和中澳实验学校公办班,但中澳实验学校公办班优先录取桃源居小区生源,华联峦山府业主子女入学需竞争学位,西乡实验学校为新校,教学质量有待验证。
航空噪音影响
- 项目靠近深圳宝安国际机场,低楼层住户可能受到航空噪音干扰,尤其在高频航班时段。
大型商业配套较远
- 项目自带7000㎡社区底商,可满足日常购物需求,但大型购物中心(如大仟里、壹方城、海雅缤纷城等)需驾车15-20分钟才能到达,便利性相对有限。
深圳全区新房代理咨询▼
深圳所有新房优缺点分析解读 (深耕深圳10年房产经验)
专车接送、享 更多新房团购优惠折扣▼ 13360520651王经理