



场地西南侧福强路是城市主干道,噪音较大。西北新洲五街,东北侧新洲七街为城市支路是建筑组织出入的主要界面。项目整体容积率2.26,是深圳高密度校园的典型。规避噪音,“上天下地”寻找空间,很快通过多方案比较得到了一个较为理性的总体布局,随后便展开建筑的设计。



开放共享式教育
![]() | ![]() |


中央庭院不仅是视觉焦点,更是学校各类活动的核心舞台。图书馆、报告厅、体育馆、游泳馆、艺术教室、科学实验室等共享功能空间面向庭院开放,使学习从封闭的教室延伸到整个校园。这种布局鼓励跨年级交流、激发偶然相遇与知识碰撞,将“开放教育”理念具象化为可感知、可体验的空间现实。
多零层活动平台
通过水平楼板组织活动空间,强调建筑的水平性,楼板截面整合空调、设备管线,形成一块纯粹的“板”,层与层交错,富有变化。

设计草图
课间十分钟通常被认为是“无法有效利用的碎片时间”,但在绿洲小学,这段短暂的时间被赋予了新的价值。学生只需几步就能从教室来到平台,享受阳光、新鲜空气和短暂的游戏。这种设计深刻理解儿童行为特征——他们需要频繁的休息和活动来维持注意力,而非长时间困在固定座位上。







垂直维度的平等化:传统教学楼中,高层班级的学生往往难以在课间到达地面活动场地。多平台设计消除了这种垂直不平等,确保每个学生,无论所在楼层高低,都能平等享受活动空间。这些平台不仅是过渡区域,更是小型社交中心、临时展览空间和非正式学习场所,极大地丰富了校园生活的层次。
同时,我们在这些平板之中“随意”放置了若干的“异物”,与学生相遇,成为日常的”玩具”。

©樊钊明


©樊钊明







©袁小宜

©朱雄毅
多孔、开放的校园

设计草图

©樊钊明

©樊钊明

©樊钊明

©樊钊明


©朱雄毅
高密度之后
在深圳持续演进的新校园建设中,应对高密度挑战的设计策略已日趋完善,形成一套成熟而富有弹性的“工具包”。高密度不再必然指向压抑与单调,反而能被转化为塑造场所特色、激发空间潜力的独特机遇。
解决高密度问题之后,我们的目光终究需要回归到教育与空间的本质关系上。通过多次的回访与观察,我们发现这所嵌入城中村的校园,其内在气质似乎也悄然浸润着新洲社区特有的环境氛围。在这里,过度的管控与约束悄然退场,取而代之的是一份自然而生的自由与轻松。令人欣慰的是,这种氛围让空间的使用方式,在很大程度上贴近了设计最初的构想与期待——空间与行为之间,呈现出一种少见的、良性而活泼的默契。

©樊钊明



©朱雄毅

©方芳

©朱雄毅

©樊钊明

游泳馆室内照片©樊钊明

体育馆室内照片©方芳

食堂室内照片©袁小宜

报告厅室内照片©廖洪锋

报告厅吊顶照片©廖洪锋


施工过程©朱雄毅

施工过程©朱雄毅

施工过程©朱雄毅

施工过程©朱雄毅
技术图纸

总平面图

负二层平面图

负一层平面图

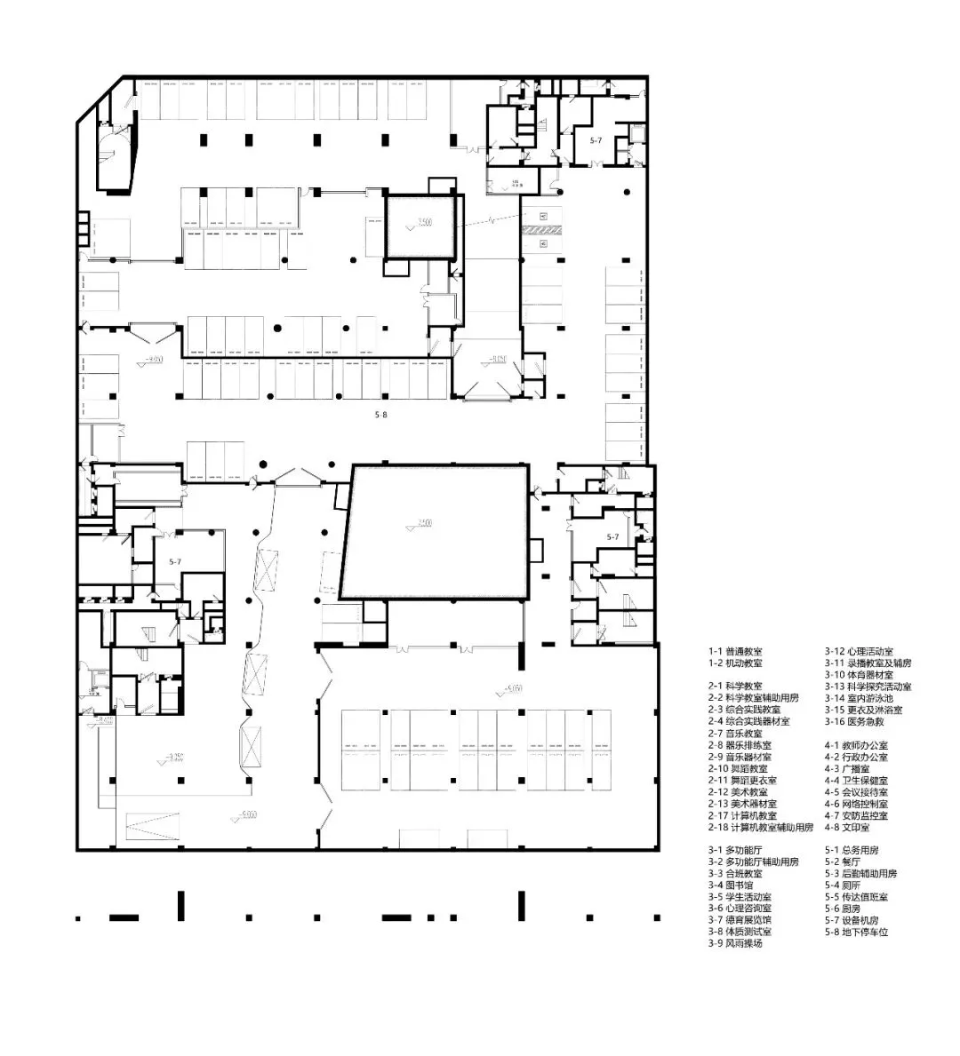
一层平面图

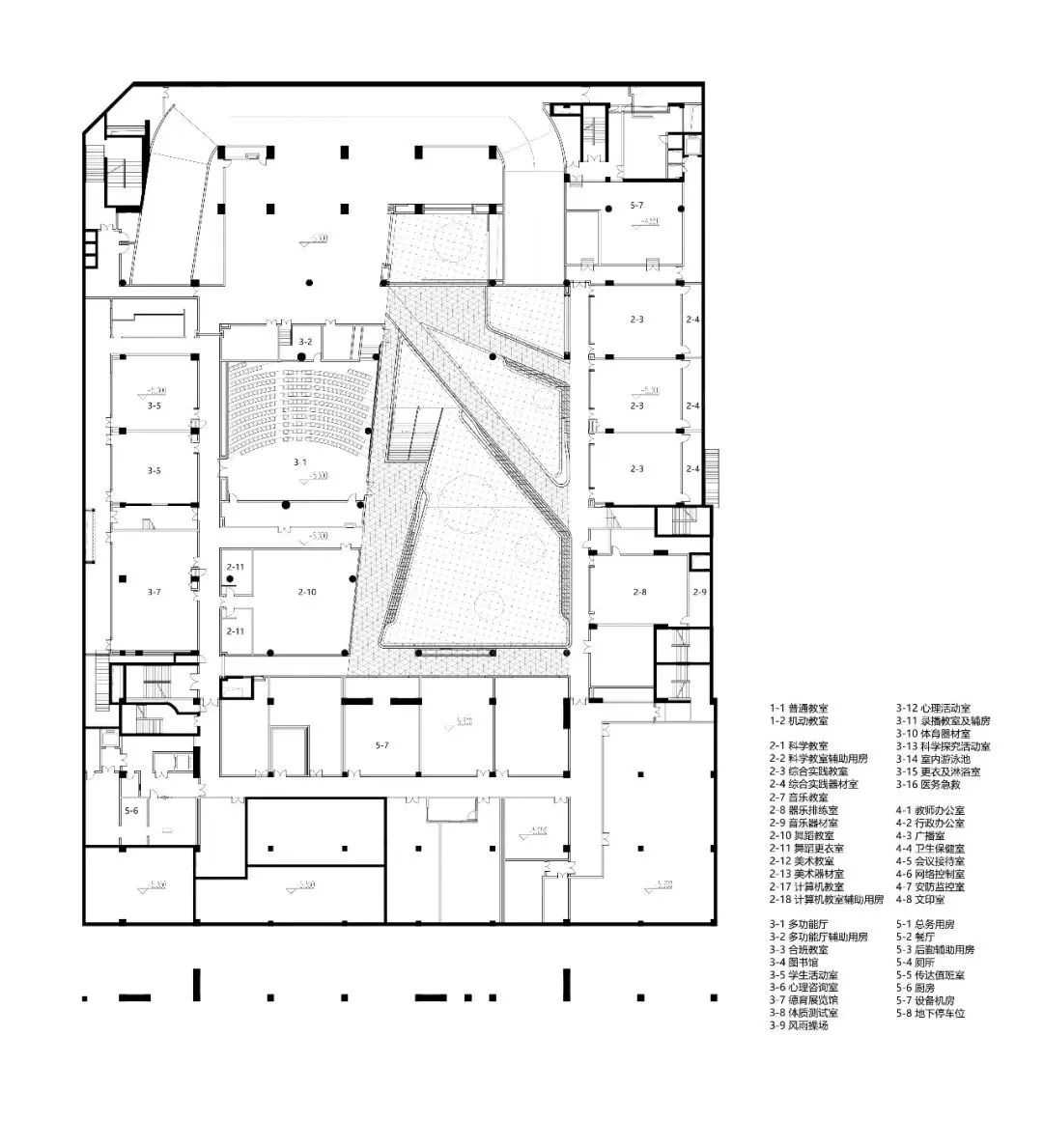
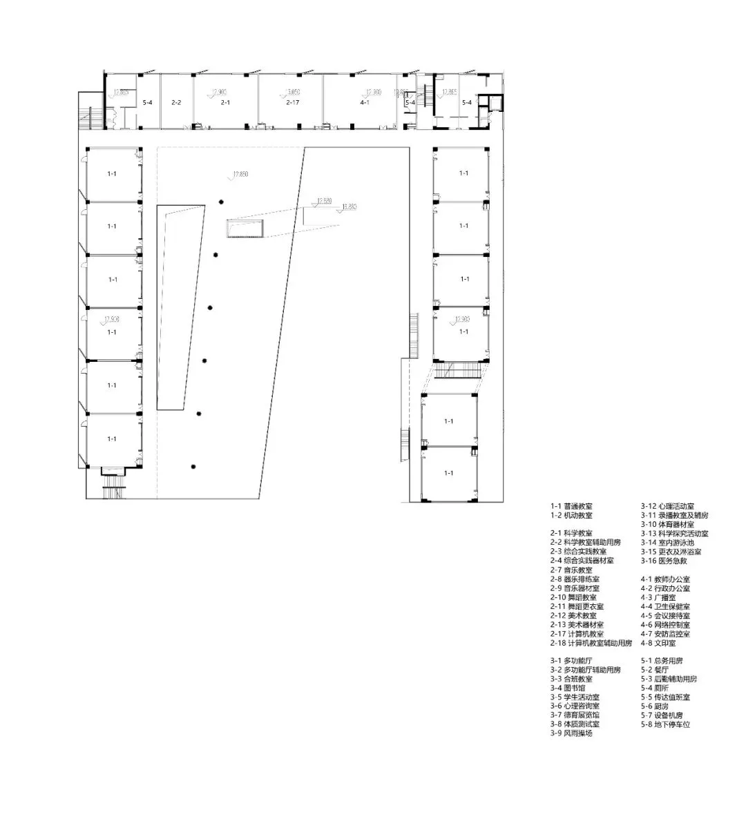
二层平面图

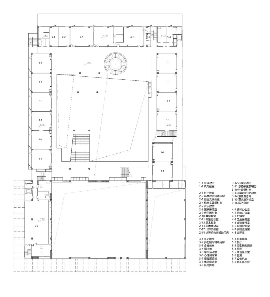
三层平面图

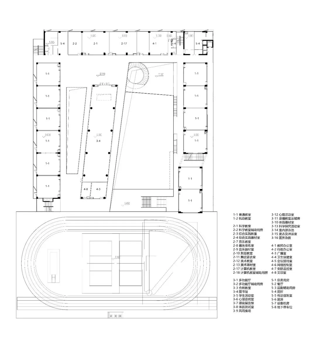
四层平面图

五层平面图






景观:汪春厚、伍艳瑜、杨丽娟、陈诚、戴超、崔敏、黄燚、鄢小娜
室内:深圳卓艺装饰设计工程有限公司
标识:深圳市自由空间标识有限公司
END 联系我们:sheji2415 投稿邮箱:youtharch@163.com