当前位置:首页>东莞>广州国际媒体港东塔项目介绍

广州国际媒体港东塔项目介绍

  • 2026-05-04 18:54:35
广州国际媒体港东塔项目介绍

广州国际媒体港东塔项目介绍

一、项目概况

广州国际媒体港东塔由广州城投商管运营,定位为国际文化科技总部,总层数 22 层(地上 20 层、地下 2 层),总建筑面积约 14.02 万平方米,租赁楼层为 1-20 层,标准层面积约 4642.12 平方米。

项目核心参数如下:

  • 层高
    :净高 2.7 米
  • 公共设备
    :各楼层均配备男、女卫生间
  • 空调系统
    :采用风机盘管系统
  • 停车位
    :共 859 个,分布于地下 1-2 层
  • 楼层功能框架
    • 地下 1-2 层:停车场及设备层
    • 1-3 层:大堂、办公区域(含部分商业配套)
    • 4-10 层:办公写字楼(其中 5-10 层为复式办公层)
    • 11 层:办公区域(含观景大厅及部分商业配套)
    • 12-19 层:标准办公写字楼
    • 20 层:办公区域(含部分休闲娱乐配套)
    • 技术层:休闲娱乐及设备机房
    • 屋面层:配套设施(含游泳池)

二、各楼层详细信息

1. 地下 1-2 层

功能定位为地下停车场及设备层,承担项目车辆停放及基础设备安置功能,共配备 859 个停车位,满足项目交通需求。

2. 首层

  • 建筑面积
    :约 4983.23㎡
  • 功能分布
    :包含办公门厅、多功能会议厅、零售区、配套服务区,同时设有空调 / 排烟机房、消防兼安防控制室、弱电机房、开关房等设备空间。
  • 单元面积
    • 01 单元:建筑面积 241.53㎡,实用面积 183.34㎡
    • 02 单元:实用面积 436.51㎡
    • 03 单元:面积 593.54㎡
    • 04 单元:实用面积 395.52㎡,建筑面积 516.15㎡
    • 05 单元:实用面积 1901.84㎡,建筑面积 2997.49㎡
  • 设施配置
    :低区客梯、高区客梯、转换梯、货梯、燃气管道井及入口通道。

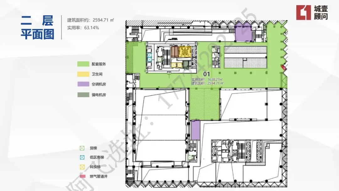
3. 二层

  • 建筑面积
    :约 2594.71㎡,实用率 63.14%
  • 功能分布
    :以配套服务为主,包含卫生间、空调机房、强电机房等。
  • 单元信息
    :仅 01 单元,实用面积 1638.27㎡,建筑面积 2594.71㎡。
  • 设施配置
    :货梯、低区客梯、转换梯、燃气管道井。

4. 三层

  • 建筑面积
    :约 3839.00㎡
  • 功能分布
    :以办公为主,配套卫生间、空调机房、弱电机房、强电机房等设备空间。
  • 单元信息
    • 301 单元:实用面积 772.75㎡,建筑面积 997.20㎡
    • 302 单元:实用面积 1371.21㎡,建筑面积 2044.31㎡
    • 303 单元:实用面积 522.77㎡,建筑面积 797.49㎡
  • 设施配置
    :货梯、低区客梯、转换梯、燃气管道井及入口通道。

5. 四层

  • 建筑面积
    :约 1397.86㎡,实用率约 52%
  • 功能分布
    :纯办公区域,配套卫生间、空调机房、弱电机房、强电机房。
  • 单元信息
    :仅 01 单元,实用面积 726.06㎡,建筑面积 1397.86㎡。
  • 设施配置
    :货梯、低区客梯、转换梯。

6. 五层(含复式组合)

  • 建筑面积
    :约 5291.91㎡
  • 功能分布
    :办公区域,配套卫生间及各类机房(空调、强弱电等)。
  • 单元信息
    • 复式组合:501+601(建筑面积 3587.45㎡,实用面积 2265㎡,实用率 63%);503+603(建筑面积 3068.76㎡,实用面积 2005.36㎡,实用率 65%)
    • 独立单元:01 单元(实用面积 1431.27㎡,建筑面积 2283.47㎡);03 单元(实用面积 1225.92㎡,建筑面积 1882.42㎡)
  • 设施配置
    :货梯、低区客梯、转换梯。

7. 六层(含复式组合)

  • 建筑面积
    :约 6157.59㎡
  • 功能分布
    :办公区域,配套卫生间及各类机房。
  • 单元信息
    • 复式组合:602+702(建筑面积 1918.91㎡,实用面积 1228.27㎡,实用率 64%);604+704(建筑面积 2313.60㎡,实用面积 1402.42㎡,实用率 61%)
    • 独立单元:02 单元(实用面积 1228.27㎡,建筑面积 1918.91㎡);04 单元(实用面积 1063.05㎡,建筑面积 1748.36㎡)
  • 设施配置
    :货梯、低区客梯、转换梯。

8. 七层

  • 建筑面积
    :约 5323.04㎡
  • 功能分布
    :办公区域,配套卫生间及各类机房。
  • 单元信息
    • 01 单元:实用面积 548.69㎡,建筑面积 831.89㎡
    • 03 单元:实用面积 1340.52㎡,建筑面积 2220.66㎡
    • 04 单元:实用面积 339.37㎡,建筑面积 565.24㎡
    • 05 单元:实用面积 1121.79㎡,建筑面积 1705.25㎡
  • 设施配置
    :货梯、低区客梯、转换梯。

9. 九层(含复式组合)

  • 建筑面积
    :约 8526.59㎡
  • 功能分布
    :办公区域,配套卫生间及各类机房。
  • 单元信息
    • 复式组合:901+1001(建筑面积 3153.62㎡,实用面积 1986.96㎡,实用率 63%);904+1004(建筑面积 2143.35㎡,实用面积 1448.10㎡,实用率 68%);906+1006(建筑面积 2365.58㎡,实用面积 1523.69㎡,实用率 64%)
    • 独立单元:01 单元(实用面积 1094.58㎡,建筑面积 1537.95㎡);04 单元(实用面积 1448.10㎡,建筑面积 2143.35㎡)
  • 设施配置
    :货梯、低区客梯、转换梯。

10. 十层

  • 建筑面积
    :约 3648.59㎡
  • 功能分布
    :办公区域,配套卫生间及各类机房。
  • 单元信息
    • 01 单元:实用面积 892.38㎡,建筑面积 1615.67㎡
    • 02 单元:实用面积 407.17㎡,建筑面积 772.94㎡
    • 05 单元:实用面积 374.25㎡,建筑面积 748.67㎡
    • 06 单元:实用面积 246.63㎡,建筑面积 511.36㎡
  • 设施配置
    :货梯、低区客梯、转换梯。

11. 十一层

  • 建筑面积
    :约 8407.22㎡
  • 功能分布
    :办公区域,含观景大厅及商业配套(零售、餐饮),配套厨房、卫生间及各类机房,另设厨房排烟井、燃气管道井等专项设施。
  • 单元信息
    :多单元布局,实用面积 126-856.57㎡,建筑面积 202.20-2316.86㎡
  • 设施配置
    :货梯、低区客梯、高区客梯、转换梯、燃气管道井、厨房排烟井。

12. 十二层

  • 建筑面积
    :约 2991.21㎡,实用率 51.37%
  • 功能分布
    :办公区域,配套卫生间及各类机房。
  • 单元信息
    • 01 单元:实用面积 485.67㎡,建筑面积 945.26㎡
    • 03 单元:实用面积 459.07㎡,建筑面积 893.50㎡
    • 04 单元:实用面积 413.67㎡,建筑面积 805.14㎡
  • 设施配置
    :货梯、高区客梯、转换梯。

13. 十三层

  • 建筑面积
    :约 4875.37㎡
  • 功能分布
    :标准办公层,配套卫生间及各类机房。
  • 单元信息
    :共 12 个单元,建筑面积 153.59-791.29㎡,实用面积 110.13-522.26㎡
  • 设施配置
    :货梯、高区客梯、转换梯。

14. 十四层

  • 建筑面积
    :约 4982.65㎡,实用率约 64%
  • 功能分布
    :标准办公层,配套卫生间及各类机房。
  • 单元信息
    :共 14 个单元,建筑面积 171.05-812.36㎡,实用面积 109.96-522.25㎡
  • 设施配置
    :货梯、高区客梯、转换梯。

15. 十五层

  • 建筑面积
    :约 5049.61㎡,实用率约 66%
  • 功能分布
    :标准办公层,配套卫生间及各类机房。
  • 单元信息
    :共 12 个单元,建筑面积 166.82-791.78㎡,实用面积 110.07-522.43㎡
  • 设施配置
    :货梯、高区客梯、转换梯。

16. 十六、十八层

  • 建筑面积
    :约 5049.30㎡,实用率约 66%
  • 功能分布
    :标准办公层,配套卫生间及各类机房。
  • 单元信息
    :共 12 个单元,建筑面积 166.95-791.69㎡,实用面积 110.25-522.79㎡
  • 设施配置
    :货梯、高区客梯、转换梯。

17. 十七、十九层

  • 建筑面积
    :约 5049.61㎡,实用率约 66%
  • 功能分布
    :标准办公层,配套卫生间及各类机房。
  • 单元信息
    :共 12 个单元,建筑面积 166.82-791.78㎡,实用面积 110.07-522.43㎡
  • 设施配置
    :货梯、高区客梯、转换梯。

18. 二十层

  • 建筑面积
    :约 4924.69㎡,实用率约 65%
  • 功能分布
    :办公区域,含部分休闲娱乐配套,配套卫生间及各类机房。
  • 单元信息
    • 01 单元:建筑面积 2371.31㎡,实用面积 1547.72㎡
    • 02 单元:建筑面积 800.46㎡,实用面积 522.45㎡
    • 05 单元:建筑面积 684.80㎡,实用面积 446.96㎡
  • 设施配置
    :货梯、高区客梯、转换梯。

19. 技术层与屋面层

  • 技术层
    :实用面积约 647.02㎡,功能为休闲娱乐及设备机房(空调、排烟、加压等)。
  • 屋面层
    :实用面积约 97.72㎡,配备游泳池。

三、功能总结

项目以办公为核心功能,融合商业配套(零售、餐饮)、休闲娱乐及专项服务(观景大厅、多功能会议厅),通过分层规划实现功能分区明确。地下层聚焦交通保障,低区(1-11 层)兼顾办公与商业服务,高区(12-20 层)以标准办公为主,技术层及屋面层提供配套支持,整体形成办公 + 服务 + 配套”的综合空间体系。

最新文章

随机文章

基本 文件 流程 错误 SQL 调试
  1. 请求信息 : 2026-05-09 12:59:42 HTTP/2.0 GET : https://c.460.net.cn/a/463932.html
  2. 运行时间 : 0.098879s [ 吞吐率:10.11req/s ] 内存消耗:4,412.31kb 文件加载:140
  3. 缓存信息 : 0 reads,0 writes
  4. 会话信息 : SESSION_ID=7d3bdda4ca89a15e05eeabb95a1f78e2
  1. /yingpanguazai/ssd/ssd1/www/c.460.net.cn/public/index.php ( 0.79 KB )
  2. /yingpanguazai/ssd/ssd1/www/c.460.net.cn/vendor/autoload.php ( 0.17 KB )
  3. /yingpanguazai/ssd/ssd1/www/c.460.net.cn/vendor/composer/autoload_real.php ( 2.49 KB )
  4. /yingpanguazai/ssd/ssd1/www/c.460.net.cn/vendor/composer/platform_check.php ( 0.90 KB )
  5. /yingpanguazai/ssd/ssd1/www/c.460.net.cn/vendor/composer/ClassLoader.php ( 14.03 KB )
  6. /yingpanguazai/ssd/ssd1/www/c.460.net.cn/vendor/composer/autoload_static.php ( 4.90 KB )
  7. /yingpanguazai/ssd/ssd1/www/c.460.net.cn/vendor/topthink/think-helper/src/helper.php ( 8.34 KB )
  8. /yingpanguazai/ssd/ssd1/www/c.460.net.cn/vendor/topthink/think-validate/src/helper.php ( 2.19 KB )
  9. /yingpanguazai/ssd/ssd1/www/c.460.net.cn/vendor/topthink/think-orm/src/helper.php ( 1.47 KB )
  10. /yingpanguazai/ssd/ssd1/www/c.460.net.cn/vendor/topthink/think-orm/stubs/load_stubs.php ( 0.16 KB )
  11. /yingpanguazai/ssd/ssd1/www/c.460.net.cn/vendor/topthink/framework/src/think/Exception.php ( 1.69 KB )
  12. /yingpanguazai/ssd/ssd1/www/c.460.net.cn/vendor/topthink/think-container/src/Facade.php ( 2.71 KB )
  13. /yingpanguazai/ssd/ssd1/www/c.460.net.cn/vendor/symfony/deprecation-contracts/function.php ( 0.99 KB )
  14. /yingpanguazai/ssd/ssd1/www/c.460.net.cn/vendor/symfony/polyfill-mbstring/bootstrap.php ( 8.26 KB )
  15. /yingpanguazai/ssd/ssd1/www/c.460.net.cn/vendor/symfony/polyfill-mbstring/bootstrap80.php ( 9.78 KB )
  16. /yingpanguazai/ssd/ssd1/www/c.460.net.cn/vendor/symfony/var-dumper/Resources/functions/dump.php ( 1.49 KB )
  17. /yingpanguazai/ssd/ssd1/www/c.460.net.cn/vendor/topthink/think-dumper/src/helper.php ( 0.18 KB )
  18. /yingpanguazai/ssd/ssd1/www/c.460.net.cn/vendor/symfony/var-dumper/VarDumper.php ( 4.30 KB )
  19. /yingpanguazai/ssd/ssd1/www/c.460.net.cn/vendor/topthink/framework/src/think/App.php ( 15.30 KB )
  20. /yingpanguazai/ssd/ssd1/www/c.460.net.cn/vendor/topthink/think-container/src/Container.php ( 15.76 KB )
  21. /yingpanguazai/ssd/ssd1/www/c.460.net.cn/vendor/psr/container/src/ContainerInterface.php ( 1.02 KB )
  22. /yingpanguazai/ssd/ssd1/www/c.460.net.cn/app/provider.php ( 0.19 KB )
  23. /yingpanguazai/ssd/ssd1/www/c.460.net.cn/vendor/topthink/framework/src/think/Http.php ( 6.04 KB )
  24. /yingpanguazai/ssd/ssd1/www/c.460.net.cn/vendor/topthink/think-helper/src/helper/Str.php ( 7.29 KB )
  25. /yingpanguazai/ssd/ssd1/www/c.460.net.cn/vendor/topthink/framework/src/think/Env.php ( 4.68 KB )
  26. /yingpanguazai/ssd/ssd1/www/c.460.net.cn/app/common.php ( 0.03 KB )
  27. /yingpanguazai/ssd/ssd1/www/c.460.net.cn/vendor/topthink/framework/src/helper.php ( 18.78 KB )
  28. /yingpanguazai/ssd/ssd1/www/c.460.net.cn/vendor/topthink/framework/src/think/Config.php ( 5.54 KB )
  29. /yingpanguazai/ssd/ssd1/www/c.460.net.cn/config/app.php ( 0.95 KB )
  30. /yingpanguazai/ssd/ssd1/www/c.460.net.cn/config/cache.php ( 0.78 KB )
  31. /yingpanguazai/ssd/ssd1/www/c.460.net.cn/config/console.php ( 0.23 KB )
  32. /yingpanguazai/ssd/ssd1/www/c.460.net.cn/config/cookie.php ( 0.56 KB )
  33. /yingpanguazai/ssd/ssd1/www/c.460.net.cn/config/database.php ( 2.47 KB )
  34. /yingpanguazai/ssd/ssd1/www/c.460.net.cn/vendor/topthink/framework/src/think/facade/Env.php ( 1.67 KB )
  35. /yingpanguazai/ssd/ssd1/www/c.460.net.cn/config/filesystem.php ( 0.61 KB )
  36. /yingpanguazai/ssd/ssd1/www/c.460.net.cn/config/lang.php ( 0.91 KB )
  37. /yingpanguazai/ssd/ssd1/www/c.460.net.cn/config/log.php ( 1.35 KB )
  38. /yingpanguazai/ssd/ssd1/www/c.460.net.cn/config/middleware.php ( 0.19 KB )
  39. /yingpanguazai/ssd/ssd1/www/c.460.net.cn/config/route.php ( 1.89 KB )
  40. /yingpanguazai/ssd/ssd1/www/c.460.net.cn/config/session.php ( 0.57 KB )
  41. /yingpanguazai/ssd/ssd1/www/c.460.net.cn/config/trace.php ( 0.34 KB )
  42. /yingpanguazai/ssd/ssd1/www/c.460.net.cn/config/view.php ( 0.82 KB )
  43. /yingpanguazai/ssd/ssd1/www/c.460.net.cn/app/event.php ( 0.25 KB )
  44. /yingpanguazai/ssd/ssd1/www/c.460.net.cn/vendor/topthink/framework/src/think/Event.php ( 7.67 KB )
  45. /yingpanguazai/ssd/ssd1/www/c.460.net.cn/app/service.php ( 0.13 KB )
  46. /yingpanguazai/ssd/ssd1/www/c.460.net.cn/app/AppService.php ( 0.26 KB )
  47. /yingpanguazai/ssd/ssd1/www/c.460.net.cn/vendor/topthink/framework/src/think/Service.php ( 1.64 KB )
  48. /yingpanguazai/ssd/ssd1/www/c.460.net.cn/vendor/topthink/framework/src/think/Lang.php ( 7.35 KB )
  49. /yingpanguazai/ssd/ssd1/www/c.460.net.cn/vendor/topthink/framework/src/lang/zh-cn.php ( 13.70 KB )
  50. /yingpanguazai/ssd/ssd1/www/c.460.net.cn/vendor/topthink/framework/src/think/initializer/Error.php ( 3.31 KB )
  51. /yingpanguazai/ssd/ssd1/www/c.460.net.cn/vendor/topthink/framework/src/think/initializer/RegisterService.php ( 1.33 KB )
  52. /yingpanguazai/ssd/ssd1/www/c.460.net.cn/vendor/services.php ( 0.14 KB )
  53. /yingpanguazai/ssd/ssd1/www/c.460.net.cn/vendor/topthink/framework/src/think/service/PaginatorService.php ( 1.52 KB )
  54. /yingpanguazai/ssd/ssd1/www/c.460.net.cn/vendor/topthink/framework/src/think/service/ValidateService.php ( 0.99 KB )
  55. /yingpanguazai/ssd/ssd1/www/c.460.net.cn/vendor/topthink/framework/src/think/service/ModelService.php ( 2.04 KB )
  56. /yingpanguazai/ssd/ssd1/www/c.460.net.cn/vendor/topthink/think-trace/src/Service.php ( 0.77 KB )
  57. /yingpanguazai/ssd/ssd1/www/c.460.net.cn/vendor/topthink/framework/src/think/Middleware.php ( 6.72 KB )
  58. /yingpanguazai/ssd/ssd1/www/c.460.net.cn/vendor/topthink/framework/src/think/initializer/BootService.php ( 0.77 KB )
  59. /yingpanguazai/ssd/ssd1/www/c.460.net.cn/vendor/topthink/think-orm/src/Paginator.php ( 11.86 KB )
  60. /yingpanguazai/ssd/ssd1/www/c.460.net.cn/vendor/topthink/think-validate/src/Validate.php ( 63.20 KB )
  61. /yingpanguazai/ssd/ssd1/www/c.460.net.cn/vendor/topthink/think-orm/src/Model.php ( 23.55 KB )
  62. /yingpanguazai/ssd/ssd1/www/c.460.net.cn/vendor/topthink/think-orm/src/model/concern/Attribute.php ( 21.05 KB )
  63. /yingpanguazai/ssd/ssd1/www/c.460.net.cn/vendor/topthink/think-orm/src/model/concern/AutoWriteData.php ( 4.21 KB )
  64. /yingpanguazai/ssd/ssd1/www/c.460.net.cn/vendor/topthink/think-orm/src/model/concern/Conversion.php ( 6.44 KB )
  65. /yingpanguazai/ssd/ssd1/www/c.460.net.cn/vendor/topthink/think-orm/src/model/concern/DbConnect.php ( 5.16 KB )
  66. /yingpanguazai/ssd/ssd1/www/c.460.net.cn/vendor/topthink/think-orm/src/model/concern/ModelEvent.php ( 2.33 KB )
  67. /yingpanguazai/ssd/ssd1/www/c.460.net.cn/vendor/topthink/think-orm/src/model/concern/RelationShip.php ( 28.29 KB )
  68. /yingpanguazai/ssd/ssd1/www/c.460.net.cn/vendor/topthink/think-helper/src/contract/Arrayable.php ( 0.09 KB )
  69. /yingpanguazai/ssd/ssd1/www/c.460.net.cn/vendor/topthink/think-helper/src/contract/Jsonable.php ( 0.13 KB )
  70. /yingpanguazai/ssd/ssd1/www/c.460.net.cn/vendor/topthink/think-orm/src/model/contract/Modelable.php ( 0.09 KB )
  71. /yingpanguazai/ssd/ssd1/www/c.460.net.cn/vendor/topthink/framework/src/think/Db.php ( 2.88 KB )
  72. /yingpanguazai/ssd/ssd1/www/c.460.net.cn/vendor/topthink/think-orm/src/DbManager.php ( 8.52 KB )
  73. /yingpanguazai/ssd/ssd1/www/c.460.net.cn/vendor/topthink/framework/src/think/Log.php ( 6.28 KB )
  74. /yingpanguazai/ssd/ssd1/www/c.460.net.cn/vendor/topthink/framework/src/think/Manager.php ( 3.92 KB )
  75. /yingpanguazai/ssd/ssd1/www/c.460.net.cn/vendor/psr/log/src/LoggerTrait.php ( 2.69 KB )
  76. /yingpanguazai/ssd/ssd1/www/c.460.net.cn/vendor/psr/log/src/LoggerInterface.php ( 2.71 KB )
  77. /yingpanguazai/ssd/ssd1/www/c.460.net.cn/vendor/topthink/framework/src/think/Cache.php ( 4.92 KB )
  78. /yingpanguazai/ssd/ssd1/www/c.460.net.cn/vendor/psr/simple-cache/src/CacheInterface.php ( 4.71 KB )
  79. /yingpanguazai/ssd/ssd1/www/c.460.net.cn/vendor/topthink/think-helper/src/helper/Arr.php ( 16.63 KB )
  80. /yingpanguazai/ssd/ssd1/www/c.460.net.cn/vendor/topthink/framework/src/think/cache/driver/File.php ( 7.84 KB )
  81. /yingpanguazai/ssd/ssd1/www/c.460.net.cn/vendor/topthink/framework/src/think/cache/Driver.php ( 9.03 KB )
  82. /yingpanguazai/ssd/ssd1/www/c.460.net.cn/vendor/topthink/framework/src/think/contract/CacheHandlerInterface.php ( 1.99 KB )
  83. /yingpanguazai/ssd/ssd1/www/c.460.net.cn/app/Request.php ( 0.09 KB )
  84. /yingpanguazai/ssd/ssd1/www/c.460.net.cn/vendor/topthink/framework/src/think/Request.php ( 55.78 KB )
  85. /yingpanguazai/ssd/ssd1/www/c.460.net.cn/app/middleware.php ( 0.25 KB )
  86. /yingpanguazai/ssd/ssd1/www/c.460.net.cn/vendor/topthink/framework/src/think/Pipeline.php ( 2.61 KB )
  87. /yingpanguazai/ssd/ssd1/www/c.460.net.cn/vendor/topthink/think-trace/src/TraceDebug.php ( 3.40 KB )
  88. /yingpanguazai/ssd/ssd1/www/c.460.net.cn/vendor/topthink/framework/src/think/middleware/SessionInit.php ( 1.94 KB )
  89. /yingpanguazai/ssd/ssd1/www/c.460.net.cn/vendor/topthink/framework/src/think/Session.php ( 1.80 KB )
  90. /yingpanguazai/ssd/ssd1/www/c.460.net.cn/vendor/topthink/framework/src/think/session/driver/File.php ( 6.27 KB )
  91. /yingpanguazai/ssd/ssd1/www/c.460.net.cn/vendor/topthink/framework/src/think/contract/SessionHandlerInterface.php ( 0.87 KB )
  92. /yingpanguazai/ssd/ssd1/www/c.460.net.cn/vendor/topthink/framework/src/think/session/Store.php ( 7.12 KB )
  93. /yingpanguazai/ssd/ssd1/www/c.460.net.cn/vendor/topthink/framework/src/think/Route.php ( 23.73 KB )
  94. /yingpanguazai/ssd/ssd1/www/c.460.net.cn/vendor/topthink/framework/src/think/route/RuleName.php ( 5.75 KB )
  95. /yingpanguazai/ssd/ssd1/www/c.460.net.cn/vendor/topthink/framework/src/think/route/Domain.php ( 2.53 KB )
  96. /yingpanguazai/ssd/ssd1/www/c.460.net.cn/vendor/topthink/framework/src/think/route/RuleGroup.php ( 22.43 KB )
  97. /yingpanguazai/ssd/ssd1/www/c.460.net.cn/vendor/topthink/framework/src/think/route/Rule.php ( 26.95 KB )
  98. /yingpanguazai/ssd/ssd1/www/c.460.net.cn/vendor/topthink/framework/src/think/route/RuleItem.php ( 9.78 KB )
  99. /yingpanguazai/ssd/ssd1/www/c.460.net.cn/route/app.php ( 1.72 KB )
  100. /yingpanguazai/ssd/ssd1/www/c.460.net.cn/vendor/topthink/framework/src/think/facade/Route.php ( 4.70 KB )
  101. /yingpanguazai/ssd/ssd1/www/c.460.net.cn/vendor/topthink/framework/src/think/route/dispatch/Controller.php ( 4.74 KB )
  102. /yingpanguazai/ssd/ssd1/www/c.460.net.cn/vendor/topthink/framework/src/think/route/Dispatch.php ( 10.44 KB )
  103. /yingpanguazai/ssd/ssd1/www/c.460.net.cn/app/controller/Index.php ( 4.81 KB )
  104. /yingpanguazai/ssd/ssd1/www/c.460.net.cn/app/BaseController.php ( 2.05 KB )
  105. /yingpanguazai/ssd/ssd1/www/c.460.net.cn/vendor/topthink/think-orm/src/facade/Db.php ( 0.93 KB )
  106. /yingpanguazai/ssd/ssd1/www/c.460.net.cn/vendor/topthink/think-orm/src/db/connector/Mysql.php ( 5.44 KB )
  107. /yingpanguazai/ssd/ssd1/www/c.460.net.cn/vendor/topthink/think-orm/src/db/PDOConnection.php ( 52.47 KB )
  108. /yingpanguazai/ssd/ssd1/www/c.460.net.cn/vendor/topthink/think-orm/src/db/Connection.php ( 8.39 KB )
  109. /yingpanguazai/ssd/ssd1/www/c.460.net.cn/vendor/topthink/think-orm/src/db/ConnectionInterface.php ( 4.57 KB )
  110. /yingpanguazai/ssd/ssd1/www/c.460.net.cn/vendor/topthink/think-orm/src/db/builder/Mysql.php ( 16.58 KB )
  111. /yingpanguazai/ssd/ssd1/www/c.460.net.cn/vendor/topthink/think-orm/src/db/Builder.php ( 24.06 KB )
  112. /yingpanguazai/ssd/ssd1/www/c.460.net.cn/vendor/topthink/think-orm/src/db/BaseBuilder.php ( 27.50 KB )
  113. /yingpanguazai/ssd/ssd1/www/c.460.net.cn/vendor/topthink/think-orm/src/db/Query.php ( 15.71 KB )
  114. /yingpanguazai/ssd/ssd1/www/c.460.net.cn/vendor/topthink/think-orm/src/db/BaseQuery.php ( 45.13 KB )
  115. /yingpanguazai/ssd/ssd1/www/c.460.net.cn/vendor/topthink/think-orm/src/db/concern/TimeFieldQuery.php ( 7.43 KB )
  116. /yingpanguazai/ssd/ssd1/www/c.460.net.cn/vendor/topthink/think-orm/src/db/concern/AggregateQuery.php ( 3.26 KB )
  117. /yingpanguazai/ssd/ssd1/www/c.460.net.cn/vendor/topthink/think-orm/src/db/concern/ModelRelationQuery.php ( 20.07 KB )
  118. /yingpanguazai/ssd/ssd1/www/c.460.net.cn/vendor/topthink/think-orm/src/db/concern/ParamsBind.php ( 3.66 KB )
  119. /yingpanguazai/ssd/ssd1/www/c.460.net.cn/vendor/topthink/think-orm/src/db/concern/ResultOperation.php ( 7.01 KB )
  120. /yingpanguazai/ssd/ssd1/www/c.460.net.cn/vendor/topthink/think-orm/src/db/concern/WhereQuery.php ( 19.37 KB )
  121. /yingpanguazai/ssd/ssd1/www/c.460.net.cn/vendor/topthink/think-orm/src/db/concern/JoinAndViewQuery.php ( 7.11 KB )
  122. /yingpanguazai/ssd/ssd1/www/c.460.net.cn/vendor/topthink/think-orm/src/db/concern/TableFieldInfo.php ( 2.63 KB )
  123. /yingpanguazai/ssd/ssd1/www/c.460.net.cn/vendor/topthink/think-orm/src/db/concern/Transaction.php ( 2.77 KB )
  124. /yingpanguazai/ssd/ssd1/www/c.460.net.cn/vendor/topthink/framework/src/think/log/driver/File.php ( 5.96 KB )
  125. /yingpanguazai/ssd/ssd1/www/c.460.net.cn/vendor/topthink/framework/src/think/contract/LogHandlerInterface.php ( 0.86 KB )
  126. /yingpanguazai/ssd/ssd1/www/c.460.net.cn/vendor/topthink/framework/src/think/log/Channel.php ( 3.89 KB )
  127. /yingpanguazai/ssd/ssd1/www/c.460.net.cn/vendor/topthink/framework/src/think/event/LogRecord.php ( 1.02 KB )
  128. /yingpanguazai/ssd/ssd1/www/c.460.net.cn/vendor/topthink/think-helper/src/Collection.php ( 16.47 KB )
  129. /yingpanguazai/ssd/ssd1/www/c.460.net.cn/vendor/topthink/framework/src/think/facade/View.php ( 1.70 KB )
  130. /yingpanguazai/ssd/ssd1/www/c.460.net.cn/vendor/topthink/framework/src/think/View.php ( 4.39 KB )
  131. /yingpanguazai/ssd/ssd1/www/c.460.net.cn/vendor/topthink/framework/src/think/Response.php ( 8.81 KB )
  132. /yingpanguazai/ssd/ssd1/www/c.460.net.cn/vendor/topthink/framework/src/think/response/View.php ( 3.29 KB )
  133. /yingpanguazai/ssd/ssd1/www/c.460.net.cn/vendor/topthink/framework/src/think/Cookie.php ( 6.06 KB )
  134. /yingpanguazai/ssd/ssd1/www/c.460.net.cn/vendor/topthink/think-view/src/Think.php ( 8.38 KB )
  135. /yingpanguazai/ssd/ssd1/www/c.460.net.cn/vendor/topthink/framework/src/think/contract/TemplateHandlerInterface.php ( 1.60 KB )
  136. /yingpanguazai/ssd/ssd1/www/c.460.net.cn/vendor/topthink/think-template/src/Template.php ( 46.61 KB )
  137. /yingpanguazai/ssd/ssd1/www/c.460.net.cn/vendor/topthink/think-template/src/template/driver/File.php ( 2.41 KB )
  138. /yingpanguazai/ssd/ssd1/www/c.460.net.cn/vendor/topthink/think-template/src/template/contract/DriverInterface.php ( 0.86 KB )
  139. /yingpanguazai/ssd/ssd1/www/c.460.net.cn/runtime/temp/a3df6b94aede6ebd0d2926ccdfcd20d5.php ( 11.98 KB )
  140. /yingpanguazai/ssd/ssd1/www/c.460.net.cn/vendor/topthink/think-trace/src/Html.php ( 4.42 KB )
  1. CONNECT:[ UseTime:0.000500s ] mysql:host=127.0.0.1;port=3306;dbname=c460;charset=utf8mb4
  2. SHOW FULL COLUMNS FROM `fenlei` [ RunTime:0.000637s ]
  3. SELECT * FROM `fenlei` WHERE `fid` = 0 [ RunTime:0.000269s ]
  4. SELECT * FROM `fenlei` WHERE `fid` = 63 [ RunTime:0.000260s ]
  5. SHOW FULL COLUMNS FROM `set` [ RunTime:0.000516s ]
  6. SELECT * FROM `set` [ RunTime:0.000215s ]
  7. SHOW FULL COLUMNS FROM `article` [ RunTime:0.000516s ]
  8. SELECT * FROM `article` WHERE `id` = 463932 LIMIT 1 [ RunTime:0.000522s ]
  9. UPDATE `article` SET `lasttime` = 1778302782 WHERE `id` = 463932 [ RunTime:0.002562s ]
  10. SELECT * FROM `fenlei` WHERE `id` = 65 LIMIT 1 [ RunTime:0.000233s ]
  11. SELECT * FROM `article` WHERE `id` < 463932 ORDER BY `id` DESC LIMIT 1 [ RunTime:0.000412s ]
  12. SELECT * FROM `article` WHERE `id` > 463932 ORDER BY `id` ASC LIMIT 1 [ RunTime:0.000415s ]
  13. SELECT * FROM `article` WHERE `id` < 463932 ORDER BY `id` DESC LIMIT 10 [ RunTime:0.002973s ]
  14. SELECT * FROM `article` WHERE `id` < 463932 ORDER BY `id` DESC LIMIT 10,10 [ RunTime:0.008412s ]
  15. SELECT * FROM `article` WHERE `id` < 463932 ORDER BY `id` DESC LIMIT 20,10 [ RunTime:0.011141s ]
0.100552s