
©直角建筑摄影
AC君与大家分享
深圳市人民医院龙华分院
Shenzhen People's Hospital Longhua Branch
作品来自:Perkins&Will
项目地址:广东省深圳市
建筑面积:201 874 m2
建设时间:2024年

深圳市人民医院龙华分院地处人口密集的龙华核心区,原院区建筑的规模和功能设置均已无法满足周边社区的医疗需求,院方迫切希望通过改扩建改善和提升工作与治疗环境。Perkins&Will围绕“一流区域医疗中心”的目标,为龙华分院打造了高效便捷且充满人文关怀的医疗环境。项目总体规划床位1 000张,一期新建建筑面积13.5万m2,二期新建及改扩建建筑面积共计6.6万m2,功能涵盖门急诊、医技、住院、体检中心等。一期于2024年底正式投入使用,二期正在有序推进。
Located in the densely populated core district of Longhua, Shenzhen People's Hospital Longhua Branch has long outgrown the scale and functionality of its original facility, which can no longer meet the growing healthcare demands of the surrounding communities. The hospital urgently sought to enhance both the working and healing environments through expansion and renovation. Centered on the vision of creating a first-class regional medical center, Perkins&Will has designed a highly efficient and human-centered healthcare environment for the Longhua Branch. With the planned capacity of 1,000 beds, the new hospital will be delivered in two phases: 135,000 sqm in Phase I and 66,000 sqm in Phase II, bringing together outpatient, inpatient, emergency, diagnostic & therapeutic (D&T), and health examination center under one comprehensive medical hub. Phase I was officially commissioned at the end of 2024, and Phase II is now progressing as scheduled.

深圳市人民医院龙华分院总平面图一期 ©Perkins&Will

深圳市人民医院龙华分院总平面图二期 ©Perkins&Will

©直角建筑摄影
生命绿岛:多维自然疗愈
Healing Oasis: Nature in Multiple Dimensions
龙华分院以“生命绿岛”为设计理念,在有限场地内营造丰沛的绿色空间,让患者与医护在步移景异间获得自然疗愈。设计巧妙利用场地地势高差,在医院核心地块营造首层架空的花园平台。机动车落客被引入花园下方地面层,而人行流线则由景观廊道带入二层花园。开阔的中央花园缓解了医院入口的交通压力,更为人们提供了一个休憩、漫步的场所。
Embodying the concept of a "Healing Oasis", the project deliberately forges abundant greenery within the tightly constrained site, allowing patients and medical staff to derive natural healing through ever-changing vistas as they move through the environment. The scheme astutely exploits the site's topographical features to create an elevated garden platform at the heart of the site. Vehicular drop-off is accommodated at ground level beneath the garden, while pedestrian circulation is introduced through a landscaped promenade into the second-level garden. The spacious central garden not only alleviates traffic congestion at the hospital entrance, but also provides a tranquil setting for relaxation and leisurely strolls.

行人到达及车辆落客流线 ©Perkins&Will

©直角建筑摄影
医院主要公共等待区和交通空间均面向花园展开,这片令人平静的视觉绿洲,既能舒缓医患的紧张情绪,同时成为建筑核心区域的方向指引。景观由中央花园延伸至建筑垂直维度,形成多层次立体绿化体系——屋顶花园、景观露台、绿植中庭在不同楼层穿插设置。绿意渗透于院区每个角落,消解了高密度城市中建筑物的压迫感。
Major public waiting areas and circulation spaces are oriented toward the garden, forming a calming visual oasis that not only eases anxiety of patients and healthcare staff but also operates as an intuitive wayfinding anchor at the complex. Extending upward from the central garden into the building's vertical dimension, the landscape gives rise to a multi-layered greening system—roof gardens, landscaped terraces, and planted atria strategically interwoven across different floors. Greenery permeates every corner of the hospital, counterbalancing the sense of compression imposed by buildings in high-density urban contexts.

绿地 ©Perkins&Will

可持续设计图 ©Perkins&Will

©直角建筑摄影
以使用者为中心的卓越关怀
User-Centered Care at its Best
龙华分院采用“医疗街”布局,门诊和医技功能沿其模块化展开,动线清晰直观、易于辨识。通过住院大楼与门急诊共享医技、关联科室就近同层或上下层对位排布的策略,缩短了医护人员和患者的院内步行距离,无论处于住院或门诊区都能便捷到达检验、放射、超声等医技科室,打造出一座紧凑高效的垂直医院。
Longhua Branch adopts a "medical street" configuration, along which outpatient and D&T functions unfold in a modular sequence, ensuring a clear, intuitive, and easily legible circulation route. By sharing D&T between inpatient, outpatient and emergency services along with strategically arranging related departments on the same floor or in precise vertical adjacency, the design substantially minimizes walking distances for both staff and patients. From any point within the hospital, users are able to reach laboratory services, radiology, ultrasound, and other D&T units with ease, thereby establishing a compact and highly efficient vertical hospital.


©直角建筑摄影
此外,Perkins&Will创新地采用“前病患、后医护”的分区模式排布医疗平面,该策略将医护、患者及污物处理动线明确分离:患者与家属可自候诊区顺畅抵达诊疗室,而包含医护专用走廊和电梯、宿舍、会议协作空间的后区,则为医护人员提供更为便捷通畅、安全舒适的工作环境。
Additionally, Perkins&Will applied the innovative onstage/offstage model, through which the circulation of clinicians, patients, and waste handling are clearly separated. Patients and family members walk from waiting areas to consultation rooms without being disrupted visually and physically by staff zones, and an offstage core of staff-only corridors and elevators, dormitories, collaborative meeting spaces allows staff to work, interact, and circulate with greater ease, safety, and comfort.

深圳市人民医院龙华分院功能叠加分析图 ©Perkins&Will
弹性设计应对未来变化
Resilient Design for Anticipate Future Change

©直角建筑摄影
在持续运营中有机生长
Organic Growth Through Ongoing Operation
面对改扩建期间需不间断运营的需求,建筑师采取了“分期腾挪”的建设策略,在确保原有院区这个有机体持续生长的同时,通过精准统筹建设时序与功能过渡,完成更新。两座主要建筑在最终合龙前,分别作为独立个体在不同时期进行建设,而原建筑则会在分期建设中被逐步翻新和拆除:一期工程在建成后可自成体系、满足独立运营需求,二期工程建设过程中将通过庭院及预留搭接结构与一期无缝对接,最终形成资源共享、流线清晰的完整医疗中心。这一系统科学、周密的筹划、设计和实施好似建筑师与医护人员共同完成的一台精密的微创手术,让深圳市人民医院龙华分院焕发更强的生命力,熠熠生辉。
To maintain uninterrupted medical services throughout the redevelopment, a phased construction and relocation strategy was adopted that ensures the existing campus continues to grow organically even as its renewal unfolds through carefully orchestrated construction sequencing and precisely managed program transitions. Prior to the final integration, the two main buildings are constructed as separate blocks in successive phases, while the original structure is progressively renovated and demolished: Phase I operates autonomously upon completion, whereas Phase II will be linked seamlessly to Phase I via courtyards and pre-reserved structural interfaces, ultimately forming a cohesive medical center with shared resources and clear circulation. This systematic and meticulously coordinated process of planning, design and implementation—akin to a precision minimally invasive procedure performed jointly by architects and medical professionals—has endowed Shenzhen People's Hospital Longhua Branch with renewed vitality and a luminous new presence.


分期建设图 ©Perkins&Will

©直角建筑摄影
“Perkins&Will设计的不仅仅是一座建筑,更是一个充满关怀与希望的‘疗愈家园’。从踏入院区的那一刻起,就能感受到他们在设计中所倾注的心血——建筑线条柔和而现代,色彩温馨宁静,仿佛在轻声告诉来访者:‘来到这里,您可以安心’。它不仅是一座体现现代医疗水准的高效医疗场所,更是一个承载生命故事、传递人文温度的公共空间,是深圳龙华地区居民健康的港湾、信任的依托。期待这座建筑在未来岁月里,继续温暖每一个走进这里的人。”
——刘大乐
深圳市人民医院龙华分院院长
"What Perkins&Will has designed is far more than a mere building, it is a 'home for healing' brimming with care and hope. From the very moment one steps onto the grounds, the dedication poured into the design is palpable—with soft yet modern architectural lines and a warm, tranquil color palette that seem to whisper to every visitor: 'Rest assured, you are in good hands.' It stands not only as an efficient medical facility embodying state-of-the-art standards but also as a public space that bears witness to life stories and radiates human warmth. It serves as a harbor of health and an anchor of trust for the residents of Longhua, Shenzhen. We look forward to seeing this building continue to offer warmth and comfort to everyone who enters its doors in the years to come."
—LIU Dale
Shenzhen People's Hospital Longhua Branch, President

©直角建筑摄影
“项目用地周边条件差、场地高差大、容积率高、功能需求复杂,在诸多因素的限制之下,项目以‘人’为本,重构空间组织关系,通过循证设计,巧解难题,精准把控建筑体量关系,消解高容积率的压迫感,弹性布局预留未来生长可能性。在深圳这样一个高密度城市中,为老旧医院改扩建提供了一份兼顾功能与人文的参考典范。”
——王子佳
深圳市建筑工务署工程设计管理中心副主任
The project faced numerous constraints, including poor surrounding site conditions, significant level differences, a high floor area ratio, and complex functional requirements. Within these limitations, it adopts a people-centered approach to reconfigure spatial organization. Through evidence-based design, it resolves challenges with precision—carefully calibrating building massing to mitigate the sense of oppression associated with high density, while introducing a flexible layout that reserves capacity for future growth. In a high-density city like Shenzhen, the project offers a balanced and exemplary reference for the renovation and expansion of aging hospitals, integrating both operational efficiency and humanistic care.
—WANG Zijia
Bureau of Public Works of Shenzhen Municipality, Engineering Design Management Center, Deputy Director

©直角建筑摄影
“项目不仅满足高效医疗运行的功能需求,更通过温暖有序的空间体验与贯穿院区的生命绿道,传递对生命的关怀与信心,既为患者营造安心的就诊环境,也显著改善了医务人员的工作体验。”
——朱富强
深圳市人民医院龙华分院项目办主任
"The project not only meets the functional demands of efficient medical operations, but also conveys care and confidence in life through a warm, well-ordered spatial experience and a life-oriented green corridor that runs throughout the campus, creating a reassuring environment for patients while significantly enhancing the working experience of medical staff."
—ZHU Fuqiang
Shenzhen People's Hospital Longhua Branch, Project Office Director

©直角建筑摄影
“龙华分院场地存在约6 m高差,我们以此为契机,通过立体布局实现人车分流,同时为医院营造出一片近3 000 m²的静谧中央花园。我们始终希望医院建筑‘多给予,少索取’——即便在高密度的城市环境中,医院也应成为一处融合高效医疗与自然疗愈的场所,患者能从自然中感知治愈的力量,医护人员也能获得更从容、更受尊重的工作体验。”
——徐闰超
Perkins&Will董事、技术总监
"The site of Longhua Branch has an elevation difference of approximately 6 meters. Taking this condition as an opportunity, we implemented a three-dimensional layout to achieve separation of pedestrian and vehicular circulation, while creating a tranquil central garden of nearly 3,000 sqm. We have always believed that hospital architecture should 'give more and take less': even within a high-density urban context, a hospital should integrate efficient medical care with the healing power of nature—allowing patients to draw a sense of recovery from the natural environment, while enabling medical staff to enjoy a more composed and more dignified working experience."
—XU Runchao
Perkins&Will, Principal and Technical Director

©直角建筑摄影
/ 图纸展示 /

地下一层平面图 ©Perkins&Will

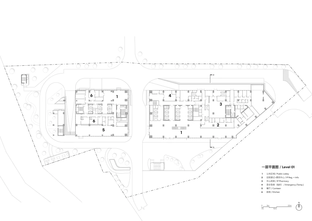
一层平面图 ©Perkins&Will

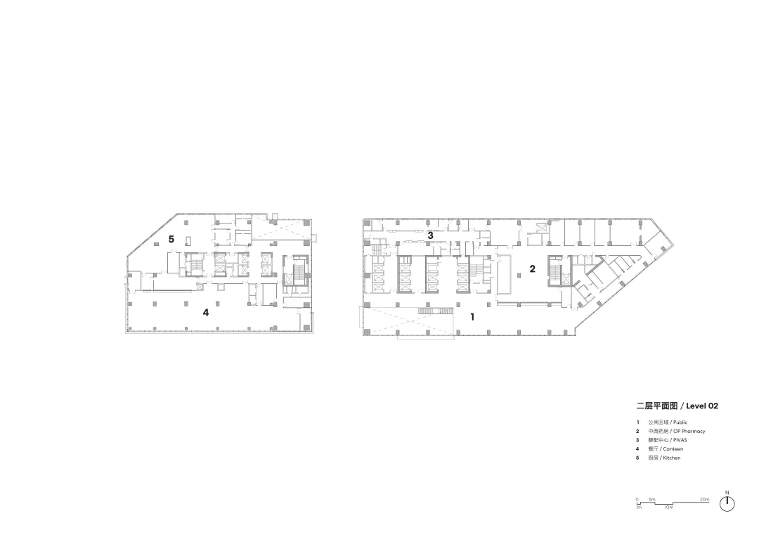
二层平面图 ©Perkins&Will

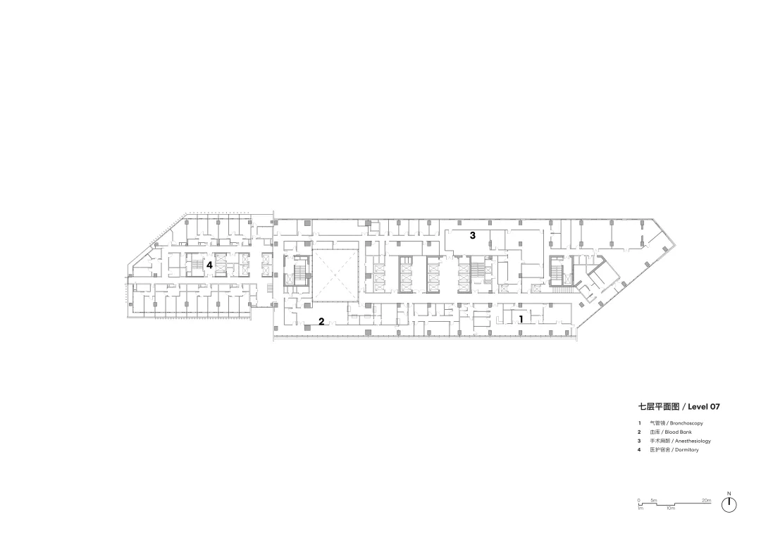
七层平面图 ©Perkins&Will

十五层平面图 ©Perkins&Will

标准层平面图 ©Perkins&Will

剖面图 ©Perkins&Will
深圳市人民医院龙华分院项目
业主单位:深圳市建筑工务署
项目地点:广东深圳
开始日期:2017年9月国际设计竞赛
竣工日期:2024年8月30日
规划总用地面积:一期11 948.5 m2,二期12 840 m2
建筑面积:201 874 m2,其中一期新建135 624 m2,二期新建48 281 m2,二期改建17 969 m2
设计范围:建筑专业概念、方案、初步设计,室内专业概念设计,景观专业概念、方案设计
功能:三级甲等综合医院,含门诊、急诊、住院、健康体检中心等功能
项目负责人:James Lu
主创建筑师:Paul Rice, Runchao Xu, Zheng Gong
设计团队:Zhongyi Zhang, Xiaopeng Gao, Thomas Saerkjaer, Zhou Fang, Cen Li, Jun Shen, Arvin Fan, Chukai Chen, Irene Cai, Mengyue Zhou, Juno Li, Xiaoshu He, Xi Chen
合作方:
施工图设计单位:深圳机械院建筑设计有限公司
施工总承包单位:中建三局第一建设工程有限责任公司
监理单位:重庆赛迪工程咨询有限公司
方案阶段合作设计单位:广州市设计院集团有限公司
摄影:©直角建筑摄影
▶ 本项目资料均由Perkins&Will提供,转载与任何形式的引用请联系设计团队及AC授权。
AC新作栏目持续征稿,欢迎设计单位给AC君分享近一年完工的优秀建成项目!
投稿邮箱:archicreation@bucea.edu.cn
邮件标题:【新作】项目名称+事务所名称
点击下图查看征稿简则 ↓↓↓


图文来源丨Perkins&Will
微信编辑丨李语晴
微信校对丨陈一凡
审核丨顾月明
审定丨项 曦










