深圳全区新房代理咨询▼
专车接送、享更多折扣▼
售楼处电话:181-2639-8847【邱经理】(24小时)预约看房,置业顾问一对一对接,享受额外优惠!
在售户型图丨项目介绍丨房源丨周边配套丨详细解答
开发商售楼处直销_欢迎来电预约享受内部折扣_恭迎品鉴!
温馨提示:看房请提前来电预约,谢谢您的配合!
看房预约我们可享更多楼盘资料细节,成功认购还能享受自媒体渠道大额购房现金补贴!注意:(自己上门会被界定为开发商上门客户,将会丧失大额自媒体渠道优惠福利)
位于深圳龙岗大运新楼盘——乐城3期(备案名:乐宸花园),全部采用新规住宅户型设计,得房率达100%,本次开盘推出1-3栋住宅,共528套房源,其中83㎡做到了3房2卫(仅112套),99㎡竟做4房2卫,还有115-132m²的4房2卫户型。
乐城3期都是非超高层(29-32层),所有单元均为3梯6户,户型朝向错开设计,确保每一户都是全南向户型,采光充足。在装修方面,也进行了全面升级:
1、跑马客厅+跑马阳台媲美顶级豪宅装修品质;
2、户户朝南,超高窗墙比;
3、全三面采光巨幕全景舱,酒店化五进式归家场景,星空顶+双大堂+车马厅,全屋一线品牌豪装精装。
营销中心沙盘实拍
乐城三期(乐宸)户型和房价说明(仅供参考,预约看房以下价格还可以更便宜!)

项目区域及楼盘介绍
乐城3期(乐宸),位于深圳市龙岗区园山街道龙岗大道与坳背路交汇处北侧,地处龙岗大运新城核心地段
颐安乐城,总共分5期开发,乐城1期已经交房目前是二手房在售,乐城2期已经全部售罄,最早的一批在2024年1月份集体交房,这次推售的是乐城3期,另外乐城4期已经在拆平准备动工。
乐城3期,由颐安集团打造,总占地面积约2.9万㎡,总建筑面积约17.11万㎡,计容建筑面积约12.29万㎡,容积率4.05,绿化率40%,共由6栋29-32层高住宅组成,其中1栋住宅29F,2栋住宅30F,3-6栋住宅32F。总规划1086户,全部3梯6户设计,户户朝南,地下室有3层,规划1116个车位,车位比1:1.02。
楼盘基础信息
1、开发商:深圳市荷康城房地产开发有限公司
2、物业公司:深圳市颐安物业服务有限公司
3、物业管理费:4.5元/㎡
4、总占地面积:2.9万/㎡
5、总建筑面积:17.11万/㎡
6、容积率:4.05
8、产权年限:2022年10月8日-2092年10月7日(70年住宅)
9、总户数:1086户
10、总栋数及楼高:6栋,总高29-32层
11、梯户比:3梯6户
12、车位数:1116个
13、车位占比:1:1.02
14、交楼时间:期房待定
15、交楼标准:精装修交房
乐城三期(乐宸花园)平面图及户型图

83㎡的3房2厅2卫,设计的是经典竖厅格局,客厅3.35米开间,LDKB一体化,S墙设计预留双开门冰箱卡槽位,三开间朝南,动静分区,U型厨房,公卫三段式干湿分离,赠送1.98平设备平台,得房率约77.15%(不含赠送),阳台5.02m²西南或东南朝向。靓点:83平做到了3房2卫,主卧270°无柱转角飘窗,厨房烟道外置+额外赠送设备平台,并且是纯南向格局。
99㎡的4房2厅2卫,设计的是竖厅格局,客厅3.35米开间,LDKB一体化,S墙设计预留双开门冰箱卡槽位,三开间朝南,动静分区,U型厨房,公卫三段式干湿分离,赠送设备平台,得房率约78.27%(不含赠送),客厅连接次卧出9.37m²大阳台西南或东南朝向。靓点:99平做到了4房2卫,主卧270°无柱转角飘窗,厨房烟道外置+额外赠送设备平台,并且是纯南向格局。


115㎡的4房2厅2卫,设计的是竖厅南北通透格局,进门入户玄关,客厅4.45米开间,餐客厅分离设计,客厅连接次卧出10.87m²的观景大阳台,L型中式+岛台灵动式厨房,公卫三段式干湿分离,得房率约78.27%(不含赠送),阳台主朝东南或西南向。靓点:南北对流+7.25米长超大观景南向阳台,超大主卧+270°无柱转角飘窗
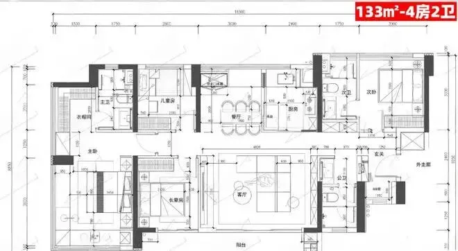
133㎡的4房2厅2卫,设计的是竖厅南北通透格局,进门入户玄关,客厅5.4米开间,餐客厅分离设计,客厅连接次卧出12.3m²的观景大阳台,L型中式+岛台灵动式厨房,公卫三段式干湿分离,得房率约78.27%(不含赠送),阳台主朝东南或西南向。靓点:超大客餐厅南北对流+8.2米长超大观景南向阳台,超大主卧+270°无柱转角飘窗


乐城三期项目周边配套:
交通配套:乐宸花园3期项目距离地铁3号线荷坳站约300米,步行5分钟即可抵达。乘坐地铁1站可达大运站,该站是深圳东部最大的综合交通枢纽,可换乘3号线、14号线、16号线等多条地铁线路。14号线已开通,16号线一期已开通,二期预计2025年开通,深大城际(33号线)计划2026年开通,届时大运站将成为四线换乘枢纽。

学校配套:项目小学学区为华南师范大学附属龙岗乐城小学(距离约100米),该学校是政府资助型公立学校,由华南师范大学承办,于2023年11月,学校已启动扩建工程,将由现状24班小学改扩建为36班九年一贯制学校,新增初中部学位,进一步完善了社区教育配套。中学学区:项目划入园山实验学校初中部和深圳北理莫斯科大学附属园山学校初中部。园山实验学校是公办初中。

商业配套:乐宸花园3期项目自带2446m²社区底商,乘坐地铁3号线仅1站可达大运星河COCOPARK,该商业体总建筑面积15.4万㎡,是龙岗区最高端的商业综合体之一,同时项目四期规划有5万㎡大型集中商业。
看完以上介绍,如需了解更多关于楼盘最新消息、剩余房源、折扣优惠活动、近期房价走势等情况,欢迎咨询/预约电话:181-2639-8847。 温馨提示:因本项目营销中心参观样板间采取预约制,为不耽误您的行程,过来营销中心现场看房请记得提前来电进行预约,预约看房的话享受的优惠折扣比直接上门更多,最终成交价格也会更优惠更划算,在此真诚感谢您对我们工作的支持和信赖,恭候您大驾光临。
深圳全区新房代理咨询▼
专车接送、享更多折扣▼
免责声明:以上展示资料部分来源于网络,告之即删。