
本文为踩盘原创,含户型拆解、价值分析与选房建议,非官方软文。
各位粉丝朋友,如果你在福田、南山工作,预算400多万,想买一套真正能“住得下、住得好”的纯正四房,请先别急着去看那些单价6万+的老破小。
今天,我为你深度拆解龙华梅林关片区一个正在收官加推的新盘。它可能是今年福田外溢客群“一步到位”的最后机会。
一、 地段研判:为什么是梅林关?

在深圳买房,地段是底盘,产品是放大器。这个项目位于龙华民治梅林关板块,一个被许多新深圳人低估的“通勤心脏”地带。
1. 交通:2站进福田的“效率王者”
地铁:项目距离10号线“南坑站”。2站直达冬瓜岭,4站到岗厦北,无缝换乘11、14号线。对于在福田中心区、车公庙、香蜜湖工作的群体,这是通勤性价比最高的选择之一。

路网:门口梅观高速、南坪快速,实测晚高峰25分钟可达福田CBD,30分钟接驳南山科技园北区。
2. 产业:不止是“睡城”,更是“产城融合”样本
项目紧邻华南数字超级总部基地(即“深国际华南数字谷”)。全球数字巨头海克斯康等已签约入驻。这意味着,未来这里的居住者将有相当比例是数字经济领域的产业人才,社区圈层和购买力基础有支撑。
3. 学校:全龄段教育就在家门口

幼儿园:社区配建12班公立幼儿园(已开学),真正实现“下楼上学”。
中小学:现阶段学区划分对口华南实验学校(九年一贯制,近年中考成绩稳居龙华前列)。更值得关注的是,项目北侧已规划一块72班九年一贯制教育用地,市场普遍预期将由红山中学教育集团承办,未来教育能级有望再上一个台阶。
4. 生活:都会繁华与自然静谧兼得
商业:步行范围内可达8号仓奥特莱斯,3公里生活圈覆盖星河COCO City、红山6979、壹方天地等六大商圈,消费层级丰富。
生态:项目南向直面民治水库与塘朗山山脉,中高楼层拥有开阔的“山-湖-城”景观视野,这在龙华核心区已近乎绝版资源。
二、 户型革命:新规下的“空间魔法”大揭秘
这才是项目的核心竞争力。在“新规住宅”(取消“偷面积”)的背景下,它通过极致的设计优化,将实用率做到了惊人的高度(部分户型实用率超100%)。我们重点解析其三大王牌户型。
1. 约89㎡ 4房2卫(“卷王”户型)

核心价值:在深圳,89㎡做三房是标配,做四房且不显局促,是产品力的体现。该户型实现了三开间朝南,主卧套房设计,最小的房间也可作为标准书房或儿童房。
数据说话:通过半赠送等设计,其套内使用面积可达约125㎡,得房率约105%。你付的是89㎡的钱,住出的是120㎡的体验。对于首置或需要多功能房的刚需家庭,这是“一步到位”的终极解决方案。
2. 约102㎡ 4房2卫(“均衡”改善)

尺度升级:客厅面宽约4.2米,连接大尺度景观阳台,公共空间更显开阔。四个房间面积分配更为合理,最大次卧超10㎡,满足二胎家庭或老人同住的需求。
对比逻辑:在同片区,102㎡做四房的产品极为稀缺。相比主流的三房,多出的一个房间就是未来流转时硬核的竞争力。
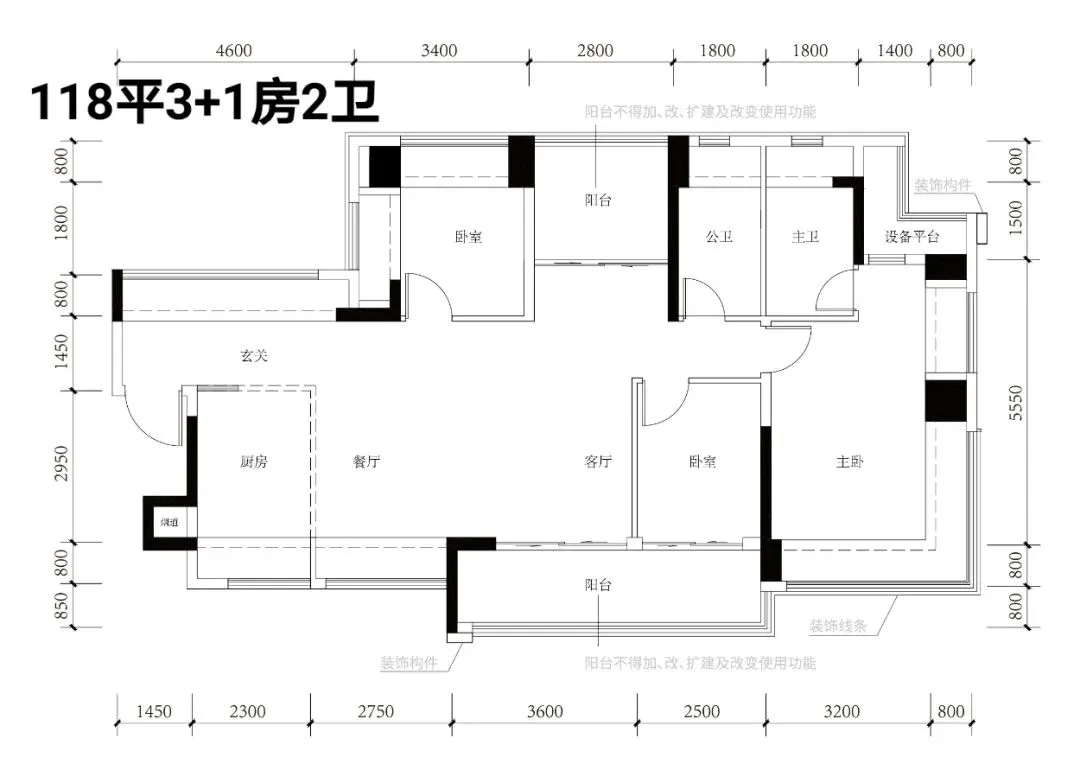
3. 约118㎡ 4房2卫(“品质”舒居)

横厅视野:部分楼栋采用大横厅设计,连接跑道式阳台,面宽超6.2米,视野极为震撼。
主卧奢华:独立衣帽间、双台盆卫浴、转角飘窗,改善属性全面拉满。在单价优势下,实现了不亚于福田千万级住宅的居住体验。
三、 收官加推:最后的上车机会与价值研判

关键信息:项目目前加推的是最后一栋住宅楼,即11栋,共计252套,售罄即清盘。
价格真相:项目备案均价约6.03万/㎡,但开发商给出了具有市场竞争力的优惠,折后单价区间在4.9万-5.6万/㎡。这意味着,一套约89㎡的四房,总价门槛仅在440万左右。这个预算,在福田甚至买不到像样的两房。
楼栋价值:11栋位于社区相对安静的位置,部分中高楼层户型拥有南向水库与山景资源,是收官栋中的“压轴景观位”。
四、 你必须知道的“另一面”
作为负责任的博主,我必须指出所有项目的潜在挑战,帮助你理性决策:
密度与视野:项目整体容积率约5.0,属于高密度社区。低楼层(特别是10层以下)的采光和视野可能受较大影响,强烈建议优先选择中高楼层。
噪音与周期:项目北侧临近华南物流园区,在未来一段时间内,或有大型车辆通行的噪音影响。同时,本次加推楼栋的交付时间预计在2028年上半年,需承担约3年的“租房+还贷”双重成本。

学区确定性:北侧规划学校虽利好明确,但深圳学区划分每年可能微调。务必理解“学区规划”不等于“学位承诺”,最终以教育局当年招生公告为准。
大家一起聊一下聊:
假设你是在福田工作的中产家庭,首付约70多万,你会选择:
A. 在福田买套“老破小”两房,牺牲居住品质保地段。
B. 在梅林关买这套“新规四房”,用通勤时间换全家人的宽敞生活。
你的选择是?理由是什么? 欢迎在评论区分享你的观点。
五、 给粉丝的终极建议

项目收官加推核心信息
主力户型:约89-121㎡ 精装4房
参考价格:折后约4.9万/㎡起(约89㎡总价约440万起)
加推状态:最后一栋,顺销中
博主肺腑之言:可加助理微信shenzhen-xf
这个项目最适合两类人:一是福田/南山工作的首置刚需家庭,对房间数有硬性要求;二是同区域内的品质改善家庭,需要升级更多功能空间。
如果你属于以上群体,且能接受2028年的交付周期,那么11栋的中高楼层(视野佳、噪音影响小)是目前全盘性价比的“价值洼地”。建议本周末务必安排实地看房,重点感受约89㎡四房的空间魔术,并亲自测算通勤时间。
温馨提示:本文所有价格、折扣信息仅为市场调研所得,仅供参考,购房时一切信息以开发商现场公示及合同为准。本文内容仅为房产分析,不构成任何投资建议。
关注"深房百科",获取更多深圳优质楼盘深度解析与市场前沿动态!
往期回顾
盐田现房清盘“捡漏”实录:首付5万锁90平3房,地铁口+双实验学区
坂田「天安云谷」13栋深度踩盘:98㎡做3+1房,华为旁的“卷王”户型来了!
龙华70㎡三房终极横评:卓越琅悦府 vs 金光华御府,谁才是刚需“卷王”?