【项目基础信息】
【核心卖点】
核心区位:国家级 CBD 天河区,坐拥天河三大 CBD(珠江新城、天河北、金融城)
生态景观:位处天河国际生态区,约 71 万㎡城市林海景观围绕,紧邻约 2 万㎡月亮湖
名校环伺:省级名校在旁(奥体东小学、灵秀小学,执信中学、清华附中等),自建 12 年公立教育配套,满足从幼儿园到初中的优质教育需求
N+1 会所:5800 ㎡业主独享星际会所,N 个共享泛会所(儿童乐园、共享办公、社交茶室)
M+科技系统:集精工、生态、健康、智慧四大体系,获建筑界“奥斯卡奖”国际 WELL 金级预认证
纯粹人居:37 万㎡全龄社区,产品涵盖 145-320 ㎡三至五房,私家电梯厅,专梯专户
缦系服务:沿袭世界奢华酒店理念,286 项服务标准,无边际服务
【产品介绍】
户型鉴赏
【主力户型】【145㎡户型】独享私家电梯厅-约7.2m²森幕宽厅-LDKB全明户型
【174㎡户型】独享私家电梯厅-270度环幕观景阳台-高定双套间
【190㎡户型】观景双阳台-高定双套间-私家电梯厅-双洄游动线
【230㎡户型】观景双阳台-高定双套间-私家电梯厅-双洄游动线
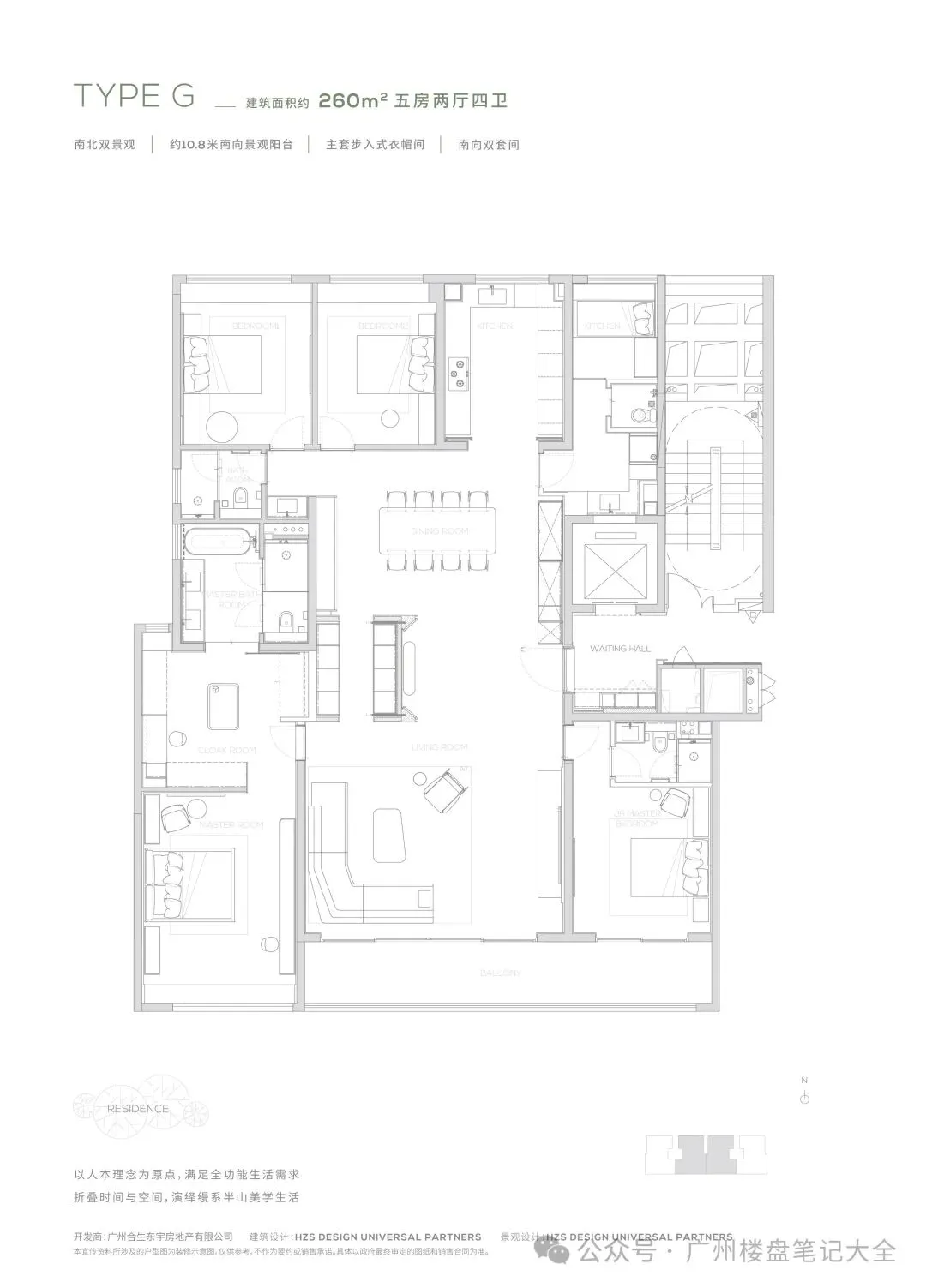
【260㎡户型】超10米南向景观阳台-南北双景观-主套步入式衣帽间-独创灵动岛设计,生活场景多重切换
【315㎡户型】南北双阳台-独立保姆房-巨幕大宽厅-私家电梯厅
【周边配套】
【交通配套】CBD黄金6公里,天河国际生态区 择址天河国际生态区核心,与两大经济引擎天河CBD和金融城CBD保持宜居距离。与4大快速路相连,北接沈海高速、环城高速,南接广园快速路、华南快速路,快速通达各大商圈。

【景观配套】位处天河国际生态区,约71万㎡城市林海景观围绕,紧邻约5万㎡月亮湖、太阳湖,拥有丰富的负氧离子,占据市中心稀缺生态资源。
【教育配套】6所名校在旁,包括2所国际学校、2所重点小学、2所省级中学(奥体东小学、灵秀小学、执信中学、清华附中、贝赛斯国际学校、爱莎国际学校等),自建12年公立教育配套,满足从幼儿园到初中的优质教育需求(已引进广州天河外国语教育集团办学,配建45班九年一贯制公立学校(18班小学+27班中学))
【医疗配套】:6公里内有4家三甲医院,包括中山大学附属第六医院珠吉院区(在建中)、暨南大学附属第一医院东圃院区、广州医科大学附属中医医院(天河新院)、中山大学附属第三医院岭南医院;